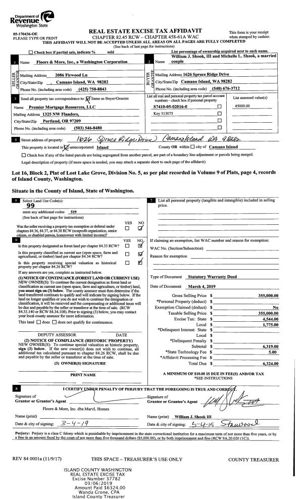
Property
Account |
| Property ID: | 166000 | Abbreviated Legal Description: | 8 - GL2 EX RDS INCL ADJ TIDES TO 600' DEPTH EX N360' OF E662' OF GL2 TGW PT E662' OF SE SW SEC 21-32 -3E LY S OF HWY EX S350' OF N710' OF E662' OF GL2 EX N710' OF GL2 EX E662' EX HWY EX PT SE SW SEC 21 LY S OF HWY EX E662' |
| Geographic ID: | R33228-388-1912 | Agent Code: | |
| Type: | Real | | |
| Tax Area: | 512 - APPRAISER-Stan/Cam Schl Dist, improved, greater than 1 acre | Land Use Code | 11 |
| Open Space: | N | DFL | N |
| Historic Property: | N | Remodel Property: | N |
| Multi-Family Redevelopment: | N | | |
| Township: | 32 | Section: | 28 |
| Range: | R3 |
Location |
| Address: | 912 JUNIPER BEACH RD CAMANO ISLAND, WA 98282 | Mapsco: | |
| Neighborhood: | Cycle 5 | Map ID: | 983 |
| Neighborhood CD: | 5 |
Owner |
| Name: | JONES, STEVEN J | Owner ID: | 285306 |
| Mailing Address: | 1301 SPRING ST #9c SEATTLE, WA 98104-1351 | % Ownership: | 100.0000000000% |
| | | Exemptions: | |
Taxes and Assessment Details
Values
| (+) Improvement Homesite Value: | + | $0 | |
| (+) Improvement Non-Homesite Value: | + | $214,200 | |
| (+) Land Homesite Value: | + | $0 | |
| (+) Land Non-Homesite Value: | + | $1,600,000 | |
| (+) Curr Use (HS): | + | $0 | $0 |
| (+) Curr Use (NHS): | + | $0 | $0 |
| | | -------------------------- | |
| (=) Market Value: | = | $1,814,200 | |
| (–) Productivity Loss: | – | $0 | |
| | | -------------------------- | |
| (=) Subtotal: | = | $1,814,200 | |
| (+) Senior Appraised Value: | + | $0 | |
| (+) Non-Senior Appraised Value: | + | $1,814,200 | |
| | | -------------------------- | |
| (=) Total Appraised Value: | = | $1,814,200 | |
| (–) Senior Exemption Loss: | – | $0 | |
| (–) Exemption Loss: | – | $0 | |
| | | -------------------------- | |
| (=) Taxable Value: | = | $1,814,200 | |
Taxing Jurisdiction
| Owner: | JONES, STEVEN J | | |
| % Ownership: | 100.0000000000% | | |
| Total Value: | $1,814,200 | | |
| Tax Area: | 512 - APPRAISER-Stan/Cam Schl Dist, improved, greater than 1 acre |
| CF | Conservation Futures | 0.0316035091 | $1,814,200 | $1,814,200 | $57.34 | | |
| EMS1 | Fire & Rescue Dist #1 Camano GEN (EMS) | 0.3677864386 | $1,814,200 | $1,814,200 | $667.24 | | |
| FIRE1 | Fire & Rescue Dist #1 Camano GEN | 1.2502910536 | $1,814,200 | $1,814,200 | $2,268.28 | | |
| FIRE1BOND | Fire & Rescue Dist #1 Camano BOND | 0.1570001679 | $1,814,200 | $1,814,200 | $284.83 | | |
| CE | County Current Expense | 0.3708482477 | $1,814,200 | $1,814,200 | $672.79 | | |
| CR | County Roads | 0.4584763726 | $1,814,200 | $1,814,200 | $831.77 | | |
| LCIB | Library Sno-Isle BOND (Camano Island) | 0.0396325772 | $1,814,200 | $1,814,200 | $71.90 | | |
| LIB | Library Sno-Isle GEN | 0.3153421757 | $1,814,200 | $1,814,200 | $572.09 | | |
| SCH205_401 | School 205-401 Enrichment | 1.2698420524 | $1,814,200 | $1,814,200 | $2,303.75 | | |
| SCH205BOND | School 205-401 BOND | 0.9396497583 | $1,814,200 | $1,814,200 | $1,704.71 | | |
| ST | State School | 1.3035497053 | $1,814,200 | $1,814,200 | $2,364.90 | | |
| ST2 | State School Part 2 | 0.8169543533 | $1,814,200 | $1,814,200 | $1,482.12 | | |
| | Total Tax Rate: | 7.3209764117 | | | | | |
| | | | | Taxes w/Current Exemptions: | $13,281.72 | | |
| | | | | Taxes w/o Exemptions: | $13,281.72 | | |
Improvement / Building
| Improvement #1: | RESIDENTIAL | State Code: | Y | 2048.0 sqft | Value: | $214,200 |
| Bathrooms: | 1 | Bedrooms: | 4 | | Ceiling: | DRYWALL PAINTED | Exterior Wall/Cover: | WOOD SIDING | | Floor Covering: | CARPET/VINYL 80-20 | Floor Structure: | WOOD W/SUBFLOOR | | Foundation: | CONCRETE | Heating: | BASEBOARD ELECTRIC | | Interior Finish: | DRYWALL PAINT | Plumbing Fixture Cnt: | 6 | | Roof Slope: | 12" IN 12" | Roof Structure/Cover: | CJ ASPHALT |
|
| | Type | Description | Class CD | Sub Class CD | Year Built | Area |
| | BAS | BASE/MAIN FLOOR | 4 | 0 | 1885 | 1264.0 |
| | OP4 | OPEN PORCH W/CEILING-ROOF | 4 | 0 | 1885 | 48.0 |
| | UPS | UPPER STORY | 4 | 0 | 1885 | 784.0 |
| | OWC | OPEN WOOD PORCH W/STEPS/ROOF/C | 4 | 0 | 1885 | 96.0 |
| | CPD | OPEN CARPORT DIRT FLOOR | 4 | 0 | 1885 | 760.0 |
| | UTY | STORAGE/UTILITY | 4 | 0 | 1885 | 480.0 |
Sketch
Property Image
Land
| 1 | LB | LOW BANK | 20.5600 | 895593.60 | 0.00 | 0.00 | 1.00 | $1,600,000 | $0 |
Roll Value History
| 2026 | N/A | N/A | N/A | N/A | N/A |
| 2025 | $214,200 | $1,600,000 | $0 | $1,814,200 | $1,814,200 |
| 2024 | $223,264 | $1,550,000 | $0 | $1,773,264 | $1,773,264 |
| 2023 | $227,621 | $1,500,000 | $0 | $1,727,621 | $1,727,621 |
| 2022 | $210,059 | $1,425,000 | $0 | $1,635,059 | $1,635,059 |
| 2021 | $186,082 | $1,150,000 | $0 | $1,336,082 | $1,336,082 |
| 2020 | $183,117 | $1,100,000 | $0 | $1,283,117 | $1,283,117 |
| 2019 | $139,762 | $1,100,000 | $0 | $1,239,762 | $1,239,762 |
| 2018 | $111,200 | $800,000 | $0 | $911,200 | $911,200 |
| 2017 | $112,231 | $800,000 | $12,218 | $163,360 | $163,360 |
| 2016 | $114,293 | $800,000 | $12,218 | $165,422 | $165,422 |
| 2015 | $101,311 | $604,464 | $12,218 | $142,929 | $142,929 |
| 2014 | $103,374 | $604,464 | $12,218 | $144,992 | $144,992 |
| 2013 | $105,436 | $604,464 | $12,218 | $147,054 | $147,054 |
| 2012 | $107,497 | $604,464 | $12,218 | $149,115 | $149,115 |
| 2011 | $109,559 | $616,800 | $12,218 | $121,777 | $121,777 |
| 2010 | $124,724 | $616,800 | $12,218 | $136,942 | $136,942 |
| 2009 | $95,822 | $719,600 | $12,218 | $108,040 | $108,040 |
| 2008 | $97,934 | $842,705 | $12,218 | $110,152 | $110,152 |
| 2007 | $100,045 | $842,705 | $12,218 | $112,263 | $112,263 |
Deed and Sales History
| 1 | 06/01/2018 | WD | Warranty Deed | BOWEN, ALIDA E & FRANK R | JONES, STEVEN J | | | $1,500,000.00 | 34381 | 4445546 |
| 2 | 11/01/1991 | QCD | Quit Claim Deed | MURRAY, ALIDA E | BOWEN, ALIDA E | | | $0.00 | 14098 | 91017631 |
| 3 | 03/01/1981 | EXECUTORD | Executor Deed | FROSTAD, NELLIE & | MURRAY, ALIDA E | | | $0.00 | 10872 | 0 |
| 4 | 01/01/1900 | OTHER | Other - Misc. Documents | Unknown | FROSTAD, NELLIE & | | | $0.00 | 0 | 0 |
Payout Agreement
| No payout information available.. |