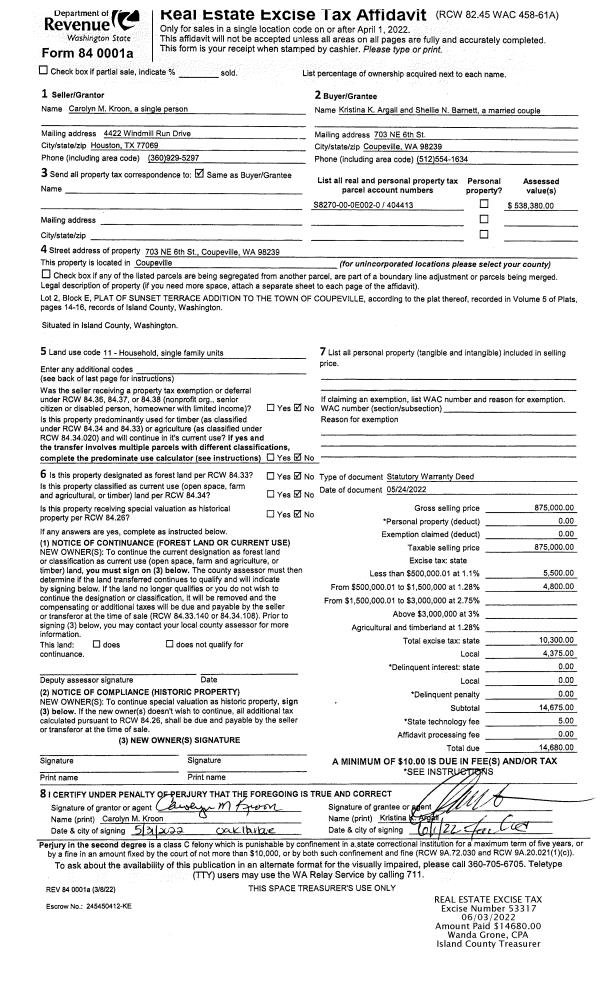
Property
Account |
| Property ID: | 166206 | Abbreviated Legal Description: | 31 - IN SW NW: BG W/4 CR SEC 29 S89*E471' TPB N207 .30' S89*E482.85' SLY ALG CUR/L 18.07' S21*E205.48' TO SLN NW SEC 29 N89*W568 .096' TPB TGW EZ (TR 4 SP 75-007) |
| Geographic ID: | R33229-272-0680 | Agent Code: | |
| Type: | Real | | |
| Tax Area: | 592 - APPRAISER-Stan/Cam Schl Dist, Special Dist, improved, greater than 1 acre | Land Use Code | 11 |
| Open Space: | N | DFL | N |
| Historic Property: | N | Remodel Property: | N |
| Multi-Family Redevelopment: | N | | |
| Township: | 32 | Section: | 29 |
| Range: | R3 |
Location |
| Address: | 609 S SUNRISE BLVD CAMANO ISLAND, WA 98282 | Mapsco: | |
| Neighborhood: | Cycle 5 | Map ID: | 986 |
| Neighborhood CD: | 5 |
Owner |
| Name: | MARKS, DEREK E | Owner ID: | 61355 |
| Mailing Address: | LARAE B MARKS 609 N SUNRISE BLVD CAMANO ISLAND, WA 98282-8706 | % Ownership: | 100.0000000000% |
| | | Exemptions: | |
Taxes and Assessment Details
Values
| (+) Improvement Homesite Value: | + | $0 | |
| (+) Improvement Non-Homesite Value: | + | $336,467 | |
| (+) Land Homesite Value: | + | $0 | |
| (+) Land Non-Homesite Value: | + | $360,000 | |
| (+) Curr Use (HS): | + | $0 | $0 |
| (+) Curr Use (NHS): | + | $0 | $0 |
| | | -------------------------- | |
| (=) Market Value: | = | $696,467 | |
| (–) Productivity Loss: | – | $0 | |
| | | -------------------------- | |
| (=) Subtotal: | = | $696,467 | |
| (+) Senior Appraised Value: | + | $0 | |
| (+) Non-Senior Appraised Value: | + | $696,467 | |
| | | -------------------------- | |
| (=) Total Appraised Value: | = | $696,467 | |
| (–) Senior Exemption Loss: | – | $0 | |
| (–) Exemption Loss: | – | $0 | |
| | | -------------------------- | |
| (=) Taxable Value: | = | $696,467 | |
Taxing Jurisdiction
| Owner: | MARKS, DEREK E | | |
| % Ownership: | 100.0000000000% | | |
| Total Value: | $696,467 | | |
| Tax Area: | 592 - APPRAISER-Stan/Cam Schl Dist, Special Dist, improved, greater than 1 acre |
| CF | Conservation Futures | 0.0316035091 | $696,467 | $696,467 | $22.01 | | |
| EMS1 | Fire & Rescue Dist #1 Camano GEN (EMS) | 0.3677864386 | $696,467 | $696,467 | $256.15 | | |
| FIRE1 | Fire & Rescue Dist #1 Camano GEN | 1.2502910536 | $696,467 | $696,467 | $870.79 | | |
| FIRE1BOND | Fire & Rescue Dist #1 Camano BOND | 0.1570001679 | $696,467 | $696,467 | $109.35 | | |
| CE | County Current Expense | 0.3708482477 | $696,467 | $696,467 | $258.28 | | |
| CR | County Roads | 0.4584763726 | $696,467 | $696,467 | $319.31 | | |
| LCIB | Library Sno-Isle BOND (Camano Island) | 0.0396325772 | $696,467 | $696,467 | $27.60 | | |
| LIB | Library Sno-Isle GEN | 0.3153421757 | $696,467 | $696,467 | $219.63 | | |
| SCH205_401 | School 205-401 Enrichment | 1.2698420524 | $696,467 | $696,467 | $884.40 | | |
| SCH205BOND | School 205-401 BOND | 0.9396497583 | $696,467 | $696,467 | $654.44 | | |
| ST | State School | 1.3035497053 | $696,467 | $696,467 | $907.88 | | |
| ST2 | State School Part 2 | 0.8169543533 | $696,467 | $696,467 | $568.98 | | |
| | Total Tax Rate: | 7.3209764117 | | | | | |
| | | | | Taxes w/Current Exemptions: | $5,098.82 | | |
| | | | | Taxes w/o Exemptions: | $5,098.82 | | |
Improvement / Building
| Improvement #1: | RESIDENTIAL | State Code: | Y | 2038.0 sqft | Value: | $336,467 |
| Bathrooms: | 2 | Bedrooms: | 4 | | Ceiling: | DRYWALL PAINTED | Exterior Wall/Cover: | WOOD SIDING | | Floor Covering: | HARDWOOD/CARP 60-40 | Floor Structure: | WOOD W/SUBFLOOR | | Foundation: | CONCRETE | Heating: | FHA GAS | | Interior Finish: | DRYWALL PAINT | Plumbing Fixture Cnt: | 11 | | Roof Slope: | 6" IN 12" | Roof Structure/Cover: | CJ ASPHALT |
|
| | Type | Description | Class CD | Sub Class CD | Year Built | Area |
| | BAS | BASE/MAIN FLOOR | 3 | 0 | 1996 | 1622.0 |
| | DWN | DOWNSTAIRS LIVING AREA | 3 | 0 | 1996 | 416.0 |
| | BIG | BUILT IN GARAGE | 3 | 0 | 1996 | 484.0 |
| | OWP | OPEN WOOD PORCH W/STEPS | 3 | 0 | 1996 | 72.0 |
| | OWP | OPEN WOOD PORCH W/STEPS | 3 | 0 | 1996 | 20.0 |
| | OWP | OPEN WOOD PORCH W/STEPS | 3 | 0 | 1996 | 656.0 |
| | OWC | OPEN WOOD PORCH W/STEPS/ROOF/C | 3 | 0 | 1996 | 24.0 |
Sketch
Property Image
Land
| 1 | 18 | AC (02.01-03.00) | 0.0000 | 0.00 | 0.00 | 0.00 | 1.00 | $360,000 | $0 |
Roll Value History
| 2026 | N/A | N/A | N/A | N/A | N/A |
| 2025 | $336,467 | $360,000 | $0 | $696,467 | $696,467 |
| 2024 | $340,821 | $360,000 | $0 | $700,821 | $700,821 |
| 2023 | $345,177 | $360,000 | $0 | $705,177 | $705,177 |
| 2022 | $316,502 | $320,000 | $0 | $636,502 | $636,502 |
| 2021 | $271,790 | $230,000 | $0 | $501,790 | $501,790 |
| 2020 | $265,294 | $200,000 | $0 | $465,294 | $465,294 |
| 2019 | $202,892 | $220,000 | $0 | $422,892 | $422,892 |
| 2018 | $203,517 | $210,000 | $0 | $413,517 | $413,517 |
| 2017 | $204,765 | $150,000 | $0 | $354,765 | $354,765 |
| 2016 | $207,263 | $125,000 | $0 | $332,263 | $332,263 |
| 2015 | $200,517 | $125,000 | $0 | $325,517 | $325,517 |
| 2014 | $202,997 | $125,000 | $0 | $327,997 | $327,997 |
| 2013 | $205,475 | $120,000 | $0 | $325,475 | $325,475 |
| 2012 | $207,953 | $120,000 | $0 | $327,953 | $327,953 |
| 2011 | $210,433 | $150,000 | $0 | $360,433 | $360,433 |
| 2010 | $215,714 | $150,000 | $0 | $365,714 | $365,714 |
| 2009 | $224,884 | $175,000 | $0 | $399,884 | $399,884 |
| 2008 | $227,519 | $170,000 | $0 | $397,519 | $397,519 |
| 2007 | $230,153 | $170,000 | $0 | $400,153 | $400,153 |
Deed and Sales History
| 1 | 06/14/2001 | WD | Warranty Deed | ASSOCIATES HOME EQUITY LOAN CO | MARKS, DEREK E | | | $230,000.00 | 12431 | 20036066 |
| 2 | 01/09/2001 | TRUSTEED | Trustee's Deed | WEATHERHOLT, PHILIP S | ASSOCIATES HOME EQUITY LOAN CO | | | $147,000.00 | 10373 | 20024793 |
| 3 | 08/05/1999 | ESTSEPPROP | Establish Separate Property | WEATHERHOLT, PHILIP S | WEATHERHOLT, PHILIP S | | | $0.00 | 93391 | 99019502 |
| 4 | 04/01/1995 | WD | Warranty Deed | CELEEN, ROBERT | WEATHERHOLT, PHILIP S | | | $35,000.00 | 51167 | 95005465 |
| 5 | 01/01/1900 | OTHER | Other - Misc. Documents | Unknown | CELEEN, ROBERT | | | $0.00 | 0 | 0 |
Payout Agreement
| No payout information available.. |