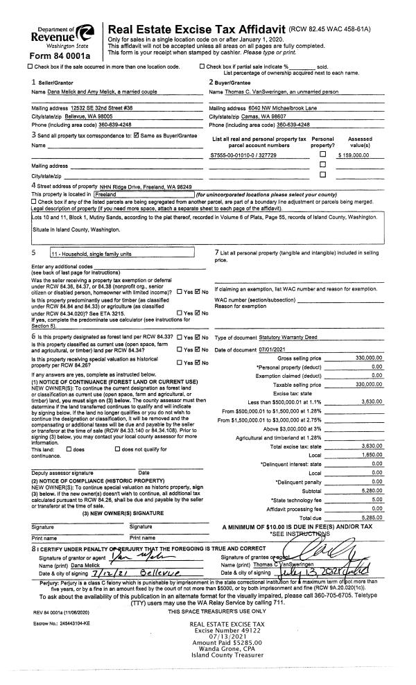
Property
Account |
| Property ID: | 16636 | Abbreviated Legal Description: | 44 - S1100' OF E198' OF NW NW INCL EZ |
| Geographic ID: | R13208-452-1220 | Agent Code: | |
| Type: | Real | | |
| Tax Area: | 112 - APPRAISER-OH Schl Dist, outside OH, improved, greater than 1 acre | Land Use Code | 11 |
| Open Space: | N | DFL | N |
| Historic Property: | N | Remodel Property: | N |
| Multi-Family Redevelopment: | N | | |
| Township: | 32 | Section: | 08 |
| Range: | R1 |
Location |
| Address: | 1881 FORT NUGENT RD OAK HARBOR, WA 98277 | Mapsco: | |
| Neighborhood: | Cycle 1 | Map ID: | 110 |
| Neighborhood CD: | 1 |
Owner |
| Name: | MASTERSON, ANITA RUTH | Owner ID: | 297876 |
| Mailing Address: | 1881 FORT NUGENT RD OAK HARBOR, WA 98277 | % Ownership: | 100.0000000000% |
| | | Exemptions: | |
Taxes and Assessment Details
Values
| (+) Improvement Homesite Value: | + | $0 | |
| (+) Improvement Non-Homesite Value: | + | $317,043 | |
| (+) Land Homesite Value: | + | $0 | |
| (+) Land Non-Homesite Value: | + | $290,000 | |
| (+) Curr Use (HS): | + | $0 | $0 |
| (+) Curr Use (NHS): | + | $0 | $0 |
| | | -------------------------- | |
| (=) Market Value: | = | $607,043 | |
| (–) Productivity Loss: | – | $0 | |
| | | -------------------------- | |
| (=) Subtotal: | = | $607,043 | |
| (+) Senior Appraised Value: | + | $0 | |
| (+) Non-Senior Appraised Value: | + | $607,043 | |
| | | -------------------------- | |
| (=) Total Appraised Value: | = | $607,043 | |
| (–) Senior Exemption Loss: | – | $0 | |
| (–) Exemption Loss: | – | $0 | |
| | | -------------------------- | |
| (=) Taxable Value: | = | $607,043 | |
Taxing Jurisdiction
| Owner: | MASTERSON, ANITA RUTH | | |
| % Ownership: | 100.0000000000% | | |
| Total Value: | $607,043 | | |
| Tax Area: | 112 - APPRAISER-OH Schl Dist, outside OH, improved, greater than 1 acre |
| CF | Conservation Futures | 0.0316035091 | $607,043 | $607,043 | $19.18 | | |
| CEM1 | Cemetery #1 | 0.0040320932 | $607,043 | $607,043 | $2.45 | | |
| FIRE2 | Fire & Rescue Dist #2 N Whidbey GEN | 0.5475949600 | $607,043 | $607,043 | $332.41 | | |
| HOBOND | Hospital BOND | 0.1910887512 | $607,043 | $607,043 | $116.00 | | |
| HOGEN | Hospital GEN | 0.3902502903 | $607,043 | $607,043 | $236.90 | | |
| CE | County Current Expense | 0.3708482477 | $607,043 | $607,043 | $225.12 | | |
| CR | County Roads | 0.4584763726 | $607,043 | $607,043 | $278.31 | | |
| ISLANDEMS | Hospital GEN (EMS) | 0.5000000000 | $607,043 | $607,043 | $303.52 | | |
| LIB | Library Sno-Isle GEN | 0.3153421757 | $607,043 | $607,043 | $191.43 | | |
| NWHIDPRMT | P & R N Whidbey GEN | 0.2004466701 | $607,043 | $607,043 | $121.68 | | |
| SCH201MO | School 201 Enrichment | 1.8559231640 | $607,043 | $607,043 | $1,126.63 | | |
| ST | State School | 1.3035497053 | $607,043 | $607,043 | $791.31 | | |
| ST2 | State School Part 2 | 0.8169543533 | $607,043 | $607,043 | $495.93 | | |
| | Total Tax Rate: | 6.9861102925 | | | | | |
| | | | | Taxes w/Current Exemptions: | $4,240.87 | | |
| | | | | Taxes w/o Exemptions: | $4,240.87 | | |
Improvement / Building
| Improvement #1: | RESIDENTIAL | State Code: | Y | 2916.2 sqft | Value: | $317,043 |
| Bathrooms: | 2 | Bedrooms: | 3 | | Ceiling: | DRYWALL PAINTED | Cooling: | HEAT PUMP/CONV/V | | Exterior Wall/Cover: | WOOD SIDING | Floor Covering: | CARPET/VINYL 80-20 | | Floor Structure: | WOOD W/SUBFLOOR | Foundation: | CONCRETE | | Interior Finish: | DRYWALL PAINT | Plumbing Fixture Cnt: | 10 | | Roof Slope: | 4" IN 12" | Roof Structure/Cover: | CJ ASPHALT |
|
| | Type | Description | Class CD | Sub Class CD | Year Built | Area |
| | BAS | BASE/MAIN FLOOR | 3 | 0 | 1975 | 1462.2 |
| | DWN | DOWNSTAIRS LIVING AREA | 3 | 0 | 1975 | 1454.0 |
| | OWP | OPEN WOOD PORCH W/STEPS | 3 | 0 | 1975 | 996.0 |
| | OWR | OPEN WOOD PORCH W/STEPS/ROOF | 3 | 0 | 1975 | 140.0 |
| | DGR | DETACHED GARAGE | 3 | 0 | 1975 | 384.0 |
Sketch
Property Image
Land
| 1 | 32 | AC (03.01-09.99) | 5.0000 | 0.00 | 0.00 | 0.00 | 1.00 | $290,000 | $0 |
Roll Value History
| 2026 | N/A | N/A | N/A | N/A | N/A |
| 2025 | $317,043 | $290,000 | $0 | $607,043 | $607,043 |
| 2024 | $321,492 | $260,000 | $0 | $581,492 | $581,492 |
| 2023 | $325,941 | $250,000 | $0 | $575,941 | $575,941 |
| 2022 | $299,176 | $220,000 | $0 | $519,176 | $519,176 |
| 2021 | $263,648 | $190,000 | $0 | $453,648 | $453,648 |
| 2020 | $258,071 | $140,000 | $0 | $398,071 | $398,071 |
| 2019 | $207,432 | $200,000 | $0 | $407,432 | $407,432 |
| 2018 | $208,103 | $170,000 | $0 | $378,103 | $378,103 |
| 2017 | $151,462 | $160,000 | $0 | $311,462 | $311,462 |
| 2016 | $153,655 | $160,000 | $0 | $313,655 | $313,655 |
| 2015 | $155,846 | $135,000 | $0 | $290,846 | $290,846 |
| 2014 | $156,133 | $135,000 | $0 | $291,133 | $291,133 |
| 2013 | $158,298 | $123,750 | $0 | $282,048 | $282,048 |
| 2012 | $160,462 | $123,750 | $0 | $284,212 | $284,212 |
| 2011 | $153,976 | $137,500 | $0 | $291,476 | $291,476 |
| 2010 | $149,617 | $137,500 | $0 | $287,117 | $287,117 |
| 2009 | $156,469 | $187,500 | $0 | $343,969 | $343,969 |
| 2008 | $159,227 | $187,500 | $0 | $346,727 | $346,727 |
| 2007 | $161,986 | $187,500 | $0 | $349,486 | $349,486 |
Deed and Sales History
| 1 | 01/21/2021 | QCD | Quit Claim Deed | JOHNSTON, KEITH B | MASTERSON, ANITA RUTH | | | $0.00 | 46712 | 4509252 |
| 2 | 12/09/2014 | SPWARDEED | Special Warranty Deed | BANK OF NEW YORK MELLON TRUST COMPANY | JOHNSTON, KEITH B | | | $212,000.00 | 18001 | 4370636 |
| 3 | 04/24/2014 | TRUSTEED | Trustee's Deed | DAVIS, LONNIE J | BANK OF NEW YORK MELLON TRUST COMPANY | | | $197,874.00 | 15068 | 4358576 |
| 4 | 12/08/2004 | WD | Warranty Deed | LAFERRIERE, ROBERT A | DAVIS, LONNIE J | | | $235,900.00 | 45792 | 4120566 |
| 5 | 01/01/1989 | QCD | Quit Claim Deed | LAFERRIERE, ROBERT A | LAFERRIERE, ROBERT A | | | $0.00 | 90453 | 89001546 |
| 6 | 01/01/1900 | OTHER | Other - Misc. Documents | Unknown | LAFERRIERE, ROBERT A | | | $0.00 | 0 | 0 |
Payout Agreement
| No payout information available.. |