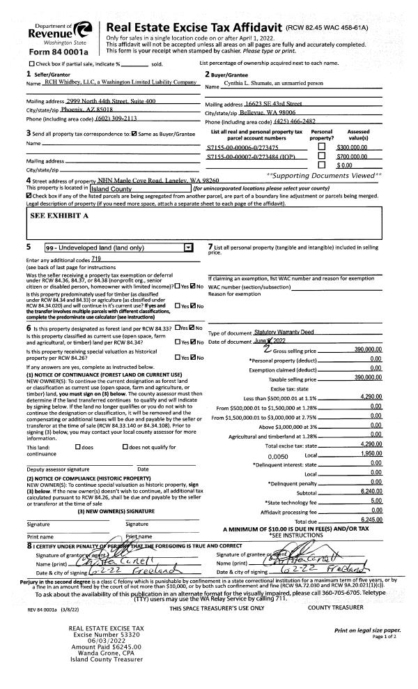
Property
Account |
| Property ID: | 166457 | Abbreviated Legal Description: | 21 - W200' OF S100' OF N300' OF PT N/2 NW LY S OF NLN OF S71.7AC OF SD N/2 OF NW & LY E OF OLD SUNRISE BLVD EX PT TO IS CO FOR NEW SUNRISE BLVD AF#266554 ALSO EX PT TO DRAINAGE DIST#5 AF#42954 (DITCH) TGW PT ADJ VAC OLD SUNRISE BLVD AF#281906 |
| Geographic ID: | R33229-484-1360 | Agent Code: | |
| Type: | Real | | |
| Tax Area: | 599 - APPRAISER-Stan/Cam Schl Dist, Special Dist, vacant & 50 acres or less | Land Use Code | 91 |
| Open Space: | N | DFL | N |
| Historic Property: | N | Remodel Property: | N |
| Multi-Family Redevelopment: | N | | |
| Township: | 32 | Section: | 29 |
| Range: | R3 |
Location |
| Address: | | Mapsco: | |
| Neighborhood: | Cycle 5 | Map ID: | 986 |
| Neighborhood CD: | 5 |
Owner |
| Name: | NELSON, J ROGER | Owner ID: | 265245 |
| Mailing Address: | APRIL R NELSON 630 SUNRISE BLVD CAMANO ISLAND, WA 98282 | % Ownership: | 100.0000000000% |
| | | Exemptions: | |
Taxes and Assessment Details
Values
| (+) Improvement Homesite Value: | + | $0 | |
| (+) Improvement Non-Homesite Value: | + | $0 | |
| (+) Land Homesite Value: | + | $0 | |
| (+) Land Non-Homesite Value: | + | $85,000 | |
| (+) Curr Use (HS): | + | $0 | $0 |
| (+) Curr Use (NHS): | + | $0 | $0 |
| | | -------------------------- | |
| (=) Market Value: | = | $85,000 | |
| (–) Productivity Loss: | – | $0 | |
| | | -------------------------- | |
| (=) Subtotal: | = | $85,000 | |
| (+) Senior Appraised Value: | + | $0 | |
| (+) Non-Senior Appraised Value: | + | $85,000 | |
| | | -------------------------- | |
| (=) Total Appraised Value: | = | $85,000 | |
| (–) Senior Exemption Loss: | – | $0 | |
| (–) Exemption Loss: | – | $0 | |
| | | -------------------------- | |
| (=) Taxable Value: | = | $85,000 | |
Taxing Jurisdiction
| Owner: | NELSON, J ROGER | | |
| % Ownership: | 100.0000000000% | | |
| Total Value: | $85,000 | | |
| Tax Area: | 599 - APPRAISER-Stan/Cam Schl Dist, Special Dist, vacant & 50 acres or less |
| CF | Conservation Futures | 0.0316035091 | $85,000 | $85,000 | $2.69 | | |
| EMS1 | Fire & Rescue Dist #1 Camano GEN (EMS) | 0.3677864386 | $85,000 | $85,000 | $31.26 | | |
| CE | County Current Expense | 0.3708482477 | $85,000 | $85,000 | $31.52 | | |
| CR | County Roads | 0.4584763726 | $85,000 | $85,000 | $38.97 | | |
| LCIB | Library Sno-Isle BOND (Camano Island) | 0.0396325772 | $85,000 | $85,000 | $3.37 | | |
| LIB | Library Sno-Isle GEN | 0.3153421757 | $85,000 | $85,000 | $26.80 | | |
| SCH205_401 | School 205-401 Enrichment | 1.2698420524 | $85,000 | $85,000 | $107.94 | | |
| SCH205BOND | School 205-401 BOND | 0.9396497583 | $85,000 | $85,000 | $79.87 | | |
| ST | State School | 1.3035497053 | $85,000 | $85,000 | $110.80 | | |
| ST2 | State School Part 2 | 0.8169543533 | $85,000 | $85,000 | $69.44 | | |
| | Total Tax Rate: | 5.9136851902 | | | | | |
| | | | | Taxes w/Current Exemptions: | $502.66 | | |
| | | | | Taxes w/o Exemptions: | $502.66 | | |
Improvement / Building
Sketch
| No sketches available for this property. |
Property Image
Land
| 1 | 15 | SQ (12001-21780) | 0.0000 | 0.00 | 0.00 | 0.00 | 1.00 | $85,000 | $0 |
Roll Value History
| 2026 | N/A | N/A | N/A | N/A | N/A |
| 2025 | $0 | $85,000 | $0 | $85,000 | $85,000 |
| 2024 | $0 | $80,000 | $0 | $80,000 | $80,000 |
| 2023 | $0 | $75,000 | $0 | $75,000 | $75,000 |
| 2022 | $0 | $75,000 | $0 | $75,000 | $75,000 |
| 2021 | $0 | $7,000 | $0 | $7,000 | $7,000 |
| 2020 | $0 | $7,000 | $0 | $7,000 | $7,000 |
| 2019 | $0 | $7,000 | $0 | $7,000 | $7,000 |
| 2018 | $0 | $7,000 | $0 | $7,000 | $7,000 |
| 2017 | $0 | $10,000 | $0 | $10,000 | $10,000 |
| 2016 | $0 | $10,000 | $0 | $10,000 | $10,000 |
| 2015 | $0 | $30,000 | $0 | $30,000 | $30,000 |
| 2014 | $0 | $30,000 | $0 | $30,000 | $30,000 |
| 2013 | $0 | $30,000 | $0 | $30,000 | $30,000 |
| 2012 | $0 | $30,000 | $0 | $30,000 | $30,000 |
| 2011 | $0 | $30,000 | $0 | $30,000 | $30,000 |
| 2010 | $0 | $30,000 | $0 | $30,000 | $30,000 |
| 2009 | $0 | $35,000 | $0 | $35,000 | $35,000 |
| 2008 | $0 | $31,250 | $0 | $31,250 | $31,250 |
| 2007 | $0 | $30,000 | $0 | $30,000 | $30,000 |
Deed and Sales History
| 1 | 06/21/2018 | WD | Warranty Deed | UNSOELD, OLAF | NELSON, J ROGER | | | $16,500.00 | 34649 | 4446682 |
| 2 | 09/01/1978 | OTHER | Other - Misc. Documents | Unknown | UNSOELD, OLAF | | | $0.00 | 84516 | 339754 |
Payout Agreement
| No payout information available.. |