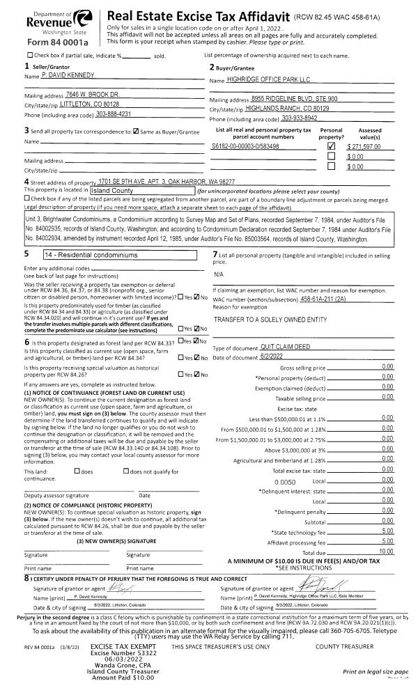
Property
Account |
| Property ID: | 166493 | Abbreviated Legal Description: | 24 - BG NWCR SEC 29 E1331 .43' TO NECR NW NW S152.93' E31.61' TPB N37*E75.26' ALG CUR/R 45.99' S48*E15.12' ALG CUR/R 62.71' W130.87' TPB EX DITCH |
| Geographic ID: | R33229-512-1350 | Agent Code: | |
| Type: | Real | | |
| Tax Area: | 599 - APPRAISER-Stan/Cam Schl Dist, Special Dist, vacant & 50 acres or less | Land Use Code | 91 |
| Open Space: | N | DFL | N |
| Historic Property: | N | Remodel Property: | N |
| Multi-Family Redevelopment: | N | | |
| Township: | 32 | Section: | 29 |
| Range: | R3 |
Location |
| Address: | | Mapsco: | |
| Neighborhood: | Cycle 5 | Map ID: | 986 |
| Neighborhood CD: | 5 |
Owner |
| Name: | NELSON, J ROGER | Owner ID: | 265245 |
| Mailing Address: | APRIL R NELSON 630 SUNRISE BLVD CAMANO ISLAND, WA 98282 | % Ownership: | 100.0000000000% |
| | | Exemptions: | |
Taxes and Assessment Details
Values
| (+) Improvement Homesite Value: | + | $0 | |
| (+) Improvement Non-Homesite Value: | + | $0 | |
| (+) Land Homesite Value: | + | $0 | |
| (+) Land Non-Homesite Value: | + | $1,000 | |
| (+) Curr Use (HS): | + | $0 | $0 |
| (+) Curr Use (NHS): | + | $0 | $0 |
| | | -------------------------- | |
| (=) Market Value: | = | $1,000 | |
| (–) Productivity Loss: | – | $0 | |
| | | -------------------------- | |
| (=) Subtotal: | = | $1,000 | |
| (+) Senior Appraised Value: | + | $0 | |
| (+) Non-Senior Appraised Value: | + | $1,000 | |
| | | -------------------------- | |
| (=) Total Appraised Value: | = | $1,000 | |
| (–) Senior Exemption Loss: | – | $0 | |
| (–) Exemption Loss: | – | $0 | |
| | | -------------------------- | |
| (=) Taxable Value: | = | $1,000 | |
Taxing Jurisdiction
| Owner: | NELSON, J ROGER | | |
| % Ownership: | 100.0000000000% | | |
| Total Value: | $1,000 | | |
| Tax Area: | 599 - APPRAISER-Stan/Cam Schl Dist, Special Dist, vacant & 50 acres or less |
| CF | Conservation Futures | 0.0316035091 | $1,000 | $1,000 | $0.03 | | |
| EMS1 | Fire & Rescue Dist #1 Camano GEN (EMS) | 0.3677864386 | $1,000 | $1,000 | $0.37 | | |
| CE | County Current Expense | 0.3708482477 | $1,000 | $1,000 | $0.37 | | |
| CR | County Roads | 0.4584763726 | $1,000 | $1,000 | $0.46 | | |
| LCIB | Library Sno-Isle BOND (Camano Island) | 0.0396325772 | $1,000 | $1,000 | $0.04 | | |
| LIB | Library Sno-Isle GEN | 0.3153421757 | $1,000 | $1,000 | $0.32 | | |
| SCH205_401 | School 205-401 Enrichment | 1.2698420524 | $1,000 | $1,000 | $1.27 | | |
| SCH205BOND | School 205-401 BOND | 0.9396497583 | $1,000 | $1,000 | $0.94 | | |
| ST | State School | 1.3035497053 | $1,000 | $1,000 | $1.30 | | |
| ST2 | State School Part 2 | 0.8169543533 | $1,000 | $1,000 | $0.82 | | |
| | Total Tax Rate: | 5.9136851902 | | | | | |
| | | | | Taxes w/Current Exemptions: | $5.92 | | |
| | | | | Taxes w/o Exemptions: | $5.92 | | |
Improvement / Building
Sketch
| No sketches available for this property. |
Property Image
Land
| 1 | 54 | WASTE LAND | 0.1100 | 4791.60 | 0.00 | 0.00 | 1.00 | $1,000 | $0 |
Roll Value History
| 2026 | N/A | N/A | N/A | N/A | N/A |
| 2025 | $0 | $1,000 | $0 | $1,000 | $1,000 |
| 2024 | $0 | $1,000 | $0 | $1,000 | $1,000 |
| 2023 | $0 | $1,000 | $0 | $1,000 | $1,000 |
| 2022 | $0 | $1,000 | $0 | $1,000 | $1,000 |
| 2021 | $0 | $1,000 | $0 | $1,000 | $1,000 |
| 2020 | $0 | $1,000 | $0 | $1,000 | $1,000 |
| 2019 | $0 | $1,000 | $0 | $1,000 | $1,000 |
| 2018 | $0 | $1,000 | $0 | $1,000 | $1,000 |
| 2017 | $0 | $1,000 | $0 | $1,000 | $1,000 |
| 2016 | $0 | $1,000 | $0 | $1,000 | $1,000 |
| 2015 | $0 | $1,000 | $0 | $1,000 | $1,000 |
| 2014 | $0 | $1,000 | $0 | $1,000 | $1,000 |
| 2013 | $0 | $1,000 | $0 | $1,000 | $1,000 |
| 2012 | $0 | $1,000 | $0 | $1,000 | $1,000 |
| 2011 | $0 | $1,000 | $0 | $1,000 | $1,000 |
| 2010 | $0 | $1,000 | $0 | $1,000 | $1,000 |
| 2009 | $0 | $1,000 | $0 | $1,000 | $1,000 |
| 2008 | $0 | $1,000 | $0 | $1,000 | $1,000 |
| 2007 | $0 | $1,000 | $0 | $1,000 | $1,000 |
Deed and Sales History
| 1 | 04/17/2018 | WD | Warranty Deed | HAGSTROM TRUSTEE UNDIV 1/2 INT, RICHARD E | NELSON, J ROGER | | | $41,600.00 | 33764 | 4442971 |
|   | |
| 2 | 12/18/2012 | QCD | Quit Claim Deed | HAGSTROM TRUSTEE UNDIV 1/2 INT, RICHARD E | HAGSTROM TRUSTEE UNDIV 1/2 INT, RICHARD E | | | $0.00 | 10075 | 4331139 |
| 3 | 03/28/2011 | QCD | Quit Claim Deed | HAGSTROM, RICHARD E | HAGSTROM TRUSTEE UNDIV 1/2 INT, RICHARD E | | | $0.00 | 4089 | 4293442 |
| 4 | 01/01/1988 | QCD | Quit Claim Deed | HAGSTROM, THERESA M | HAGSTROM, RICHARD E | | | $0.00 | 80549 | 88002316 |
| 5 | 01/01/1900 | OTHER | Other - Misc. Documents | Unknown | HAGSTROM, THERESA M | | | $0.00 | 0 | 0 |
Payout Agreement
| No payout information available.. |