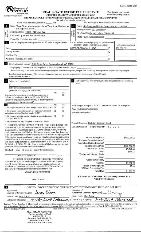
Property
Account |
| Property ID: | 166876 | Abbreviated Legal Description: | 2 - E1/2 OF S1/2 OF S1/2 OF NW NE EX RD TGW & SUB EAS |
| Geographic ID: | R33230-417-3650 | Agent Code: | |
| Type: | Real | | |
| Tax Area: | 592 - APPRAISER-Stan/Cam Schl Dist, Special Dist, improved, greater than 1 acre | Land Use Code | 11 |
| Open Space: | N | DFL | N |
| Historic Property: | N | Remodel Property: | N |
| Multi-Family Redevelopment: | N | | |
| Township: | 32 | Section: | 30 |
| Range: | R3 |
Location |
| Address: | | Mapsco: | |
| Neighborhood: | North Camano | Map ID: | 991 |
| Neighborhood CD: | 06-C |
Owner |
| Name: | ROBERTS, CHRISTOPHER WILLIAM | Owner ID: | 298064 |
| Mailing Address: | ALISHA MARIE ROBERTS 7285 ARROWHEAD RD CAMANO ISLAND, WA 98282 | % Ownership: | 100.0000000000% |
| | | Exemptions: | |
Taxes and Assessment Details
Values
| (+) Improvement Homesite Value: | + | $0 | |
| (+) Improvement Non-Homesite Value: | + | $418,528 | |
| (+) Land Homesite Value: | + | $0 | |
| (+) Land Non-Homesite Value: | + | $330,000 | |
| (+) Curr Use (HS): | + | $0 | $0 |
| (+) Curr Use (NHS): | + | $0 | $0 |
| | | -------------------------- | |
| (=) Market Value: | = | $748,528 | |
| (–) Productivity Loss: | – | $0 | |
| | | -------------------------- | |
| (=) Subtotal: | = | $748,528 | |
| (+) Senior Appraised Value: | + | $0 | |
| (+) Non-Senior Appraised Value: | + | $748,528 | |
| | | -------------------------- | |
| (=) Total Appraised Value: | = | $748,528 | |
| (–) Senior Exemption Loss: | – | $0 | |
| (–) Exemption Loss: | – | $0 | |
| | | -------------------------- | |
| (=) Taxable Value: | = | $748,528 | |
Taxing Jurisdiction
| Owner: | ROBERTS, CHRISTOPHER WILLIAM | | |
| % Ownership: | 100.0000000000% | | |
| Total Value: | $748,528 | | |
| Tax Area: | 592 - APPRAISER-Stan/Cam Schl Dist, Special Dist, improved, greater than 1 acre |
| CF | Conservation Futures | 0.0316035091 | $748,528 | $748,528 | $23.66 | | |
| EMS1 | Fire & Rescue Dist #1 Camano GEN (EMS) | 0.3677864386 | $748,528 | $748,528 | $275.30 | | |
| FIRE1 | Fire & Rescue Dist #1 Camano GEN | 1.2502910536 | $748,528 | $748,528 | $935.88 | | |
| FIRE1BOND | Fire & Rescue Dist #1 Camano BOND | 0.1570001679 | $748,528 | $748,528 | $117.52 | | |
| CE | County Current Expense | 0.3708482477 | $748,528 | $748,528 | $277.59 | | |
| CR | County Roads | 0.4584763726 | $748,528 | $748,528 | $343.18 | | |
| LCIB | Library Sno-Isle BOND (Camano Island) | 0.0396325772 | $748,528 | $748,528 | $29.67 | | |
| LIB | Library Sno-Isle GEN | 0.3153421757 | $748,528 | $748,528 | $236.04 | | |
| SCH205_401 | School 205-401 Enrichment | 1.2698420524 | $748,528 | $748,528 | $950.51 | | |
| SCH205BOND | School 205-401 BOND | 0.9396497583 | $748,528 | $748,528 | $703.35 | | |
| ST | State School | 1.3035497053 | $748,528 | $748,528 | $975.74 | | |
| ST2 | State School Part 2 | 0.8169543533 | $748,528 | $748,528 | $611.51 | | |
| | Total Tax Rate: | 7.3209764117 | | | | | |
| | | | | Taxes w/Current Exemptions: | $5,479.95 | | |
| | | | | Taxes w/o Exemptions: | $5,479.95 | | |
Improvement / Building
| Improvement #1: | RESIDENTIAL | State Code: | Y | 2253.0 sqft | Value: | $418,528 |
| Bathrooms: | 2 | Bedrooms: | 3 | | Ceiling: | DRYWALL PAINTED | Cooling: | HEAT PUMP/CONV/V | | Exterior Wall/Cover: | CEMENT FIBER | Floor Covering: | HARDWOOD/CARP 20-80 | | Floor Structure: | WOOD W/SUBFLOOR | Foundation: | CONCRETE | | Interior Finish: | DRYWALL PAINT | Plumbing Fixture Cnt: | 14 | | Roof Slope: | 4" IN 12" | Roof Structure/Cover: | CJ ASPHALT |
|
| | Type | Description | Class CD | Sub Class CD | Year Built | Area |
| | BAS | BASE/MAIN FLOOR | 3 | 0 | 2020 | 2253.0 |
| | AGR | ATTACHED GARAGE | 3 | 0 | 2020 | 576.0 |
| | CPD | OPEN CARPORT DIRT FLOOR | 3 | 0 | 2020 | 256.0 |
| | UTY | STORAGE/UTILITY | 3 | 0 | 2020 | 128.0 |
| | OWC | OPEN WOOD PORCH W/STEPS/ROOF/C | 3 | 0 | 2020 | 436.0 |
| | OWC | OPEN WOOD PORCH W/STEPS/ROOF/C | 3 | 0 | 2020 | 83.0 |
Sketch
Property Image
Land
| 1 | 32 | AC (03.01-09.99) | 5.0000 | 0.00 | 0.00 | 0.00 | 1.00 | $330,000 | $0 |
Roll Value History
| 2026 | N/A | N/A | N/A | N/A | N/A |
| 2025 | $418,528 | $330,000 | $0 | $748,528 | $748,528 |
| 2024 | $421,875 | $340,000 | $0 | $761,875 | $761,875 |
| 2023 | $425,225 | $320,000 | $0 | $745,225 | $745,225 |
| 2022 | $389,087 | $300,000 | $0 | $689,087 | $689,087 |
| 2021 | $344,483 | $190,000 | $0 | $534,483 | $534,483 |
| 2020 | $258,735 | $190,000 | $0 | $448,735 | $448,735 |
| 2019 | $0 | $140,000 | $0 | $140,000 | $140,000 |
| 2018 | $0 | $140,000 | $0 | $140,000 | $140,000 |
| 2017 | $0 | $140,000 | $0 | $140,000 | $140,000 |
| 2016 | $0 | $90,000 | $0 | $90,000 | $90,000 |
| 2015 | $0 | $100,000 | $0 | $100,000 | $100,000 |
| 2014 | $0 | $100,000 | $0 | $100,000 | $100,000 |
| 2013 | $0 | $120,000 | $0 | $120,000 | $120,000 |
| 2012 | $0 | $120,000 | $0 | $120,000 | $120,000 |
| 2011 | $0 | $120,000 | $0 | $120,000 | $120,000 |
| 2010 | $0 | $120,000 | $0 | $120,000 | $120,000 |
| 2009 | $0 | $150,000 | $0 | $150,000 | $150,000 |
| 2008 | $0 | $175,000 | $0 | $175,000 | $175,000 |
| 2007 | $0 | $160,000 | $0 | $160,000 | $160,000 |
Deed and Sales History
| 1 | 01/26/2021 | QCD | Quit Claim Deed | ROBERTS, CHRISTOPHER W | ROBERTS, CHRISTOPHER WILLIAM | | | $0.00 | 46897 | 4510550 |
| 2 | 06/17/2019 | QCD | Quit Claim Deed | ROBERTS, ALISHA | ROBERTS, CHRISTOPHER W | | | $0.00 | 39827 | 4469186 |
| 3 | 06/17/2019 | WD | Warranty Deed | MACFARLANE, CYNTHIA ELLEN | ROBERTS, CHRISTOPHER W | | | $133,000.00 | 39826 | 4469185 |
| 4 | 12/24/2015 | TOD | Transfer On Death Deed | MACFARLANE, ROBERT R | MACFARLANE, CYNTHIA ELLEN | | | | 87249 | |
| 5 | 03/01/1982 | EXECUTORD | Executor Deed | MACFARLANE, ROY H | MACFARLANE, ROBERT R | | | $5,400.00 | 20682 | 394497 |
| 6 | 01/01/1900 | OTHER | Other - Misc. Documents | Unknown | MACFARLANE, ROY H | | | $0.00 | 0 | 0 |
Payout Agreement
| No payout information available.. |