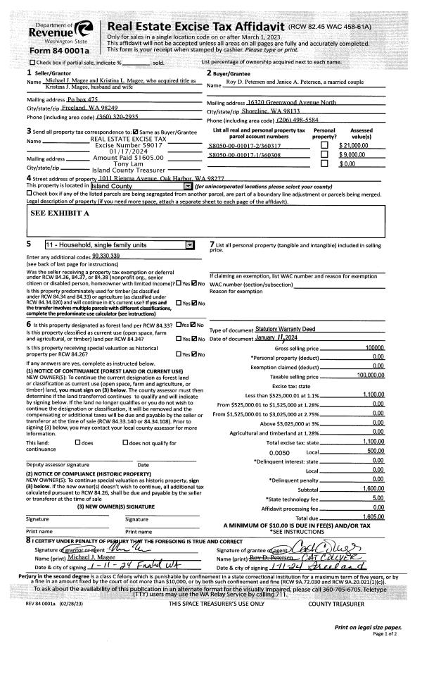
Property
Account |
| Property ID: | 166983 | Abbreviated Legal Description: | 36 - E/2 S/2 S/2 NE NE NW EX E30' SUB TO EZ |
| Geographic ID: | R33230-475-2520 | Agent Code: | |
| Type: | Real | | |
| Tax Area: | 592 - APPRAISER-Stan/Cam Schl Dist, Special Dist, improved, greater than 1 acre | Land Use Code | 11 |
| Open Space: | N | DFL | N |
| Historic Property: | N | Remodel Property: | N |
| Multi-Family Redevelopment: | N | | |
| Township: | 32 | Section: | 30 |
| Range: | R3 |
Location |
| Address: | 757 ARROWHEAD RD CAMANO ISLAND, WA 98282 | Mapsco: | |
| Neighborhood: | North Camano | Map ID: | 990 |
| Neighborhood CD: | 06-C |
Owner |
| Name: | DEMPSEY, SEAN R | Owner ID: | 289433 |
| Mailing Address: | KALI L DEMPSEY 757 ARROWHEAD RD CAMANO ISLAND, WA 98282 | % Ownership: | 100.0000000000% |
| | | Exemptions: | |
Taxes and Assessment Details
Values
| (+) Improvement Homesite Value: | + | $0 | |
| (+) Improvement Non-Homesite Value: | + | $603,070 | |
| (+) Land Homesite Value: | + | $0 | |
| (+) Land Non-Homesite Value: | + | $305,000 | |
| (+) Curr Use (HS): | + | $0 | $0 |
| (+) Curr Use (NHS): | + | $0 | $0 |
| | | -------------------------- | |
| (=) Market Value: | = | $908,070 | |
| (–) Productivity Loss: | – | $0 | |
| | | -------------------------- | |
| (=) Subtotal: | = | $908,070 | |
| (+) Senior Appraised Value: | + | $0 | |
| (+) Non-Senior Appraised Value: | + | $908,070 | |
| | | -------------------------- | |
| (=) Total Appraised Value: | = | $908,070 | |
| (–) Senior Exemption Loss: | – | $0 | |
| (–) Exemption Loss: | – | $0 | |
| | | -------------------------- | |
| (=) Taxable Value: | = | $908,070 | |
Taxing Jurisdiction
| Owner: | DEMPSEY, SEAN R | | |
| % Ownership: | 100.0000000000% | | |
| Total Value: | $908,070 | | |
| Tax Area: | 592 - APPRAISER-Stan/Cam Schl Dist, Special Dist, improved, greater than 1 acre |
| CF | Conservation Futures | 0.0316035091 | $908,070 | $908,070 | $28.70 | | |
| EMS1 | Fire & Rescue Dist #1 Camano GEN (EMS) | 0.3677864386 | $908,070 | $908,070 | $333.98 | | |
| FIRE1 | Fire & Rescue Dist #1 Camano GEN | 1.2502910536 | $908,070 | $908,070 | $1,135.35 | | |
| FIRE1BOND | Fire & Rescue Dist #1 Camano BOND | 0.1570001679 | $908,070 | $908,070 | $142.57 | | |
| CE | County Current Expense | 0.3708482477 | $908,070 | $908,070 | $336.76 | | |
| CR | County Roads | 0.4584763726 | $908,070 | $908,070 | $416.33 | | |
| LCIB | Library Sno-Isle BOND (Camano Island) | 0.0396325772 | $908,070 | $908,070 | $35.99 | | |
| LIB | Library Sno-Isle GEN | 0.3153421757 | $908,070 | $908,070 | $286.35 | | |
| SCH205_401 | School 205-401 Enrichment | 1.2698420524 | $908,070 | $908,070 | $1,153.11 | | |
| SCH205BOND | School 205-401 BOND | 0.9396497583 | $908,070 | $908,070 | $853.27 | | |
| ST | State School | 1.3035497053 | $908,070 | $908,070 | $1,183.71 | | |
| ST2 | State School Part 2 | 0.8169543533 | $908,070 | $908,070 | $741.85 | | |
| | Total Tax Rate: | 7.3209764117 | | | | | |
| | | | | Taxes w/Current Exemptions: | $6,647.97 | | |
| | | | | Taxes w/o Exemptions: | $6,647.97 | | |
Improvement / Building
| Improvement #1: | RESIDENTIAL | State Code: | Y | 2760.0 sqft | Value: | $603,070 |
| Bathrooms: | 2.5 | Bedrooms: | 3 | | Ceiling: | DRYWALL PAINTED | Cooling: | HEAT PUMP/CONV/V | | Exterior Wall/Cover: | CEMENT FIBER | Floor Covering: | HARDWOOD/CARP 20-80 | | Floor Structure: | WOOD W/SUBFLOOR | Foundation: | CONCRETE | | Interior Finish: | DRYWALL PAINT | Plumbing Fixture Cnt: | 11 | | Roof Slope: | 6" IN 12" | Roof Structure/Cover: | CJ ASPHALT |
|
| | Type | Description | Class CD | Sub Class CD | Year Built | Area |
| | BAS | BASE/MAIN FLOOR | 4 | 0 | 2018 | 2760.0 |
| | AGR | ATTACHED GARAGE | 4 | 0 | 2018 | 743.0 |
| | OP4 | OPEN PORCH W/CEILING-ROOF | 4 | 0 | 2018 | 160.0 |
| | OP4 | OPEN PORCH W/CEILING-ROOF | 4 | 0 | 2018 | 180.0 |
| | UTY | STORAGE/UTILITY | 4 | 0 | 2018 | 220.0 |
Sketch
Property Image
Land
| 1 | 17 | AC (01.01-02.00) | 0.0000 | 0.00 | 0.00 | 0.00 | 1.00 | $305,000 | $0 |
Roll Value History
| 2026 | N/A | N/A | N/A | N/A | N/A |
| 2025 | $603,070 | $305,000 | $0 | $908,070 | $908,070 |
| 2024 | $607,895 | $290,000 | $0 | $897,895 | $897,895 |
| 2023 | $612,719 | $290,000 | $0 | $902,719 | $902,719 |
| 2022 | $541,050 | $260,000 | $0 | $801,050 | $801,050 |
| 2021 | $474,198 | $230,000 | $0 | $704,198 | $704,198 |
| 2020 | $462,423 | $150,000 | $0 | $612,423 | $612,423 |
| 2019 | $365,390 | $180,000 | $0 | $545,390 | $545,390 |
| 2018 | $27,061 | $90,000 | $0 | $117,061 | $117,061 |
| 2017 | $1 | $90,000 | $0 | $90,001 | $90,001 |
| 2016 | $1 | $90,000 | $0 | $90,001 | $90,001 |
| 2015 | $1 | $100,000 | $0 | $100,001 | $100,001 |
| 2014 | $1 | $100,000 | $0 | $100,001 | $100,001 |
| 2013 | $1 | $100,000 | $0 | $100,001 | $100,001 |
| 2012 | $1 | $100,000 | $0 | $100,001 | $100,001 |
| 2011 | $1 | $125,000 | $0 | $125,001 | $1 |
| 2010 | $13,700 | $125,000 | $0 | $138,700 | $0 |
| 2009 | $14,085 | $150,000 | $0 | $164,085 | $0 |
| 2008 | $14,085 | $125,000 | $0 | $139,085 | $0 |
| 2007 | $14,085 | $125,000 | $0 | $139,085 | $0 |
Deed and Sales History
| 1 | 04/23/2019 | WD | Warranty Deed | STACK DESIGN & CONSTRUCTION, LLC | DEMPSEY, SEAN R | | | $632,000.00 | 38170 | 4461844 |
| 2 | 05/02/2018 | WD | Warranty Deed | DIMITROV, STEFAN | STACK DESIGN & CONSTRUCTION, LLC | | | $142,000.00 | 33971 | 4443828 |
| 3 | 06/14/2017 | TRUSTEED | Trustee's Deed | KOFOED, HANS F | DIMITROV, STEFAN | | | $0.00 | 29839 | 4424665 |
| 4 | 01/01/1900 | OTHER | Other - Misc. Documents | Unknown | KOFOED, HANS F | | | $0.00 | 0 | 0 |
Payout Agreement
| No payout information available.. |