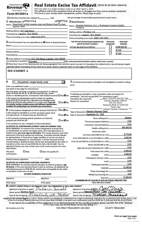
Property
Account |
| Property ID: | 167394 | Abbreviated Legal Description: | 46 - SW SE NE SE EX N30' |
| Geographic ID: | R33231-148-4820 | Agent Code: | |
| Type: | Real | | |
| Tax Area: | 592 - APPRAISER-Stan/Cam Schl Dist, Special Dist, improved, greater than 1 acre | Land Use Code | 11 |
| Open Space: | N | DFL | N |
| Historic Property: | N | Remodel Property: | N |
| Multi-Family Redevelopment: | N | | |
| Township: | 32 | Section: | 31 |
| Range: | R3 |
Location |
| Address: | 358 DURR RD CAMANO ISLAND, WA 98282 | Mapsco: | |
| Neighborhood: | Cycle 5 | Map ID: | 993 |
| Neighborhood CD: | 5 |
Owner |
| Name: | DARBY SR, RAY ALAN | Owner ID: | 314693 |
| Mailing Address: | JULIE ANN RAPELJE 358 DURR RD CAMANO ISLAND, WA 98282 | % Ownership: | 100.0000000000% |
| | | Exemptions: | |
Taxes and Assessment Details
Values
| (+) Improvement Homesite Value: | + | $0 | |
| (+) Improvement Non-Homesite Value: | + | $288,988 | |
| (+) Land Homesite Value: | + | $0 | |
| (+) Land Non-Homesite Value: | + | $310,000 | |
| (+) Curr Use (HS): | + | $0 | $0 |
| (+) Curr Use (NHS): | + | $0 | $0 |
| | | -------------------------- | |
| (=) Market Value: | = | $598,988 | |
| (–) Productivity Loss: | – | $0 | |
| | | -------------------------- | |
| (=) Subtotal: | = | $598,988 | |
| (+) Senior Appraised Value: | + | $0 | |
| (+) Non-Senior Appraised Value: | + | $598,988 | |
| | | -------------------------- | |
| (=) Total Appraised Value: | = | $598,988 | |
| (–) Senior Exemption Loss: | – | $0 | |
| (–) Exemption Loss: | – | $0 | |
| | | -------------------------- | |
| (=) Taxable Value: | = | $598,988 | |
Taxing Jurisdiction
| Owner: | DARBY SR, RAY ALAN | | |
| % Ownership: | 100.0000000000% | | |
| Total Value: | $598,988 | | |
| Tax Area: | 592 - APPRAISER-Stan/Cam Schl Dist, Special Dist, improved, greater than 1 acre |
| CF | Conservation Futures | 0.0316035091 | $598,988 | $598,988 | $18.93 | | |
| EMS1 | Fire & Rescue Dist #1 Camano GEN (EMS) | 0.3677864386 | $598,988 | $598,988 | $220.30 | | |
| FIRE1 | Fire & Rescue Dist #1 Camano GEN | 1.2502910536 | $598,988 | $598,988 | $748.91 | | |
| FIRE1BOND | Fire & Rescue Dist #1 Camano BOND | 0.1570001679 | $598,988 | $598,988 | $94.04 | | |
| CE | County Current Expense | 0.3708482477 | $598,988 | $598,988 | $222.13 | | |
| CR | County Roads | 0.4584763726 | $598,988 | $598,988 | $274.62 | | |
| LCIB | Library Sno-Isle BOND (Camano Island) | 0.0396325772 | $598,988 | $598,988 | $23.74 | | |
| LIB | Library Sno-Isle GEN | 0.3153421757 | $598,988 | $598,988 | $188.89 | | |
| SCH205_401 | School 205-401 Enrichment | 1.2698420524 | $598,988 | $598,988 | $760.62 | | |
| SCH205BOND | School 205-401 BOND | 0.9396497583 | $598,988 | $598,988 | $562.84 | | |
| ST | State School | 1.3035497053 | $598,988 | $598,988 | $780.81 | | |
| ST2 | State School Part 2 | 0.8169543533 | $598,988 | $598,988 | $489.35 | | |
| | Total Tax Rate: | 7.3209764117 | | | | | |
| | | | | Taxes w/Current Exemptions: | $4,385.18 | | |
| | | | | Taxes w/o Exemptions: | $4,385.18 | | |
Improvement / Building
| Improvement #1: | RESIDENTIAL | State Code: | Y | 1602.0 sqft | Value: | $288,988 |
| Bathrooms: | 2 | Bedrooms: | 2 | | Ceiling: | DRYWALL PAINTED | Cooling: | HEAT PUMP/CONV/V | | Exterior Wall/Cover: | WOOD SIDING | Floor Covering: | VINYL 100% | | Floor Structure: | WOOD W/SUBFLOOR | Foundation: | CONCRETE | | Interior Finish: | DRYWALL PAINT | Plumbing Fixture Cnt: | 10 | | Roof Slope: | 5" IN 12" | Roof Structure/Cover: | CJ ASPHALT |
|
| | Type | Description | Class CD | Sub Class CD | Year Built | Area |
| | BAS | BASE/MAIN FLOOR | 3 | 0 | 2001 | 1602.0 |
| | OWP | OPEN WOOD PORCH W/STEPS | 3 | 0 | 2001 | 216.0 |
| | UTY | STORAGE/UTILITY | 3 | 0 | 2001 | 80.0 |
Sketch
Property Image
Land
| 1 | 18 | AC (02.01-03.00) | 0.0000 | 0.00 | 0.00 | 0.00 | 1.00 | $310,000 | $0 |
Roll Value History
| 2026 | N/A | N/A | N/A | N/A | N/A |
| 2025 | $288,988 | $310,000 | $0 | $598,988 | $598,988 |
| 2024 | $276,742 | $300,000 | $0 | $576,742 | $576,742 |
| 2023 | $279,950 | $300,000 | $0 | $579,950 | $579,950 |
| 2022 | $256,413 | $260,000 | $0 | $516,413 | $516,413 |
| 2021 | $215,184 | $190,000 | $0 | $405,184 | $405,184 |
| 2020 | $209,663 | $150,000 | $0 | $359,663 | $359,663 |
| 2019 | $153,371 | $190,000 | $0 | $343,371 | $343,371 |
| 2018 | $153,801 | $180,000 | $0 | $333,801 | $333,801 |
| 2017 | $154,659 | $135,000 | $0 | $289,659 | $289,659 |
| 2016 | $156,378 | $135,000 | $0 | $291,378 | $291,378 |
| 2015 | $155,749 | $100,000 | $0 | $255,749 | $255,749 |
| 2014 | $157,540 | $100,000 | $0 | $257,540 | $257,540 |
| 2013 | $159,330 | $80,000 | $0 | $239,330 | $239,330 |
| 2012 | $161,121 | $80,000 | $0 | $241,121 | $241,121 |
| 2011 | $162,911 | $100,000 | $0 | $262,911 | $262,911 |
| 2010 | $166,107 | $100,000 | $0 | $266,107 | $266,107 |
| 2009 | $164,665 | $100,000 | $0 | $264,665 | $264,665 |
| 2008 | $168,207 | $100,000 | $0 | $268,207 | $268,207 |
| 2007 | $168,336 | $100,000 | $0 | $268,336 | $268,336 |
Deed and Sales History
| 1 | 11/20/2024 | WD | Warranty Deed | ENGLE, LANCE | DARBY SR, RAY ALAN | | | $725,000.00 | 61944 | 4579861 |
| 2 | 05/09/2014 | WD | Warranty Deed | KONNERUP, TRAVERS E | ENGLE, LANCE | | | $269,000.00 | 15273 | 4359351 |
| 3 | 05/04/2010 | WD | Warranty Deed | PEARSON, JACK J | KONNERUP, TRAVIS E | | | $236,175.00 | 1113 | 4273519 |
| 4 | 12/01/1995 | DECREE | Divorce Decree/Legal Separation | PEARSON, JACK J | PEARSON, JACK J | | | $0.00 | 60158 | 96000723 |
| 5 | 09/01/1987 | REC | Real Estate Contract | GLANCY, DONALD L | PEARSON, JACK J | | | $12,087.00 | 73091 | 87013656 |
| 6 | 01/01/1900 | OTHER | Other - Misc. Documents | Unknown | GLANCY, DONALD L | | | $0.00 | 0 | 0 |
Payout Agreement
| No payout information available.. |