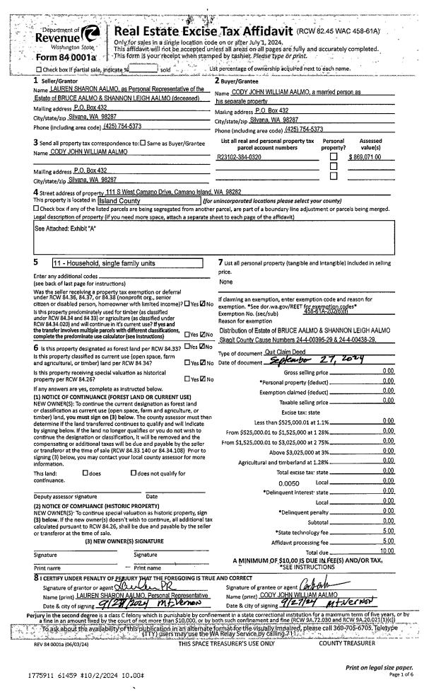
Property
Account |
| Property ID: | 167456 | Abbreviated Legal Description: | 1.6900 Acres ins Section 31s Township 32s Range R3s LOT A BLA 437-21 AF#4540779;s |
| Geographic ID: | R33231-184-2850 | Agent Code: | |
| Type: | Real | | |
| Tax Area: | 592 - APPRAISER-Stan/Cam Schl Dist, Special Dist, improved, greater than 1 acre | Land Use Code | 11 |
| Open Space: | N | DFL | N |
| Historic Property: | N | Remodel Property: | N |
| Multi-Family Redevelopment: | N | | |
| Township: | 32 | Section: | 31 |
| Range: | R3 |
Location |
| Address: | 223 DURR RD CAMANO ISLAND, WA 98282 | Mapsco: | |
| Neighborhood: | Cycle 5 | Map ID: | 993 |
| Neighborhood CD: | 5 |
Owner |
| Name: | TREWIN, JOSHUA | Owner ID: | 310393 |
| Mailing Address: | ERIKA MILLER 223 DURR RD CAMANO ISLAND, WA 98282 | % Ownership: | 100.0000000000% |
| | | Exemptions: | |
Taxes and Assessment Details
Values
| (+) Improvement Homesite Value: | + | $0 | |
| (+) Improvement Non-Homesite Value: | + | $715,612 | |
| (+) Land Homesite Value: | + | $0 | |
| (+) Land Non-Homesite Value: | + | $300,000 | |
| (+) Curr Use (HS): | + | $0 | $0 |
| (+) Curr Use (NHS): | + | $0 | $0 |
| | | -------------------------- | |
| (=) Market Value: | = | $1,015,612 | |
| (–) Productivity Loss: | – | $0 | |
| | | -------------------------- | |
| (=) Subtotal: | = | $1,015,612 | |
| (+) Senior Appraised Value: | + | $0 | |
| (+) Non-Senior Appraised Value: | + | $1,015,612 | |
| | | -------------------------- | |
| (=) Total Appraised Value: | = | $1,015,612 | |
| (–) Senior Exemption Loss: | – | $0 | |
| (–) Exemption Loss: | – | $0 | |
| | | -------------------------- | |
| (=) Taxable Value: | = | $1,015,612 | |
Taxing Jurisdiction
| Owner: | TREWIN, JOSHUA | | |
| % Ownership: | 100.0000000000% | | |
| Total Value: | $1,015,612 | | |
| Tax Area: | 592 - APPRAISER-Stan/Cam Schl Dist, Special Dist, improved, greater than 1 acre |
| CF | Conservation Futures | 0.0316035091 | $1,015,612 | $1,015,612 | $32.10 | | |
| EMS1 | Fire & Rescue Dist #1 Camano GEN (EMS) | 0.3677864386 | $1,015,612 | $1,015,612 | $373.53 | | |
| FIRE1 | Fire & Rescue Dist #1 Camano GEN | 1.2502910536 | $1,015,612 | $1,015,612 | $1,269.81 | | |
| FIRE1BOND | Fire & Rescue Dist #1 Camano BOND | 0.1570001679 | $1,015,612 | $1,015,612 | $159.45 | | |
| CE | County Current Expense | 0.3708482477 | $1,015,612 | $1,015,612 | $376.64 | | |
| CR | County Roads | 0.4584763726 | $1,015,612 | $1,015,612 | $465.63 | | |
| LCIB | Library Sno-Isle BOND (Camano Island) | 0.0396325772 | $1,015,612 | $1,015,612 | $40.25 | | |
| LIB | Library Sno-Isle GEN | 0.3153421757 | $1,015,612 | $1,015,612 | $320.27 | | |
| SCH205_401 | School 205-401 Enrichment | 1.2698420524 | $1,015,612 | $1,015,612 | $1,289.67 | | |
| SCH205BOND | School 205-401 BOND | 0.9396497583 | $1,015,612 | $1,015,612 | $954.32 | | |
| ST | State School | 1.3035497053 | $1,015,612 | $1,015,612 | $1,323.90 | | |
| ST2 | State School Part 2 | 0.8169543533 | $1,015,612 | $1,015,612 | $829.71 | | |
| | Total Tax Rate: | 7.3209764117 | | | | | |
| | | | | Taxes w/Current Exemptions: | $7,435.28 | | |
| | | | | Taxes w/o Exemptions: | $7,435.28 | | |
Improvement / Building
| Improvement #1: | RESIDENTIAL | State Code: | Y | 2077.0 sqft | Value: | $490,645 |
| Bathrooms: | 2.5 | Bedrooms: | 2 | | Ceiling: | DRYWALL PAINTED | Cooling: | HEAT PUMP/CONV/V | | Exterior Wall/Cover: | CEMENT FIBER | Floor Covering: | CARPET/VINYL 60-40 | | Floor Structure: | WOOD W/SUBFLOOR | Foundation: | CONCRETE | | Interior Finish: | DRYWALL PAINT | Plumbing Fixture Cnt: | 14 | | Roof Slope: | 6" IN 12" | Roof Structure/Cover: | CJ ASPHALT |
|
| | Type | Description | Class CD | Sub Class CD | Year Built | Area |
| | BAS | BASE/MAIN FLOOR | 4 | 0 | 2020 | 2077.0 |
| | AGR | ATTACHED GARAGE | 4 | 0 | 2020 | 529.0 |
| | OP4 | OPEN PORCH W/CEILING-ROOF | 4 | 0 | 2020 | 96.0 |
| | OWP | OPEN WOOD PORCH W/STEPS | 4 | 0 | 2020 | 240.0 |
| Improvement #2: | RESIDENTIAL | State Code: | Y | 708.0 sqft | Value: | $224,967 |
| Bathrooms: | 1 | Bedrooms: | 1 | | Ceiling: | DRYWALL PAINTED | Cooling: | HEAT PUMP/CONV/V | | Exterior Wall/Cover: | CEMENT FIBER | Floor Covering: | CARPET/VINYL 60-40 | | Floor Structure: | WOOD W/SUBFLOOR | Foundation: | CONCRETE | | Interior Finish: | DRYWALL PAINT | Plumbing Fixture Cnt: | 6 | | Roof Slope: | 10" IN 12" | Roof Structure/Cover: | CJ ASPHALT |
|
| | Type | Description | Class CD | Sub Class CD | Year Built | Area |
| | BAS | BASE/MAIN FLOOR | 3 | 0 | 2020 | 708.0 |
| | BIG | BUILT IN GARAGE | 3 | 0 | 2020 | 912.0 |
| | OWP | OPEN WOOD PORCH W/STEPS | 3 | 0 | 2020 | 144.0 |
Sketch
Property Image
Land
| 1 | 17 | AC (01.01-02.00) | 1.6900 | 73616.40 | 0.00 | 0.00 | 1.00 | $300,000 | $0 |
Roll Value History
| 2026 | N/A | N/A | N/A | N/A | N/A |
| 2025 | $715,612 | $300,000 | $0 | $1,015,612 | $1,015,612 |
| 2024 | $721,336 | $290,000 | $0 | $1,011,336 | $1,011,336 |
| 2023 | $714,802 | $290,000 | $0 | $1,004,802 | $1,004,802 |
| 2022 | $484,992 | $260,000 | $0 | $744,992 | $744,992 |
| 2021 | $297,902 | $100,000 | $0 | $397,902 | $397,902 |
| 2020 | $77,060 | $100,000 | $0 | $177,060 | $177,060 |
| 2019 | $0 | $100,000 | $0 | $100,000 | $100,000 |
| 2018 | $0 | $90,000 | $0 | $90,000 | $90,000 |
| 2017 | $0 | $85,000 | $0 | $85,000 | $85,000 |
| 2016 | $0 | $85,000 | $0 | $85,000 | $85,000 |
| 2015 | $0 | $25,000 | $0 | $25,000 | $25,000 |
| 2014 | $0 | $25,000 | $0 | $25,000 | $25,000 |
| 2013 | $0 | $25,000 | $0 | $25,000 | $25,000 |
| 2012 | $0 | $25,000 | $0 | $25,000 | $25,000 |
| 2011 | $0 | $25,000 | $0 | $25,000 | $25,000 |
| 2010 | $0 | $25,000 | $0 | $25,000 | $25,000 |
| 2009 | $0 | $30,000 | $0 | $30,000 | $30,000 |
| 2008 | $0 | $30,000 | $0 | $30,000 | $30,000 |
| 2007 | $0 | $33,000 | $0 | $33,000 | $33,000 |
Deed and Sales History
| 1 | 10/13/2023 | WD | Warranty Deed | WEBER, JAMES | TREWIN, JOSHUA | | | $1,180,000.00 | 58266 | 4565810 |
| 2 | 02/24/2016 | WD | Warranty Deed | SCALES ET AL, WILLIAM J | WEBER, JAMES | | | $99,500.00 | 23286 | 4394725 |
|   | |
| 3 | 01/03/2006 | DECREE | Divorce Decree/Legal Separation | MCFADDEN, DAVID W | SCALES ET AL, WILLIAM J | | | $0.00 | 60059 | 4159023 |
| 4 | 06/01/1990 | QCD | Quit Claim Deed | SCALES, WILLIAM J | MCFADDEN, DAVID W | | | $0.00 | 4573 | 90015131 |
| 5 | 06/01/1990 | WD | Warranty Deed | MCFADDEN, DAVID W | SCALES, WILLIAM J | | | $10,000.00 | 4572 | 90015130 |
| 6 | 01/01/1900 | OTHER | Other - Misc. Documents | Unknown | MCFADDEN, DAVID W | | | $0.00 | 0 | 0 |
Payout Agreement
| No payout information available.. |