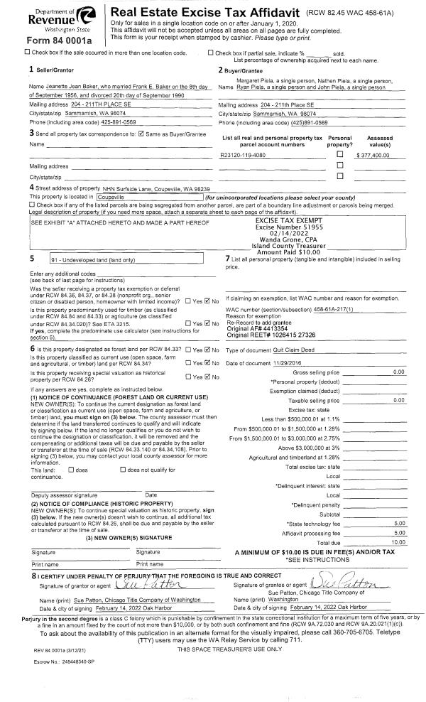
Property
Account |
| Property ID: | 167553 | Abbreviated Legal Description: | 39 - NE SE NE SW EX S30' |
| Geographic ID: | R33231-185-2520 | Agent Code: | |
| Type: | Real | | |
| Tax Area: | 592 - APPRAISER-Stan/Cam Schl Dist, Special Dist, improved, greater than 1 acre | Land Use Code | 11 |
| Open Space: | N | DFL | N |
| Historic Property: | N | Remodel Property: | N |
| Multi-Family Redevelopment: | N | | |
| Township: | 32 | Section: | 31 |
| Range: | R3 |
Location |
| Address: | 179 DURR RD CAMANO ISLAND, WA 98282 | Mapsco: | |
| Neighborhood: | Cycle 5 | Map ID: | 992 |
| Neighborhood CD: | 5 |
Owner |
| Name: | HEDAHL, ANITA ANN | Owner ID: | 302068 |
| Mailing Address: | 179 DURR RD CAMANO ISLAND, WA 98282 | % Ownership: | 100.0000000000% |
| | | Exemptions: | |
Taxes and Assessment Details
Values
| (+) Improvement Homesite Value: | + | $0 | |
| (+) Improvement Non-Homesite Value: | + | $299,387 | |
| (+) Land Homesite Value: | + | $0 | |
| (+) Land Non-Homesite Value: | + | $310,000 | |
| (+) Curr Use (HS): | + | $0 | $0 |
| (+) Curr Use (NHS): | + | $0 | $0 |
| | | -------------------------- | |
| (=) Market Value: | = | $609,387 | |
| (–) Productivity Loss: | – | $0 | |
| | | -------------------------- | |
| (=) Subtotal: | = | $609,387 | |
| (+) Senior Appraised Value: | + | $0 | |
| (+) Non-Senior Appraised Value: | + | $609,387 | |
| | | -------------------------- | |
| (=) Total Appraised Value: | = | $609,387 | |
| (–) Senior Exemption Loss: | – | $0 | |
| (–) Exemption Loss: | – | $0 | |
| | | -------------------------- | |
| (=) Taxable Value: | = | $609,387 | |
Taxing Jurisdiction
| Owner: | HEDAHL, ANITA ANN | | |
| % Ownership: | 100.0000000000% | | |
| Total Value: | $609,387 | | |
| Tax Area: | 592 - APPRAISER-Stan/Cam Schl Dist, Special Dist, improved, greater than 1 acre |
| CF | Conservation Futures | 0.0316035091 | $609,387 | $609,387 | $19.26 | | |
| EMS1 | Fire & Rescue Dist #1 Camano GEN (EMS) | 0.3677864386 | $609,387 | $609,387 | $224.12 | | |
| FIRE1 | Fire & Rescue Dist #1 Camano GEN | 1.2502910536 | $609,387 | $609,387 | $761.91 | | |
| FIRE1BOND | Fire & Rescue Dist #1 Camano BOND | 0.1570001679 | $609,387 | $609,387 | $95.67 | | |
| CE | County Current Expense | 0.3708482477 | $609,387 | $609,387 | $225.99 | | |
| CR | County Roads | 0.4584763726 | $609,387 | $609,387 | $279.39 | | |
| LCIB | Library Sno-Isle BOND (Camano Island) | 0.0396325772 | $609,387 | $609,387 | $24.15 | | |
| LIB | Library Sno-Isle GEN | 0.3153421757 | $609,387 | $609,387 | $192.17 | | |
| SCH205_401 | School 205-401 Enrichment | 1.2698420524 | $609,387 | $609,387 | $773.83 | | |
| SCH205BOND | School 205-401 BOND | 0.9396497583 | $609,387 | $609,387 | $572.61 | | |
| ST | State School | 1.3035497053 | $609,387 | $609,387 | $794.37 | | |
| ST2 | State School Part 2 | 0.8169543533 | $609,387 | $609,387 | $497.84 | | |
| | Total Tax Rate: | 7.3209764117 | | | | | |
| | | | | Taxes w/Current Exemptions: | $4,461.31 | | |
| | | | | Taxes w/o Exemptions: | $4,461.31 | | |
Improvement / Building
| Improvement #1: | RESIDENTIAL | State Code: | Y | 1574.0 sqft | Value: | $299,387 |
| Bathrooms: | 1 | Bedrooms: | 2 | | Ceiling: | DRYWALL PAINTED | Cooling: | HEAT PUMP/CONV/V | | Exterior Wall/Cover: | PLY/HARDBOARD T-111 | Floor Covering: | CARPET/VINYL 60-40 | | Floor Structure: | WOOD W/SUBFLOOR | Foundation: | CONCRETE | | Interior Finish: | DRYWALL PAINT | Plumbing Fixture Cnt: | 8 | | Roof Slope: | 4" IN 12" | Roof Structure/Cover: | CJ ASPHALT |
|
| | Type | Description | Class CD | Sub Class CD | Year Built | Area |
| | BAS | BASE/MAIN FLOOR | 3 | 0 | 1967 | 1574.0 |
| | OWP | OPEN WOOD PORCH W/STEPS | 3 | 0 | 1967 | 383.0 |
| | OWR | OPEN WOOD PORCH W/STEPS/ROOF | 3 | 0 | 1967 | 162.0 |
| | UTY | STORAGE/UTILITY | 3 | 0 | 1967 | 588.0 |
| | oPOL | POLE BARN | 3 | 0 | 1967 | 1728.0 |
| | UTY | STORAGE/UTILITY | 3 | 0 | 1967 | 560.0 |
| | OP1 | OPEN PORCH SLAB | 3 | 0 | 1967 | 400.0 |
Sketch
Property Image
Land
| 1 | 18 | AC (02.01-03.00) | 0.0000 | 0.00 | 0.00 | 0.00 | 1.00 | $310,000 | $0 |
Roll Value History
| 2026 | N/A | N/A | N/A | N/A | N/A |
| 2025 | $299,387 | $310,000 | $0 | $609,387 | $609,387 |
| 2024 | $303,170 | $300,000 | $0 | $603,170 | $603,170 |
| 2023 | $306,949 | $300,000 | $0 | $606,949 | $606,949 |
| 2022 | $284,203 | $260,000 | $0 | $544,203 | $544,203 |
| 2021 | $216,914 | $190,000 | $0 | $406,914 | $406,914 |
| 2020 | $212,805 | $150,000 | $0 | $362,805 | $362,805 |
| 2019 | $165,601 | $190,000 | $0 | $355,601 | $355,601 |
| 2018 | $166,061 | $180,000 | $0 | $346,061 | $346,061 |
| 2017 | $159,945 | $135,000 | $0 | $294,945 | $294,945 |
| 2016 | $161,681 | $135,000 | $0 | $296,681 | $296,681 |
| 2015 | $156,563 | $100,000 | $0 | $256,563 | $256,563 |
| 2014 | $158,289 | $100,000 | $0 | $258,289 | $258,289 |
| 2013 | $160,014 | $80,000 | $0 | $240,014 | $240,014 |
| 2012 | $161,738 | $80,000 | $0 | $241,738 | $241,738 |
| 2011 | $163,464 | $100,000 | $0 | $263,464 | $263,464 |
| 2010 | $160,374 | $100,000 | $0 | $260,374 | $260,374 |
| 2009 | $167,553 | $100,000 | $0 | $267,553 | $267,553 |
| 2008 | $192,584 | $100,000 | $0 | $292,584 | $292,584 |
| 2007 | $196,198 | $100,000 | $0 | $296,198 | $296,198 |
Deed and Sales History
| 1 | 11/10/2021 | QCD | Quit Claim Deed | HEDAHL, KERRY CHARLES | HEDAHL, ANITA ANN | | | $0.00 | 51016 | 4534243 |
| 2 | 05/09/2003 | QCD | Quit Claim Deed | HEDAHL, KERRY CHARLES | HEDAHL, KERRY CHARLES | | | $0.00 | 32146 | 4059879 |
| 3 | 05/12/1998 | ESTSEPPROP | Establish Separate Property | MCCALL, ANITA A | HEDAHL, KERRY CHARLES | | | $0.00 | 81797 | 98009625 |
| 4 | 10/01/1997 | DECREE | Divorce Decree/Legal Separation | MCCALL, ELDEN D | MCCALL, ANITA A | | | $0.00 | 74288 | 97020591 |
| 5 | 04/01/1979 | CD | DNU - Correction Deed | MALM, BERT R | MCCALL, ELDEN D | | | $0.00 | 94317 | 358104 |
| 6 | 01/01/1900 | OTHER | Other - Misc. Documents | Unknown | HEDAHL, KERRY C | | | $0.00 | 81797 | 98009625 |
| 7 | 01/01/1900 | OTHER | Other - Misc. Documents | HEDAHL, KERRY C | MALM, BERT R | | | $0.00 | 0 | 0 |
Payout Agreement
| No payout information available.. |