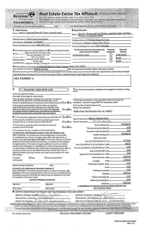
Property
Account |
| Property ID: | 16761 | Abbreviated Legal Description: | 1 - N330' OF E660' OF NE NE EX N40' FOR RD V510P2541 |
| Geographic ID: | R13208-512-4960 | Agent Code: | |
| Type: | Real | | |
| Tax Area: | 112 - APPRAISER-OH Schl Dist, outside OH, improved, greater than 1 acre | Land Use Code | 11 |
| Open Space: | N | DFL | N |
| Historic Property: | N | Remodel Property: | N |
| Multi-Family Redevelopment: | N | | |
| Township: | 32 | Section: | 08 |
| Range: | R1 |
Location |
| Address: | | Mapsco: | |
| Neighborhood: | Cycle 1 | Map ID: | 111 |
| Neighborhood CD: | 1 |
Owner |
| Name: | NELSON, CAROLEE J | Owner ID: | 290136 |
| Mailing Address: | 1665 FT NUGENT RD OAK HARBOR, WA 98277 | % Ownership: | 100.0000000000% |
| | | Exemptions: | |
Taxes and Assessment Details
Values
| (+) Improvement Homesite Value: | + | $0 | |
| (+) Improvement Non-Homesite Value: | + | $15,960 | |
| (+) Land Homesite Value: | + | $0 | |
| (+) Land Non-Homesite Value: | + | $260,000 | |
| (+) Curr Use (HS): | + | $0 | $0 |
| (+) Curr Use (NHS): | + | $0 | $0 |
| | | -------------------------- | |
| (=) Market Value: | = | $275,960 | |
| (–) Productivity Loss: | – | $0 | |
| | | -------------------------- | |
| (=) Subtotal: | = | $275,960 | |
| (+) Senior Appraised Value: | + | $0 | |
| (+) Non-Senior Appraised Value: | + | $275,960 | |
| | | -------------------------- | |
| (=) Total Appraised Value: | = | $275,960 | |
| (–) Senior Exemption Loss: | – | $0 | |
| (–) Exemption Loss: | – | $0 | |
| | | -------------------------- | |
| (=) Taxable Value: | = | $275,960 | |
Taxing Jurisdiction
| Owner: | NELSON, CAROLEE J | | |
| % Ownership: | 100.0000000000% | | |
| Total Value: | $275,960 | | |
| Tax Area: | 112 - APPRAISER-OH Schl Dist, outside OH, improved, greater than 1 acre |
| CF | Conservation Futures | 0.0316035091 | $275,960 | $275,960 | $8.72 | | |
| CEM1 | Cemetery #1 | 0.0040320932 | $275,960 | $275,960 | $1.11 | | |
| FIRE2 | Fire & Rescue Dist #2 N Whidbey GEN | 0.5475949600 | $275,960 | $275,960 | $151.11 | | |
| HOBOND | Hospital BOND | 0.1910887512 | $275,960 | $275,960 | $52.73 | | |
| HOGEN | Hospital GEN | 0.3902502903 | $275,960 | $275,960 | $107.69 | | |
| CE | County Current Expense | 0.3708482477 | $275,960 | $275,960 | $102.34 | | |
| CR | County Roads | 0.4584763726 | $275,960 | $275,960 | $126.52 | | |
| ISLANDEMS | Hospital GEN (EMS) | 0.5000000000 | $275,960 | $275,960 | $137.98 | | |
| LIB | Library Sno-Isle GEN | 0.3153421757 | $275,960 | $275,960 | $87.02 | | |
| NWHIDPRMT | P & R N Whidbey GEN | 0.2004466701 | $275,960 | $275,960 | $55.32 | | |
| SCH201MO | School 201 Enrichment | 1.8559231640 | $275,960 | $275,960 | $512.16 | | |
| ST | State School | 1.3035497053 | $275,960 | $275,960 | $359.73 | | |
| ST2 | State School Part 2 | 0.8169543533 | $275,960 | $275,960 | $225.45 | | |
| | Total Tax Rate: | 6.9861102925 | | | | | |
| | | | | Taxes w/Current Exemptions: | $1,927.88 | | |
| | | | | Taxes w/o Exemptions: | $1,927.88 | | |
Improvement / Building
| Improvement #1: | MISC | State Code: | Y | 0.0 sqft | Value: | $15,960 |
Sketch
Property Image
Land
| 1 | 32 | AC (03.01-09.99) | 4.3800 | 0.00 | 0.00 | 0.00 | 1.00 | $260,000 | $0 |
Roll Value History
| 2026 | N/A | N/A | N/A | N/A | N/A |
| 2025 | $15,960 | $260,000 | $0 | $275,960 | $275,960 |
| 2024 | $15,960 | $260,000 | $0 | $275,960 | $275,960 |
| 2023 | $15,540 | $250,000 | $0 | $265,540 | $265,540 |
| 2022 | $15,540 | $220,000 | $0 | $235,540 | $235,540 |
| 2021 | $15,540 | $190,000 | $0 | $205,540 | $205,540 |
| 2020 | $15,540 | $140,000 | $0 | $155,540 | $155,540 |
| 2019 | $15,540 | $200,000 | $0 | $215,540 | $215,540 |
| 2018 | $15,540 | $170,000 | $0 | $185,540 | $185,540 |
| 2017 | $15,540 | $160,000 | $0 | $175,540 | $175,540 |
| 2016 | $15,540 | $130,000 | $0 | $145,540 | $145,540 |
| 2015 | $30,400 | $100,000 | $0 | $130,400 | $130,400 |
| 2014 | $30,400 | $100,000 | $0 | $130,400 | $130,400 |
| 2013 | $30,400 | $108,405 | $0 | $138,805 | $138,805 |
| 2012 | $30,400 | $108,405 | $0 | $138,805 | $138,805 |
| 2011 | $30,400 | $120,450 | $0 | $150,850 | $150,850 |
| 2010 | $30,400 | $120,450 | $0 | $150,850 | $150,850 |
| 2009 | $31,600 | $164,250 | $0 | $195,850 | $195,850 |
| 2008 | $32,800 | $164,250 | $0 | $197,050 | $197,050 |
| 2007 | $33,600 | $164,250 | $0 | $197,850 | $197,850 |
Deed and Sales History
| 1 | 06/14/2019 | CPADC | Comm Prop Agmnt & Death Cert | NELSON, ROBERT W | NELSON, CAROLEE J | | | | 88143 | |
Payout Agreement
| No payout information available.. |