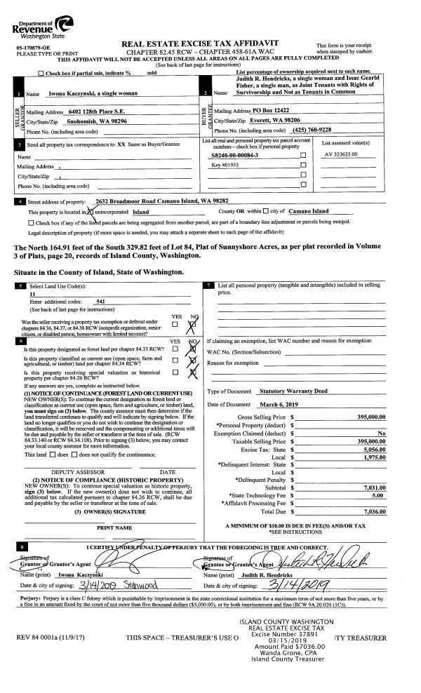
Property
Account |
| Property ID: | 167633 | Abbreviated Legal Description: | 73 - W/2 OF: SE NE NW SE EX RD |
| Geographic ID: | R33231-214-3770 | Agent Code: | |
| Type: | Real | | |
| Tax Area: | 592 - APPRAISER-Stan/Cam Schl Dist, Special Dist, improved, greater than 1 acre | Land Use Code | 11 |
| Open Space: | N | DFL | N |
| Historic Property: | N | Remodel Property: | N |
| Multi-Family Redevelopment: | N | | |
| Township: | 32 | Section: | 31 |
| Range: | R3 |
Location |
| Address: | 284 SHUMWAY RD CAMANO ISLAND, WA 98282 | Mapsco: | |
| Neighborhood: | Cycle 5 | Map ID: | 993 |
| Neighborhood CD: | 5 |
Owner |
| Name: | HERGERT, SAMUEL E | Owner ID: | 289477 |
| Mailing Address: | KAREN P RODGERS 284 SHUMWAY RD CAMANO ISLAND, WA 98282 | % Ownership: | 100.0000000000% |
| | | Exemptions: | |
Taxes and Assessment Details
Values
| (+) Improvement Homesite Value: | + | $0 | |
| (+) Improvement Non-Homesite Value: | + | $315,189 | |
| (+) Land Homesite Value: | + | $0 | |
| (+) Land Non-Homesite Value: | + | $300,000 | |
| (+) Curr Use (HS): | + | $0 | $0 |
| (+) Curr Use (NHS): | + | $0 | $0 |
| | | -------------------------- | |
| (=) Market Value: | = | $615,189 | |
| (–) Productivity Loss: | – | $0 | |
| | | -------------------------- | |
| (=) Subtotal: | = | $615,189 | |
| (+) Senior Appraised Value: | + | $0 | |
| (+) Non-Senior Appraised Value: | + | $615,189 | |
| | | -------------------------- | |
| (=) Total Appraised Value: | = | $615,189 | |
| (–) Senior Exemption Loss: | – | $0 | |
| (–) Exemption Loss: | – | $0 | |
| | | -------------------------- | |
| (=) Taxable Value: | = | $615,189 | |
Taxing Jurisdiction
| Owner: | HERGERT, SAMUEL E | | |
| % Ownership: | 100.0000000000% | | |
| Total Value: | $615,189 | | |
| Tax Area: | 592 - APPRAISER-Stan/Cam Schl Dist, Special Dist, improved, greater than 1 acre |
| CF | Conservation Futures | 0.0316035091 | $615,189 | $615,189 | $19.44 | | |
| EMS1 | Fire & Rescue Dist #1 Camano GEN (EMS) | 0.3677864386 | $615,189 | $615,189 | $226.26 | | |
| FIRE1 | Fire & Rescue Dist #1 Camano GEN | 1.2502910536 | $615,189 | $615,189 | $769.17 | | |
| FIRE1BOND | Fire & Rescue Dist #1 Camano BOND | 0.1570001679 | $615,189 | $615,189 | $96.58 | | |
| CE | County Current Expense | 0.3708482477 | $615,189 | $615,189 | $228.14 | | |
| CR | County Roads | 0.4584763726 | $615,189 | $615,189 | $282.05 | | |
| LCIB | Library Sno-Isle BOND (Camano Island) | 0.0396325772 | $615,189 | $615,189 | $24.38 | | |
| LIB | Library Sno-Isle GEN | 0.3153421757 | $615,189 | $615,189 | $194.00 | | |
| SCH205_401 | School 205-401 Enrichment | 1.2698420524 | $615,189 | $615,189 | $781.19 | | |
| SCH205BOND | School 205-401 BOND | 0.9396497583 | $615,189 | $615,189 | $578.06 | | |
| ST | State School | 1.3035497053 | $615,189 | $615,189 | $801.93 | | |
| ST2 | State School Part 2 | 0.8169543533 | $615,189 | $615,189 | $502.58 | | |
| | Total Tax Rate: | 7.3209764117 | | | | | |
| | | | | Taxes w/Current Exemptions: | $4,503.78 | | |
| | | | | Taxes w/o Exemptions: | $4,503.78 | | |
Improvement / Building
| Improvement #1: | MANUFACTURED HOME | State Code: | Y | 1404.0 sqft | Value: | $132,670 |
| Bathrooms: | 2 | Bedrooms: | 3 | | Ceiling: | PLASTER PAINTED | Exterior Wall/Cover: | VINYL | | Floor Covering: | CARPET 100% | Floor Structure: | SLAB ON GRADE | | Foundation: | SLAB | Heating: | FHA ELECTRIC | | Interior Finish: | PLASTER | Plumbing Fixture Cnt: | 1 | | Roof Slope: | FLAT | Roof Structure/Cover: | CJ ALUMINIUM HEAVY |
|
| | Type | Description | Class CD | Sub Class CD | Year Built | Area |
| | BAS | BASE/MAIN FLOOR | 4 | 0 | 2001 | 1404.0 |
| | OP1 | OPEN PORCH SLAB | 4 | 0 | 2001 | 654.0 |
| | OP1 | OPEN PORCH SLAB | 4 | 0 | 2001 | 144.0 |
| Improvement #2: | RESIDENTIAL | State Code: | Y | 644.0 sqft | Value: | $182,519 |
| Bathrooms: | 1 | Bedrooms: | 1 | | Ceiling: | DRYWALL PAINTED | Exterior Wall/Cover: | PLY/HARDBOARD T-111 | | Floor Covering: | CARPET/VINYL 60-40 | Floor Structure: | WOOD W/SUBFLOOR | | Foundation: | SLAB/CONCRETE | Heating: | FHA ELECTRIC | | Interior Finish: | DRYWALL PAINT | Plumbing Fixture Cnt: | 6 | | Roof Slope: | 12" IN 12" | Roof Structure/Cover: | CJ ASPHALT |
|
| | Type | Description | Class CD | Sub Class CD | Year Built | Area |
| | BAS | BASE/MAIN FLOOR | 3 | 0 | 2003 | 644.0 |
| | BIG | BUILT IN GARAGE | 3 | 0 | 2003 | 896.0 |
| | OWP | OPEN WOOD PORCH W/STEPS | 3 | 0 | 2003 | 352.0 |
Sketch
Property Image
Land
| 1 | 17 | AC (01.01-02.00) | 0.0000 | 0.00 | 0.00 | 0.00 | 1.00 | $300,000 | $0 |
Roll Value History
| 2026 | N/A | N/A | N/A | N/A | N/A |
| 2025 | $315,189 | $300,000 | $0 | $615,189 | $615,189 |
| 2024 | $320,481 | $290,000 | $0 | $610,481 | $610,481 |
| 2023 | $306,235 | $290,000 | $0 | $596,235 | $596,235 |
| 2022 | $279,976 | $260,000 | $0 | $539,976 | $539,976 |
| 2021 | $198,591 | $190,000 | $0 | $388,591 | $388,591 |
| 2020 | $195,044 | $150,000 | $0 | $345,044 | $345,044 |
| 2019 | $157,155 | $180,000 | $0 | $337,155 | $337,155 |
| 2018 | $102,729 | $150,000 | $0 | $252,729 | $252,729 |
| 2017 | $104,515 | $135,000 | $0 | $239,515 | $239,515 |
| 2016 | $105,409 | $135,000 | $0 | $240,409 | $240,409 |
| 2015 | $156,552 | $100,000 | $0 | $256,552 | $256,552 |
| 2014 | $157,938 | $100,000 | $0 | $257,938 | $257,938 |
| 2013 | $159,324 | $80,000 | $0 | $239,324 | $239,324 |
| 2012 | $160,017 | $80,000 | $0 | $240,017 | $240,017 |
| 2011 | $160,710 | $100,000 | $0 | $260,710 | $260,710 |
| 2010 | $159,823 | $100,000 | $0 | $259,823 | $259,823 |
| 2009 | $123,238 | $100,000 | $0 | $223,238 | $223,238 |
| 2008 | $125,526 | $100,000 | $0 | $225,526 | $225,526 |
| 2007 | $127,732 | $100,000 | $0 | $227,732 | $227,732 |
Deed and Sales History
| 1 | 08/22/2025 | WD | Warranty Deed | HERGERT, SAMUEL E | HERGERT TTEE, SAMUEL | | | $0.00 | 64586 | 4590023 |
| 2 | 04/25/2019 | WD | Warranty Deed | KONNERUP, DEBRA B | HERGERT, SAMUEL E | | | $435,000.00 | 38215 | 4462050 |
| 3 | 05/02/2002 | WD | Warranty Deed | MOON, INGRID J | KONNERUP, DEBRA B | | | $42,000.00 | 21781 | 4019806 |
| 4 | 01/01/1994 | OTHER | Other - Misc. Documents | COOK, INGRID J | MOON, INGRID J | | | $0.00 | 65703 | 0 |
| 5 | 11/01/1987 | DECREE | Divorce Decree/Legal Separation | COOK, RAY R | COOK, INGRID J | | | $0.00 | 34100 | 93021446 |
| 6 | 01/01/1900 | OTHER | Other - Misc. Documents | Unknown | COOK, RAY R | | | $0.00 | 0 | 0 |
Payout Agreement
| No payout information available.. |