Property
Account |
| Property ID: | 167688 | Abbreviated Legal Description: | 36 - SW NE NE SE EX E30' & EX N30' |
| Geographic ID: | R33231-214-4820 | Agent Code: | |
| Type: | Real | | |
| Tax Area: | 592 - APPRAISER-Stan/Cam Schl Dist, Special Dist, improved, greater than 1 acre | Land Use Code | 11 |
| Open Space: | N | DFL | N |
| Historic Property: | N | Remodel Property: | N |
| Multi-Family Redevelopment: | N | | |
| Township: | 32 | Section: | 31 |
| Range: | R3 |
Location |
| Address: | | Mapsco: | |
| Neighborhood: | Cycle 5 | Map ID: | 993 |
| Neighborhood CD: | 5 |
Owner |
| Name: | TAIT, NATHAN | Owner ID: | 299807 |
| Mailing Address: | TIFFANY TAIT 393 DURR RD CAMANO ISLAND, WA 98282 | % Ownership: | 100.0000000000% |
| | | Exemptions: | |
Taxes and Assessment Details
Values
| (+) Improvement Homesite Value: | + | $0 | |
| (+) Improvement Non-Homesite Value: | + | $646,311 | |
| (+) Land Homesite Value: | + | $0 | |
| (+) Land Non-Homesite Value: | + | $310,000 | |
| (+) Curr Use (HS): | + | $0 | $0 |
| (+) Curr Use (NHS): | + | $0 | $0 |
| | | -------------------------- | |
| (=) Market Value: | = | $956,311 | |
| (–) Productivity Loss: | – | $0 | |
| | | -------------------------- | |
| (=) Subtotal: | = | $956,311 | |
| (+) Senior Appraised Value: | + | $0 | |
| (+) Non-Senior Appraised Value: | + | $956,311 | |
| | | -------------------------- | |
| (=) Total Appraised Value: | = | $956,311 | |
| (–) Senior Exemption Loss: | – | $0 | |
| (–) Exemption Loss: | – | $0 | |
| | | -------------------------- | |
| (=) Taxable Value: | = | $956,311 | |
Taxing Jurisdiction
| Owner: | TAIT, NATHAN | | |
| % Ownership: | 100.0000000000% | | |
| Total Value: | $956,311 | | |
| Tax Area: | 592 - APPRAISER-Stan/Cam Schl Dist, Special Dist, improved, greater than 1 acre |
| CF | Conservation Futures | 0.0316035091 | $956,311 | $956,311 | $30.22 | | |
| EMS1 | Fire & Rescue Dist #1 Camano GEN (EMS) | 0.3677864386 | $956,311 | $956,311 | $351.72 | | |
| FIRE1 | Fire & Rescue Dist #1 Camano GEN | 1.2502910536 | $956,311 | $956,311 | $1,195.67 | | |
| FIRE1BOND | Fire & Rescue Dist #1 Camano BOND | 0.1570001679 | $956,311 | $956,311 | $150.14 | | |
| CE | County Current Expense | 0.3708482477 | $956,311 | $956,311 | $354.65 | | |
| CR | County Roads | 0.4584763726 | $956,311 | $956,311 | $438.45 | | |
| LCIB | Library Sno-Isle BOND (Camano Island) | 0.0396325772 | $956,311 | $956,311 | $37.90 | | |
| LIB | Library Sno-Isle GEN | 0.3153421757 | $956,311 | $956,311 | $301.57 | | |
| SCH205_401 | School 205-401 Enrichment | 1.2698420524 | $956,311 | $956,311 | $1,214.36 | | |
| SCH205BOND | School 205-401 BOND | 0.9396497583 | $956,311 | $956,311 | $898.60 | | |
| ST | State School | 1.3035497053 | $956,311 | $956,311 | $1,246.60 | | |
| ST2 | State School Part 2 | 0.8169543533 | $956,311 | $956,311 | $781.26 | | |
| | Total Tax Rate: | 7.3209764117 | | | | | |
| | | | | Taxes w/Current Exemptions: | $7,001.14 | | |
| | | | | Taxes w/o Exemptions: | $7,001.14 | | |
Improvement / Building
| Improvement #1: | RESIDENTIAL | State Code: | Y | 3497.0 sqft | Value: | $646,311 |
| Bathrooms: | 3 | Bedrooms: | 4 | | Ceiling: | DRYWALL PAINTED | Cooling: | HEAT PUMP/CONV/V | | Exterior Wall/Cover: | CEMENT FIBER | Floor Covering: | CARPET/VINYL 60-40 | | Floor Structure: | WOOD W/SUBFLOOR | Foundation: | CONCRETE | | Interior Finish: | DRYWALL PAINT | Plumbing Fixture Cnt: | 14 | | Roof Slope: | 8" IN 12" | Roof Structure/Cover: | CJ ASPHALT |
|
| | Type | Description | Class CD | Sub Class CD | Year Built | Area |
| | BAS | BASE/MAIN FLOOR | 4 | 0 | 2021 | 2873.0 |
| | AGR | ATTACHED GARAGE | 4 | 0 | 2021 | 624.1 |
| | OP4 | OPEN PORCH W/CEILING-ROOF | 4 | 0 | 2021 | 265.0 |
| | OWC | OPEN WOOD PORCH W/STEPS/ROOF/C | 4 | 0 | 2021 | 224.0 |
| | OP4 | OPEN PORCH W/CEILING-ROOF | 4 | 0 | 2021 | 64.0 |
| | UPS | UPPER STORY | 4 | 0 | 2021 | 624.0 |
Sketch
Property Image
Land
| 1 | 18 | AC (02.01-03.00) | 2.0700 | 90169.20 | 0.00 | 0.00 | 1.00 | $310,000 | $0 |
Roll Value History
| 2026 | N/A | N/A | N/A | N/A | N/A |
| 2025 | $646,311 | $310,000 | $0 | $956,311 | $956,311 |
| 2024 | $653,097 | $300,000 | $0 | $953,097 | $953,097 |
| 2023 | $664,971 | $300,000 | $0 | $964,971 | $964,971 |
| 2022 | $539,356 | $130,000 | $0 | $669,356 | $669,356 |
| 2021 | $40,001 | $100,000 | $0 | $140,001 | $140,001 |
| 2020 | $0 | $100,000 | $0 | $100,000 | $100,000 |
| 2019 | $0 | $100,000 | $0 | $100,000 | $100,000 |
| 2018 | $0 | $90,000 | $0 | $90,000 | $90,000 |
| 2017 | $0 | $85,000 | $0 | $85,000 | $85,000 |
| 2016 | $0 | $85,000 | $0 | $85,000 | $85,000 |
| 2015 | $0 | $85,000 | $0 | $85,000 | $85,000 |
| 2014 | $0 | $85,000 | $0 | $85,000 | $85,000 |
| 2013 | $0 | $100,000 | $0 | $100,000 | $100,000 |
| 2012 | $0 | $100,000 | $0 | $100,000 | $100,000 |
| 2011 | $0 | $125,000 | $0 | $125,000 | $125,000 |
| 2010 | $0 | $125,000 | $0 | $125,000 | $125,000 |
| 2009 | $0 | $150,000 | $0 | $150,000 | $150,000 |
| 2008 | $0 | $150,000 | $0 | $150,000 | $150,000 |
| 2007 | $0 | $100,000 | $0 | $100,000 | $100,000 |
Deed and Sales History
| 1 | 09/09/2020 | REC | Real Estate Contract | FEKKES, JAN III / LORI LEE | TAIT, NATHAN | | | $150,000.00 | 44716 | 4521995 |
| 2 | 08/31/2020 | QCD | Quit Claim Deed | FEKKES III, JAN | FEKKES, JAN III / LORI LEE | | | $0.00 | 44715 | 4496429 |
| 3 | 11/08/2014 | QCD | Quit Claim Deed | MULLENIX CO TRUSTEE, CAROLYN M | FEKKES III, JAN | | | $0.00 | 17690 | 4369041 |
| 4 | 04/03/2006 | 5 | DNU - Marriage License/Name Change | WEISSER, VIVIAN | MULLENIX CO-TTEE, CAROLYN M | | | $0.00 | 61603 | 4167483 |
| 5 | 05/30/2001 | WD | Warranty Deed | Unknown | WEISSER, VIVIAN | | | $36,600.00 | 11951 | 20033595 |
Payout Agreement
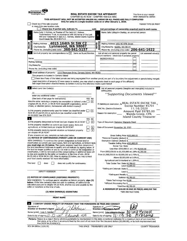
| No payout information available.. |