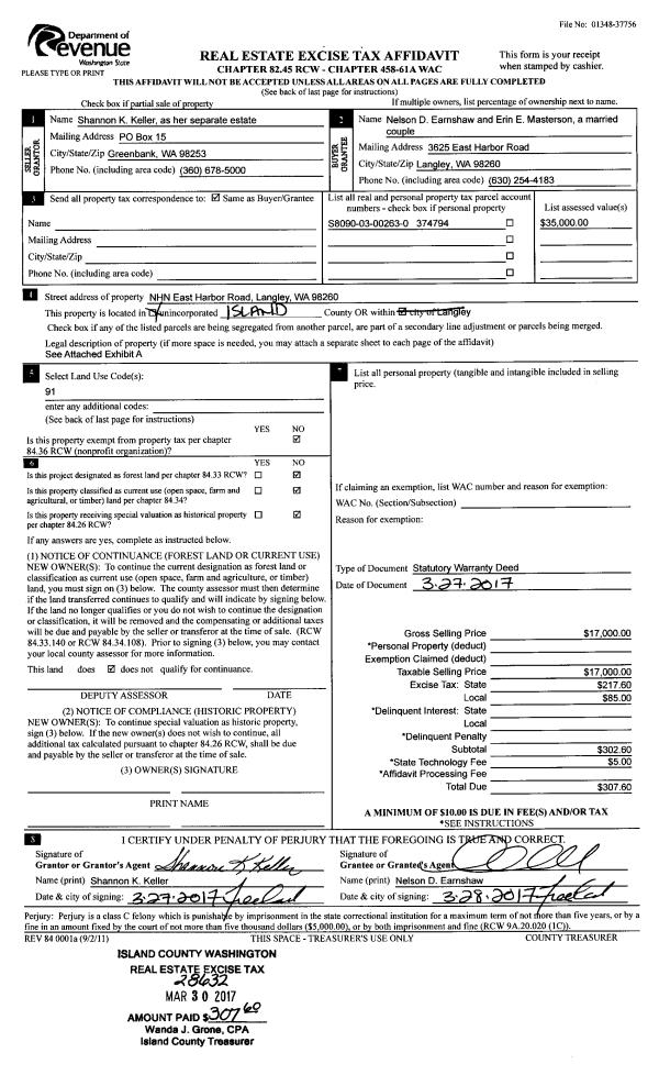
Property
Account |
| Property ID: | 167786 | Abbreviated Legal Description: | 30 - S/2 S/2 SE NW LY E OF RD |
| Geographic ID: | R33231-280-2060 | Agent Code: | |
| Type: | Real | | |
| Tax Area: | 599 - APPRAISER-Stan/Cam Schl Dist, Special Dist, vacant & 50 acres or less | Land Use Code | 91 |
| Open Space: | N | DFL | N |
| Historic Property: | N | Remodel Property: | N |
| Multi-Family Redevelopment: | N | | |
| Township: | 32 | Section: | 31 |
| Range: | R3 |
Location |
| Address: | 218 N EAST CAMANO DR CAMANO ISLAND, WA 98282 | Mapsco: | |
| Neighborhood: | Cycle 5 | Map ID: | 994 |
| Neighborhood CD: | 5 |
Owner |
| Name: | FERGUSON, CHRISTINE MICHELLE | Owner ID: | 317507 |
| Mailing Address: | THOMAS EDWARD FERGUSON 26210 12TH DR NW STANWOOD, WA 98292 | % Ownership: | 100.0000000000% |
| | | Exemptions: | |
Taxes and Assessment Details
Values
| (+) Improvement Homesite Value: | + | $0 | |
| (+) Improvement Non-Homesite Value: | + | $0 | |
| (+) Land Homesite Value: | + | $0 | |
| (+) Land Non-Homesite Value: | + | $260,000 | |
| (+) Curr Use (HS): | + | $0 | $0 |
| (+) Curr Use (NHS): | + | $0 | $0 |
| | | -------------------------- | |
| (=) Market Value: | = | $260,000 | |
| (–) Productivity Loss: | – | $0 | |
| | | -------------------------- | |
| (=) Subtotal: | = | $260,000 | |
| (+) Senior Appraised Value: | + | $0 | |
| (+) Non-Senior Appraised Value: | + | $260,000 | |
| | | -------------------------- | |
| (=) Total Appraised Value: | = | $260,000 | |
| (–) Senior Exemption Loss: | – | $0 | |
| (–) Exemption Loss: | – | $0 | |
| | | -------------------------- | |
| (=) Taxable Value: | = | $260,000 | |
Taxing Jurisdiction
| Owner: | FERGUSON, CHRISTINE MICHELLE | | |
| % Ownership: | 100.0000000000% | | |
| Total Value: | $260,000 | | |
| Tax Area: | 599 - APPRAISER-Stan/Cam Schl Dist, Special Dist, vacant & 50 acres or less |
| CF | Conservation Futures | 0.0316035091 | $260,000 | $260,000 | $8.22 | | |
| EMS1 | Fire & Rescue Dist #1 Camano GEN (EMS) | 0.3677864386 | $260,000 | $260,000 | $95.62 | | |
| CE | County Current Expense | 0.3708482477 | $260,000 | $260,000 | $96.42 | | |
| CR | County Roads | 0.4584763726 | $260,000 | $260,000 | $119.20 | | |
| LCIB | Library Sno-Isle BOND (Camano Island) | 0.0396325772 | $260,000 | $260,000 | $10.30 | | |
| LIB | Library Sno-Isle GEN | 0.3153421757 | $260,000 | $260,000 | $81.99 | | |
| SCH205_401 | School 205-401 Enrichment | 1.2698420524 | $260,000 | $260,000 | $330.16 | | |
| SCH205BOND | School 205-401 BOND | 0.9396497583 | $260,000 | $260,000 | $244.31 | | |
| ST | State School | 1.3035497053 | $260,000 | $260,000 | $338.92 | | |
| ST2 | State School Part 2 | 0.8169543533 | $260,000 | $260,000 | $212.41 | | |
| | Total Tax Rate: | 5.9136851902 | | | | | |
| | | | | Taxes w/Current Exemptions: | $1,537.55 | | |
| | | | | Taxes w/o Exemptions: | $1,537.55 | | |
Improvement / Building
| Improvement #1: | RESIDENTIAL | State Code: | Y | 0.0 sqft | Value: | $0 |
| Bathrooms: | 0 | Bedrooms: | 0 | | Ceiling: | (NONE) | Exterior Wall/Cover: | (NONE) | | Floor Covering: | (NONE) | Floor Structure: | (NONE) | | Foundation: | (NONE) | Heating: | (NONE) | | Interior Finish: | (NONE) | Plumbing Fixture Cnt: | 0 | | Roof Slope: | (NONE) | Roof Structure/Cover: | (NONE) |
|
| | Type | Description | Class CD | Sub Class CD | Year Built | Area |
| | BAS | BASE/MAIN FLOOR | 3 | 0 | 2025 | 0.0 |
| | OWP | OPEN WOOD PORCH W/STEPS | 3 | 0 | 2025 | 0.0 |
| | oPOL | POLE BARN | 3 | 0 | 2025 | 0.0 |
Sketch
Property Image
Land
| 1 | 32 | AC (03.01-09.99) | 9.2000 | 400752.00 | 0.00 | 0.00 | 1.00 | $260,000 | $0 |
Roll Value History
| 2026 | N/A | N/A | N/A | N/A | N/A |
| 2025 | $0 | $260,000 | $0 | $260,000 | $260,000 |
| 2024 | $0 | $250,000 | $0 | $250,000 | $250,000 |
| 2023 | $0 | $240,000 | $0 | $240,000 | $240,000 |
| 2022 | $0 | $220,000 | $0 | $220,000 | $220,000 |
| 2021 | $0 | $190,000 | $0 | $190,000 | $190,000 |
| 2020 | $0 | $160,000 | $0 | $160,000 | $160,000 |
| 2019 | $0 | $170,000 | $0 | $170,000 | $170,000 |
| 2018 | $0 | $180,000 | $0 | $180,000 | $180,000 |
| 2017 | $0 | $160,000 | $0 | $160,000 | $160,000 |
| 2016 | $0 | $230,000 | $0 | $230,000 | $230,000 |
| 2015 | $0 | $230,000 | $0 | $230,000 | $230,000 |
| 2014 | $0 | $230,000 | $0 | $230,000 | $230,000 |
| 2013 | $0 | $230,000 | $0 | $230,000 | $230,000 |
| 2012 | $0 | $230,000 | $0 | $230,000 | $230,000 |
| 2011 | $0 | $230,000 | $0 | $230,000 | $230,000 |
| 2010 | $0 | $230,000 | $0 | $230,000 | $230,000 |
| 2009 | $0 | $276,000 | $0 | $276,000 | $276,000 |
| 2008 | $0 | $322,000 | $0 | $322,000 | $322,000 |
| 2007 | $0 | $202,400 | $0 | $202,400 | $202,400 |
Deed and Sales History
| 1 | 07/17/2025 | WD | Warranty Deed | 7 ROSES, LLC | FERGUSON, CHRISTINE MICHELLE | | | $350,000.00 | 64261 | 4588759 |
| 2 | 07/03/2017 | QCD | Quit Claim Deed | SPANE, JAMES | 7 ROSES, LLC | | | $0.00 | 31078 | 4430200 |
| 3 | 04/11/2017 | WD | Warranty Deed | MURRAY, NORMAN | SPANE, JAMES | | | $160,000.00 | 28885 | 4420759 |
| 4 | 05/09/2016 | TRUSTEED | Trustee's Deed | SPANE, CAROL ANNE | MURRAY, NORMAN | | | $0.00 | 24505 | 4400153 |
| 5 | 09/01/2011 | QCD | Quit Claim Deed | SPANE, CAROL ANNE | SPANE, CAROL ANNE | | | $0.00 | 6584 | 4307793 |
| 6 | 09/01/2011 | QCD | Quit Claim Deed | SPANE, CAROL ANNE | SPANE, CAROL ANNE | | | $0.00 | 5883 | 4303101 |
| 7 | 12/23/2004 | WD | Warranty Deed | SPANE, CAROL | SPANE, CAROL ANNE | | | $0.00 | 50151 | 4123054 |
| 8 | 11/30/2004 | WD | Warranty Deed | SPANE, CAROL ANNE | SPANE, CAROL ANNE | | | $0.00 | 50149 | 1023052 |
| 9 | 10/27/2004 | WD | Warranty Deed | SPANE, CAROL ANNE | SPANE, CAROL ANNE | | | $0.00 | 50150 | 4123053 |
| 10 | 08/10/2004 | ESTSEPPROP | Establish Separate Property | C-21, KNORR R | SPANE, CAROL ANNE | | | $0.00 | 43748 | 4109975 |
| 11 | 05/28/2004 | PRD | Personal Representatives Deed | SPANE, V, M | SPANE, CAROL | | | $0.00 | 42527 | 4103383 |
| 12 | 04/12/2004 | PRD | Personal Representatives Deed | SPANE, CAROL | SPANE, CAROL | | | $0.00 | 43750 | 4109973 |
| 13 | 07/01/1980 | EZ | Easement | SPANE, VICTOR, L | SPANE, V, M | | | $0.00 | 2418 | 371294 |
| 14 | 10/01/1979 | EXECUTORD | Executor Deed | SPANE, CAROL ANNE | SPANE, VICTOR, L | | | $34,000.00 | 95171 | 0 |
Payout Agreement
| No payout information available.. |