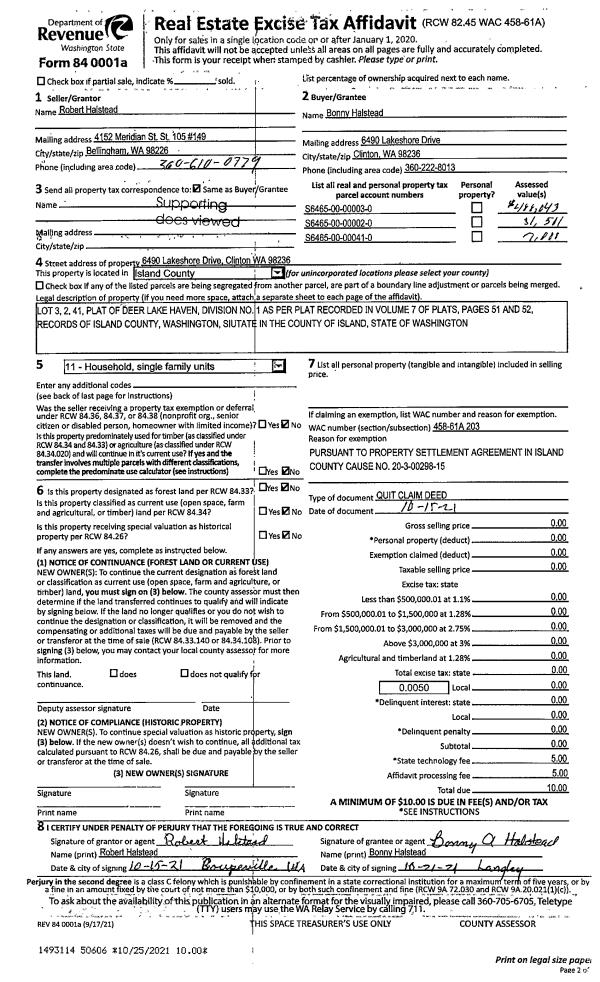
Property
Account |
| Property ID: | 168071 | Abbreviated Legal Description: | 62 - PT OF S10AC OF N15AC OF SE SW & W100' OF N495' OF GL1 DESC: BG NWCR OF SE SW S ALG WLN 493.19' TO SWCR OF SD N15AC S89*E ALG SLN OF SD N15AC 1149.91' TPB N97' N45*E141.95' S89*E175' TP ON ELN OF W100' OF SD GL1 S ALG SD ELN 197' TP S89*E FR TPB N89*W |
| Geographic ID: | R33232-093-2700 | Agent Code: | |
| Type: | Real | | |
| Tax Area: | 592 - APPRAISER-Stan/Cam Schl Dist, Special Dist, improved, greater than 1 acre | Land Use Code | 11 |
| Open Space: | N | DFL | N |
| Historic Property: | N | Remodel Property: | N |
| Multi-Family Redevelopment: | N | | |
| Township: | 32 | Section: | 32 |
| Range: | R3 |
Location |
| Address: | 593 KONNERUP CT CAMANO ISLAND, WA 98282 | Mapsco: | |
| Neighborhood: | Cycle 5 | Map ID: | 997 |
| Neighborhood CD: | 5 |
Owner |
| Name: | MCENANY, PAUL | Owner ID: | 299385 |
| Mailing Address: | RACEHL MCENANY 593 KONNNERUP CT CAMANO ISLAND, WA 98282 | % Ownership: | 100.0000000000% |
| | | Exemptions: | |
Taxes and Assessment Details
Values
| (+) Improvement Homesite Value: | + | $0 | |
| (+) Improvement Non-Homesite Value: | + | $598,269 | |
| (+) Land Homesite Value: | + | $0 | |
| (+) Land Non-Homesite Value: | + | $450,000 | |
| (+) Curr Use (HS): | + | $0 | $0 |
| (+) Curr Use (NHS): | + | $0 | $0 |
| | | -------------------------- | |
| (=) Market Value: | = | $1,048,269 | |
| (–) Productivity Loss: | – | $0 | |
| | | -------------------------- | |
| (=) Subtotal: | = | $1,048,269 | |
| (+) Senior Appraised Value: | + | $0 | |
| (+) Non-Senior Appraised Value: | + | $1,048,269 | |
| | | -------------------------- | |
| (=) Total Appraised Value: | = | $1,048,269 | |
| (–) Senior Exemption Loss: | – | $0 | |
| (–) Exemption Loss: | – | $0 | |
| | | -------------------------- | |
| (=) Taxable Value: | = | $1,048,269 | |
Taxing Jurisdiction
| Owner: | MCENANY, PAUL | | |
| % Ownership: | 100.0000000000% | | |
| Total Value: | $1,048,269 | | |
| Tax Area: | 592 - APPRAISER-Stan/Cam Schl Dist, Special Dist, improved, greater than 1 acre |
| CF | Conservation Futures | 0.0316035091 | $1,048,269 | $1,048,269 | $33.13 | | |
| EMS1 | Fire & Rescue Dist #1 Camano GEN (EMS) | 0.3677864386 | $1,048,269 | $1,048,269 | $385.54 | | |
| FIRE1 | Fire & Rescue Dist #1 Camano GEN | 1.2502910536 | $1,048,269 | $1,048,269 | $1,310.64 | | |
| FIRE1BOND | Fire & Rescue Dist #1 Camano BOND | 0.1570001679 | $1,048,269 | $1,048,269 | $164.58 | | |
| CE | County Current Expense | 0.3708482477 | $1,048,269 | $1,048,269 | $388.75 | | |
| CR | County Roads | 0.4584763726 | $1,048,269 | $1,048,269 | $480.61 | | |
| LCIB | Library Sno-Isle BOND (Camano Island) | 0.0396325772 | $1,048,269 | $1,048,269 | $41.55 | | |
| LIB | Library Sno-Isle GEN | 0.3153421757 | $1,048,269 | $1,048,269 | $330.56 | | |
| SCH205_401 | School 205-401 Enrichment | 1.2698420524 | $1,048,269 | $1,048,269 | $1,331.14 | | |
| SCH205BOND | School 205-401 BOND | 0.9396497583 | $1,048,269 | $1,048,269 | $985.01 | | |
| ST | State School | 1.3035497053 | $1,048,269 | $1,048,269 | $1,366.47 | | |
| ST2 | State School Part 2 | 0.8169543533 | $1,048,269 | $1,048,269 | $856.39 | | |
| | Total Tax Rate: | 7.3209764117 | | | | | |
| | | | | Taxes w/Current Exemptions: | $7,674.37 | | |
| | | | | Taxes w/o Exemptions: | $7,674.37 | | |
Improvement / Building
| Improvement #1: | RESIDENTIAL | State Code: | Y | 2622.5 sqft | Value: | $598,269 |
| Bathrooms: | 2.5 | Bedrooms: | 2 | | Ceiling: | BEAM PAINTED | Exterior Wall/Cover: | WOOD SIDING | | Floor Covering: | HARDWOOD/CARP 80-20 | Floor Structure: | WOOD W/SUBFLOOR | | Foundation: | CONCRETE | Heating: | WALL HEAT ELECTRIC | | Interior Finish: | DRYWALL PAINT | Plumbing Fixture Cnt: | 13 | | Roof Slope: | 6" IN 12" | Roof Structure/Cover: | BEAM WOOD SHAKES |
|
| | Type | Description | Class CD | Sub Class CD | Year Built | Area |
| | BAS | BASE/MAIN FLOOR | 4 | 0 | 1983 | 2622.5 |
| | AGR | ATTACHED GARAGE | 4 | 0 | 1983 | 768.0 |
| | OWP | OPEN WOOD PORCH W/STEPS | 4 | 0 | 1983 | 404.6 |
| | UTY | STORAGE/UTILITY | 4 | 0 | 1983 | 480.0 |
| | OP3 | OPEN PORCH W/ROOF | 4 | 0 | 1983 | 115.4 |
Sketch
Property Image
Land
| 1 | 17 | AC (01.01-02.00) | 1.1300 | 49222.80 | 197.00 | 0.00 | 1.00 | $450,000 | $0 |
Roll Value History
| 2026 | N/A | N/A | N/A | N/A | N/A |
| 2025 | $598,269 | $450,000 | $0 | $1,048,269 | $1,048,269 |
| 2024 | $596,407 | $450,000 | $0 | $1,046,407 | $1,046,407 |
| 2023 | $603,659 | $440,000 | $0 | $1,043,659 | $1,043,659 |
| 2022 | $553,190 | $370,000 | $0 | $923,190 | $923,190 |
| 2021 | $486,695 | $260,000 | $0 | $746,695 | $746,695 |
| 2020 | $396,476 | $240,000 | $0 | $636,476 | $636,476 |
| 2019 | $300,633 | $350,000 | $0 | $650,633 | $650,633 |
| 2018 | $301,581 | $350,000 | $0 | $651,581 | $651,581 |
| 2017 | $302,101 | $350,000 | $0 | $652,101 | $652,101 |
| 2016 | $305,877 | $350,000 | $0 | $655,877 | $655,877 |
| 2015 | $262,718 | $350,000 | $0 | $612,718 | $612,718 |
| 2014 | $266,367 | $300,000 | $0 | $566,367 | $566,367 |
| 2013 | $0 | $5,000 | $0 | $5,000 | $5,000 |
| 2012 | $0 | $5,000 | $0 | $5,000 | $5,000 |
| 2011 | $0 | $5,000 | $0 | $5,000 | $5,000 |
| 2010 | $0 | $5,000 | $0 | $5,000 | $5,000 |
| 2009 | $0 | $9,000 | $0 | $9,000 | $9,000 |
| 2008 | $0 | $9,000 | $0 | $9,000 | $9,000 |
| 2007 | $0 | $9,000 | $0 | $9,000 | $9,000 |
Deed and Sales History
| 1 | 05/14/2021 | WD | Warranty Deed | KONNERUP, TRAVERS | MCENANY, PAUL | | | $1,000,000.00 | 48261 | 4519461 |
| 2 | 10/28/2014 | WD | Warranty Deed | KONNERUP, NELS M | KONNERUP, TRAVERS | | | $270,000.00 | 17396 | 4367804 |
| 3 | 01/01/1900 | OTHER | Other - Misc. Documents | Unknown | KONNERUP, NELS M | | | $0.00 | 0 | 0 |
Payout Agreement
| No payout information available.. |