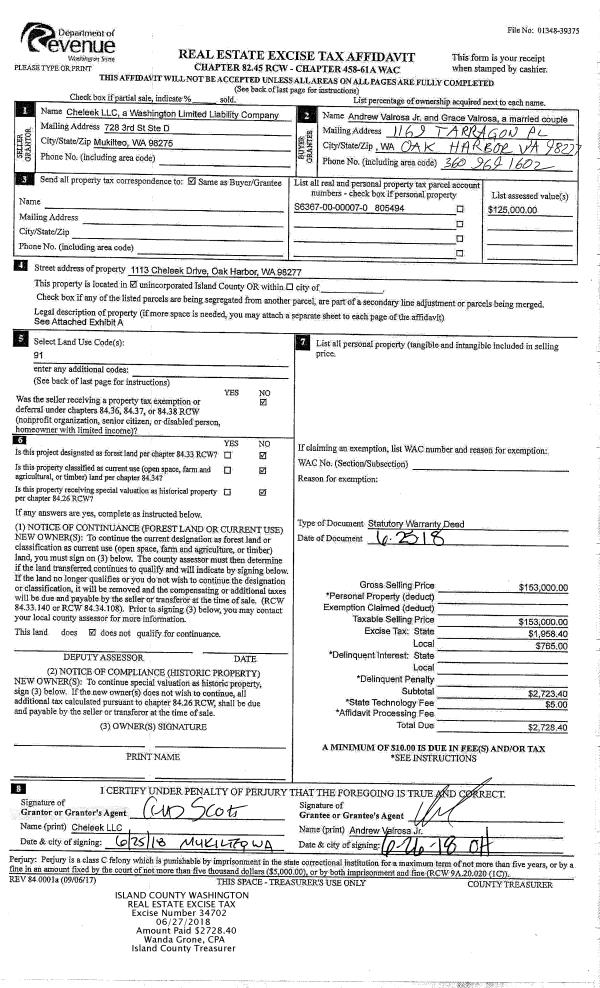
Property
Account |
| Property ID: | 168160 | Abbreviated Legal Description: | W/2 W/2 S/2 NW SW TGW & SUB TO EZ |
| Geographic ID: | R33232-165-0190 | Agent Code: | |
| Type: | Real | | |
| Tax Area: | 599 - APPRAISER-Stan/Cam Schl Dist, Special Dist, vacant & 50 acres or less | Land Use Code | 91 |
| Open Space: | N | DFL | N |
| Historic Property: | N | Remodel Property: | N |
| Multi-Family Redevelopment: | N | | |
| Township: | 32 | Section: | 32 |
| Range: | R3 |
Location |
| Address: | | Mapsco: | |
| Neighborhood: | Cycle 5 | Map ID: | 996 |
| Neighborhood CD: | 5 |
Owner |
| Name: | FORBES, DEAN | Owner ID: | 286685 |
| Mailing Address: | 3073 GALENA DR CAMANO ISLAND, WA 98282 | % Ownership: | 100.0000000000% |
| | | Exemptions: | |
Taxes and Assessment Details
Values
| (+) Improvement Homesite Value: | + | $0 | |
| (+) Improvement Non-Homesite Value: | + | $0 | |
| (+) Land Homesite Value: | + | $0 | |
| (+) Land Non-Homesite Value: | + | $180,000 | |
| (+) Curr Use (HS): | + | $0 | $0 |
| (+) Curr Use (NHS): | + | $0 | $0 |
| | | -------------------------- | |
| (=) Market Value: | = | $180,000 | |
| (–) Productivity Loss: | – | $0 | |
| | | -------------------------- | |
| (=) Subtotal: | = | $180,000 | |
| (+) Senior Appraised Value: | + | $0 | |
| (+) Non-Senior Appraised Value: | + | $180,000 | |
| | | -------------------------- | |
| (=) Total Appraised Value: | = | $180,000 | |
| (–) Senior Exemption Loss: | – | $0 | |
| (–) Exemption Loss: | – | $0 | |
| | | -------------------------- | |
| (=) Taxable Value: | = | $180,000 | |
Taxing Jurisdiction
| Owner: | FORBES, DEAN | | |
| % Ownership: | 100.0000000000% | | |
| Total Value: | $180,000 | | |
| Tax Area: | 599 - APPRAISER-Stan/Cam Schl Dist, Special Dist, vacant & 50 acres or less |
| CF | Conservation Futures | 0.0316035091 | $180,000 | $180,000 | $5.69 | | |
| EMS1 | Fire & Rescue Dist #1 Camano GEN (EMS) | 0.3677864386 | $180,000 | $180,000 | $66.20 | | |
| CE | County Current Expense | 0.3708482477 | $180,000 | $180,000 | $66.75 | | |
| CR | County Roads | 0.4584763726 | $180,000 | $180,000 | $82.53 | | |
| LCIB | Library Sno-Isle BOND (Camano Island) | 0.0396325772 | $180,000 | $180,000 | $7.13 | | |
| LIB | Library Sno-Isle GEN | 0.3153421757 | $180,000 | $180,000 | $56.76 | | |
| SCH205_401 | School 205-401 Enrichment | 1.2698420524 | $180,000 | $180,000 | $228.57 | | |
| SCH205BOND | School 205-401 BOND | 0.9396497583 | $180,000 | $180,000 | $169.14 | | |
| ST | State School | 1.3035497053 | $180,000 | $180,000 | $234.64 | | |
| ST2 | State School Part 2 | 0.8169543533 | $180,000 | $180,000 | $147.05 | | |
| | Total Tax Rate: | 5.9136851902 | | | | | |
| | | | | Taxes w/Current Exemptions: | $1,064.46 | | |
| | | | | Taxes w/o Exemptions: | $1,064.46 | | |
Improvement / Building
Sketch
| No sketches available for this property. |
Property Image
Land
| 1 | 32 | AC (03.01-09.99) | 4.9000 | 213444.00 | 0.00 | 0.00 | 1.00 | $180,000 | $0 |
Roll Value History
| 2026 | N/A | N/A | N/A | N/A | N/A |
| 2025 | $0 | $180,000 | $0 | $180,000 | $180,000 |
| 2024 | $0 | $120,000 | $0 | $120,000 | $120,000 |
| 2023 | $0 | $100,000 | $0 | $100,000 | $100,000 |
| 2022 | $0 | $100,000 | $0 | $100,000 | $100,000 |
| 2021 | $0 | $80,000 | $0 | $80,000 | $80,000 |
| 2020 | $0 | $80,000 | $0 | $80,000 | $80,000 |
| 2019 | $0 | $80,000 | $0 | $80,000 | $80,000 |
| 2018 | $0 | $140,000 | $0 | $140,000 | $140,000 |
| 2017 | $0 | $120,000 | $0 | $120,000 | $120,000 |
| 2016 | $0 | $100,000 | $0 | $100,000 | $100,000 |
| 2015 | $0 | $100,000 | $0 | $100,000 | $100,000 |
| 2014 | $0 | $100,000 | $0 | $100,000 | $100,000 |
| 2013 | $0 | $87,100 | $0 | $87,100 | $87,100 |
| 2012 | $0 | $87,100 | $0 | $87,100 | $87,100 |
| 2011 | $0 | $87,100 | $0 | $87,100 | $87,100 |
| 2010 | $0 | $87,100 | $0 | $87,100 | $87,100 |
| 2009 | $0 | $109,000 | $0 | $109,000 | $109,000 |
| 2008 | $0 | $127,250 | $0 | $127,250 | $127,250 |
| 2007 | $0 | $116,800 | $0 | $116,800 | $116,800 |
Deed and Sales History
| 1 | 08/28/2018 | QCD | Quit Claim Deed | FORBES, DEAN | FORBES, DEAN | | | $0.00 | 35687 | 4450858 |
| 2 | 08/28/2018 | WD | Warranty Deed | TROWBRIDGE, DAVID | FORBES, DEAN | | | $72,000.00 | 35686 | 4450857 |
| 3 | 08/29/2005 | WD | Warranty Deed | TROWBRIDGE, DAVID | TROWBRIDGE, DAVID | | | $0.00 | 56152 | 4156711 |
| 4 | 08/29/2005 | TRUSTEED | Trustee's Deed | TROWBRIDGE, KENNETH W | TROWBRIDGE, DAVID | | | $0.00 | 54472 | 4146878 |
| 5 | 01/01/1900 | WD | Warranty Deed | Unknown | TROWBRIDGE, KENNETH W | | | $11,125.00 | 52600 | 85010284 |
Payout Agreement
| No payout information available.. |