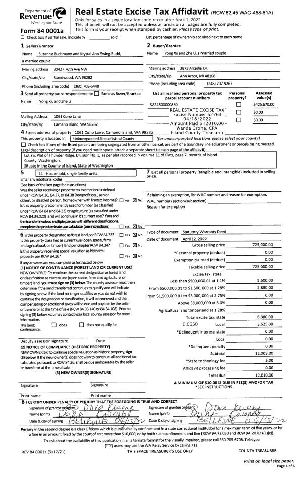
Property
Account |
| Property ID: | 168204 | Abbreviated Legal Description: | 63 - IN GL2: BG NWCR GL2 S250' E480.84' S585' TPB E450' S14.48' ALG CUR/R 69 .95' S45*W105.96' ALG CUR/L 118.35' W110' N61*W114.64' N46*W125.88' N120.74' TPB |
| Geographic ID: | R33232-172-2030 | Agent Code: | |
| Type: | Real | | |
| Tax Area: | 592 - APPRAISER-Stan/Cam Schl Dist, Special Dist, improved, greater than 1 acre | Land Use Code | 11 |
| Open Space: | N | DFL | N |
| Historic Property: | N | Remodel Property: | N |
| Multi-Family Redevelopment: | N | | |
| Township: | 32 | Section: | 32 |
| Range: | R3 |
Location |
| Address: | 125 LIVINGSTON BAY RD CAMANO ISLAND, WA 98282 | Mapsco: | |
| Neighborhood: | Cycle 5 | Map ID: | 996 |
| Neighborhood CD: | 5 |
Owner |
| Name: | BUSTIN, LINDA | Owner ID: | 61545 |
| Mailing Address: | 125 LIVINGSTON BAY RD CAMANO ISLAND, WA 98282-8704 | % Ownership: | 100.0000000000% |
| | | Exemptions: | |
Taxes and Assessment Details
Values
| (+) Improvement Homesite Value: | + | $0 | |
| (+) Improvement Non-Homesite Value: | + | $68,090 | |
| (+) Land Homesite Value: | + | $0 | |
| (+) Land Non-Homesite Value: | + | $310,000 | |
| (+) Curr Use (HS): | + | $0 | $0 |
| (+) Curr Use (NHS): | + | $0 | $0 |
| | | -------------------------- | |
| (=) Market Value: | = | $378,090 | |
| (–) Productivity Loss: | – | $0 | |
| | | -------------------------- | |
| (=) Subtotal: | = | $378,090 | |
| (+) Senior Appraised Value: | + | $0 | |
| (+) Non-Senior Appraised Value: | + | $378,090 | |
| | | -------------------------- | |
| (=) Total Appraised Value: | = | $378,090 | |
| (–) Senior Exemption Loss: | – | $0 | |
| (–) Exemption Loss: | – | $0 | |
| | | -------------------------- | |
| (=) Taxable Value: | = | $378,090 | |
Taxing Jurisdiction
| Owner: | BUSTIN, LINDA | | |
| % Ownership: | 100.0000000000% | | |
| Total Value: | $378,090 | | |
| Tax Area: | 592 - APPRAISER-Stan/Cam Schl Dist, Special Dist, improved, greater than 1 acre |
| CF | Conservation Futures | 0.0316035091 | $378,090 | $378,090 | $11.95 | | |
| EMS1 | Fire & Rescue Dist #1 Camano GEN (EMS) | 0.3677864386 | $378,090 | $378,090 | $139.06 | | |
| FIRE1 | Fire & Rescue Dist #1 Camano GEN | 1.2502910536 | $378,090 | $378,090 | $472.72 | | |
| FIRE1BOND | Fire & Rescue Dist #1 Camano BOND | 0.1570001679 | $378,090 | $378,090 | $59.36 | | |
| CE | County Current Expense | 0.3708482477 | $378,090 | $378,090 | $140.21 | | |
| CR | County Roads | 0.4584763726 | $378,090 | $378,090 | $173.35 | | |
| LCIB | Library Sno-Isle BOND (Camano Island) | 0.0396325772 | $378,090 | $378,090 | $14.98 | | |
| LIB | Library Sno-Isle GEN | 0.3153421757 | $378,090 | $378,090 | $119.23 | | |
| SCH205_401 | School 205-401 Enrichment | 1.2698420524 | $378,090 | $378,090 | $480.11 | | |
| SCH205BOND | School 205-401 BOND | 0.9396497583 | $378,090 | $378,090 | $355.27 | | |
| ST | State School | 1.3035497053 | $378,090 | $378,090 | $492.86 | | |
| ST2 | State School Part 2 | 0.8169543533 | $378,090 | $378,090 | $308.88 | | |
| | Total Tax Rate: | 7.3209764117 | | | | | |
| | | | | Taxes w/Current Exemptions: | $2,767.98 | | |
| | | | | Taxes w/o Exemptions: | $2,767.98 | | |
Improvement / Building
| Improvement #1: | MANUFACTURED HOME | State Code: | Y | 1440.0 sqft | Value: | $68,090 |
| Bathrooms: | 0 | Bedrooms: | 0 | | Ceiling: | PLASTER PAINTED | Cooling: | EVAP NO DUCT | | Exterior Wall/Cover: | VINYL | Floor Covering: | CARPET 100% | | Floor Structure: | SLAB ON GRADE | Foundation: | SLAB | | Heating: | FHA ELECTRIC | Interior Finish: | PLASTER | | Plumbing Fixture Cnt: | 1 | Roof Slope: | FLAT | | Roof Structure/Cover: | CJ ALUMINIUM HEAVY |   |   |
|
| | Type | Description | Class CD | Sub Class CD | Year Built | Area |
| | BAS | BASE/MAIN FLOOR | 4 | 0 | 1976 | 1440.0 |
| | oOBD | Out Buildings | 4 | 0 | 1976 | 0.0 |
Sketch
Property Image
Land
| 1 | 18 | AC (02.01-03.00) | 0.0000 | 0.00 | 0.00 | 0.00 | 1.00 | $310,000 | $0 |
Roll Value History
| 2026 | N/A | N/A | N/A | N/A | N/A |
| 2025 | $68,090 | $310,000 | $0 | $378,090 | $378,090 |
| 2024 | $71,168 | $300,000 | $0 | $371,168 | $371,168 |
| 2023 | $66,484 | $300,000 | $0 | $366,484 | $366,484 |
| 2022 | $64,988 | $260,000 | $0 | $324,988 | $324,988 |
| 2021 | $61,142 | $190,000 | $0 | $251,142 | $251,142 |
| 2020 | $63,096 | $150,000 | $0 | $213,096 | $213,096 |
| 2019 | $56,588 | $190,000 | $0 | $246,588 | $246,588 |
| 2018 | $58,167 | $180,000 | $0 | $238,167 | $238,167 |
| 2017 | $59,747 | $135,000 | $0 | $194,747 | $194,747 |
| 2016 | $61,326 | $135,000 | $0 | $196,326 | $196,326 |
| 2015 | $59,622 | $100,000 | $0 | $159,622 | $159,622 |
| 2014 | $61,786 | $100,000 | $0 | $161,786 | $161,786 |
| 2013 | $63,229 | $100,000 | $0 | $163,229 | $163,229 |
| 2012 | $33,696 | $100,000 | $0 | $133,696 | $133,696 |
| 2011 | $35,560 | $125,000 | $0 | $160,560 | $160,560 |
| 2010 | $35,592 | $125,000 | $0 | $160,592 | $160,592 |
| 2009 | $36,225 | $150,000 | $0 | $186,225 | $186,225 |
| 2008 | $36,559 | $150,000 | $0 | $186,559 | $186,559 |
| 2007 | $37,506 | $150,000 | $0 | $187,506 | $187,506 |
Deed and Sales History
| 1 | 02/13/2004 | DECREE | Divorce Decree/Legal Separation | GUDDAL, DAVID & | BUSTIN, LINDA | | | $0.00 | 40686 | 4092197 |
| 2 | 01/01/1991 | OTHER | Other - Misc. Documents | WELKER, JOHN | GUDDAL, DAVID / | | | $10,000.00 | 10062 | 0 |
| 3 | 01/01/1991 | QCD | Quit Claim Deed | GUDDAL, DAVID / | GUDDAL, DAVID & | | | $10,000.00 | 10061 | 91000368 |
| 4 | 01/01/1900 | OTHER | Other - Misc. Documents | Unknown | WELKER, JOHN | | | $21,900.00 | 0 | 0 |
| 5 | 01/01/1900 | OTHER | Other - Misc. Documents | WELKER, JOHN | WELKER, JOHN | | | $0.00 | 0 | 0 |
Payout Agreement
| No payout information available.. |