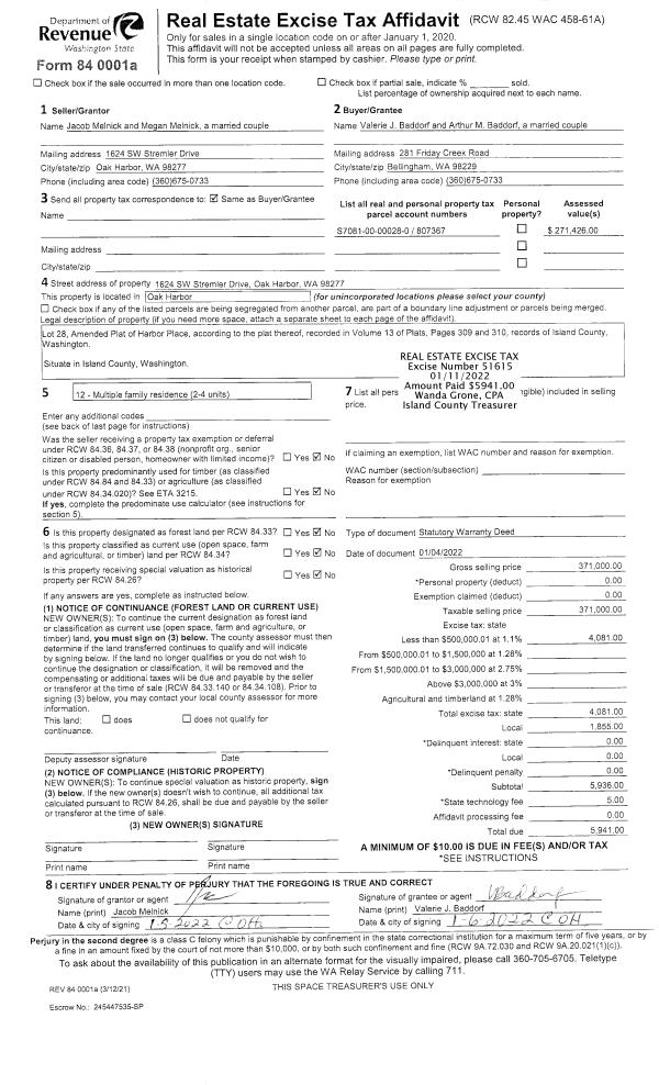
Property
Account |
| Property ID: | 168598 | Abbreviated Legal Description: | 44 - S/2 E/2 NE SW NW EZ S30' & E30' RD EX PT TO IS CO AF#4487966 |
| Geographic ID: | R33232-345-1150 | Agent Code: | |
| Type: | Real | | |
| Tax Area: | 592 - APPRAISER-Stan/Cam Schl Dist, Special Dist, improved, greater than 1 acre | Land Use Code | 11 |
| Open Space: | N | DFL | N |
| Historic Property: | N | Remodel Property: | N |
| Multi-Family Redevelopment: | N | | |
| Township: | 32 | Section: | 32 |
| Range: | R3 |
Location |
| Address: | 267 N SUNRISE BLVD CAMANO ISLAND, WA 98282 | Mapsco: | |
| Neighborhood: | Cycle 5 | Map ID: | 998 |
| Neighborhood CD: | 5 |
Owner |
| Name: | CADY, STEPHEN | Owner ID: | 61588 |
| Mailing Address: | 267 N SUNRISE BLVD CAMANO ISLAND, WA 98282 | % Ownership: | 100.0000000000% |
| | | Exemptions: | |
Taxes and Assessment Details
Values
| (+) Improvement Homesite Value: | + | $0 | |
| (+) Improvement Non-Homesite Value: | + | $376,424 | |
| (+) Land Homesite Value: | + | $0 | |
| (+) Land Non-Homesite Value: | + | $310,000 | |
| (+) Curr Use (HS): | + | $0 | $0 |
| (+) Curr Use (NHS): | + | $0 | $0 |
| | | -------------------------- | |
| (=) Market Value: | = | $686,424 | |
| (–) Productivity Loss: | – | $0 | |
| | | -------------------------- | |
| (=) Subtotal: | = | $686,424 | |
| (+) Senior Appraised Value: | + | $0 | |
| (+) Non-Senior Appraised Value: | + | $686,424 | |
| | | -------------------------- | |
| (=) Total Appraised Value: | = | $686,424 | |
| (–) Senior Exemption Loss: | – | $0 | |
| (–) Exemption Loss: | – | $0 | |
| | | -------------------------- | |
| (=) Taxable Value: | = | $686,424 | |
Taxing Jurisdiction
| Owner: | CADY, STEPHEN | | |
| % Ownership: | 100.0000000000% | | |
| Total Value: | $686,424 | | |
| Tax Area: | 592 - APPRAISER-Stan/Cam Schl Dist, Special Dist, improved, greater than 1 acre |
| CF | Conservation Futures | 0.0316035091 | $686,424 | $686,424 | $21.69 | | |
| EMS1 | Fire & Rescue Dist #1 Camano GEN (EMS) | 0.3677864386 | $686,424 | $686,424 | $252.46 | | |
| FIRE1 | Fire & Rescue Dist #1 Camano GEN | 1.2502910536 | $686,424 | $686,424 | $858.23 | | |
| FIRE1BOND | Fire & Rescue Dist #1 Camano BOND | 0.1570001679 | $686,424 | $686,424 | $107.77 | | |
| CE | County Current Expense | 0.3708482477 | $686,424 | $686,424 | $254.56 | | |
| CR | County Roads | 0.4584763726 | $686,424 | $686,424 | $314.71 | | |
| LCIB | Library Sno-Isle BOND (Camano Island) | 0.0396325772 | $686,424 | $686,424 | $27.20 | | |
| LIB | Library Sno-Isle GEN | 0.3153421757 | $686,424 | $686,424 | $216.46 | | |
| SCH205_401 | School 205-401 Enrichment | 1.2698420524 | $686,424 | $686,424 | $871.65 | | |
| SCH205BOND | School 205-401 BOND | 0.9396497583 | $686,424 | $686,424 | $645.00 | | |
| ST | State School | 1.3035497053 | $686,424 | $686,424 | $894.79 | | |
| ST2 | State School Part 2 | 0.8169543533 | $686,424 | $686,424 | $560.78 | | |
| | Total Tax Rate: | 7.3209764117 | | | | | |
| | | | | Taxes w/Current Exemptions: | $5,025.30 | | |
| | | | | Taxes w/o Exemptions: | $5,025.30 | | |
Improvement / Building
| Improvement #1: | RESIDENTIAL | State Code: | Y | 1770.0 sqft | Value: | $376,424 |
| Bathrooms: | 2 | Bedrooms: | 3 | | Ceiling: | DRYWALL PAINTED | Cooling: | HEAT PUMP/CONV/V | | Exterior Wall/Cover: | PLY/HARDBOARD T-111 | Floor Covering: | CARPET/VINYL 60-40 | | Floor Structure: | WOOD W/SUBFLOOR | Foundation: | CONCRETE | | Interior Finish: | DRYWALL PAINT | Plumbing Fixture Cnt: | 11 | | Roof Slope: | 8" IN 12" | Roof Structure/Cover: | CJ ASPHALT |
|
| | Type | Description | Class CD | Sub Class CD | Year Built | Area |
| | BAS | BASE/MAIN FLOOR | 4 | 0 | 1992 | 1770.0 |
| | AGR | ATTACHED GARAGE | 4 | 0 | 1992 | 660.0 |
| | OWR | OPEN WOOD PORCH W/STEPS/ROOF | 4 | 0 | 1992 | 240.0 |
| | OWC | OPEN WOOD PORCH W/STEPS/ROOF/C | 4 | 0 | 1992 | 72.0 |
Sketch
Property Image
Land
| 1 | 18 | AC (02.01-03.00) | 0.0000 | 0.00 | 0.00 | 0.00 | 1.00 | $310,000 | $0 |
Roll Value History
| 2026 | N/A | N/A | N/A | N/A | N/A |
| 2025 | $376,424 | $310,000 | $0 | $686,424 | $686,424 |
| 2024 | $381,056 | $300,000 | $0 | $681,056 | $681,056 |
| 2023 | $385,689 | $300,000 | $0 | $685,689 | $685,689 |
| 2022 | $353,435 | $260,000 | $0 | $613,435 | $613,435 |
| 2021 | $278,118 | $190,000 | $0 | $468,118 | $468,118 |
| 2020 | $270,831 | $150,000 | $0 | $420,831 | $420,831 |
| 2019 | $197,485 | $190,000 | $0 | $387,485 | $387,485 |
| 2018 | $198,093 | $180,000 | $0 | $378,093 | $378,093 |
| 2017 | $199,309 | $135,000 | $0 | $334,309 | $334,309 |
| 2016 | $201,739 | $135,000 | $0 | $336,739 | $336,739 |
| 2015 | $197,196 | $100,000 | $0 | $297,196 | $297,196 |
| 2014 | $199,651 | $100,000 | $0 | $299,651 | $299,651 |
| 2013 | $202,107 | $80,000 | $0 | $282,107 | $282,107 |
| 2012 | $204,561 | $80,000 | $0 | $284,561 | $284,561 |
| 2011 | $207,016 | $100,000 | $0 | $307,016 | $307,016 |
| 2010 | $215,185 | $100,000 | $0 | $315,185 | $315,185 |
| 2009 | $213,758 | $100,000 | $0 | $313,758 | $313,758 |
| 2008 | $216,253 | $100,000 | $0 | $316,253 | $316,253 |
| 2007 | $218,816 | $100,000 | $0 | $318,816 | $318,816 |
Deed and Sales History
| 1 | 05/07/2020 | WD | Warranty Deed | CADY, STEPHEN | CADY, STEPHEN | | | $0.00 | 43211 | AF#4487966 |
| 2 | 04/02/1999 | DECREE | Divorce Decree/Legal Separation | CADY, STEPHEN | CADY, STEPHEN | | | $0.00 | 91266 | 99008363 |
| 3 | 10/01/1990 | WD | Warranty Deed | FARR, NORMAN L | CADY, STEPHEN | | | $25,000.00 | 5901 | 90019984 |
| 4 | 06/01/1968 | EZ | Easement | KINSELLA, JAMES R | FARR, NORMAN L | | | $0.00 | 31401 | 0 |
| 5 | 01/01/1900 | OTHER | Other - Misc. Documents | Unknown | KINSELLA, JAMES R | | | $0.00 | 0 | 0 |
Payout Agreement
| No payout information available.. |