Property
Account |
| Property ID: | 168605 | Abbreviated Legal Description: | 4 - S250.205'OF N500.41'OF GL3 EX RD ALG W LN |
| Geographic ID: | R33232-356-1900 | Agent Code: | |
| Type: | Real | | |
| Tax Area: | 592 - APPRAISER-Stan/Cam Schl Dist, Special Dist, improved, greater than 1 acre | Land Use Code | 11 |
| Open Space: | N | DFL | N |
| Historic Property: | N | Remodel Property: | N |
| Multi-Family Redevelopment: | N | | |
| Township: | 32 | Section: | 32 |
| Range: | R3 |
Location |
| Address: | 264 N SUNRISE BLVD CAMANO ISLAND, WA 98282 | Mapsco: | |
| Neighborhood: | Cycle 5 | Map ID: | 998 |
| Neighborhood CD: | 5 |
Owner |
| Name: | WEST, RENEE | Owner ID: | 298803 |
| Mailing Address: | PO BOX 2638 STANWOOD, WA 98292 | % Ownership: | 100.0000000000% |
| | | Exemptions: | |
Taxes and Assessment Details
Values
| (+) Improvement Homesite Value: | + | $0 | |
| (+) Improvement Non-Homesite Value: | + | $1,067,650 | |
| (+) Land Homesite Value: | + | $0 | |
| (+) Land Non-Homesite Value: | + | $550,000 | |
| (+) Curr Use (HS): | + | $0 | $0 |
| (+) Curr Use (NHS): | + | $0 | $0 |
| | | -------------------------- | |
| (=) Market Value: | = | $1,617,650 | |
| (–) Productivity Loss: | – | $0 | |
| | | -------------------------- | |
| (=) Subtotal: | = | $1,617,650 | |
| (+) Senior Appraised Value: | + | $0 | |
| (+) Non-Senior Appraised Value: | + | $1,617,650 | |
| | | -------------------------- | |
| (=) Total Appraised Value: | = | $1,617,650 | |
| (–) Senior Exemption Loss: | – | $0 | |
| (–) Exemption Loss: | – | $0 | |
| | | -------------------------- | |
| (=) Taxable Value: | = | $1,617,650 | |
Taxing Jurisdiction
| Owner: | WEST, RENEE | | |
| % Ownership: | 100.0000000000% | | |
| Total Value: | $1,617,650 | | |
| Tax Area: | 592 - APPRAISER-Stan/Cam Schl Dist, Special Dist, improved, greater than 1 acre |
| CF | Conservation Futures | 0.0316035091 | $1,617,650 | $1,617,650 | $51.12 | | |
| EMS1 | Fire & Rescue Dist #1 Camano GEN (EMS) | 0.3677864386 | $1,617,650 | $1,617,650 | $594.95 | | |
| FIRE1 | Fire & Rescue Dist #1 Camano GEN | 1.2502910536 | $1,617,650 | $1,617,650 | $2,022.53 | | |
| FIRE1BOND | Fire & Rescue Dist #1 Camano BOND | 0.1570001679 | $1,617,650 | $1,617,650 | $253.97 | | |
| CE | County Current Expense | 0.3708482477 | $1,617,650 | $1,617,650 | $599.90 | | |
| CR | County Roads | 0.4584763726 | $1,617,650 | $1,617,650 | $741.65 | | |
| LCIB | Library Sno-Isle BOND (Camano Island) | 0.0396325772 | $1,617,650 | $1,617,650 | $64.11 | | |
| LIB | Library Sno-Isle GEN | 0.3153421757 | $1,617,650 | $1,617,650 | $510.11 | | |
| SCH205_401 | School 205-401 Enrichment | 1.2698420524 | $1,617,650 | $1,617,650 | $2,054.16 | | |
| SCH205BOND | School 205-401 BOND | 0.9396497583 | $1,617,650 | $1,617,650 | $1,520.02 | | |
| ST | State School | 1.3035497053 | $1,617,650 | $1,617,650 | $2,108.69 | | |
| ST2 | State School Part 2 | 0.8169543533 | $1,617,650 | $1,617,650 | $1,321.55 | | |
| | Total Tax Rate: | 7.3209764117 | | | | | |
| | | | | Taxes w/Current Exemptions: | $11,842.76 | | |
| | | | | Taxes w/o Exemptions: | $11,842.76 | | |
Improvement / Building
| Improvement #1: | RESIDENTIAL | State Code: | Y | 3819.0 sqft | Value: | $734,513 |
| Bathrooms: | 3.5 | Bedrooms: | 3 | | Ceiling: | DRYWALL PAINTED | Cooling: | HEAT PUMP/CONV/V | | Exterior Wall/Cover: | CEMENT FIBER | Floor Covering: | VINYL 100% | | Floor Structure: | WOOD W/SUBFLOOR | Foundation: | CONCRETE | | Interior Finish: | DRYWALL PAINT | Plumbing Fixture Cnt: | 18 | | Roof Slope: | 12" IN 12" | Roof Structure/Cover: | CJ ALUMINIUM HEAVY |
|
| | Type | Description | Class CD | Sub Class CD | Year Built | Area |
| | BAS | BASE/MAIN FLOOR | 4 | 0 | 2023 | 3186.0 |
| | UPS | UPPER STORY | 4 | 0 | 2023 | 633.0 |
| | AGR | ATTACHED GARAGE | 4 | 0 | 2023 | 1089.1 |
| | OP4 | OPEN PORCH W/CEILING-ROOF | 4 | 0 | 2023 | 357.0 |
| | OP1 | OPEN PORCH SLAB | 4 | 0 | 2023 | 91.0 |
| | OWR | OPEN WOOD PORCH W/STEPS/ROOF | 4 | 0 | 2023 | 264.0 |
| | OWP | OPEN WOOD PORCH W/STEPS | 4 | 0 | 2023 | 96.0 |
| Improvement #2: | RESIDENTIAL | State Code: | Y | 1188.0 sqft | Value: | $333,137 |
| Bathrooms: | 2 | Bedrooms: | 2 | | Ceiling: | DRYWALL PAINTED | Cooling: | HEAT PUMP/CONV/V | | Exterior Wall/Cover: | CEMENT FIBER | Floor Covering: | VINYL 100% | | Floor Structure: | WOOD W/SUBFLOOR | Foundation: | CONCRETE | | Interior Finish: | DRYWALL PAINT | Plumbing Fixture Cnt: | 11 | | Roof Slope: | 6" IN 12" | Roof Structure/Cover: | CJ ALUMINIUM HEAVY |
|
| | Type | Description | Class CD | Sub Class CD | Year Built | Area |
| | BAS | BASE/MAIN FLOOR | 3 | 0 | 2023 | 1188.0 |
| | AGR | ATTACHED GARAGE | 3 | 0 | 2023 | 1026.0 |
| | OP4 | OPEN PORCH W/CEILING-ROOF | 3 | 0 | 2023 | 190.0 |
| | OWP | OPEN WOOD PORCH W/STEPS | 3 | 0 | 2023 | 80.0 |
Sketch
Property Image
Land
| 1 | HB | HIGH BLUFF | 7.2300 | 314938.80 | 250.00 | 0.00 | 1.00 | $550,000 | $0 |
Roll Value History
| 2026 | N/A | N/A | N/A | N/A | N/A |
| 2025 | $1,067,650 | $550,000 | $0 | $1,617,650 | $1,617,650 |
| 2024 | $1,042,191 | $550,000 | $0 | $1,592,191 | $1,592,191 |
| 2023 | $311,125 | $460,000 | $0 | $771,125 | $771,125 |
| 2022 | $0 | $420,000 | $0 | $420,000 | $420,000 |
| 2021 | $0 | $400,000 | $0 | $400,000 | $400,000 |
| 2020 | $0 | $400,000 | $0 | $400,000 | $400,000 |
| 2019 | $0 | $400,000 | $0 | $400,000 | $400,000 |
| 2018 | $0 | $350,000 | $0 | $350,000 | $350,000 |
| 2017 | $0 | $350,000 | $0 | $350,000 | $350,000 |
| 2016 | $0 | $350,000 | $0 | $350,000 | $350,000 |
| 2015 | $0 | $350,000 | $0 | $350,000 | $350,000 |
| 2014 | $0 | $350,000 | $0 | $350,000 | $350,000 |
| 2013 | $0 | $344,372 | $0 | $344,372 | $344,372 |
| 2012 | $0 | $344,372 | $0 | $344,372 | $344,372 |
| 2011 | $0 | $344,372 | $0 | $344,372 | $344,372 |
| 2010 | $0 | $344,372 | $0 | $344,372 | $344,372 |
| 2009 | $0 | $406,270 | $0 | $406,270 | $406,270 |
| 2008 | $0 | $455,164 | $0 | $455,164 | $455,164 |
| 2007 | $0 | $456,237 | $0 | $456,237 | $456,237 |
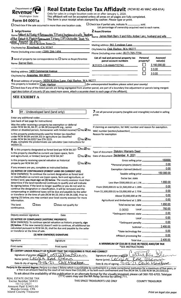
Deed and Sales History
| 1 | 04/01/2021 | WD | Warranty Deed | TADYCH, JOHN M | WEST, RENEE | | | $383,000.00 | 47667 | 4515796 |
Payout Agreement
| No payout information available.. |