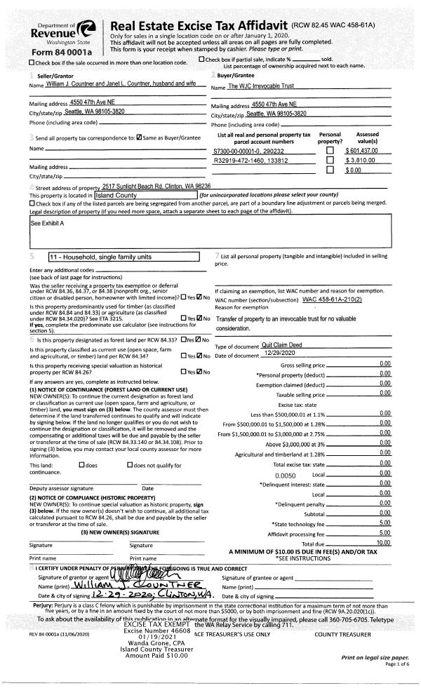
Property
Account |
| Property ID: | 168703 | Abbreviated Legal Description: | 17 - N/2 N/2 S/2 NW NW EX RD EX PT TO IS CO AF#4498818 |
| Geographic ID: | R33232-451-0670 | Agent Code: | |
| Type: | Real | | |
| Tax Area: | 592 - APPRAISER-Stan/Cam Schl Dist, Special Dist, improved, greater than 1 acre | Land Use Code | 11 |
| Open Space: | N | DFL | N |
| Historic Property: | N | Remodel Property: | N |
| Multi-Family Redevelopment: | N | | |
| Township: | 32 | Section: | 32 |
| Range: | R3 |
Location |
| Address: | 337 S SUNRISE BLVD CAMANO ISLAND, WA 98282 | Mapsco: | |
| Neighborhood: | Cycle 5 | Map ID: | 998 |
| Neighborhood CD: | 5 |
Owner |
| Name: | TEED, TRACY | Owner ID: | 188136 |
| Mailing Address: | 337 N SUNRISE BLVD CAMANO ISLAND, WA 98282-8791 | % Ownership: | 100.0000000000% |
| | | Exemptions: | SNR/DSBL |
Taxes and Assessment Details
Values
| (+) Improvement Homesite Value: | + | $99,931 | |
| (+) Improvement Non-Homesite Value: | + | $0 | |
| (+) Land Homesite Value: | + | $360,000 | |
| (+) Land Non-Homesite Value: | + | $0 | |
| (+) Curr Use (HS): | + | $0 | $0 |
| (+) Curr Use (NHS): | + | $0 | $0 |
| | | -------------------------- | |
| (=) Market Value: | = | $459,931 | |
| (–) Productivity Loss: | – | $0 | |
| | | -------------------------- | |
| (=) Subtotal: | = | $459,931 | |
| (+) Senior Appraised Value: | + | $224,999 | |
| (+) Non-Senior Appraised Value: | + | $0 | |
| | | -------------------------- | |
| (=) Total Appraised Value: | = | $224,999 | |
| (–) Senior Exemption Loss: | – | $134,999 | |
| (–) Exemption Loss: | – | $0 | |
| | | -------------------------- | |
| (=) Taxable Value: | = | $90,000 | |
Taxing Jurisdiction
| Owner: | TEED, TRACY | | |
| % Ownership: | 100.0000000000% | | |
| Total Value: | $459,931 | | |
| Tax Area: | 592 - APPRAISER-Stan/Cam Schl Dist, Special Dist, improved, greater than 1 acre |
| CF | Conservation Futures | 0.0316035091 | $459,931 | $90,000 | $2.84 | | |
| EMS1 | Fire & Rescue Dist #1 Camano GEN (EMS) | 0.3677864386 | $459,931 | $90,000 | $33.10 | | |
| FIRE1 | Fire & Rescue Dist #1 Camano GEN | 1.2502910536 | $459,931 | $90,000 | $112.53 | | |
| FIRE1BOND | Fire & Rescue Dist #1 Camano BOND | 0.0000000000 | $459,931 | $0 | $0.00 | | |
| CE | County Current Expense | 0.3708482477 | $459,931 | $90,000 | $33.38 | | |
| CR | County Roads | 0.4584763726 | $459,931 | $90,000 | $41.26 | | |
| LCIB | Library Sno-Isle BOND (Camano Island) | 0.0000000000 | $459,931 | $0 | $0.00 | | |
| LIB | Library Sno-Isle GEN | 0.3153421757 | $459,931 | $90,000 | $28.38 | | |
| SCH205_401 | School 205-401 Enrichment | 0.0000000000 | $459,931 | $0 | $0.00 | | |
| SCH205BOND | School 205-401 BOND | 0.0000000000 | $459,931 | $0 | $0.00 | | |
| ST | State School | 1.3035497053 | $459,931 | $90,000 | $117.32 | | |
| ST2 | State School Part 2 | 0.0000000000 | $459,931 | $0 | $0.00 | | |
| | Total Tax Rate: | 4.0978975026 | | | | | |
| | | | | Taxes w/Current Exemptions: | $368.81 | | |
| | | | | Taxes w/o Exemptions: | $3,367.15 | | |
Improvement / Building
| Improvement #1: | MANUFACTURED HOME | State Code: | Y | 1295.0 sqft | Value: | $99,931 |
| Bathrooms: | 1.75 | Bedrooms: | 2 | | Ceiling: | PLASTER PAINTED | Cooling: | EVAP NO DUCT | | Exterior Wall/Cover: | VINYL | Floor Covering: | CARPET 100% | | Floor Structure: | SLAB ON GRADE | Foundation: | SLAB | | Heating: | FHA ELECTRIC | Interior Finish: | PLASTER | | Plumbing Fixture Cnt: | 1 | Roof Slope: | FLAT | | Roof Structure/Cover: | CJ ALUMINIUM HEAVY |   |   |
|
| | Type | Description | Class CD | Sub Class CD | Year Built | Area |
| | BAS | BASE/MAIN FLOOR | 4 | 0 | 1984 | 1295.0 |
| | oOBD | Out Buildings | 4 | 0 | 1984 | 960.0 |
| | OWR | OPEN WOOD PORCH W/STEPS/ROOF | 4 | 0 | 1984 | 436.1 |
| | DGR | DETACHED GARAGE | 4 | 0 | 1984 | 380.0 |
Sketch
Property Image
Land
| 1 | 32 | AC (03.01-09.99) | 4.8700 | 212137.20 | 0.00 | 0.00 | 1.00 | $360,000 | $0 |
Roll Value History
| 2026 | N/A | N/A | N/A | N/A | N/A |
| 2025 | $99,931 | $360,000 | $0 | $459,931 | $90,000 |
| 2024 | $103,023 | $340,000 | $0 | $443,023 | $90,000 |
| 2023 | $96,841 | $320,000 | $0 | $416,841 | $90,000 |
| 2022 | $93,429 | $300,000 | $0 | $393,429 | $224,999 |
| 2021 | $73,901 | $230,000 | $0 | $303,901 | $224,999 |
| 2020 | $74,562 | $190,000 | $0 | $264,562 | $224,999 |
| 2019 | $67,579 | $220,000 | $0 | $287,579 | $224,999 |
| 2018 | $68,995 | $190,000 | $0 | $258,995 | $224,999 |
| 2017 | $71,119 | $150,000 | $0 | $221,119 | $151,119 |
| 2016 | $72,536 | $135,000 | $0 | $207,536 | $137,536 |
| 2015 | $89,999 | $135,000 | $0 | $224,999 | $154,999 |
| 2014 | $91,219 | $135,000 | $0 | $226,219 | $226,219 |
| 2013 | $93,048 | $110,432 | $0 | $203,480 | $203,480 |
| 2012 | $94,268 | $110,432 | $0 | $204,700 | $204,700 |
| 2011 | $95,487 | $138,040 | $0 | $233,527 | $233,527 |
| 2010 | $96,608 | $138,040 | $0 | $234,648 | $234,648 |
| 2009 | $95,385 | $157,760 | $0 | $253,145 | $253,145 |
| 2008 | $97,762 | $157,760 | $0 | $255,522 | $255,522 |
| 2007 | $99,770 | $157,760 | $0 | $257,530 | $257,530 |
Deed and Sales History
| 1 | 09/21/2020 | WD | Warranty Deed | TEED, TRACY | TEED, TRACY | | | $0.00 | 45134 | 4498818 |
| 2 | 06/18/2002 | WD | Warranty Deed | BELL, SHARON L | TEED, TRACY | | | $156,000.00 | 22440 | 4023857 |
| 3 | 01/01/1993 | DECREE | Divorce Decree/Legal Separation | BELL, CALVIN H | BELL, SHARON L | | | $0.00 | 41470 | 94008944 |
| 4 | 08/01/1992 | WD | Warranty Deed | BELL, SHARON L | BELL, CALVIN H | | | $35,161.00 | 23408 | 92016559 |
| 5 | 05/01/1984 | OTHER | Other - Misc. Documents | DAUM, GEORGE A | BELL, SHARON L | | | $22,621.00 | 11111111 | 0 |
| 6 | 05/01/1983 | REC | Real Estate Contract | HERSHAW, WILLIAM C | DAUM, GEORGE A | | | $25,000.00 | 31407 | 410140 |
| 7 | 04/01/1982 | TRUSTEED | Trustee's Deed | WARNEKE, LOTHAR F | HERSHAW, WILLIAM C | | | $20,000.00 | 20930 | 395487 |
| 8 | 01/01/1900 | OTHER | Other - Misc. Documents | Unknown | WARNEKE, LOTHAR F | | | $0.00 | 0 | 0 |
Payout Agreement
| No payout information available.. |