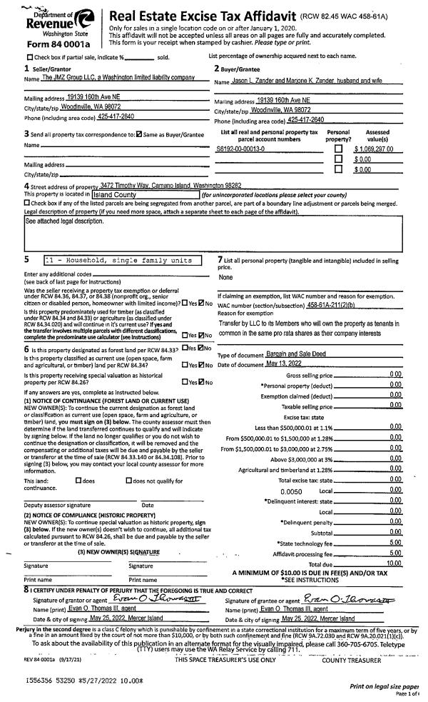
Property
Account |
| Property ID: | 168730 | Abbreviated Legal Description: | 73 - E/2 E/2 S/2 N/2 NWNW EX CO RD TGW & SUB TO EZ EX PT TO IS CO AF#4507450 |
| Geographic ID: | R33232-476-1190 | Agent Code: | |
| Type: | Real | | |
| Tax Area: | 592 - APPRAISER-Stan/Cam Schl Dist, Special Dist, improved, greater than 1 acre | Land Use Code | 11 |
| Open Space: | N | DFL | N |
| Historic Property: | N | Remodel Property: | N |
| Multi-Family Redevelopment: | N | | |
| Township: | 32 | Section: | 32 |
| Range: | R3 |
Location |
| Address: | 351 N SUNRISE BLVD CAMANO ISLAND, WA 98282 | Mapsco: | |
| Neighborhood: | Cycle 5 | Map ID: | 998 |
| Neighborhood CD: | 5 |
Owner |
| Name: | PATTERSON TTEE, RICHARD L | Owner ID: | 298280 |
| Mailing Address: | LORETTA M PATTERSON TTEE 351 N SUNRISE BLVD CAMANO ISLAND, WA 98282 | % Ownership: | 100.0000000000% |
| | | Exemptions: | SNR/DSBL |
Taxes and Assessment Details
Values
| (+) Improvement Homesite Value: | + | $623,740 | |
| (+) Improvement Non-Homesite Value: | + | $0 | |
| (+) Land Homesite Value: | + | $310,000 | |
| (+) Land Non-Homesite Value: | + | $0 | |
| (+) Curr Use (HS): | + | $0 | $0 |
| (+) Curr Use (NHS): | + | $0 | $0 |
| | | -------------------------- | |
| (=) Market Value: | = | $933,740 | |
| (–) Productivity Loss: | – | $0 | |
| | | -------------------------- | |
| (=) Subtotal: | = | $933,740 | |
| (+) Senior Appraised Value: | + | $930,889 | |
| (+) Non-Senior Appraised Value: | + | $0 | |
| | | -------------------------- | |
| (=) Total Appraised Value: | = | $930,889 | |
| (–) Senior Exemption Loss: | – | $558,533 | |
| (–) Exemption Loss: | – | $0 | |
| | | -------------------------- | |
| (=) Taxable Value: | = | $372,356 | |
Taxing Jurisdiction
| Owner: | PATTERSON TTEE, RICHARD L | | |
| % Ownership: | 100.0000000000% | | |
| Total Value: | $933,740 | | |
| Tax Area: | 592 - APPRAISER-Stan/Cam Schl Dist, Special Dist, improved, greater than 1 acre |
| CF | Conservation Futures | 0.0316035091 | $933,740 | $372,356 | $11.77 | | |
| EMS1 | Fire & Rescue Dist #1 Camano GEN (EMS) | 0.3677864386 | $933,740 | $372,356 | $136.95 | | |
| FIRE1 | Fire & Rescue Dist #1 Camano GEN | 1.2502910536 | $933,740 | $372,356 | $465.55 | | |
| FIRE1BOND | Fire & Rescue Dist #1 Camano BOND | 0.0000000000 | $933,740 | $0 | $0.00 | | |
| CE | County Current Expense | 0.3708482477 | $933,740 | $372,356 | $138.09 | | |
| CR | County Roads | 0.4584763726 | $933,740 | $372,356 | $170.72 | | |
| LCIB | Library Sno-Isle BOND (Camano Island) | 0.0000000000 | $933,740 | $0 | $0.00 | | |
| LIB | Library Sno-Isle GEN | 0.3153421757 | $933,740 | $372,356 | $117.42 | | |
| SCH205_401 | School 205-401 Enrichment | 0.0000000000 | $933,740 | $0 | $0.00 | | |
| SCH205BOND | School 205-401 BOND | 0.0000000000 | $933,740 | $0 | $0.00 | | |
| ST | State School | 1.3035497053 | $933,740 | $372,356 | $485.38 | | |
| ST2 | State School Part 2 | 0.0000000000 | $933,740 | $0 | $0.00 | | |
| | Total Tax Rate: | 4.0978975026 | | | | | |
| | | | | Taxes w/Current Exemptions: | $1,525.88 | | |
| | | | | Taxes w/o Exemptions: | $6,835.91 | | |
Improvement / Building
| Improvement #1: | RESIDENTIAL | State Code: | Y | 3738.0 sqft | Value: | $623,740 |
| Bathrooms: | 3.5 | Bedrooms: | 4 | | Ceiling: | DRYWALL PAINTED | Exterior Wall/Cover: | CEMENT FIBER | | Floor Covering: | CARPET/VINYL 60-40 | Floor Structure: | WOOD W/SUBFLOOR | | Foundation: | CONCRETE | Heating: | RADIANT FLOOR | | Interior Finish: | DRYWALL PAINT | Plumbing Fixture Cnt: | 17 | | Roof Slope: | 10" IN 12" | Roof Structure/Cover: | CJ ASPHALT |
|
| | Type | Description | Class CD | Sub Class CD | Year Built | Area |
| | BAS | BASE/MAIN FLOOR | 4 | 0 | 2005 | 1721.0 |
| | DWN | DOWNSTAIRS LIVING AREA | 4 | 0 | 2005 | 1729.0 |
| | OP1 | OPEN PORCH SLAB | 4 | 0 | 2005 | 682.0 |
| | AGR | ATTACHED GARAGE | 4 | 0 | 2005 | 576.0 |
| | OWP | OPEN WOOD PORCH W/STEPS | 4 | 0 | 2005 | 871.0 |
| | OWR | OPEN WOOD PORCH W/STEPS/ROOF | 4 | 0 | 2005 | 116.0 |
| | LOF | LOFT | 4 | 0 | 2005 | 288.0 |
| | OP4 | OPEN PORCH W/CEILING-ROOF | 4 | 0 | 2005 | 309.0 |
| | DGR | DETACHED GARAGE | 4 | 0 | 2005 | 768.0 |
Sketch
Property Image
Land
| 1 | 18 | AC (02.01-03.00) | 0.0000 | 0.00 | 0.00 | 0.00 | 1.00 | $310,000 | $0 |
Roll Value History
| 2026 | N/A | N/A | N/A | N/A | N/A |
| 2025 | $623,740 | $310,000 | $0 | $933,740 | $372,356 |
| 2024 | $630,889 | $300,000 | $0 | $930,889 | $372,356 |
| 2023 | $638,038 | $300,000 | $0 | $938,038 | $938,038 |
| 2022 | $582,597 | $260,000 | $0 | $842,597 | $842,597 |
| 2021 | $511,138 | $190,000 | $0 | $701,138 | $701,138 |
| 2020 | $462,745 | $150,000 | $0 | $612,745 | $612,745 |
| 2019 | $376,438 | $190,000 | $0 | $566,438 | $566,438 |
| 2018 | $377,528 | $180,000 | $0 | $557,528 | $557,528 |
| 2017 | $379,710 | $135,000 | $0 | $514,710 | $514,710 |
| 2016 | $384,075 | $135,000 | $0 | $519,075 | $519,075 |
| 2015 | $397,381 | $100,000 | $0 | $497,381 | $497,381 |
| 2014 | $401,542 | $100,000 | $0 | $501,542 | $501,542 |
| 2013 | $405,702 | $80,000 | $0 | $485,702 | $485,702 |
| 2012 | $409,863 | $80,000 | $0 | $489,863 | $489,863 |
| 2011 | $414,021 | $100,000 | $0 | $514,021 | $514,021 |
| 2010 | $428,192 | $100,000 | $0 | $528,192 | $528,192 |
| 2009 | $441,020 | $100,000 | $0 | $541,020 | $541,020 |
| 2008 | $445,826 | $100,000 | $0 | $545,826 | $545,826 |
| 2007 | $450,673 | $100,000 | $0 | $550,673 | $550,673 |
Deed and Sales History
| 1 | 02/26/2021 | QCD | Quit Claim Deed | PATTERSON, MATTHEW | PATTERSON TTEE, RICHARD L | | | $0.00 | 47113 | 4512131 |
| 2 | 11/20/2020 | WD | Warranty Deed | PATTERSON, RICHARD L | ISLAND COUNTY PUBLIC WORKS | | | $0.00 | 46485 | 4507450 |
| 3 | 09/02/2020 | WD | Warranty Deed | TURNER, MICHAEL | PATTERSON, RICHARD L | | | $729,000.00 | 44788 | 4496819 |
| 4 | 11/07/2003 | WD | Warranty Deed | DAVIDSON, ALEXANDER T | TURNER, MICHAEL | | | $52,500.00 | 35433 | 4084839 |
| 5 | 10/01/1981 | EXECUTORD | Executor Deed | MORGAN, GLENN E | DAVIDSON, ALEXANDER T | | | $17,000.00 | 13449 | 389882 |
| 6 | 01/01/1900 | OTHER | Other - Misc. Documents | Unknown | MORGAN, GLENN E | | | $0.00 | 0 | 0 |
Payout Agreement
| No payout information available.. |