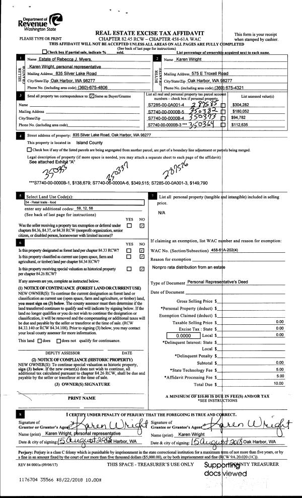
Property
Account |
| Property ID: | 169338 | Abbreviated Legal Description: | 48 - N/2 E/2 OF PT GL4 DESC: BG 20'E & 520'N OF SWCR GL4 N136.9' E TO HWY SELY ALG HWY TP E OF TPB W TPB |
| Geographic ID: | R42930-456-0260 | Agent Code: | |
| Type: | Real | | |
| Tax Area: | 720 - APPRAISER-S Whid Schl Dist, Special District, improved & less than 1 acre | Land Use Code | 11 |
| Open Space: | N | DFL | N |
| Historic Property: | N | Remodel Property: | N |
| Multi-Family Redevelopment: | N | | |
| Township: | 29 | Section: | 30 |
| Range: | R4 |
Location |
| Address: | 8645 SR525 CLINTON, WA 98236 | Mapsco: | |
| Neighborhood: | Cycle 4 | Map ID: | 1002 |
| Neighborhood CD: | 4 |
Owner |
| Name: | HOLMES, CHARLES E | Owner ID: | 287469 |
| Mailing Address: | RYNN MARIE LAMB 8645 STATE ROUTE 525 CLINTON, WA 98236 | % Ownership: | 100.0000000000% |
| | | Exemptions: | |
Taxes and Assessment Details
Values
| (+) Improvement Homesite Value: | + | $0 | |
| (+) Improvement Non-Homesite Value: | + | $265,049 | |
| (+) Land Homesite Value: | + | $0 | |
| (+) Land Non-Homesite Value: | + | $330,000 | |
| (+) Curr Use (HS): | + | $0 | $0 |
| (+) Curr Use (NHS): | + | $0 | $0 |
| | | -------------------------- | |
| (=) Market Value: | = | $595,049 | |
| (–) Productivity Loss: | – | $0 | |
| | | -------------------------- | |
| (=) Subtotal: | = | $595,049 | |
| (+) Senior Appraised Value: | + | $0 | |
| (+) Non-Senior Appraised Value: | + | $595,049 | |
| | | -------------------------- | |
| (=) Total Appraised Value: | = | $595,049 | |
| (–) Senior Exemption Loss: | – | $0 | |
| (–) Exemption Loss: | – | $0 | |
| | | -------------------------- | |
| (=) Taxable Value: | = | $595,049 | |
Taxing Jurisdiction
| Owner: | HOLMES, CHARLES E | | |
| % Ownership: | 100.0000000000% | | |
| Total Value: | $595,049 | | |
| Tax Area: | 720 - APPRAISER-S Whid Schl Dist, Special District, improved & less than 1 acre |
| CF | Conservation Futures | 0.0316035091 | $595,049 | $595,049 | $18.81 | | |
| FIRE3 | Fire & Rescue Dist #3 S Whidbey GEN | 1.2004855531 | $595,049 | $595,049 | $714.35 | | |
| HOBOND | Hospital BOND | 0.1910887512 | $595,049 | $595,049 | $113.71 | | |
| HOGEN | Hospital GEN | 0.3902502903 | $595,049 | $595,049 | $232.22 | | |
| CE | County Current Expense | 0.3708482477 | $595,049 | $595,049 | $220.67 | | |
| CR | County Roads | 0.4584763726 | $595,049 | $595,049 | $272.82 | | |
| ISLANDEMS | Hospital GEN (EMS) | 0.5000000000 | $595,049 | $595,049 | $297.52 | | |
| LIB | Library Sno-Isle GEN | 0.3153421757 | $595,049 | $595,049 | $187.64 | | |
| PORTWHID | Port of S Whidbey GEN | 0.1094540357 | $595,049 | $595,049 | $65.13 | | |
| SCH206BOND | School 206 BOND | 0.3161759235 | $595,049 | $595,049 | $188.14 | | |
| SCH206MO | School 206 Enrichment | 0.4547169547 | $595,049 | $595,049 | $270.58 | | |
| ST | State School | 1.3035497053 | $595,049 | $595,049 | $775.68 | | |
| ST2 | State School Part 2 | 0.8169543533 | $595,049 | $595,049 | $486.13 | | |
| SWHIDPRBD | P & R S Whidbey BOND | 0.0152817568 | $595,049 | $595,049 | $9.09 | | |
| SWHIDPRBD2 | P & R S Whidbey BOND2 | 0.0138911264 | $595,049 | $595,049 | $8.27 | | |
| SWHIDPRMT | P & R S Whidbey GEN | 0.2053334452 | $595,049 | $595,049 | $122.18 | | |
| | Total Tax Rate: | 6.6934522006 | | | | | |
| | | | | Taxes w/Current Exemptions: | $3,982.94 | | |
| | | | | Taxes w/o Exemptions: | $3,982.94 | | |
Improvement / Building
| Improvement #1: | RESIDENTIAL | State Code: | Y | 1214.0 sqft | Value: | $265,049 |
| Bathrooms: | 1.5 | Bedrooms: | 2 | | Ceiling: | TONGUE & GROOVE | Cooling: | HEAT PUMP/CONV/V | | Exterior Wall/Cover: | WOOD SIDING | Floor Covering: | HARDWOOD/CARP 60-40 | | Floor Structure: | WOOD W/SUBFLOOR | Foundation: | CONCRETE | | Interior Finish: | DRYWALL PAINT | Plumbing Fixture Cnt: | 9 | | Roof Slope: | 4" IN 12" | Roof Structure/Cover: | BEAM ALUMINUM HEAVY |
|
| | Type | Description | Class CD | Sub Class CD | Year Built | Area |
| | BAS | BASE/MAIN FLOOR | 3 | 0 | 1973 | 1214.0 |
| | DGR | DETACHED GARAGE | 3 | 0 | 1973 | 336.0 |
| | OWR | OPEN WOOD PORCH W/STEPS/ROOF | 3 | 0 | 1973 | 468.0 |
Sketch
Property Image
Land
| 1 | 14 | SQ (08001-12000) | 0.0000 | 0.00 | 0.00 | 0.00 | 1.00 | $330,000 | $0 |
Roll Value History
| 2026 | N/A | N/A | N/A | N/A | N/A |
| 2025 | $265,049 | $330,000 | $0 | $595,049 | $595,049 |
| 2024 | $268,481 | $310,000 | $0 | $578,481 | $578,481 |
| 2023 | $271,911 | $300,000 | $0 | $571,911 | $571,911 |
| 2022 | $249,332 | $280,000 | $0 | $529,332 | $529,332 |
| 2021 | $219,510 | $230,000 | $0 | $449,510 | $449,510 |
| 2020 | $210,503 | $180,000 | $0 | $390,503 | $390,503 |
| 2019 | $150,429 | $190,000 | $0 | $340,429 | $340,429 |
| 2018 | $145,323 | $160,000 | $0 | $305,323 | $305,323 |
| 2017 | $146,274 | $100,000 | $0 | $246,274 | $246,274 |
| 2016 | $148,172 | $100,000 | $0 | $248,172 | $248,172 |
| 2015 | $150,073 | $100,000 | $0 | $250,073 | $250,073 |
| 2014 | $127,748 | $100,000 | $0 | $227,748 | $227,748 |
| 2013 | $129,546 | $100,000 | $0 | $229,546 | $229,546 |
| 2012 | $131,346 | $106,250 | $0 | $237,596 | $237,596 |
| 2011 | $133,144 | $125,000 | $0 | $258,144 | $258,144 |
| 2010 | $141,150 | $125,000 | $0 | $266,150 | $266,150 |
| 2009 | $145,598 | $150,000 | $0 | $295,598 | $295,598 |
| 2008 | $129,699 | $150,000 | $0 | $279,699 | $279,699 |
| 2007 | $131,596 | $150,000 | $0 | $281,596 | $281,596 |
Deed and Sales History
| 1 | 10/05/2018 | WD | Warranty Deed | BROADBENT, ERIN KAY | HOLMES, CHARLES E | | | $325,000.00 | 36257 | 4453282 |
| 2 | 12/18/2003 | WD | Warranty Deed | HILL, ROSE M | BROADBENT, ERIN KAY | | | $210,000.00 | 35739 | 4086957 |
| 3 | 12/01/1992 | QCD | Quit Claim Deed | MOON, ROSE M | HILL, ROSE M | | | $0.00 | 24985 | 92024620 |
| 4 | 01/01/1991 | WD | Warranty Deed | FILLBROOK, F J | MOON, ROSE M | | | $98,000.00 | 10170 | 91000859 |
| 5 | 01/01/1990 | WD | Warranty Deed | MOON, ROSE M | FILLBROOK, F J | | | $87,950.00 | 545 | 90001745 |
| 6 | 01/01/1990 | WD | Warranty Deed | BISHOP, ARTHUR J | MOON, ROSE M | | | $0.00 | 10679 | 91003058 |
| 7 | 09/01/1987 | WD | Warranty Deed | MALM, LENA | BISHOP, ARTHUR J | | | $60,000.00 | 73064 | 87013538 |
| 8 | 01/01/1900 | OTHER | Other - Misc. Documents | Unknown | MALM, LENA | | | $0.00 | 0 | 0 |
Payout Agreement
| No payout information available.. |