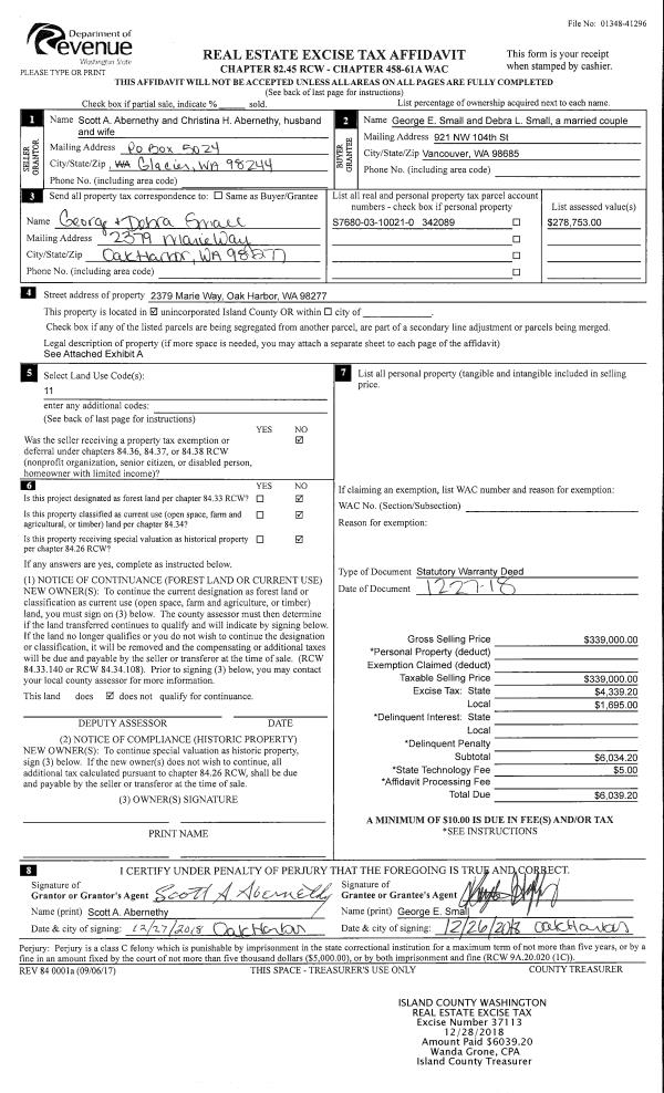
Property
Account |
| Property ID: | 169347 | Abbreviated Legal Description: | 1.5800 Acres ins Section 30s Township 29s Range R4s LOT B BLC AF#4523616;s |
| Geographic ID: | R42930-460-0570 | Agent Code: | |
| Type: | Real | | |
| Tax Area: | 722 - APPRAISER-S Whid Schl Dist, Special District, improved, greater than 1 acre | Land Use Code | 11 |
| Open Space: | N | DFL | N |
| Historic Property: | N | Remodel Property: | N |
| Multi-Family Redevelopment: | N | | |
| Township: | 29 | Section: | 30 |
| Range: | R4 |
Location |
| Address: | 8630 SR525 CLINTON, WA 98236 | Mapsco: | |
| Neighborhood: | Cycle 4 | Map ID: | 1002 |
| Neighborhood CD: | 4 |
Owner |
| Name: | FERRY COVE, LLC | Owner ID: | 306665 |
| Mailing Address: | 5046 16TH AVE NE SEATTLE, WA 98015 | % Ownership: | 100.0000000000% |
| | | Exemptions: | |
Taxes and Assessment Details
Values
| (+) Improvement Homesite Value: | + | $0 | |
| (+) Improvement Non-Homesite Value: | + | $597,462 | |
| (+) Land Homesite Value: | + | $0 | |
| (+) Land Non-Homesite Value: | + | $902,250 | |
| (+) Curr Use (HS): | + | $0 | $0 |
| (+) Curr Use (NHS): | + | $0 | $0 |
| | | -------------------------- | |
| (=) Market Value: | = | $1,499,712 | |
| (–) Productivity Loss: | – | $0 | |
| | | -------------------------- | |
| (=) Subtotal: | = | $1,499,712 | |
| (+) Senior Appraised Value: | + | $0 | |
| (+) Non-Senior Appraised Value: | + | $1,499,712 | |
| | | -------------------------- | |
| (=) Total Appraised Value: | = | $1,499,712 | |
| (–) Senior Exemption Loss: | – | $0 | |
| (–) Exemption Loss: | – | $0 | |
| | | -------------------------- | |
| (=) Taxable Value: | = | $1,499,712 | |
Taxing Jurisdiction
| Owner: | FERRY COVE, LLC | | |
| % Ownership: | 100.0000000000% | | |
| Total Value: | $1,499,712 | | |
| Tax Area: | 722 - APPRAISER-S Whid Schl Dist, Special District, improved, greater than 1 acre |
| CF | Conservation Futures | 0.0316035091 | $1,499,712 | $1,499,712 | $47.40 | | |
| FIRE3 | Fire & Rescue Dist #3 S Whidbey GEN | 1.2004855531 | $1,499,712 | $1,499,712 | $1,800.38 | | |
| HOBOND | Hospital BOND | 0.1910887512 | $1,499,712 | $1,499,712 | $286.58 | | |
| HOGEN | Hospital GEN | 0.3902502903 | $1,499,712 | $1,499,712 | $585.26 | | |
| CE | County Current Expense | 0.3708482477 | $1,499,712 | $1,499,712 | $556.17 | | |
| CR | County Roads | 0.4584763726 | $1,499,712 | $1,499,712 | $687.58 | | |
| ISLANDEMS | Hospital GEN (EMS) | 0.5000000000 | $1,499,712 | $1,499,712 | $749.86 | | |
| LIB | Library Sno-Isle GEN | 0.3153421757 | $1,499,712 | $1,499,712 | $472.92 | | |
| PORTWHID | Port of S Whidbey GEN | 0.1094540357 | $1,499,712 | $1,499,712 | $164.15 | | |
| SCH206BOND | School 206 BOND | 0.3161759235 | $1,499,712 | $1,499,712 | $474.17 | | |
| SCH206MO | School 206 Enrichment | 0.4547169547 | $1,499,712 | $1,499,712 | $681.94 | | |
| ST | State School | 1.3035497053 | $1,499,712 | $1,499,712 | $1,954.95 | | |
| ST2 | State School Part 2 | 0.8169543533 | $1,499,712 | $1,499,712 | $1,225.20 | | |
| SWHIDPRBD | P & R S Whidbey BOND | 0.0152817568 | $1,499,712 | $1,499,712 | $22.92 | | |
| SWHIDPRBD2 | P & R S Whidbey BOND2 | 0.0138911264 | $1,499,712 | $1,499,712 | $20.83 | | |
| SWHIDPRMT | P & R S Whidbey GEN | 0.2053334452 | $1,499,712 | $1,499,712 | $307.94 | | |
| | Total Tax Rate: | 6.6934522006 | | | | | |
| | | | | Taxes w/Current Exemptions: | $10,038.25 | | |
| | | | | Taxes w/o Exemptions: | $10,038.25 | | |
Improvement / Building
| Improvement #1: | RESIDENTIAL | State Code: | Y | 2534.6 sqft | Value: | $395,528 |
| Bathrooms: | 2 | Bedrooms: | 2 | | Ceiling: | DRYWALL PAINTED | Exterior Wall/Cover: | WOOD SIDING | | Floor Covering: | HARDWOOD 100% | Floor Structure: | WOOD W/SUBFLOOR | | Foundation: | CONCRETE BLOCKS | Heating: | BASEBOARD ELECTRIC | | Interior Finish: | DRYWALL PAINT | Plumbing Fixture Cnt: | 10 | | Roof Slope: | 6" IN 12" | Roof Structure/Cover: | CJ ASPHALT |
|
| | Type | Description | Class CD | Sub Class CD | Year Built | Area |
| | BAS | BASE/MAIN FLOOR | 4 | 0 | 1922 | 1031.4 |
| | DWN | DOWNSTAIRS LIVING AREA | 4 | 0 | 1922 | 927.2 |
| | OP1 | OPEN PORCH SLAB | 4 | 0 | 1922 | 379.5 |
| | OWP | OPEN WOOD PORCH W/STEPS | 4 | 0 | 1922 | 730.1 |
| | OWP | OPEN WOOD PORCH W/STEPS | 4 | 0 | 1922 | 56.0 |
| | OWP | OPEN WOOD PORCH W/STEPS | 4 | 0 | 1922 | 372.0 |
| | OWC | OPEN WOOD PORCH W/STEPS/ROOF/C | 4 | 0 | 1922 | 157.4 |
| | UPH | HALF STORY | 4 | 0 | 1922 | 576.0 |
| Improvement #2: | RESIDENTIAL | State Code: | Y | 1154.0 sqft | Value: | $201,934 |
| Bathrooms: | 1 | Bedrooms: | 2 | | Ceiling: | DRYWALL PAINTED | Exterior Wall/Cover: | SHINGLE | | Floor Covering: | CERAMIC TILE/CPT 40-60 | Floor Structure: | WOOD W/SUBFLOOR | | Foundation: | CONCRETE BLOCKS | Heating: | BASEBOARD ELECTRIC | | Interior Finish: | DRYWALL PAINT | Plumbing Fixture Cnt: | 6 | | Roof Slope: | 4" IN 12" | Roof Structure/Cover: | CJ ASPHALT |
|
| | Type | Description | Class CD | Sub Class CD | Year Built | Area |
| | BAS | BASE/MAIN FLOOR | 3 | 0 | 1947 | 1154.0 |
| | OWP | OPEN WOOD PORCH W/STEPS | 3 | 0 | 1947 | 322.5 |
| | OWP | OPEN WOOD PORCH W/STEPS | 3 | 0 | 1947 | 240.0 |
| | OWC | OPEN WOOD PORCH W/STEPS/ROOF/C | 3 | 0 | 1947 | 112.0 |
Sketch
Property Image
Land
| 1 | LB | LOW BANK | 1.4600 | 63597.60 | 265.00 | 0.00 | 1.00 | $900,000 | $0 |
| 2 | 55 | TIDES | 0.0000 | 0.00 | 265.00 | 0.00 | 1.00 | $2,250 | $0 |
Roll Value History
| 2026 | N/A | N/A | N/A | N/A | N/A |
| 2025 | $597,462 | $902,250 | $0 | $1,499,712 | $1,499,712 |
| 2024 | $617,122 | $877,250 | $0 | $1,494,372 | $1,494,372 |
| 2023 | $553,178 | $877,250 | $0 | $1,430,428 | $1,430,428 |
| 2022 | $507,445 | $877,250 | $0 | $1,384,695 | $1,384,695 |
| 2021 | $446,922 | $702,250 | $0 | $1,149,172 | $1,149,172 |
| 2020 | $421,514 | $652,250 | $0 | $1,073,764 | $1,073,764 |
| 2019 | $307,429 | $602,250 | $0 | $909,679 | $909,679 |
| 2018 | $308,412 | $602,250 | $0 | $910,662 | $910,662 |
| 2017 | $310,339 | $602,250 | $0 | $912,589 | $912,589 |
| 2016 | $314,274 | $602,250 | $0 | $916,524 | $916,524 |
| 2015 | $318,211 | $602,250 | $0 | $920,461 | $920,461 |
| 2014 | $270,332 | $602,250 | $0 | $872,582 | $872,582 |
| 2013 | $274,082 | $719,748 | $0 | $993,830 | $993,830 |
| 2012 | $277,837 | $704,748 | $0 | $982,585 | $982,585 |
| 2011 | $281,591 | $828,718 | $0 | $1,110,309 | $1,110,309 |
| 2010 | $276,620 | $828,718 | $0 | $1,105,338 | $1,105,338 |
| 2009 | $286,565 | $909,435 | $0 | $1,196,000 | $1,196,000 |
| 2008 | $268,495 | $909,435 | $0 | $1,177,930 | $1,177,930 |
| 2007 | $272,224 | $907,860 | $0 | $1,180,084 | $1,180,084 |
Deed and Sales History
| 1 | 10/14/2022 | QCD | Quit Claim Deed | ANDERSON TTEE, WESLEY J | FERRY COVE, LLC | | | $0.00 | 55153 | 4553825 |
| 2 | 10/14/2022 | QCD | Quit Claim Deed | ANDERSON, WESLEY | ANDERSON TTEE, WESLEY J | | | $0.00 | 55151 | 4553817 |
| 3 | 04/07/2021 | WD | Warranty Deed | EAST BEACH HOLDINGS, LLC | ANDERSON TTEE, WESLEY J | | | $1,225,000.00 | 47782 | 4516525 |
| 4 | 12/28/2018 | WD | Warranty Deed | CREGER, CHESTER B | EAST BEACH HOLDINGS, LLC | | | $825,000.00 | 37297 | 4457808 |
| 5 | 06/25/2003 | WD | Warranty Deed | LITTLE, JAYANA M | CREGER, CHESTER B | | | $775,000.00 | 32801 | 4064861 |
| 6 | 02/26/2001 | QCD | Quit Claim Deed | MILKOWSKI, FRANK T | LITTLE, JAYANA M | | | $221,000.00 | 10569 | 20025986 |
| 7 | 02/14/2001 | QCD | Quit Claim Deed | MILKOWSKI, FRANK T | MILKOWSKI, FRANK T | | | $221,000.00 | 10494 | 20025613 |
| 8 | 05/24/2000 | WD | Warranty Deed | BROWNE, RUSSELL E | MILKOWSKI, FRANK T | | | $255,000.00 | 2044 | 20009723 |
| 9 | 05/24/2000 | QCD | Quit Claim Deed | GOUDY, JAMES L | BROWNE, RUSSELL E | | | $0.00 | 2043 | 20010335 |
| 10 | 03/01/1995 | QCD | Quit Claim Deed | GOUDY, JAMES L | GOUDY, JAMES L | | | $0.00 | 50865 | 95004195 |
| 11 | 06/01/1990 | PRD | Personal Representatives Deed | GOUDY, JAMES L | GOUDY, JAMES L | | | $0.00 | 3301 | 90010738 |
| 12 | 06/01/1990 | PRD | Personal Representatives Deed | GOUDY, JAMES L | GOUDY, JAMES L | | | $0.00 | 3302 | 90010739 |
| 13 | 06/01/1990 | PRD | Personal Representatives Deed | GOUDY, JAMES L | GOUDY, JAMES L | | | $0.00 | 3303 | 90010740 |
| 14 | 07/01/1983 | QCD | Quit Claim Deed | GOUDY, JAMES L | GOUDY, JAMES L | | | $0.00 | 40047 | 0 |
| 15 | 07/01/1983 | QCD | Quit Claim Deed | Unknown | GOUDY, JAMES L | | | $0.00 | 40048 | 0 |
Payout Agreement
| No payout information available.. |