Property
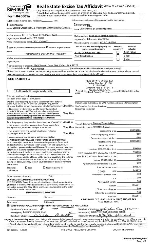
Account |
| Property ID: | 169597 | Abbreviated Legal Description: | 104 - IN GL 2: S50'OF FOLL DESC: BG NECR GL2 W200' S @ R/A TO NLN GL2 200' E200'TO ML NLY ALG ML TPB TGW EZ INCL ADJ TIDES & SHORELANDS |
| Geographic ID: | R42931-247-1220 | Agent Code: | |
| Type: | Real | | |
| Tax Area: | 720 - APPRAISER-S Whid Schl Dist, Special District, improved & less than 1 acre | Land Use Code | 11 |
| Open Space: | N | DFL | N |
| Historic Property: | N | Remodel Property: | N |
| Multi-Family Redevelopment: | N | | |
| Township: | 29 | Section: | 31 |
| Range: | R4 |
Location |
| Address: | 7017 RUDY WAY CLINTON, WA 98236 | Mapsco: | |
| Neighborhood: | Cycle 4 | Map ID: | 1003 |
| Neighborhood CD: | 4 |
Owner |
| Name: | SCHERPELZ, ERIKA RICE | Owner ID: | 300091 |
| Mailing Address: | JEFFREY SCHERPELZ 4039 131ST PL SE BELLEVUE, WA 98006 | % Ownership: | 100.0000000000% |
| | | Exemptions: | |
Taxes and Assessment Details
Values
| (+) Improvement Homesite Value: | + | $0 | |
| (+) Improvement Non-Homesite Value: | + | $213,837 | |
| (+) Land Homesite Value: | + | $0 | |
| (+) Land Non-Homesite Value: | + | $775,500 | |
| (+) Curr Use (HS): | + | $0 | $0 |
| (+) Curr Use (NHS): | + | $0 | $0 |
| | | -------------------------- | |
| (=) Market Value: | = | $989,337 | |
| (–) Productivity Loss: | – | $0 | |
| | | -------------------------- | |
| (=) Subtotal: | = | $989,337 | |
| (+) Senior Appraised Value: | + | $0 | |
| (+) Non-Senior Appraised Value: | + | $989,337 | |
| | | -------------------------- | |
| (=) Total Appraised Value: | = | $989,337 | |
| (–) Senior Exemption Loss: | – | $0 | |
| (–) Exemption Loss: | – | $0 | |
| | | -------------------------- | |
| (=) Taxable Value: | = | $989,337 | |
Taxing Jurisdiction
| Owner: | SCHERPELZ, ERIKA RICE | | |
| % Ownership: | 100.0000000000% | | |
| Total Value: | $989,337 | | |
| Tax Area: | 720 - APPRAISER-S Whid Schl Dist, Special District, improved & less than 1 acre |
| CF | Conservation Futures | 0.0316035091 | $989,337 | $989,337 | $31.27 | | |
| FIRE3 | Fire & Rescue Dist #3 S Whidbey GEN | 1.2004855531 | $989,337 | $989,337 | $1,187.68 | | |
| HOBOND | Hospital BOND | 0.1910887512 | $989,337 | $989,337 | $189.05 | | |
| HOGEN | Hospital GEN | 0.3902502903 | $989,337 | $989,337 | $386.09 | | |
| CE | County Current Expense | 0.3708482477 | $989,337 | $989,337 | $366.89 | | |
| CR | County Roads | 0.4584763726 | $989,337 | $989,337 | $453.59 | | |
| ISLANDEMS | Hospital GEN (EMS) | 0.5000000000 | $989,337 | $989,337 | $494.67 | | |
| LIB | Library Sno-Isle GEN | 0.3153421757 | $989,337 | $989,337 | $311.98 | | |
| PORTWHID | Port of S Whidbey GEN | 0.1094540357 | $989,337 | $989,337 | $108.29 | | |
| SCH206BOND | School 206 BOND | 0.3161759235 | $989,337 | $989,337 | $312.80 | | |
| SCH206MO | School 206 Enrichment | 0.4547169547 | $989,337 | $989,337 | $449.87 | | |
| ST | State School | 1.3035497053 | $989,337 | $989,337 | $1,289.65 | | |
| ST2 | State School Part 2 | 0.8169543533 | $989,337 | $989,337 | $808.24 | | |
| SWHIDPRBD | P & R S Whidbey BOND | 0.0152817568 | $989,337 | $989,337 | $15.12 | | |
| SWHIDPRBD2 | P & R S Whidbey BOND2 | 0.0138911264 | $989,337 | $989,337 | $13.74 | | |
| SWHIDPRMT | P & R S Whidbey GEN | 0.2053334452 | $989,337 | $989,337 | $203.14 | | |
| | Total Tax Rate: | 6.6934522006 | | | | | |
| | | | | Taxes w/Current Exemptions: | $6,622.07 | | |
| | | | | Taxes w/o Exemptions: | $6,622.07 | | |
Improvement / Building
| Improvement #1: | RESIDENTIAL | State Code: | Y | 1110.0 sqft | Value: | $213,837 |
| Bathrooms: | 1 | Bedrooms: | 2 | | Ceiling: | TONGUE & GROOVE | Exterior Wall/Cover: | WOOD SIDING | | Floor Covering: | CARPET/VINYL 80-20 | Floor Structure: | WOOD W/SUBFLOOR | | Foundation: | CONCRETE | Heating: | BASEBOARD ELECTRIC | | Interior Finish: | DRYWALL PAINT | Plumbing Fixture Cnt: | 6 | | Roof Slope: | 5" IN 12" | Roof Structure/Cover: | BEAM ASPHALT |
|
| | Type | Description | Class CD | Sub Class CD | Year Built | Area |
| | BAS | BASE/MAIN FLOOR | 3 | 0 | 1980 | 1110.0 |
| | OWP | OPEN WOOD PORCH W/STEPS | 3 | 0 | 1980 | 739.0 |
| | OWC | OPEN WOOD PORCH W/STEPS/ROOF/C | 3 | 0 | 1980 | 54.0 |
| | OWC | OPEN WOOD PORCH W/STEPS/ROOF/C | 3 | 0 | 1980 | 54.0 |
Sketch
Property Image
Land
| 1 | LB | LOW BANK | 0.2300 | 10018.80 | 50.00 | 0.00 | 1.00 | $775,000 | $0 |
| 2 | 55 | TIDES | 0.0000 | 0.00 | 50.00 | 0.00 | 1.00 | $500 | $0 |
Roll Value History
| 2026 | N/A | N/A | N/A | N/A | N/A |
| 2025 | $213,837 | $775,500 | $0 | $989,337 | $989,337 |
| 2024 | $220,944 | $750,500 | $0 | $971,444 | $971,444 |
| 2023 | $223,631 | $750,500 | $0 | $974,131 | $974,131 |
| 2022 | $204,931 | $700,500 | $0 | $905,431 | $905,431 |
| 2021 | $176,079 | $600,500 | $0 | $776,579 | $776,579 |
| 2020 | $171,745 | $600,500 | $0 | $772,245 | $772,245 |
| 2019 | $124,162 | $480,500 | $0 | $604,662 | $604,662 |
| 2018 | $121,612 | $400,500 | $0 | $522,112 | $522,112 |
| 2017 | $122,340 | $400,500 | $0 | $522,840 | $522,840 |
| 2016 | $123,797 | $400,500 | $0 | $524,297 | $524,297 |
| 2015 | $125,255 | $400,500 | $0 | $525,755 | $525,755 |
| 2014 | $119,127 | $400,500 | $0 | $519,627 | $519,627 |
| 2013 | $120,715 | $400,500 | $0 | $521,215 | $521,215 |
| 2012 | $122,303 | $440,110 | $0 | $562,413 | $562,413 |
| 2011 | $123,891 | $517,688 | $0 | $641,579 | $641,579 |
| 2010 | $130,825 | $517,688 | $0 | $648,513 | $648,513 |
| 2009 | $136,482 | $617,944 | $0 | $754,426 | $754,426 |
| 2008 | $131,438 | $617,944 | $0 | $749,382 | $749,382 |
| 2007 | $133,100 | $617,594 | $0 | $750,694 | $750,694 |
Deed and Sales History
| 1 | 06/22/2021 | WD | Warranty Deed | POTTER, REBECCA A | SCHERPELZ, ERIKA RICE | | | $1,675,000.00 | 49028 | 4523580 |
|   | |
| 2 | 04/17/2019 | WD | Warranty Deed | STAMEY, PAUL A | POTTER, REBECCA A | | | $920,000.00 | 38484 | 4463232 |
|   | |
| 3 | 10/05/2005 | WD | Warranty Deed | DAVIES TRUSTEES, JOHN R/ANGEL | STAMEY, PAUL A | | | $739,950.00 | 55202 | 4150779 |
| 4 | 04/29/1998 | QCD | Quit Claim Deed | DAVIES, JOHN R | DAVIES TRUSTEES, JOHN R/ANGEL | | | $0.00 | 81694 | 98009107 |
| 5 | 03/01/1973 | TRUSTEED | Trustee's Deed | Unknown | DAVIES, JOHN R | | | $0.00 | 47146 | 0 |
| 6 | 01/01/1900 | TRUSTEED | Trustee's Deed | Unknown | DAVIES, JOHN R | | | $0.00 | 81694 | 98009107 |
Payout Agreement
| No payout information available.. |