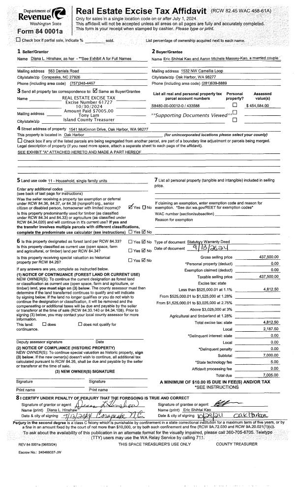
Property
Account |
| Property ID: | 16967 | Abbreviated Legal Description: | 31 - N150'OF W870'OF S/2 NE SW EX CORD |
| Geographic ID: | R13209-191-1770 | Agent Code: | |
| Type: | Real | | |
| Tax Area: | 112 - APPRAISER-OH Schl Dist, outside OH, improved, greater than 1 acre | Land Use Code | 11 |
| Open Space: | N | DFL | N |
| Historic Property: | N | Remodel Property: | N |
| Multi-Family Redevelopment: | N | | |
| Township: | 32 | Section: | 09 |
| Range: | R1 |
Location |
| Address: | | Mapsco: | |
| Neighborhood: | Cycle 1 | Map ID: | 112 |
| Neighborhood CD: | 1 |
Owner |
| Name: | ENCINAS, JOHN | Owner ID: | 311758 |
| Mailing Address: | TAMARA MH ENCINAS 630 SE FOUNDERS DR OAK HARBOR, WA 98277 | % Ownership: | 100.0000000000% |
| | | Exemptions: | |
Taxes and Assessment Details
Values
| (+) Improvement Homesite Value: | + | $0 | |
| (+) Improvement Non-Homesite Value: | + | $291,998 | |
| (+) Land Homesite Value: | + | $0 | |
| (+) Land Non-Homesite Value: | + | $260,000 | |
| (+) Curr Use (HS): | + | $0 | $0 |
| (+) Curr Use (NHS): | + | $0 | $0 |
| | | -------------------------- | |
| (=) Market Value: | = | $551,998 | |
| (–) Productivity Loss: | – | $0 | |
| | | -------------------------- | |
| (=) Subtotal: | = | $551,998 | |
| (+) Senior Appraised Value: | + | $0 | |
| (+) Non-Senior Appraised Value: | + | $551,998 | |
| | | -------------------------- | |
| (=) Total Appraised Value: | = | $551,998 | |
| (–) Senior Exemption Loss: | – | $0 | |
| (–) Exemption Loss: | – | $0 | |
| | | -------------------------- | |
| (=) Taxable Value: | = | $551,998 | |
Taxing Jurisdiction
| Owner: | ENCINAS, JOHN | | |
| % Ownership: | 100.0000000000% | | |
| Total Value: | $551,998 | | |
| Tax Area: | 112 - APPRAISER-OH Schl Dist, outside OH, improved, greater than 1 acre |
| CF | Conservation Futures | 0.0316035091 | $551,998 | $551,998 | $17.45 | | |
| CEM1 | Cemetery #1 | 0.0040320932 | $551,998 | $551,998 | $2.23 | | |
| FIRE2 | Fire & Rescue Dist #2 N Whidbey GEN | 0.5475949600 | $551,998 | $551,998 | $302.27 | | |
| HOBOND | Hospital BOND | 0.1910887512 | $551,998 | $551,998 | $105.48 | | |
| HOGEN | Hospital GEN | 0.3902502903 | $551,998 | $551,998 | $215.42 | | |
| CE | County Current Expense | 0.3708482477 | $551,998 | $551,998 | $204.71 | | |
| CR | County Roads | 0.4584763726 | $551,998 | $551,998 | $253.08 | | |
| ISLANDEMS | Hospital GEN (EMS) | 0.5000000000 | $551,998 | $551,998 | $276.00 | | |
| LIB | Library Sno-Isle GEN | 0.3153421757 | $551,998 | $551,998 | $174.07 | | |
| NWHIDPRMT | P & R N Whidbey GEN | 0.2004466701 | $551,998 | $551,998 | $110.65 | | |
| SCH201MO | School 201 Enrichment | 1.8559231640 | $551,998 | $551,998 | $1,024.47 | | |
| ST | State School | 1.3035497053 | $551,998 | $551,998 | $719.56 | | |
| ST2 | State School Part 2 | 0.8169543533 | $551,998 | $551,998 | $450.96 | | |
| | Total Tax Rate: | 6.9861102925 | | | | | |
| | | | | Taxes w/Current Exemptions: | $3,856.35 | | |
| | | | | Taxes w/o Exemptions: | $3,856.35 | | |
Improvement / Building
| Improvement #1: | RESIDENTIAL | State Code: | Y | 988.0 sqft | Value: | $291,998 |
| Bathrooms: | 1 | Bedrooms: | 2 | | Ceiling: | DRYWALL PAINTED | Cooling: | HEAT PUMP/CONV/V | | Exterior Wall/Cover: | CEMENT FIBER | Floor Covering: | VINYL 100% | | Floor Structure: | WOOD W/SUBFLOOR | Foundation: | CONCRETE | | Interior Finish: | DRYWALL PAINT | Plumbing Fixture Cnt: | 6 | | Roof Slope: | 5" IN 12" | Roof Structure/Cover: | CJ ASPHALT |
|
| | Type | Description | Class CD | Sub Class CD | Year Built | Area |
| | BAS | BASE/MAIN FLOOR | 3 | 0 | 2021 | 988.0 |
| | AGR | ATTACHED GARAGE | 3 | 0 | 2021 | 1296.0 |
| | OP4 | OPEN PORCH W/CEILING-ROOF | 3 | 0 | 2021 | 200.0 |
| | UTY | STORAGE/UTILITY | 3 | 0 | 2021 | 192.0 |
Sketch
Property Image
Land
| 1 | 18 | AC (02.01-03.00) | 2.9400 | 128066.40 | 0.00 | 0.00 | 1.00 | $260,000 | $0 |
Roll Value History
| 2026 | N/A | N/A | N/A | N/A | N/A |
| 2025 | $291,998 | $260,000 | $0 | $551,998 | $551,998 |
| 2024 | $294,316 | $260,000 | $0 | $554,316 | $554,316 |
| 2023 | $282,925 | $240,000 | $0 | $522,925 | $522,925 |
| 2022 | $260,848 | $220,000 | $0 | $480,848 | $480,848 |
| 2021 | $35,026 | $100,000 | $0 | $135,026 | $135,026 |
| 2020 | $0 | $80,000 | $0 | $80,000 | $80,000 |
| 2019 | $0 | $100,000 | $0 | $100,000 | $100,000 |
| 2018 | $0 | $75,000 | $0 | $75,000 | $75,000 |
| 2017 | $0 | $75,000 | $0 | $75,000 | $75,000 |
| 2016 | $0 | $75,000 | $0 | $75,000 | $75,000 |
| 2015 | $0 | $60,000 | $0 | $60,000 | $60,000 |
| 2014 | $0 | $60,000 | $0 | $60,000 | $60,000 |
| 2013 | $0 | $75,000 | $0 | $75,000 | $75,000 |
| 2012 | $0 | $75,000 | $0 | $75,000 | $75,000 |
| 2011 | $0 | $75,000 | $0 | $75,000 | $75,000 |
| 2010 | $0 | $75,000 | $0 | $75,000 | $75,000 |
| 2009 | $0 | $72,600 | $0 | $72,600 | $72,600 |
| 2008 | $0 | $67,082 | $0 | $67,082 | $67,082 |
| 2007 | $0 | $67,082 | $0 | $67,082 | $67,082 |
Deed and Sales History
| 1 | 02/29/2024 | QCD | Quit Claim Deed | ENCINAS, JOHN | ENCINAS, JOHN | | | $0.00 | 59326 | 4569906 |
| 2 | 08/25/2021 | QCD | Quit Claim Deed | ENCINAS CONSTRUCTION INC | ENCINAS, JOHN | | | $0.00 | 49834 | 4527978 |
| 3 | 04/21/2016 | EZ | Easement | ENCINAS CONSTRUCTION INC | ENCINAS CONSTRUCTION INC | | | $0.00 | 24356 | 4399507 |
| 4 | 06/28/2004 | WD | Warranty Deed | EELKEMA, GERARD | ENCINAS CONSTRUCTION INC, | | | $53,500.00 | 52861 | 4105174 |
| 5 | 01/01/1900 | OTHER | Other - Misc. Documents | Unknown | EELKEMA, GERARD | | | $0.00 | 0 | 0 |
Payout Agreement
| No payout information available.. |