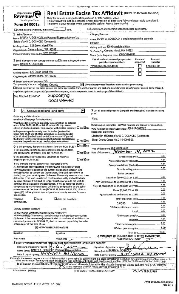
Property
Account |
| Property ID: | 169837 | Abbreviated Legal Description: | 114 - PT GL4 DESC: BG SECR LOT 27 POSSESSION VW BCH #2 S87*E126.40' N8*W50.76' TPB N8W86.06' TO SWCR PETERSON TR AF#183428 N86*E114.80' TO WLN CHASE,JR TR AF#157095 S02*W ALG WLN SD CHASE TR 83.96' S85*W97.09' TPB SUB TO EZ AF# 86014150 |
| Geographic ID: | R42931-460-1050 | Agent Code: | |
| Type: | Real | | |
| Tax Area: | 710 - APPRAISER-S Whid Schl Dist, outside Langley, improved & 1 acre or less | Land Use Code | 11 |
| Open Space: | N | DFL | N |
| Historic Property: | N | Remodel Property: | N |
| Multi-Family Redevelopment: | N | | |
| Township: | 29 | Section: | 31 |
| Range: | R4 |
Location |
| Address: | 6851 SEASHELL DR CLINTON, WA 98236 | Mapsco: | |
| Neighborhood: | Cycle 4 | Map ID: | 1004 |
| Neighborhood CD: | 4 |
Owner |
| Name: | GOEHNER, KEVIN AND PENNY | Owner ID: | 133456 |
| Mailing Address: | 2024 CENTER COURT DR WENATCHEE, WA 98801-7305 | % Ownership: | 100.0000000000% |
| | | Exemptions: | |
Taxes and Assessment Details
Values
| (+) Improvement Homesite Value: | + | $0 | |
| (+) Improvement Non-Homesite Value: | + | $74,241 | |
| (+) Land Homesite Value: | + | $0 | |
| (+) Land Non-Homesite Value: | + | $250,000 | |
| (+) Curr Use (HS): | + | $0 | $0 |
| (+) Curr Use (NHS): | + | $0 | $0 |
| | | -------------------------- | |
| (=) Market Value: | = | $324,241 | |
| (–) Productivity Loss: | – | $0 | |
| | | -------------------------- | |
| (=) Subtotal: | = | $324,241 | |
| (+) Senior Appraised Value: | + | $0 | |
| (+) Non-Senior Appraised Value: | + | $324,241 | |
| | | -------------------------- | |
| (=) Total Appraised Value: | = | $324,241 | |
| (–) Senior Exemption Loss: | – | $0 | |
| (–) Exemption Loss: | – | $0 | |
| | | -------------------------- | |
| (=) Taxable Value: | = | $324,241 | |
Taxing Jurisdiction
| Owner: | GOEHNER, KEVIN AND PENNY | | |
| % Ownership: | 100.0000000000% | | |
| Total Value: | $324,241 | | |
| Tax Area: | 710 - APPRAISER-S Whid Schl Dist, outside Langley, improved & 1 acre or less |
| CF | Conservation Futures | 0.0316035091 | $324,241 | $324,241 | $10.25 | | |
| FIRE3 | Fire & Rescue Dist #3 S Whidbey GEN | 1.2004855531 | $324,241 | $324,241 | $389.25 | | |
| HOBOND | Hospital BOND | 0.1910887512 | $324,241 | $324,241 | $61.96 | | |
| HOGEN | Hospital GEN | 0.3902502903 | $324,241 | $324,241 | $126.54 | | |
| CE | County Current Expense | 0.3708482477 | $324,241 | $324,241 | $120.24 | | |
| CR | County Roads | 0.4584763726 | $324,241 | $324,241 | $148.66 | | |
| ISLANDEMS | Hospital GEN (EMS) | 0.5000000000 | $324,241 | $324,241 | $162.12 | | |
| LIB | Library Sno-Isle GEN | 0.3153421757 | $324,241 | $324,241 | $102.25 | | |
| PORTWHID | Port of S Whidbey GEN | 0.1094540357 | $324,241 | $324,241 | $35.49 | | |
| SCH206BOND | School 206 BOND | 0.3161759235 | $324,241 | $324,241 | $102.52 | | |
| SCH206MO | School 206 Enrichment | 0.4547169547 | $324,241 | $324,241 | $147.44 | | |
| ST | State School | 1.3035497053 | $324,241 | $324,241 | $422.66 | | |
| ST2 | State School Part 2 | 0.8169543533 | $324,241 | $324,241 | $264.89 | | |
| SWHIDPRBD | P & R S Whidbey BOND | 0.0152817568 | $324,241 | $324,241 | $4.95 | | |
| SWHIDPRBD2 | P & R S Whidbey BOND2 | 0.0138911264 | $324,241 | $324,241 | $4.50 | | |
| SWHIDPRMT | P & R S Whidbey GEN | 0.2053334452 | $324,241 | $324,241 | $66.58 | | |
| | Total Tax Rate: | 6.6934522006 | | | | | |
| | | | | Taxes w/Current Exemptions: | $2,170.30 | | |
| | | | | Taxes w/o Exemptions: | $2,170.30 | | |
Improvement / Building
| Improvement #1: | MANUFACTURED HOME | State Code: | Y | 646.0 sqft | Value: | $74,241 |
| Bathrooms: | 0 | Bedrooms: | 0 | | Ceiling: | PLASTER PAINTED | Cooling: | EVAP NO DUCT | | Exterior Wall/Cover: | VINYL | Floor Covering: | CARPET 100% | | Floor Structure: | SLAB ON GRADE | Foundation: | SLAB | | Heating: | FHA ELECTRIC | Interior Finish: | PLASTER | | Plumbing Fixture Cnt: | 1 | Roof Slope: | FLAT | | Roof Structure/Cover: | CJ ALUMINIUM HEAVY |   |   |
|
| | Type | Description | Class CD | Sub Class CD | Year Built | Area |
| | BAS | BASE/MAIN FLOOR | 6 | 0 | 2003 | 380.0 |
| | OWP | OPEN WOOD PORCH W/STEPS | 6 | 0 | 2003 | 346.0 |
| | LOF | LOFT | 6 | 0 | 2003 | 266.0 |
Sketch
Property Image
Land
| 1 | 15 | SQ (12001-21780) | 0.0000 | 0.00 | 0.00 | 0.00 | 1.00 | $250,000 | $0 |
Roll Value History
| 2026 | N/A | N/A | N/A | N/A | N/A |
| 2025 | $74,241 | $250,000 | $0 | $324,241 | $324,241 |
| 2024 | $76,220 | $230,000 | $0 | $306,220 | $306,220 |
| 2023 | $67,998 | $230,000 | $0 | $297,998 | $297,998 |
| 2022 | $63,135 | $210,000 | $0 | $273,135 | $273,135 |
| 2021 | $56,254 | $150,000 | $0 | $206,254 | $206,254 |
| 2020 | $51,982 | $120,000 | $0 | $171,982 | $171,982 |
| 2019 | $41,979 | $170,000 | $0 | $211,979 | $211,979 |
| 2018 | $43,016 | $130,000 | $0 | $173,016 | $173,016 |
| 2017 | $44,054 | $100,000 | $0 | $144,054 | $144,054 |
| 2016 | $44,572 | $100,000 | $0 | $144,572 | $144,572 |
| 2015 | $45,089 | $100,000 | $0 | $145,089 | $145,089 |
| 2014 | $25,721 | $100,000 | $0 | $125,721 | $125,721 |
| 2013 | $25,833 | $100,000 | $0 | $125,833 | $125,833 |
| 2012 | $26,056 | $85,000 | $0 | $111,056 | $111,056 |
| 2011 | $26,167 | $100,000 | $0 | $126,167 | $126,167 |
| 2010 | $25,540 | $100,000 | $0 | $125,540 | $125,540 |
| 2009 | $26,712 | $120,000 | $0 | $146,712 | $146,712 |
| 2008 | $4,275 | $125,000 | $0 | $129,275 | $129,275 |
| 2007 | $4,275 | $125,000 | $0 | $129,275 | $129,275 |
Deed and Sales History
| 1 | 03/23/2022 | QCD | Quit Claim Deed | GOEHNER FINANCIAL MANAGEMENT, LLC | GOEHNER, KEVIN AND PENNY | | | $0.00 | 52511 | 4542421 |
| 2 | 01/31/2021 | QCD | Quit Claim Deed | GOEHNER, DELBERT M | GOEHNER FINANCIAL MANAGEMENT, LLC | | | $0.00 | 47768 | 4516473 |
| 3 | 10/11/2005 | WD | Warranty Deed | GOEHNER, KEVIN AND PENNY | | | | | 55351 | 4151819 |
| 4 | 05/19/2005 | BLA | DNU - Boundary Line Adjustment | GOEHNER, KEVIN AND PENNY | GOEHNER, KEVIN AND PENNY | | | $0.00 | 80702 | 4134576 |
| 5 | 08/16/2004 | WD | Warranty Deed | GOEHNER, EMMA | GOEHNER, KEVIN AND PENNY | | | $0.00 | 43914 | 4110876 |
| 6 | 03/01/1998 | OTHER | Other - Misc. Documents | GOEHNER, ALBERT F | GOEHNER, EMMA | | | $0.00 | 67839 | 0 |
| 7 | 01/01/1900 | OTHER | Other - Misc. Documents | Unknown | GOEHNER, ALBERT F | | | $0.00 | 0 | 0 |
Payout Agreement
| No payout information available.. |