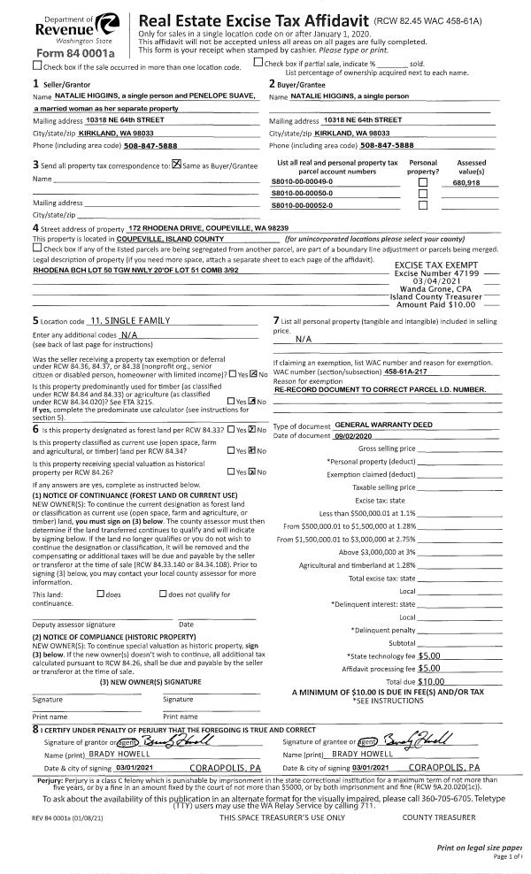
Property
Account |
| Property ID: | 169882 | Abbreviated Legal Description: | 107 - IN GL4: BG NWCR SEC 31 S1*W300.90' S87*E1276.50 S2*W236.78' N87*E50.08' S2*W68.70' TPB S2*W60' S87*E120' TO HITDLN N ALG SD LN 60' N87*W120' TPB INCL ADJ TIDES TGW EZ (TR B SP 76-15 AF#301455) |
| Geographic ID: | R42931-468-1270 | Agent Code: | |
| Type: | Real | | |
| Tax Area: | 710 - APPRAISER-S Whid Schl Dist, outside Langley, improved & 1 acre or less | Land Use Code | 11 |
| Open Space: | N | DFL | N |
| Historic Property: | N | Remodel Property: | N |
| Multi-Family Redevelopment: | N | | |
| Township: | 29 | Section: | 31 |
| Range: | R4 |
Location |
| Address: | 4905 MARSHALL RD CLINTON, WA 98236 | Mapsco: | |
| Neighborhood: | Cycle 4 | Map ID: | 1003 |
| Neighborhood CD: | 4 |
Owner |
| Name: | GRAY TRUSTEE, KRISTINE KAY JOHNSON | Owner ID: | 282074 |
| Mailing Address: | 20416 60TH AVE KENMORE, WA 98028 | % Ownership: | 100.0000000000% |
| | | Exemptions: | |
Taxes and Assessment Details
Values
| (+) Improvement Homesite Value: | + | $0 | |
| (+) Improvement Non-Homesite Value: | + | $394,803 | |
| (+) Land Homesite Value: | + | $0 | |
| (+) Land Non-Homesite Value: | + | $850,600 | |
| (+) Curr Use (HS): | + | $0 | $0 |
| (+) Curr Use (NHS): | + | $0 | $0 |
| | | -------------------------- | |
| (=) Market Value: | = | $1,245,403 | |
| (–) Productivity Loss: | – | $0 | |
| | | -------------------------- | |
| (=) Subtotal: | = | $1,245,403 | |
| (+) Senior Appraised Value: | + | $0 | |
| (+) Non-Senior Appraised Value: | + | $1,245,403 | |
| | | -------------------------- | |
| (=) Total Appraised Value: | = | $1,245,403 | |
| (–) Senior Exemption Loss: | – | $0 | |
| (–) Exemption Loss: | – | $0 | |
| | | -------------------------- | |
| (=) Taxable Value: | = | $1,245,403 | |
Taxing Jurisdiction
| Owner: | GRAY TRUSTEE, KRISTINE KAY JOHNSON | | |
| % Ownership: | 100.0000000000% | | |
| Total Value: | $1,245,403 | | |
| Tax Area: | 710 - APPRAISER-S Whid Schl Dist, outside Langley, improved & 1 acre or less |
| CF | Conservation Futures | 0.0316035091 | $1,245,403 | $1,245,403 | $39.36 | | |
| FIRE3 | Fire & Rescue Dist #3 S Whidbey GEN | 1.2004855531 | $1,245,403 | $1,245,403 | $1,495.09 | | |
| HOBOND | Hospital BOND | 0.1910887512 | $1,245,403 | $1,245,403 | $237.98 | | |
| HOGEN | Hospital GEN | 0.3902502903 | $1,245,403 | $1,245,403 | $486.02 | | |
| CE | County Current Expense | 0.3708482477 | $1,245,403 | $1,245,403 | $461.86 | | |
| CR | County Roads | 0.4584763726 | $1,245,403 | $1,245,403 | $570.99 | | |
| ISLANDEMS | Hospital GEN (EMS) | 0.5000000000 | $1,245,403 | $1,245,403 | $622.70 | | |
| LIB | Library Sno-Isle GEN | 0.3153421757 | $1,245,403 | $1,245,403 | $392.73 | | |
| PORTWHID | Port of S Whidbey GEN | 0.1094540357 | $1,245,403 | $1,245,403 | $136.31 | | |
| SCH206BOND | School 206 BOND | 0.3161759235 | $1,245,403 | $1,245,403 | $393.77 | | |
| SCH206MO | School 206 Enrichment | 0.4547169547 | $1,245,403 | $1,245,403 | $566.31 | | |
| ST | State School | 1.3035497053 | $1,245,403 | $1,245,403 | $1,623.44 | | |
| ST2 | State School Part 2 | 0.8169543533 | $1,245,403 | $1,245,403 | $1,017.44 | | |
| SWHIDPRBD | P & R S Whidbey BOND | 0.0152817568 | $1,245,403 | $1,245,403 | $19.03 | | |
| SWHIDPRBD2 | P & R S Whidbey BOND2 | 0.0138911264 | $1,245,403 | $1,245,403 | $17.30 | | |
| SWHIDPRMT | P & R S Whidbey GEN | 0.2053334452 | $1,245,403 | $1,245,403 | $255.72 | | |
| | Total Tax Rate: | 6.6934522006 | | | | | |
| | | | | Taxes w/Current Exemptions: | $8,336.05 | | |
| | | | | Taxes w/o Exemptions: | $8,336.05 | | |
Improvement / Building
| Improvement #1: | RESIDENTIAL | State Code: | Y | 1446.1 sqft | Value: | $394,803 |
| Bathrooms: | 1.75 | Bedrooms: | 2 | | Ceiling: | DRYWALL PAINTED | Exterior Wall/Cover: | SHINGLE | | Floor Covering: | CERAMIC TILE/HWD 40/60 | Floor Structure: | WOOD W/SUBFLOOR | | Foundation: | CONCRETE | Heating: | FHA GAS | | Interior Finish: | DRYWALL PAINT | Plumbing Fixture Cnt: | 11 | | Roof Slope: | 5" IN 12" | Roof Structure/Cover: | CJ ASPHALT |
|
| | Type | Description | Class CD | Sub Class CD | Year Built | Area |
| | BAS | BASE/MAIN FLOOR | 4 | 0 | 1977 | 1446.1 |
| | OP4 | OPEN PORCH W/CEILING-ROOF | 4 | 0 | 1977 | 22.8 |
| | AGR | ATTACHED GARAGE | 4 | 0 | 1977 | 484.8 |
| | OWP | OPEN WOOD PORCH W/STEPS | 4 | 0 | 1977 | 598.2 |
Sketch
Property Image
Land
| 1 | 55 | TIDES | 0.0000 | 0.00 | 60.00 | 0.00 | 1.00 | $600 | $0 |
| 2 | LB | LOW BANK | 0.1700 | 7405.20 | 60.00 | 0.00 | 1.00 | $850,000 | $0 |
Roll Value History
| 2026 | N/A | N/A | N/A | N/A | N/A |
| 2025 | $394,803 | $850,600 | $0 | $1,245,403 | $1,245,403 |
| 2024 | $399,434 | $800,600 | $0 | $1,200,034 | $1,200,034 |
| 2023 | $404,066 | $750,600 | $0 | $1,154,666 | $1,154,666 |
| 2022 | $370,084 | $700,600 | $0 | $1,070,684 | $1,070,684 |
| 2021 | $325,465 | $600,600 | $0 | $926,065 | $926,065 |
| 2020 | $315,469 | $600,600 | $0 | $916,069 | $916,069 |
| 2019 | $231,573 | $550,600 | $0 | $782,173 | $782,173 |
| 2018 | $232,208 | $450,600 | $0 | $682,808 | $682,808 |
| 2017 | $195,779 | $400,600 | $0 | $596,379 | $596,379 |
| 2016 | $198,056 | $400,600 | $0 | $598,656 | $598,656 |
| 2015 | $200,333 | $400,600 | $0 | $600,933 | $600,933 |
| 2014 | $190,993 | $400,600 | $0 | $591,593 | $591,593 |
| 2013 | $193,231 | $400,600 | $0 | $593,831 | $593,831 |
| 2012 | $195,469 | $512,768 | $0 | $708,237 | $708,237 |
| 2011 | $197,708 | $603,150 | $0 | $800,858 | $800,858 |
| 2010 | $204,314 | $603,150 | $0 | $807,464 | $807,464 |
| 2009 | $213,094 | $751,470 | $0 | $964,564 | $964,564 |
| 2008 | $190,831 | $751,470 | $0 | $942,301 | $942,301 |
| 2007 | $193,378 | $751,050 | $0 | $944,428 | $944,428 |
Deed and Sales History
| 1 | 09/15/2017 | QCD | Quit Claim Deed | GRAY, KRISTINE KAY | GRAY TRUSTEE, KRISTINE KAY JOHNSON | | | $0.00 | 31206 | 4430772 |
| 2 | 07/24/2017 | WD | Warranty Deed | MATHISON III, ROBERT J | GRAY, KRISTINE KAY | | | $925,000.00 | 30381 | 4427119 |
| 3 | 09/01/1992 | WD | Warranty Deed | AYLER, MARVIN E | MATHISON, ROBERT J | | | $265,000.00 | 23879 | 92018844 |
| 4 | 01/01/1900 | OTHER | Other - Misc. Documents | Unknown | AYLER, MARVIN E | | | $0.00 | 0 | 0 |
Payout Agreement
| No payout information available.. |