Property
Account |
| Property ID: | 169891 | Abbreviated Legal Description: | 110 - IN GL4: BG SWCR LOT 3 POSSESSION VW BCH #1 S2*W 105.74' TPB S87*W92.88' S2*W108.52' N87*E110' N2*E 108.52' S87*W17.12' TPB TGW & SUB EZ AF#86014149 |
| Geographic ID: | R42931-469-1150 | Agent Code: | |
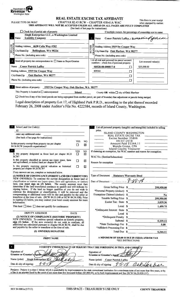
| Type: | Real | | |
| Tax Area: | 710 - APPRAISER-S Whid Schl Dist, outside Langley, improved & 1 acre or less | Land Use Code | 11 |
| Open Space: | N | DFL | N |
| Historic Property: | N | Remodel Property: | N |
| Multi-Family Redevelopment: | N | | |
| Township: | 29 | Section: | 31 |
| Range: | R4 |
Location |
| Address: | 4904 MARSHALL RD CLINTON, WA 98236 | Mapsco: | |
| Neighborhood: | Cycle 4 | Map ID: | 1003 |
| Neighborhood CD: | 4 |
Owner |
| Name: | WADUM, SUSAN CHASE | Owner ID: | 285723 |
| Mailing Address: | JULIA CHASE CASPER SANDRA CHASE BUCHANAN 21421 92ND AVE W EDMONDS, WA 98020 | % Ownership: | 100.0000000000% |
| | | Exemptions: | |
Taxes and Assessment Details
Values
| (+) Improvement Homesite Value: | + | $0 | |
| (+) Improvement Non-Homesite Value: | + | $227,769 | |
| (+) Land Homesite Value: | + | $0 | |
| (+) Land Non-Homesite Value: | + | $250,000 | |
| (+) Curr Use (HS): | + | $0 | $0 |
| (+) Curr Use (NHS): | + | $0 | $0 |
| | | -------------------------- | |
| (=) Market Value: | = | $477,769 | |
| (–) Productivity Loss: | – | $0 | |
| | | -------------------------- | |
| (=) Subtotal: | = | $477,769 | |
| (+) Senior Appraised Value: | + | $0 | |
| (+) Non-Senior Appraised Value: | + | $477,769 | |
| | | -------------------------- | |
| (=) Total Appraised Value: | = | $477,769 | |
| (–) Senior Exemption Loss: | – | $0 | |
| (–) Exemption Loss: | – | $0 | |
| | | -------------------------- | |
| (=) Taxable Value: | = | $477,769 | |
Taxing Jurisdiction
| Owner: | WADUM, SUSAN CHASE | | |
| % Ownership: | 100.0000000000% | | |
| Total Value: | $477,769 | | |
| Tax Area: | 710 - APPRAISER-S Whid Schl Dist, outside Langley, improved & 1 acre or less |
| CF | Conservation Futures | 0.0316035091 | $477,769 | $477,769 | $15.10 | | |
| FIRE3 | Fire & Rescue Dist #3 S Whidbey GEN | 1.2004855531 | $477,769 | $477,769 | $573.55 | | |
| HOBOND | Hospital BOND | 0.1910887512 | $477,769 | $477,769 | $91.30 | | |
| HOGEN | Hospital GEN | 0.3902502903 | $477,769 | $477,769 | $186.45 | | |
| CE | County Current Expense | 0.3708482477 | $477,769 | $477,769 | $177.18 | | |
| CR | County Roads | 0.4584763726 | $477,769 | $477,769 | $219.05 | | |
| ISLANDEMS | Hospital GEN (EMS) | 0.5000000000 | $477,769 | $477,769 | $238.88 | | |
| LIB | Library Sno-Isle GEN | 0.3153421757 | $477,769 | $477,769 | $150.66 | | |
| PORTWHID | Port of S Whidbey GEN | 0.1094540357 | $477,769 | $477,769 | $52.29 | | |
| SCH206BOND | School 206 BOND | 0.3161759235 | $477,769 | $477,769 | $151.06 | | |
| SCH206MO | School 206 Enrichment | 0.4547169547 | $477,769 | $477,769 | $217.25 | | |
| ST | State School | 1.3035497053 | $477,769 | $477,769 | $622.80 | | |
| ST2 | State School Part 2 | 0.8169543533 | $477,769 | $477,769 | $390.32 | | |
| SWHIDPRBD | P & R S Whidbey BOND | 0.0152817568 | $477,769 | $477,769 | $7.30 | | |
| SWHIDPRBD2 | P & R S Whidbey BOND2 | 0.0138911264 | $477,769 | $477,769 | $6.64 | | |
| SWHIDPRMT | P & R S Whidbey GEN | 0.2053334452 | $477,769 | $477,769 | $98.10 | | |
| | Total Tax Rate: | 6.6934522006 | | | | | |
| | | | | Taxes w/Current Exemptions: | $3,197.93 | | |
| | | | | Taxes w/o Exemptions: | $3,197.93 | | |
Improvement / Building
| Improvement #1: | RESIDENTIAL | State Code: | Y | 1512.0 sqft | Value: | $227,769 |
| Bathrooms: | 2 | Bedrooms: | 2 | | Ceiling: | DRYWALL PAINTED | Exterior Wall/Cover: | PLY/HARDBOARD T-111 | | Floor Covering: | CARPET/VINYL 60-40 | Floor Structure: | SLAB ON GRADE | | Foundation: | CONCRETE | Heating: | FHA GAS | | Interior Finish: | DRYWALL PAINT | Plumbing Fixture Cnt: | 9 | | Roof Slope: | 4" IN 12" | Roof Structure/Cover: | CJ ASPHALT |
|
| | Type | Description | Class CD | Sub Class CD | Year Built | Area |
| | BAS | BASE/MAIN FLOOR | 3 | 0 | 2000 | 1080.0 |
| | OP3 | OPEN PORCH W/ROOF | 3 | 0 | 2000 | 96.0 |
| | OP4 | OPEN PORCH W/CEILING-ROOF | 3 | 0 | 2000 | 240.0 |
| | UTY | STORAGE/UTILITY | 3 | 0 | 2000 | 120.0 |
| | OWP | OPEN WOOD PORCH W/STEPS | 3 | 0 | 2000 | 48.0 |
| | UPS | UPPER STORY | 3 | 0 | 2000 | 432.0 |
Sketch
Property Image
Land
| 1 | 15 | SQ (12001-21780) | 0.0000 | 0.00 | 0.00 | 0.00 | 1.00 | $250,000 | $0 |
Roll Value History
| 2026 | N/A | N/A | N/A | N/A | N/A |
| 2025 | $227,769 | $250,000 | $0 | $477,769 | $477,769 |
| 2024 | $230,606 | $230,000 | $0 | $460,606 | $460,606 |
| 2023 | $233,445 | $230,000 | $0 | $463,445 | $463,445 |
| 2022 | $213,967 | $210,000 | $0 | $423,967 | $423,967 |
| 2021 | $188,285 | $150,000 | $0 | $338,285 | $338,285 |
| 2020 | $179,003 | $120,000 | $0 | $299,003 | $299,003 |
| 2019 | $129,753 | $170,000 | $0 | $299,753 | $299,753 |
| 2018 | $130,138 | $130,000 | $0 | $260,138 | $260,138 |
| 2017 | $130,908 | $100,000 | $0 | $230,908 | $230,908 |
| 2016 | $132,448 | $100,000 | $0 | $232,448 | $232,448 |
| 2015 | $133,989 | $100,000 | $0 | $233,989 | $233,989 |
| 2014 | $98,609 | $100,000 | $0 | $198,609 | $198,609 |
| 2013 | $89,533 | $100,000 | $0 | $189,533 | $189,533 |
| 2012 | $90,575 | $85,000 | $0 | $175,575 | $175,575 |
| 2011 | $91,617 | $100,000 | $0 | $191,617 | $191,617 |
| 2010 | $93,206 | $100,000 | $0 | $193,206 | $193,206 |
| 2009 | $97,202 | $120,000 | $0 | $217,202 | $217,202 |
| 2008 | $50,504 | $125,000 | $0 | $175,504 | $175,504 |
| 2007 | $51,954 | $125,000 | $0 | $176,954 | $176,954 |
Deed and Sales History
| 1 | 06/14/2018 | QCD | Quit Claim Deed | CHASE TRUSTEE, BARBARA J | WADUM, SUSAN CHASE | | | $0.00 | 34696 | 4446860 |
| 2 | 12/01/1995 | WD | Warranty Deed | CHASE, BARBARA J | CHASE, BARBARA J | | | $0.00 | 54269 | 95019821 |
| 3 | 07/01/1995 | OTHER | Other - Misc. Documents | CHASE, LESTER W | CHASE, BARBARA J | | | $0.00 | 66516 | 0 |
| 4 | 10/01/1993 | WD | Warranty Deed | , | CHASE, LESTER W | | | $0.00 | 34096 | 93021440 |
| 5 | 06/01/1974 | OTHER | Other - Misc. Documents | CHASE, LESTER W | , | | | $0.00 | 52169 | 0 |
| 6 | 06/01/1974 | OTHER | Other - Misc. Documents | Unknown | CHASE, LESTER W | | | $0.00 | 52170 | 0 |
Payout Agreement
| No payout information available.. |