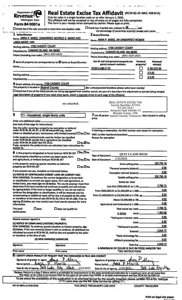
Property
Account |
| Property ID: | 169908 | Abbreviated Legal Description: | 113 - IN GL4:BG NW CR SEC 31 S1*W300.9' S87*E1276.5' S2*W8.7' TPB S2*W60' S87* E120' TO HIGH TIDE N ALG TD LN 60' N87*W120' TPB TGW TIDES & EZ |
| Geographic ID: | R42931-474-1270 | Agent Code: | |
| Type: | Real | | |
| Tax Area: | 710 - APPRAISER-S Whid Schl Dist, outside Langley, improved & 1 acre or less | Land Use Code | 11 |
| Open Space: | N | DFL | N |
| Historic Property: | N | Remodel Property: | N |
| Multi-Family Redevelopment: | N | | |
| Township: | 29 | Section: | 31 |
| Range: | R4 |
Location |
| Address: | 4901 MARSHALL RD CLINTON, WA 98236 | Mapsco: | |
| Neighborhood: | Cycle 4 | Map ID: | 1004 |
| Neighborhood CD: | 4 |
Owner |
| Name: | CARDWELL, THOMAS R | Owner ID: | 20398 |
| Mailing Address: | 8301 203RD PL SW EDMONDS, WA 98026-6739 | % Ownership: | 100.0000000000% |
| | | Exemptions: | |
Taxes and Assessment Details
Values
| (+) Improvement Homesite Value: | + | $0 | |
| (+) Improvement Non-Homesite Value: | + | $401,221 | |
| (+) Land Homesite Value: | + | $0 | |
| (+) Land Non-Homesite Value: | + | $850,600 | |
| (+) Curr Use (HS): | + | $0 | $0 |
| (+) Curr Use (NHS): | + | $0 | $0 |
| | | -------------------------- | |
| (=) Market Value: | = | $1,251,821 | |
| (–) Productivity Loss: | – | $0 | |
| | | -------------------------- | |
| (=) Subtotal: | = | $1,251,821 | |
| (+) Senior Appraised Value: | + | $0 | |
| (+) Non-Senior Appraised Value: | + | $1,251,821 | |
| | | -------------------------- | |
| (=) Total Appraised Value: | = | $1,251,821 | |
| (–) Senior Exemption Loss: | – | $0 | |
| (–) Exemption Loss: | – | $0 | |
| | | -------------------------- | |
| (=) Taxable Value: | = | $1,251,821 | |
Taxing Jurisdiction
| Owner: | CARDWELL, THOMAS R | | |
| % Ownership: | 100.0000000000% | | |
| Total Value: | $1,251,821 | | |
| Tax Area: | 710 - APPRAISER-S Whid Schl Dist, outside Langley, improved & 1 acre or less |
| CF | Conservation Futures | 0.0316035091 | $1,251,821 | $1,251,821 | $39.56 | | |
| FIRE3 | Fire & Rescue Dist #3 S Whidbey GEN | 1.2004855531 | $1,251,821 | $1,251,821 | $1,502.79 | | |
| HOBOND | Hospital BOND | 0.1910887512 | $1,251,821 | $1,251,821 | $239.21 | | |
| HOGEN | Hospital GEN | 0.3902502903 | $1,251,821 | $1,251,821 | $488.52 | | |
| CE | County Current Expense | 0.3708482477 | $1,251,821 | $1,251,821 | $464.24 | | |
| CR | County Roads | 0.4584763726 | $1,251,821 | $1,251,821 | $573.93 | | |
| ISLANDEMS | Hospital GEN (EMS) | 0.5000000000 | $1,251,821 | $1,251,821 | $625.91 | | |
| LIB | Library Sno-Isle GEN | 0.3153421757 | $1,251,821 | $1,251,821 | $394.75 | | |
| PORTWHID | Port of S Whidbey GEN | 0.1094540357 | $1,251,821 | $1,251,821 | $137.02 | | |
| SCH206BOND | School 206 BOND | 0.3161759235 | $1,251,821 | $1,251,821 | $395.80 | | |
| SCH206MO | School 206 Enrichment | 0.4547169547 | $1,251,821 | $1,251,821 | $569.22 | | |
| ST | State School | 1.3035497053 | $1,251,821 | $1,251,821 | $1,631.81 | | |
| ST2 | State School Part 2 | 0.8169543533 | $1,251,821 | $1,251,821 | $1,022.68 | | |
| SWHIDPRBD | P & R S Whidbey BOND | 0.0152817568 | $1,251,821 | $1,251,821 | $19.13 | | |
| SWHIDPRBD2 | P & R S Whidbey BOND2 | 0.0138911264 | $1,251,821 | $1,251,821 | $17.39 | | |
| SWHIDPRMT | P & R S Whidbey GEN | 0.2053334452 | $1,251,821 | $1,251,821 | $257.04 | | |
| | Total Tax Rate: | 6.6934522006 | | | | | |
| | | | | Taxes w/Current Exemptions: | $8,379.00 | | |
| | | | | Taxes w/o Exemptions: | $8,379.00 | | |
Improvement / Building
| Improvement #1: | RESIDENTIAL | State Code: | Y | 1929.0 sqft | Value: | $401,221 |
| Bathrooms: | 4 | Bedrooms: | 5 | | Ceiling: | DRYWALL PAINTED | Exterior Wall/Cover: | CEMENT FIBER | | Floor Covering: | HARDWOOD/CARP 20-80 | Floor Structure: | WOOD W/SUBFLOOR | | Foundation: | CONCRETE | Heating: | FHA ELECTRIC | | Interior Finish: | DRYWALL PAINT | Plumbing Fixture Cnt: | 15 | | Roof Slope: | 3" IN 12" | Roof Structure/Cover: | CJ BUILT-UP ROCK |
|
| | Type | Description | Class CD | Sub Class CD | Year Built | Area |
| | BAS | BASE/MAIN FLOOR | 4 | 0 | 1980 | 1143.0 |
| | UPS | UPPER STORY | 4 | 0 | 1980 | 786.0 |
| | OWP | OPEN WOOD PORCH W/STEPS | 4 | 0 | 1980 | 138.0 |
| | OWP | OPEN WOOD PORCH W/STEPS | 4 | 0 | 1980 | 924.0 |
| | OWP | OPEN WOOD PORCH W/STEPS | 4 | 0 | 1980 | 125.0 |
Sketch
Property Image
Land
| 1 | LB | LOW BANK | 0.1600 | 6969.60 | 60.00 | 0.00 | 1.00 | $850,000 | $0 |
| 2 | 55 | TIDES | 0.0000 | 0.00 | 60.00 | 0.00 | 1.00 | $600 | $0 |
Roll Value History
| 2026 | N/A | N/A | N/A | N/A | N/A |
| 2025 | $401,221 | $850,600 | $0 | $1,251,821 | $1,251,821 |
| 2024 | $406,040 | $800,600 | $0 | $1,206,640 | $1,206,640 |
| 2023 | $410,859 | $750,600 | $0 | $1,161,459 | $1,161,459 |
| 2022 | $376,411 | $700,600 | $0 | $1,077,011 | $1,077,011 |
| 2021 | $331,105 | $600,600 | $0 | $931,705 | $931,705 |
| 2020 | $276,890 | $600,600 | $0 | $877,490 | $877,490 |
| 2019 | $201,337 | $550,600 | $0 | $751,937 | $751,937 |
| 2018 | $201,997 | $450,600 | $0 | $652,597 | $652,597 |
| 2017 | $203,317 | $400,600 | $0 | $603,917 | $603,917 |
| 2016 | $205,959 | $400,600 | $0 | $606,559 | $606,559 |
| 2015 | $208,601 | $400,600 | $0 | $609,201 | $609,201 |
| 2014 | $210,133 | $400,600 | $0 | $610,733 | $610,733 |
| 2013 | $212,930 | $400,600 | $0 | $613,530 | $613,530 |
| 2012 | $215,729 | $512,768 | $0 | $728,497 | $728,497 |
| 2011 | $218,528 | $603,150 | $0 | $821,678 | $821,678 |
| 2010 | $229,287 | $603,150 | $0 | $832,437 | $832,437 |
| 2009 | $239,287 | $751,470 | $0 | $990,757 | $990,757 |
| 2008 | $207,564 | $751,470 | $0 | $959,034 | $959,034 |
| 2007 | $210,322 | $751,050 | $0 | $961,372 | $961,372 |
Deed and Sales History
Payout Agreement
| No payout information available.. |