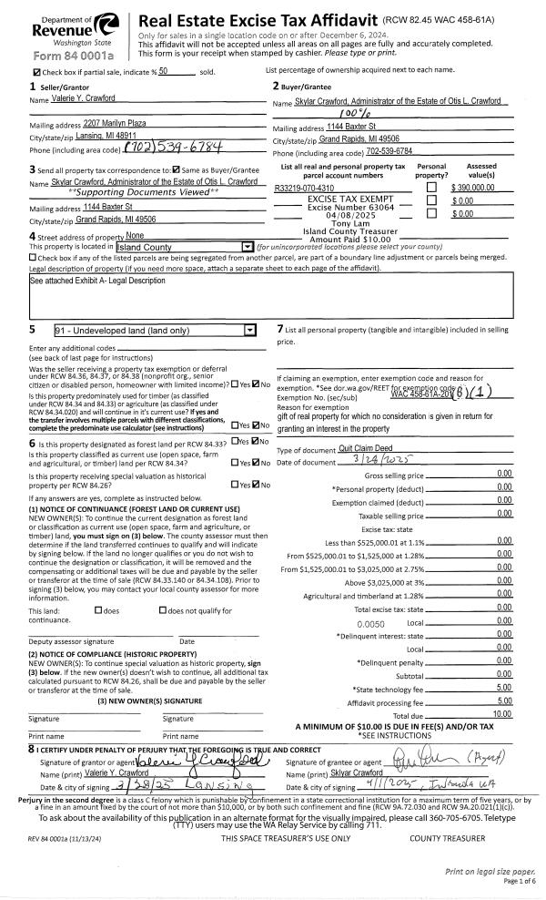
Property
Account |
| Property ID: | 169926 | Abbreviated Legal Description: | 101 - IN GL4:BG NE CR L1 POSS VW S2*W150' N87*W75' S2*W85.66' N87*E37.53' S2* W8.7' S87*E110' TO BCH N ALG BCH TPB INCL TIDES EX CO#6809 EZ EX TL 8 & 112 |
| Geographic ID: | R42931-482-1240 | Agent Code: | |
| Type: | Real | | |
| Tax Area: | 710 - APPRAISER-S Whid Schl Dist, outside Langley, improved & 1 acre or less | Land Use Code | 11 |
| Open Space: | N | DFL | N |
| Historic Property: | N | Remodel Property: | N |
| Multi-Family Redevelopment: | N | | |
| Township: | 29 | Section: | 31 |
| Range: | R4 |
Location |
| Address: | 4906 MARSHALL RD CLINTON, WA 98236 | Mapsco: | |
| Neighborhood: | Cycle 4 | Map ID: | 1004 |
| Neighborhood CD: | 4 |
Owner |
| Name: | WILLIAMS, LISA T | Owner ID: | 266929 |
| Mailing Address: | LISA T WILLIAMS TTEE 4906 MARSHALL RD CLINTON, WA 98236 | % Ownership: | 100.0000000000% |
| | | Exemptions: | |
Taxes and Assessment Details
Values
| (+) Improvement Homesite Value: | + | $0 | |
| (+) Improvement Non-Homesite Value: | + | $333,299 | |
| (+) Land Homesite Value: | + | $0 | |
| (+) Land Non-Homesite Value: | + | $850,800 | |
| (+) Curr Use (HS): | + | $0 | $0 |
| (+) Curr Use (NHS): | + | $0 | $0 |
| | | -------------------------- | |
| (=) Market Value: | = | $1,184,099 | |
| (–) Productivity Loss: | – | $0 | |
| | | -------------------------- | |
| (=) Subtotal: | = | $1,184,099 | |
| (+) Senior Appraised Value: | + | $0 | |
| (+) Non-Senior Appraised Value: | + | $1,184,099 | |
| | | -------------------------- | |
| (=) Total Appraised Value: | = | $1,184,099 | |
| (–) Senior Exemption Loss: | – | $0 | |
| (–) Exemption Loss: | – | $0 | |
| | | -------------------------- | |
| (=) Taxable Value: | = | $1,184,099 | |
Taxing Jurisdiction
| Owner: | WILLIAMS, LISA T | | |
| % Ownership: | 100.0000000000% | | |
| Total Value: | $1,184,099 | | |
| Tax Area: | 710 - APPRAISER-S Whid Schl Dist, outside Langley, improved & 1 acre or less |
| CF | Conservation Futures | 0.0316035091 | $1,184,099 | $1,184,099 | $37.42 | | |
| FIRE3 | Fire & Rescue Dist #3 S Whidbey GEN | 1.2004855531 | $1,184,099 | $1,184,099 | $1,421.49 | | |
| HOBOND | Hospital BOND | 0.1910887512 | $1,184,099 | $1,184,099 | $226.27 | | |
| HOGEN | Hospital GEN | 0.3902502903 | $1,184,099 | $1,184,099 | $462.09 | | |
| CE | County Current Expense | 0.3708482477 | $1,184,099 | $1,184,099 | $439.12 | | |
| CR | County Roads | 0.4584763726 | $1,184,099 | $1,184,099 | $542.88 | | |
| ISLANDEMS | Hospital GEN (EMS) | 0.5000000000 | $1,184,099 | $1,184,099 | $592.05 | | |
| LIB | Library Sno-Isle GEN | 0.3153421757 | $1,184,099 | $1,184,099 | $373.40 | | |
| PORTWHID | Port of S Whidbey GEN | 0.1094540357 | $1,184,099 | $1,184,099 | $129.60 | | |
| SCH206BOND | School 206 BOND | 0.3161759235 | $1,184,099 | $1,184,099 | $374.38 | | |
| SCH206MO | School 206 Enrichment | 0.4547169547 | $1,184,099 | $1,184,099 | $538.43 | | |
| ST | State School | 1.3035497053 | $1,184,099 | $1,184,099 | $1,543.53 | | |
| ST2 | State School Part 2 | 0.8169543533 | $1,184,099 | $1,184,099 | $967.35 | | |
| SWHIDPRBD | P & R S Whidbey BOND | 0.0152817568 | $1,184,099 | $1,184,099 | $18.10 | | |
| SWHIDPRBD2 | P & R S Whidbey BOND2 | 0.0138911264 | $1,184,099 | $1,184,099 | $16.45 | | |
| SWHIDPRMT | P & R S Whidbey GEN | 0.2053334452 | $1,184,099 | $1,184,099 | $243.14 | | |
| | Total Tax Rate: | 6.6934522006 | | | | | |
| | | | | Taxes w/Current Exemptions: | $7,925.70 | | |
| | | | | Taxes w/o Exemptions: | $7,925.70 | | |
Improvement / Building
| Improvement #1: | RESIDENTIAL | State Code: | Y | 1982.0 sqft | Value: | $333,299 |
| Bathrooms: | 2 | Bedrooms: | 2 | | Ceiling: | TONGUE & GROOVE | Cooling: | HEAT PUMP/CONV/V | | Exterior Wall/Cover: | CEMENT FIBER | Floor Covering: | VINYL 100% | | Floor Structure: | WOOD W/SUBFLOOR | Foundation: | CONCRETE | | Interior Finish: | DRYWALL PAINT | Plumbing Fixture Cnt: | 9 | | Roof Slope: | 4" IN 12" | Roof Structure/Cover: | BEAM ASPHALT |
|
| | Type | Description | Class CD | Sub Class CD | Year Built | Area |
| | BAS | BASE/MAIN FLOOR | 3 | 0 | 1975 | 1188.0 |
| | OCP | OPEN CARPORT | 3 | 0 | 1975 | 440.0 |
| | UTY | STORAGE/UTILITY | 3 | 0 | 1975 | 88.0 |
| | UPS | UPPER STORY | 3 | 0 | 1975 | 794.0 |
| | OWP | OPEN WOOD PORCH W/STEPS | 3 | 0 | 1975 | 104.0 |
| | OWP | OPEN WOOD PORCH W/STEPS | 3 | 0 | 1975 | 374.0 |
| | OCP | OPEN CARPORT | 3 | 0 | 1975 | 220.0 |
| | DGR | DETACHED GARAGE | 3 | 0 | 1975 | 308.0 |
| | OWP | OPEN WOOD PORCH W/STEPS | 3 | 0 | 1975 | 100.0 |
Sketch
Property Image
Land
| 1 | LB | LOW BANK | 0.1900 | 8276.40 | 80.00 | 0.00 | 1.00 | $850,000 | $0 |
| 2 | 55 | TIDES | 0.0000 | 0.00 | 80.00 | 0.00 | 1.00 | $800 | $0 |
Roll Value History
| 2026 | N/A | N/A | N/A | N/A | N/A |
| 2025 | $333,299 | $850,800 | $0 | $1,184,099 | $1,184,099 |
| 2024 | $337,453 | $800,800 | $0 | $1,138,253 | $1,138,253 |
| 2023 | $341,606 | $750,800 | $0 | $1,092,406 | $1,092,406 |
| 2022 | $313,081 | $700,800 | $0 | $1,013,881 | $1,013,881 |
| 2021 | $275,514 | $700,800 | $0 | $976,314 | $976,314 |
| 2020 | $239,980 | $650,800 | $0 | $890,780 | $890,780 |
| 2019 | $181,871 | $600,800 | $0 | $782,671 | $782,671 |
| 2018 | $182,458 | $500,800 | $0 | $683,258 | $683,258 |
| 2017 | $171,476 | $500,800 | $0 | $672,276 | $672,276 |
| 2016 | $170,350 | $500,800 | $0 | $671,150 | $671,150 |
| 2015 | $172,509 | $500,800 | $0 | $673,309 | $673,309 |
| 2014 | $205,604 | $500,800 | $0 | $706,404 | $706,404 |
| 2013 | $208,332 | $500,800 | $0 | $709,132 | $283,653 |
| 2012 | $211,060 | $656,374 | $0 | $867,434 | $346,974 |
| 2011 | $213,788 | $772,064 | $0 | $985,852 | $394,341 |
| 2010 | $223,655 | $772,064 | $0 | $995,719 | $398,288 |
| 2009 | $233,100 | $961,914 | $0 | $1,195,014 | $409,772 |
| 2008 | $219,584 | $961,914 | $0 | $1,181,498 | $409,772 |
| 2007 | $222,555 | $961,354 | $0 | $1,183,909 | $409,772 |
Deed and Sales History
| 1 | 08/27/2024 | QCD | Quit Claim Deed | WILLIAMS, HENRY MARK | WILLIAMS TTEE, LISA T | | | $0.00 | 61406 | 4577622 |
| 2 | 08/28/2014 | WD | Warranty Deed | FILIBECK, CLIFFORD P | WILLIAMS, LISA T | | | $683,000.00 | 16662 | 4364956 |
|   | |
| 3 | 03/01/1986 | WD | Warranty Deed | CHASE, LESTER W | FILIBECK, CLIFFORD P | | | $200,000.00 | 60590 | 86002870 |
| 4 | 10/01/1963 | EXECUTORD | Executor Deed | JENSEN, EDITH L | CHASE, LESTER W | | | $0.00 | 15104 | 0 |
| 5 | 01/01/1900 | OTHER | Other - Misc. Documents | Unknown | JENSEN, EDITH L | | | $0.00 | 0 | 0 |
Payout Agreement
| No payout information available.. |