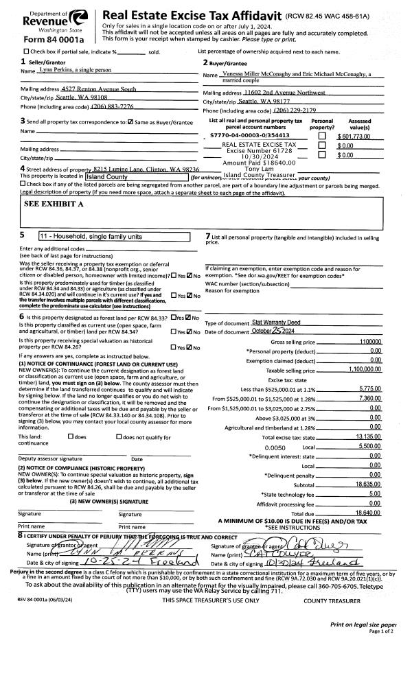
Property
Account |
| Property ID: | 17010 | Abbreviated Legal Description: | 13 - IN NE SW & NW SE DESC: BG SECR N/2 NESW N22*E209 .47' S89*E259.44' N60.01' N89*W300.04' N364.51' W194 .53' S0*W318.01' N89*W286 .65' S0*W300' S89*E440'TPB |
| Geographic ID: | R13209-217-2480 | Agent Code: | |
| Type: | Real | | |
| Tax Area: | 112 - APPRAISER-OH Schl Dist, outside OH, improved, greater than 1 acre | Land Use Code | 11 |
| Open Space: | N | DFL | N |
| Historic Property: | N | Remodel Property: | N |
| Multi-Family Redevelopment: | N | | |
| Township: | 32 | Section: | 09 |
| Range: | R1 |
Location |
| Address: | 1441 BOON HOLLOW LN OAK HARBOR, WA 98277 | Mapsco: | |
| Neighborhood: | Cycle 1 | Map ID: | 112 |
| Neighborhood CD: | 1 |
Owner |
| Name: | BEBEE JR, REX V | Owner ID: | 188954 |
| Mailing Address: | 1441 BOON HOLLOW LN OAK HARBOR, WA 98277-8184 | % Ownership: | 100.0000000000% |
| | | Exemptions: | |
Taxes and Assessment Details
Values
| (+) Improvement Homesite Value: | + | $0 | |
| (+) Improvement Non-Homesite Value: | + | $425,411 | |
| (+) Land Homesite Value: | + | $0 | |
| (+) Land Non-Homesite Value: | + | $290,000 | |
| (+) Curr Use (HS): | + | $0 | $0 |
| (+) Curr Use (NHS): | + | $0 | $0 |
| | | -------------------------- | |
| (=) Market Value: | = | $715,411 | |
| (–) Productivity Loss: | – | $0 | |
| | | -------------------------- | |
| (=) Subtotal: | = | $715,411 | |
| (+) Senior Appraised Value: | + | $0 | |
| (+) Non-Senior Appraised Value: | + | $715,411 | |
| | | -------------------------- | |
| (=) Total Appraised Value: | = | $715,411 | |
| (–) Senior Exemption Loss: | – | $0 | |
| (–) Exemption Loss: | – | $0 | |
| | | -------------------------- | |
| (=) Taxable Value: | = | $715,411 | |
Taxing Jurisdiction
| Owner: | BEBEE JR, REX V | | |
| % Ownership: | 100.0000000000% | | |
| Total Value: | $715,411 | | |
| Tax Area: | 112 - APPRAISER-OH Schl Dist, outside OH, improved, greater than 1 acre |
| CF | Conservation Futures | 0.0316035091 | $715,411 | $715,411 | $22.61 | | |
| CEM1 | Cemetery #1 | 0.0040320932 | $715,411 | $715,411 | $2.88 | | |
| FIRE2 | Fire & Rescue Dist #2 N Whidbey GEN | 0.5475949600 | $715,411 | $715,411 | $391.76 | | |
| HOBOND | Hospital BOND | 0.1910887512 | $715,411 | $715,411 | $136.71 | | |
| HOGEN | Hospital GEN | 0.3902502903 | $715,411 | $715,411 | $279.19 | | |
| CE | County Current Expense | 0.3708482477 | $715,411 | $715,411 | $265.31 | | |
| CR | County Roads | 0.4584763726 | $715,411 | $715,411 | $328.00 | | |
| ISLANDEMS | Hospital GEN (EMS) | 0.5000000000 | $715,411 | $715,411 | $357.71 | | |
| LIB | Library Sno-Isle GEN | 0.3153421757 | $715,411 | $715,411 | $225.60 | | |
| NWHIDPRMT | P & R N Whidbey GEN | 0.2004466701 | $715,411 | $715,411 | $143.40 | | |
| SCH201MO | School 201 Enrichment | 1.8559231640 | $715,411 | $715,411 | $1,327.75 | | |
| ST | State School | 1.3035497053 | $715,411 | $715,411 | $932.57 | | |
| ST2 | State School Part 2 | 0.8169543533 | $715,411 | $715,411 | $584.46 | | |
| | Total Tax Rate: | 6.9861102925 | | | | | |
| | | | | Taxes w/Current Exemptions: | $4,997.95 | | |
| | | | | Taxes w/o Exemptions: | $4,997.95 | | |
Improvement / Building
| Improvement #1: | RESIDENTIAL | State Code: | Y | 3302.0 sqft | Value: | $425,411 |
| Bathrooms: | 2 | Bedrooms: | 0 | | Ceiling: | DRYWALL PAINTED | Exterior Wall/Cover: | WOOD SIDING | | Floor Covering: | CARPET/VINYL 80-20 | Floor Structure: | WOOD W/SUBFLOOR | | Foundation: | CONCRETE | Heating: | FHA GAS | | Interior Finish: | DRYWALL PAINT | Plumbing Fixture Cnt: | 9 | | Roof Slope: | 5" IN 12" | Roof Structure/Cover: | CJ ASPHALT |
|
| | Type | Description | Class CD | Sub Class CD | Year Built | Area |
| | BAS | BASE/MAIN FLOOR | 3 | 0 | 1998 | 1834.0 |
| | AGR | ATTACHED GARAGE | 3 | 0 | 1998 | 624.0 |
| | OWP | OPEN WOOD PORCH W/STEPS | 3 | 0 | 1998 | 224.5 |
| | DWN | DOWNSTAIRS LIVING AREA | 3 | 0 | 1998 | 1468.0 |
| | UTY | STORAGE/UTILITY | 3 | 0 | 1998 | 540.0 |
| | OP1 | OPEN PORCH SLAB | 3 | 0 | 1998 | 524.5 |
| | OP3 | OPEN PORCH W/ROOF | 3 | 0 | 1998 | 1260.0 |
Sketch
Property Image
Land
| 1 | 32 | AC (03.01-09.99) | 5.3000 | 0.00 | 0.00 | 0.00 | 1.00 | $290,000 | $0 |
Roll Value History
| 2026 | N/A | N/A | N/A | N/A | N/A |
| 2025 | $425,411 | $290,000 | $0 | $715,411 | $715,411 |
| 2024 | $431,063 | $260,000 | $0 | $691,063 | $691,063 |
| 2023 | $425,411 | $250,000 | $0 | $675,411 | $675,411 |
| 2022 | $390,342 | $220,000 | $0 | $610,342 | $610,342 |
| 2021 | $343,885 | $190,000 | $0 | $533,885 | $533,885 |
| 2020 | $336,811 | $140,000 | $0 | $476,811 | $476,811 |
| 2019 | $277,367 | $200,000 | $0 | $477,367 | $477,367 |
| 2018 | $278,242 | $180,000 | $0 | $458,242 | $458,242 |
| 2017 | $277,527 | $160,000 | $0 | $437,527 | $437,527 |
| 2016 | $280,613 | $160,000 | $0 | $440,613 | $440,613 |
| 2015 | $283,698 | $135,000 | $0 | $418,698 | $418,698 |
| 2014 | $286,784 | $135,000 | $0 | $421,784 | $421,784 |
| 2013 | $289,870 | $128,790 | $0 | $418,660 | $418,660 |
| 2012 | $292,956 | $128,790 | $0 | $421,746 | $421,746 |
| 2011 | $297,735 | $143,100 | $0 | $440,835 | $440,835 |
| 2010 | $299,538 | $143,100 | $0 | $442,638 | $442,638 |
| 2009 | $311,994 | $169,600 | $0 | $481,594 | $481,594 |
| 2008 | $322,955 | $138,902 | $0 | $461,857 | $461,857 |
| 2007 | $327,404 | $138,902 | $0 | $466,306 | $466,306 |
Deed and Sales History
| 1 | 09/01/1986 | WD | Warranty Deed | BEBEE, REX V | BEBEE, REX V | | | $0.00 | 62627 | 86011945 |
| 2 | 01/01/1986 | WD | Warranty Deed | LANGSTON, A N | BEBEE, REX V | | | $13,000.00 | 61419 | 86000056 |
| 3 | 08/01/1985 | WD | Warranty Deed | LANGSTON, A N | LANGSTON, A N | | | $0.00 | 52419 | 85009561 |
| 4 | 06/01/1973 | EXECUTORD | Executor Deed | DONOVAN, D E | LANGSTON, A N | | | $0.00 | 54603 | 0 |
| 5 | 01/01/1900 | OTHER | Other - Misc. Documents | Unknown | DONOVAN, D E | | | $0.00 | 0 | 0 |
Payout Agreement
| No payout information available.. |