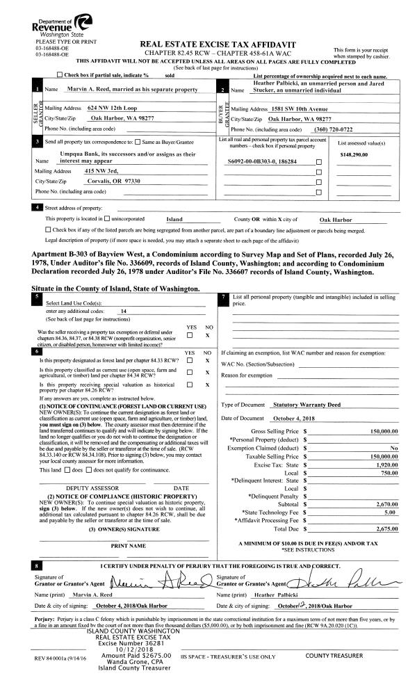
Property
Account |
| Property ID: | 170200 | Abbreviated Legal Description: | ACADEMY ADD LOT 5, N30' OF LOT 3, W25' OF LOT 6 & W25' OF N30' OF LOT 4 BLK 7 (TR B C-SP 81-2 AF#384696) |
| Geographic ID: | S6005-00-07005-0 | Agent Code: | |
| Type: | Real | | |
| Tax Area: | 300 - APPRAISER-Cpvl Schl Dist, in Cpvl | Land Use Code | 11 |
| Open Space: | N | DFL | N |
| Historic Property: | N | Remodel Property: | N |
| Multi-Family Redevelopment: | N | | |
| Township: | | Section: | |
| Range: | |
Location |
| Address: | 703 NE PERKINS ST COUPEVILLE, WA 98239 | Mapsco: | |
| Neighborhood: | Cycle 2 | Map ID: | 179 |
| Neighborhood CD: | 2 |
Owner |
| Name: | CHAMBERS, CHRISTIAN R. | Owner ID: | 262631 |
| Mailing Address: | PO BOX 454 COUPEVILLE, WA 98239 | % Ownership: | 100.0000000000% |
| | | Exemptions: | |
Taxes and Assessment Details
Values
| (+) Improvement Homesite Value: | + | $0 | |
| (+) Improvement Non-Homesite Value: | + | $330,509 | |
| (+) Land Homesite Value: | + | $0 | |
| (+) Land Non-Homesite Value: | + | $260,000 | |
| (+) Curr Use (HS): | + | $0 | $0 |
| (+) Curr Use (NHS): | + | $0 | $0 |
| | | -------------------------- | |
| (=) Market Value: | = | $590,509 | |
| (–) Productivity Loss: | – | $0 | |
| | | -------------------------- | |
| (=) Subtotal: | = | $590,509 | |
| (+) Senior Appraised Value: | + | $0 | |
| (+) Non-Senior Appraised Value: | + | $590,509 | |
| | | -------------------------- | |
| (=) Total Appraised Value: | = | $590,509 | |
| (–) Senior Exemption Loss: | – | $0 | |
| (–) Exemption Loss: | – | $0 | |
| | | -------------------------- | |
| (=) Taxable Value: | = | $590,509 | |
Taxing Jurisdiction
| Owner: | CHAMBERS, CHRISTIAN R. | | |
| % Ownership: | 100.0000000000% | | |
| Total Value: | $590,509 | | |
| Tax Area: | 300 - APPRAISER-Cpvl Schl Dist, in Cpvl |
| CF | Conservation Futures | 0.0316035091 | $590,509 | $590,509 | $18.66 | | |
| CEM2 | Cemetery #2 | 0.0095056933 | $590,509 | $590,509 | $5.61 | | |
| COUP | City: Town of Coupeville | 0.8426414490 | $590,509 | $590,509 | $497.59 | | |
| FIRE5 | Fire & Rescue Dist #5 C Whidbey GEN | 1.2008080668 | $590,509 | $590,509 | $709.09 | | |
| FIRE5BOND | Fire & Rescue Dist #5 C Whidbey BOND | 0.1400090713 | $590,509 | $590,509 | $82.68 | | |
| HOBOND | Hospital BOND | 0.1910887512 | $590,509 | $590,509 | $112.84 | | |
| HOGEN | Hospital GEN | 0.3902502903 | $590,509 | $590,509 | $230.45 | | |
| CE | County Current Expense | 0.3708482477 | $590,509 | $590,509 | $218.99 | | |
| ISLANDEMS | Hospital GEN (EMS) | 0.5000000000 | $590,509 | $590,509 | $295.25 | | |
| LIB | Library Sno-Isle GEN | 0.3153421757 | $590,509 | $590,509 | $186.21 | | |
| LIBCAP | Library Sno-Isle BOND (Cap Fac Imp Area) | 0.0543427938 | $590,509 | $590,509 | $32.09 | | |
| POCOUP | Port of Coupeville GEN | 0.1093371703 | $590,509 | $590,509 | $64.56 | | |
| POCOUPIDD | Port of Coupeville IDD | 0.3409740022 | $590,509 | $590,509 | $201.35 | | |
| COUPSDTECH | School 204 CP (TECH) | 0.7545480007 | $590,509 | $590,509 | $445.57 | | |
| SCH204MO | School 204 Enrichment | 0.6716186034 | $590,509 | $590,509 | $396.60 | | |
| ST | State School | 1.3035497053 | $590,509 | $590,509 | $769.76 | | |
| ST2 | State School Part 2 | 0.8169543533 | $590,509 | $590,509 | $482.42 | | |
| | Total Tax Rate: | 8.0434218834 | | | | | |
| | | | | Taxes w/Current Exemptions: | $4,749.72 | | |
| | | | | Taxes w/o Exemptions: | $4,749.72 | | |
Improvement / Building
| Improvement #1: | RESIDENTIAL | State Code: | Y | 1868.0 sqft | Value: | $330,509 |
| Bathrooms: | 2 | Bedrooms: | 2 | | Ceiling: | DRY WALL SPRAYED | Cooling: | HEAT PUMP/CONV/V | | Exterior Wall/Cover: | PLY/HARDBOARD T-111 | Floor Covering: | CARPET/VINYL 60-40 | | Floor Structure: | WOOD W/SUBFLOOR | Foundation: | CONCRETE | | Interior Finish: | DRYWALL PAINT | Plumbing Fixture Cnt: | 9 | | Roof Slope: | 4" IN 12" | Roof Structure/Cover: | CJ ALUMINIUM HEAVY |
|
| | Type | Description | Class CD | Sub Class CD | Year Built | Area |
| | BAS | BASE/MAIN FLOOR | 3 | 0 | 1980 | 1184.0 |
| | DWN | DOWNSTAIRS LIVING AREA | 3 | 0 | 1980 | 400.0 |
| | OCP | OPEN CARPORT | 3 | 0 | 1980 | 320.0 |
| | UPS | UPPER STORY | 3 | 0 | 1980 | 284.0 |
| | BAR | BALCONY W/ROOF | 3 | 0 | 1980 | 78.0 |
| | OWP | OPEN WOOD PORCH W/STEPS | 3 | 0 | 1980 | 289.0 |
| | OWC | OPEN WOOD PORCH W/STEPS/ROOF/C | 3 | 0 | 1980 | 24.0 |
| | UTY | STORAGE/UTILITY | 3 | 0 | 1980 | 96.0 |
Sketch
| No sketches available for this property. |
Property Image
Land
| 1 | HS | HOMESITE | 0.2296 | 10000.00 | 0.00 | 0.00 | 1.00 | $260,000 | $0 |
Roll Value History
| 2026 | N/A | N/A | N/A | N/A | N/A |
| 2025 | $330,509 | $260,000 | $0 | $590,509 | $590,509 |
| 2024 | $332,413 | $240,000 | $0 | $572,413 | $572,413 |
| 2023 | $336,359 | $240,000 | $0 | $576,359 | $576,359 |
| 2022 | $271,383 | $200,000 | $0 | $471,383 | $471,383 |
| 2021 | $239,002 | $150,000 | $0 | $389,002 | $389,002 |
| 2020 | $227,562 | $130,000 | $0 | $357,562 | $357,562 |
| 2019 | $171,782 | $170,000 | $0 | $341,782 | $341,782 |
| 2018 | $163,914 | $150,000 | $0 | $313,914 | $313,914 |
| 2017 | $165,015 | $125,000 | $0 | $290,015 | $290,015 |
| 2016 | $167,217 | $115,000 | $0 | $282,217 | $282,217 |
| 2015 | $169,421 | $90,000 | $0 | $259,421 | $259,421 |
| 2014 | $171,624 | $85,000 | $0 | $256,624 | $256,624 |
| 2013 | $173,826 | $85,000 | $0 | $258,826 | $258,826 |
| 2012 | $182,746 | $90,950 | $0 | $273,696 | $273,696 |
| 2011 | $185,066 | $107,000 | $0 | $292,066 | $292,066 |
| 2010 | $191,074 | $107,000 | $0 | $298,074 | $298,074 |
| 2009 | $199,435 | $125,000 | $0 | $324,435 | $324,435 |
| 2008 | $202,163 | $145,000 | $0 | $347,163 | $347,163 |
| 2007 | $204,858 | $145,000 | $0 | $349,858 | $349,858 |
Deed and Sales History
| 1 | 05/31/2022 | WD | Warranty Deed | REED, JENNIFER L | CHAMBERS, CHRISTIAN R. | | | $590,000.00 | 53290 | 4545990 |
| 2 | 07/29/2020 | WD | Warranty Deed | FRALICK, PATRICIA | REED, JENNIFER L | | | $427,500.00 | 44229 | 4493820 |
| 3 | 10/03/2018 | QCD | Quit Claim Deed | FRALICK, PATRICIA L | FRALICK, PATRICIA | | | $0.00 | 36219 | 4453118 |
| 4 | 10/11/2005 | ESTSEPPROP | Establish Separate Property | FRALICK, PATRICIA L | FRALICK, PATRICIA L | | | $0.00 | 55367 | 4151677 |
| 5 | 11/30/1998 | QCD | Quit Claim Deed | FRALICK, PATRICIA L | FRALICK, PATRICIA L | | | $0.00 | 84924 | 98027111 |
| 6 | 05/01/1998 | QCD | Quit Claim Deed | FRALICK, PATRICIA L | FRALICK, PATRICIA L | | | $0.00 | 81743 | 98009323 |
| 7 | 12/01/1997 | QCD | Quit Claim Deed | FRALICK, PATRICIA L | FRALICK, PATRICIA L | | | $0.00 | 74352 | 97020894 |
| 8 | 05/01/1997 | WD | Warranty Deed | DAVIS, RAYMOND E | FRALICK, PATRICIA L | | | $180,000.00 | 71754 | 97008016 |
| 9 | 05/01/1992 | WD | Warranty Deed | CARR, JOHN C | DAVIS, RAYMOND E | | | $127,500.00 | 21723 | 92008252 |
| 10 | 05/01/1984 | QCD | Quit Claim Deed | CARR, MARY M | CARR, JOHN C | | | $0.00 | 41497 | 425150 |
| 11 | 02/01/1980 | CD | DNU - Correction Deed | CARR, MARY M | CARR, MARY M | | | $0.00 | 645 | 365572 |
| 12 | 01/01/1900 | OTHER | Other - Misc. Documents | Unknown | FRALICK, PATRICIA L | | | $0.00 | 81743 | 98009323 |
| 13 | 01/01/1900 | OTHER | Other - Misc. Documents | FRALICK, PATRICIA L | CARR, MARY M | | | $0.00 | 0 | 0 |
Payout Agreement
| No payout information available.. |