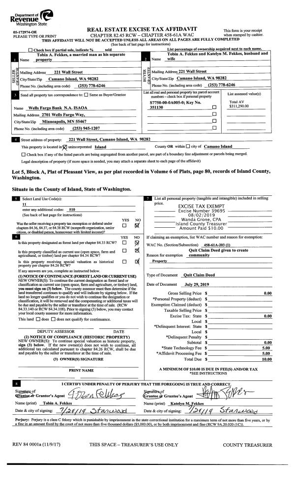
Property
Account |
| Property ID: | 170264 | Abbreviated Legal Description: | ACADEMY ADD LOTS 5 & 7 BLK 12 EX E58 .11' TGW S/2 VAC DENISON ST & E52.5' OF ADJ VAC LASALLE ST SUBJ TO EZ (LOT A C-SP AF#322685) TGW & SUB EZ AF#950014373 |
| Geographic ID: | S6005-00-12005-0 | Agent Code: | |
| Type: | Real | | |
| Tax Area: | 300 - APPRAISER-Cpvl Schl Dist, in Cpvl | Land Use Code | 11 |
| Open Space: | N | DFL | N |
| Historic Property: | N | Remodel Property: | N |
| Multi-Family Redevelopment: | N | | |
| Township: | | Section: | |
| Range: | |
Location |
| Address: | 805 NE 8TH ST COUPEVILLE, WA 98239 | Mapsco: | |
| Neighborhood: | Cycle 2 | Map ID: | 179 |
| Neighborhood CD: | 2 |
Owner |
| Name: | NORTON, CHARLES W | Owner ID: | 314677 |
| Mailing Address: | STACIE A LORENSON 805 NE 8TH ST COUPEVILLE, WA 98239 | % Ownership: | 100.0000000000% |
| | | Exemptions: | |
Taxes and Assessment Details
Values
| (+) Improvement Homesite Value: | + | $0 | |
| (+) Improvement Non-Homesite Value: | + | $274,977 | |
| (+) Land Homesite Value: | + | $0 | |
| (+) Land Non-Homesite Value: | + | $260,000 | |
| (+) Curr Use (HS): | + | $0 | $0 |
| (+) Curr Use (NHS): | + | $0 | $0 |
| | | -------------------------- | |
| (=) Market Value: | = | $534,977 | |
| (–) Productivity Loss: | – | $0 | |
| | | -------------------------- | |
| (=) Subtotal: | = | $534,977 | |
| (+) Senior Appraised Value: | + | $0 | |
| (+) Non-Senior Appraised Value: | + | $534,977 | |
| | | -------------------------- | |
| (=) Total Appraised Value: | = | $534,977 | |
| (–) Senior Exemption Loss: | – | $0 | |
| (–) Exemption Loss: | – | $0 | |
| | | -------------------------- | |
| (=) Taxable Value: | = | $534,977 | |
Taxing Jurisdiction
| Owner: | NORTON, CHARLES W | | |
| % Ownership: | 100.0000000000% | | |
| Total Value: | $534,977 | | |
| Tax Area: | 300 - APPRAISER-Cpvl Schl Dist, in Cpvl |
| CF | Conservation Futures | 0.0316035091 | $534,977 | $534,977 | $16.91 | | |
| CEM2 | Cemetery #2 | 0.0095056933 | $534,977 | $534,977 | $5.09 | | |
| COUP | City: Town of Coupeville | 0.8426414490 | $534,977 | $534,977 | $450.79 | | |
| FIRE5 | Fire & Rescue Dist #5 C Whidbey GEN | 1.2008080668 | $534,977 | $534,977 | $642.40 | | |
| FIRE5BOND | Fire & Rescue Dist #5 C Whidbey BOND | 0.1400090713 | $534,977 | $534,977 | $74.90 | | |
| HOBOND | Hospital BOND | 0.1910887512 | $534,977 | $534,977 | $102.23 | | |
| HOGEN | Hospital GEN | 0.3902502903 | $534,977 | $534,977 | $208.77 | | |
| CE | County Current Expense | 0.3708482477 | $534,977 | $534,977 | $198.40 | | |
| ISLANDEMS | Hospital GEN (EMS) | 0.5000000000 | $534,977 | $534,977 | $267.49 | | |
| LIB | Library Sno-Isle GEN | 0.3153421757 | $534,977 | $534,977 | $168.70 | | |
| LIBCAP | Library Sno-Isle BOND (Cap Fac Imp Area) | 0.0543427938 | $534,977 | $534,977 | $29.07 | | |
| POCOUP | Port of Coupeville GEN | 0.1093371703 | $534,977 | $534,977 | $58.49 | | |
| POCOUPIDD | Port of Coupeville IDD | 0.3409740022 | $534,977 | $534,977 | $182.41 | | |
| COUPSDTECH | School 204 CP (TECH) | 0.7545480007 | $534,977 | $534,977 | $403.67 | | |
| SCH204MO | School 204 Enrichment | 0.6716186034 | $534,977 | $534,977 | $359.30 | | |
| ST | State School | 1.3035497053 | $534,977 | $534,977 | $697.37 | | |
| ST2 | State School Part 2 | 0.8169543533 | $534,977 | $534,977 | $437.05 | | |
| | Total Tax Rate: | 8.0434218834 | | | | | |
| | | | | Taxes w/Current Exemptions: | $4,303.04 | | |
| | | | | Taxes w/o Exemptions: | $4,303.04 | | |
Improvement / Building
| Improvement #1: | RESIDENTIAL | State Code: | Y | 1355.0 sqft | Value: | $274,977 |
| Bathrooms: | 2 | Bedrooms: | 3 | | Ceiling: | DRYWALL PAINTED | Exterior Wall/Cover: | PLY/HARDBOARD T-111 | | Floor Covering: | CARPET/VINYL 60-40 | Floor Structure: | WOOD W/SUBFLOOR | | Foundation: | CONCRETE | Heating: | FHA GAS | | Interior Finish: | DRYWALL PAINT | Plumbing Fixture Cnt: | 10 | | Roof Slope: | 5" IN 12" | Roof Structure/Cover: | CJ ASPHALT |
|
| | Type | Description | Class CD | Sub Class CD | Year Built | Area |
| | BAS | BASE/MAIN FLOOR | 3 | 0 | 1995 | 1355.0 |
| | OP4 | OPEN PORCH W/CEILING-ROOF | 3 | 0 | 1995 | 30.0 |
| | AGR | ATTACHED GARAGE | 3 | 0 | 1995 | 462.0 |
| | UTY | STORAGE/UTILITY | 3 | 0 | 1995 | 42.0 |
| | OWP | OPEN WOOD PORCH W/STEPS | 3 | 0 | 1995 | 467.5 |
| | OWC | OPEN WOOD PORCH W/STEPS/ROOF/C | 3 | 0 | 1995 | 209.0 |
Sketch
| No sketches available for this property. |
Property Image
Land
| 1 | HS | HOMESITE | 0.2870 | 12502.00 | 0.00 | 0.00 | 1.00 | $260,000 | $0 |
Roll Value History
| 2026 | N/A | N/A | N/A | N/A | N/A |
| 2025 | $274,977 | $260,000 | $0 | $534,977 | $534,977 |
| 2024 | $277,708 | $240,000 | $0 | $517,708 | $517,708 |
| 2023 | $281,124 | $240,000 | $0 | $521,124 | $521,124 |
| 2022 | $257,653 | $200,000 | $0 | $457,653 | $457,653 |
| 2021 | $226,743 | $150,000 | $0 | $376,743 | $376,743 |
| 2020 | $220,801 | $130,000 | $0 | $350,801 | $350,801 |
| 2019 | $151,854 | $170,000 | $0 | $321,854 | $321,854 |
| 2018 | $106,433 | $150,000 | $0 | $256,433 | $256,433 |
| 2017 | $107,078 | $125,000 | $0 | $232,078 | $232,078 |
| 2016 | $108,369 | $115,000 | $0 | $223,369 | $223,369 |
| 2015 | $109,659 | $90,000 | $0 | $199,659 | $199,659 |
| 2014 | $110,948 | $85,000 | $0 | $195,948 | $195,948 |
| 2013 | $112,239 | $85,000 | $0 | $197,239 | $197,239 |
| 2012 | $109,255 | $90,950 | $0 | $200,205 | $200,205 |
| 2011 | $110,496 | $107,000 | $0 | $217,496 | $217,496 |
| 2010 | $111,641 | $107,000 | $0 | $218,641 | $218,641 |
| 2009 | $117,035 | $125,000 | $0 | $242,035 | $242,035 |
| 2008 | $117,172 | $109,000 | $0 | $226,172 | $226,172 |
| 2007 | $128,860 | $85,906 | $0 | $214,766 | $214,766 |
Deed and Sales History
| 1 | 11/22/2024 | WD | Warranty Deed | HEMBREE TTEE, KIM BENEDICT | NORTON, CHARLES W | | | $615,000.00 | 61932 | 4579824 |
| 2 | 08/19/2019 | WD | Warranty Deed | CHRESTENSON, BARRY W | HEMBREE TTEE, KIM BENEDICT | | | $395,000.00 | 39944 | 4469821 |
| 3 | 10/11/2007 | WD | Warranty Deed | WILHORN, HARRY F | CHRESTENSON, BARRY W | | | $199,000.00 | 73504 | 4214576 |
| 4 | 09/01/1995 | WD | Warranty Deed | C, C D | WILHORN, HARRY F | | | $137,500.00 | 53149 | 95014457 |
| 5 | 09/01/1994 | WD | Warranty Deed | PARK, DAVID K | C, C D | | | $23,750.00 | 44375 | 94022573 |
| 6 | 01/01/1900 | OTHER | Other - Misc. Documents | Unknown | PARK, DAVID K | | | $0.00 | 0 | 0 |
Payout Agreement
| No payout information available.. |