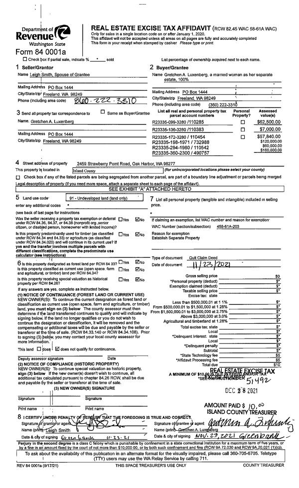
Property
Account |
| Property ID: | 170549 | Abbreviated Legal Description: | ADMIRALS COVE LOT 12 BLK 1 DRAINFIELD ON LOT 47 BLK 1 AF#89008920 |
| Geographic ID: | S6010-00-01012-0 | Agent Code: | |
| Type: | Real | | |
| Tax Area: | 390 - APPRAISER-Cpvl Schl Dist, Special Dist, improved & less than 1 acre | Land Use Code | 11 |
| Open Space: | N | DFL | N |
| Historic Property: | N | Remodel Property: | N |
| Multi-Family Redevelopment: | N | | |
| Township: | | Section: | |
| Range: | |
Location |
| Address: | 151 KEYSTONE AVE COUPEVILLE, WA 98239 | Mapsco: | |
| Neighborhood: | Cycle 2 | Map ID: | 81 |
| Neighborhood CD: | 2 |
Owner |
| Name: | MOORE TTEE, SHEILA E | Owner ID: | 299691 |
| Mailing Address: | 10218 NE 62ND ST KIRKLAND, WA 98033 | % Ownership: | 100.0000000000% |
| | | Exemptions: | |
Taxes and Assessment Details
Values
| (+) Improvement Homesite Value: | + | $0 | |
| (+) Improvement Non-Homesite Value: | + | $468,353 | |
| (+) Land Homesite Value: | + | $0 | |
| (+) Land Non-Homesite Value: | + | $750,000 | |
| (+) Curr Use (HS): | + | $0 | $0 |
| (+) Curr Use (NHS): | + | $0 | $0 |
| | | -------------------------- | |
| (=) Market Value: | = | $1,218,353 | |
| (–) Productivity Loss: | – | $0 | |
| | | -------------------------- | |
| (=) Subtotal: | = | $1,218,353 | |
| (+) Senior Appraised Value: | + | $0 | |
| (+) Non-Senior Appraised Value: | + | $1,218,353 | |
| | | -------------------------- | |
| (=) Total Appraised Value: | = | $1,218,353 | |
| (–) Senior Exemption Loss: | – | $0 | |
| (–) Exemption Loss: | – | $0 | |
| | | -------------------------- | |
| (=) Taxable Value: | = | $1,218,353 | |
Taxing Jurisdiction
| Owner: | MOORE TTEE, SHEILA E | | |
| % Ownership: | 100.0000000000% | | |
| Total Value: | $1,218,353 | | |
| Tax Area: | 390 - APPRAISER-Cpvl Schl Dist, Special Dist, improved & less than 1 acre |
| CF | Conservation Futures | 0.0316035091 | $1,218,353 | $1,218,353 | $38.50 | | |
| CEM2 | Cemetery #2 | 0.0095056933 | $1,218,353 | $1,218,353 | $11.58 | | |
| FIRE5 | Fire & Rescue Dist #5 C Whidbey GEN | 1.2008080668 | $1,218,353 | $1,218,353 | $1,463.01 | | |
| FIRE5BOND | Fire & Rescue Dist #5 C Whidbey BOND | 0.1400090713 | $1,218,353 | $1,218,353 | $170.58 | | |
| HOBOND | Hospital BOND | 0.1910887512 | $1,218,353 | $1,218,353 | $232.81 | | |
| HOGEN | Hospital GEN | 0.3902502903 | $1,218,353 | $1,218,353 | $475.46 | | |
| CE | County Current Expense | 0.3708482477 | $1,218,353 | $1,218,353 | $451.82 | | |
| CR | County Roads | 0.4584763726 | $1,218,353 | $1,218,353 | $558.59 | | |
| ISLANDEMS | Hospital GEN (EMS) | 0.5000000000 | $1,218,353 | $1,218,353 | $609.18 | | |
| LIB | Library Sno-Isle GEN | 0.3153421757 | $1,218,353 | $1,218,353 | $384.20 | | |
| LIBCAP | Library Sno-Isle BOND (Cap Fac Imp Area) | 0.0543427938 | $1,218,353 | $1,218,353 | $66.21 | | |
| POCOUP | Port of Coupeville GEN | 0.1093371703 | $1,218,353 | $1,218,353 | $133.21 | | |
| POCOUPIDD | Port of Coupeville IDD | 0.3409740022 | $1,218,353 | $1,218,353 | $415.43 | | |
| COUPSDTECH | School 204 CP (TECH) | 0.7545480007 | $1,218,353 | $1,218,353 | $919.31 | | |
| SCH204MO | School 204 Enrichment | 0.6716186034 | $1,218,353 | $1,218,353 | $818.27 | | |
| ST | State School | 1.3035497053 | $1,218,353 | $1,218,353 | $1,588.18 | | |
| ST2 | State School Part 2 | 0.8169543533 | $1,218,353 | $1,218,353 | $995.34 | | |
| | Total Tax Rate: | 7.6592568070 | | | | | |
| | | | | Taxes w/Current Exemptions: | $9,331.68 | | |
| | | | | Taxes w/o Exemptions: | $9,331.68 | | |
Improvement / Building
| Improvement #1: | RESIDENTIAL | State Code: | Y | 2202.7 sqft | Value: | $468,353 |
| Bathrooms: | 2 | Bedrooms: | 3 | | Ceiling: | DRYWALL PAINTED | Exterior Wall/Cover: | CEMENT FIBER | | Floor Covering: | VINYL/HARDWOOD 20-80 | Floor Structure: | WOOD W/SUBFLOOR | | Foundation: | CONCRETE | Heating: | WALL HEAT ELECTRIC | | Interior Finish: | DRYWALL PAINT | Plumbing Fixture Cnt: | 10 | | Roof Slope: | 3" IN 12" | Roof Structure/Cover: | CJ ALUMINIUM HEAVY |
|
| | Type | Description | Class CD | Sub Class CD | Year Built | Area |
| | BAS | BASE/MAIN FLOOR | 5 | 0 | 1994 | 1674.7 |
| | AGR | ATTACHED GARAGE | 5 | 0 | 1994 | 584.0 |
| | LOF | LOFT | 5 | 0 | 1994 | 528.0 |
| | OWP | OPEN WOOD PORCH W/STEPS | 5 | 0 | 1994 | 286.8 |
| | OWC | OPEN WOOD PORCH W/STEPS/ROOF/C | 5 | 0 | 1994 | 96.0 |
Sketch
Property Image
Land
| 1 | LB | LOW BANK | 0.1700 | 7405.20 | 60.00 | 0.00 | 1.00 | $750,000 | $0 |
Roll Value History
| 2026 | N/A | N/A | N/A | N/A | N/A |
| 2025 | $468,353 | $750,000 | $0 | $1,218,353 | $1,218,353 |
| 2024 | $415,959 | $725,000 | $0 | $1,140,959 | $1,140,959 |
| 2023 | $421,142 | $700,000 | $0 | $1,121,142 | $1,121,142 |
| 2022 | $386,042 | $600,000 | $0 | $986,042 | $986,042 |
| 2021 | $339,767 | $450,000 | $0 | $789,767 | $789,767 |
| 2020 | $331,641 | $450,000 | $0 | $781,641 | $781,641 |
| 2019 | $251,284 | $450,000 | $0 | $701,284 | $701,284 |
| 2018 | $243,545 | $450,000 | $0 | $693,545 | $693,545 |
| 2017 | $246,077 | $450,000 | $0 | $696,077 | $696,077 |
| 2016 | $249,007 | $450,000 | $0 | $699,007 | $699,007 |
| 2015 | $251,937 | $400,000 | $0 | $651,937 | $651,937 |
| 2014 | $254,866 | $400,000 | $0 | $654,866 | $654,866 |
| 2013 | $257,794 | $400,000 | $0 | $657,794 | $657,794 |
| 2012 | $304,375 | $420,858 | $0 | $725,233 | $725,233 |
| 2011 | $307,939 | $420,858 | $0 | $728,797 | $728,797 |
| 2010 | $315,605 | $420,858 | $0 | $736,463 | $736,463 |
| 2009 | $328,994 | $482,040 | $0 | $811,034 | $811,034 |
| 2008 | $332,801 | $556,200 | $0 | $889,001 | $889,001 |
| 2007 | $336,608 | $426,420 | $0 | $763,028 | $763,028 |
Deed and Sales History
| 1 | 06/04/2021 | WD | Warranty Deed | SCHAGRIN, ALEXANDER | MOORE TTEE, SHEILA E | | | $1,500,000.00 | 48573 | 4521171 |
| 2 | 05/31/2019 | WD | Warranty Deed | ALLEN, DARLA M | SCHAGRIN, ALEXANDER | | | $780,200.00 | 38864 | 4464868 |
| 3 | 12/12/2012 | TOD | Transfer On Death Deed | ALLEN, ARTHUR A & DARLA M | ALLEN, DARLA M | | | | 82563 | |
| 4 | 04/01/1994 | QCD | Quit Claim Deed | ALLEN, ARTHUR A | ALLEN, ARTHUR A | | | $0.00 | 42142 | 94012383 |
| 5 | 12/01/1992 | QCD | Quit Claim Deed | ALLEN, ARTHUR A | ALLEN, ARTHUR A | | | $0.00 | 24837 | 92023915 |
| 6 | 12/01/1988 | WD | Warranty Deed | ALLEN, ARTHUR A | ALLEN, ARTHUR A | | | $75,000.00 | 84250 | 88015873 |
| 7 | 12/01/1988 | OTHER | Other - Misc. Documents | COLEMAN, DANIEL R | ALLEN, ARTHUR A | | | $0.00 | 62974 | 88015872 |
| 8 | 12/01/1986 | REC | Real Estate Contract | HOLMS, DAVID W | COLEMAN, DANIEL R | | | $69,000.00 | 63867 | 86016992 |
| 9 | 12/01/1979 | EXECUTORD | Executor Deed | Unknown | HOLMS, DAVID W | | | $50,000.00 | 95818 | 362880 |
Payout Agreement
| No payout information available.. |