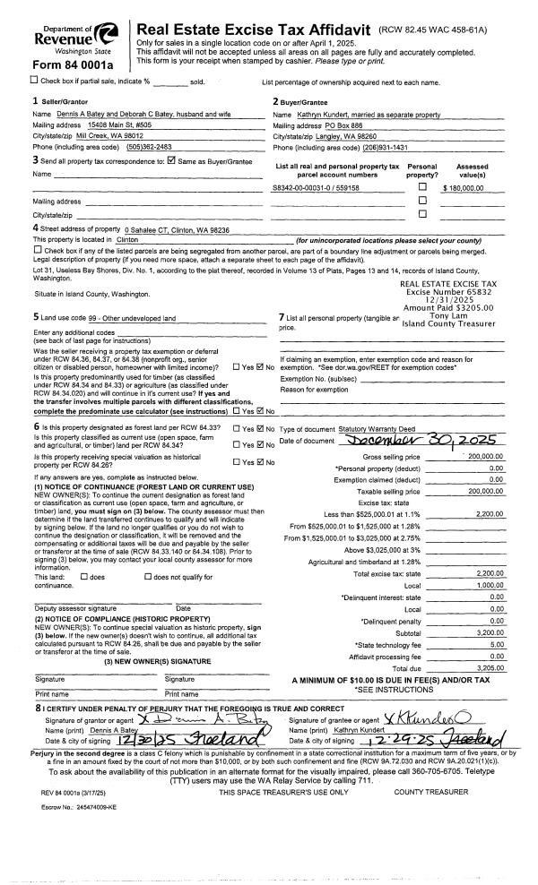
Property
Account |
| Property ID: | 170736 | Abbreviated Legal Description: | ADMIRALS COVE LOT 32 BLK 1 |
| Geographic ID: | S6010-00-01032-0 | Agent Code: | |
| Type: | Real | | |
| Tax Area: | 390 - APPRAISER-Cpvl Schl Dist, Special Dist, improved & less than 1 acre | Land Use Code | 11 |
| Open Space: | N | DFL | N |
| Historic Property: | N | Remodel Property: | N |
| Multi-Family Redevelopment: | N | | |
| Township: | | Section: | |
| Range: | |
Location |
| Address: | 78 KEYSTONE AVE COUPEVILLE, WA 98239 | Mapsco: | |
| Neighborhood: | Cycle 2 | Map ID: | 81 |
| Neighborhood CD: | 2 |
Owner |
| Name: | PURSELL, MICHAEL ALAN | Owner ID: | 303342 |
| Mailing Address: | LINDSEY ADISHIAN PURSELL 78 KEYSTONE AVE COUPEVILLE, WA 98239 | % Ownership: | 100.0000000000% |
| | | Exemptions: | |
Taxes and Assessment Details
Values
| (+) Improvement Homesite Value: | + | $0 | |
| (+) Improvement Non-Homesite Value: | + | $569,222 | |
| (+) Land Homesite Value: | + | $0 | |
| (+) Land Non-Homesite Value: | + | $260,000 | |
| (+) Curr Use (HS): | + | $0 | $0 |
| (+) Curr Use (NHS): | + | $0 | $0 |
| | | -------------------------- | |
| (=) Market Value: | = | $829,222 | |
| (–) Productivity Loss: | – | $0 | |
| | | -------------------------- | |
| (=) Subtotal: | = | $829,222 | |
| (+) Senior Appraised Value: | + | $0 | |
| (+) Non-Senior Appraised Value: | + | $829,222 | |
| | | -------------------------- | |
| (=) Total Appraised Value: | = | $829,222 | |
| (–) Senior Exemption Loss: | – | $0 | |
| (–) Exemption Loss: | – | $0 | |
| | | -------------------------- | |
| (=) Taxable Value: | = | $829,222 | |
Taxing Jurisdiction
| Owner: | PURSELL, MICHAEL ALAN | | |
| % Ownership: | 100.0000000000% | | |
| Total Value: | $829,222 | | |
| Tax Area: | 390 - APPRAISER-Cpvl Schl Dist, Special Dist, improved & less than 1 acre |
| CF | Conservation Futures | 0.0316035091 | $829,222 | $829,222 | $26.21 | | |
| CEM2 | Cemetery #2 | 0.0095056933 | $829,222 | $829,222 | $7.88 | | |
| FIRE5 | Fire & Rescue Dist #5 C Whidbey GEN | 1.2008080668 | $829,222 | $829,222 | $995.74 | | |
| FIRE5BOND | Fire & Rescue Dist #5 C Whidbey BOND | 0.1400090713 | $829,222 | $829,222 | $116.10 | | |
| HOBOND | Hospital BOND | 0.1910887512 | $829,222 | $829,222 | $158.45 | | |
| HOGEN | Hospital GEN | 0.3902502903 | $829,222 | $829,222 | $323.60 | | |
| CE | County Current Expense | 0.3708482477 | $829,222 | $829,222 | $307.52 | | |
| CR | County Roads | 0.4584763726 | $829,222 | $829,222 | $380.18 | | |
| ISLANDEMS | Hospital GEN (EMS) | 0.5000000000 | $829,222 | $829,222 | $414.61 | | |
| LIB | Library Sno-Isle GEN | 0.3153421757 | $829,222 | $829,222 | $261.49 | | |
| LIBCAP | Library Sno-Isle BOND (Cap Fac Imp Area) | 0.0543427938 | $829,222 | $829,222 | $45.06 | | |
| POCOUP | Port of Coupeville GEN | 0.1093371703 | $829,222 | $829,222 | $90.66 | | |
| POCOUPIDD | Port of Coupeville IDD | 0.3409740022 | $829,222 | $829,222 | $282.74 | | |
| COUPSDTECH | School 204 CP (TECH) | 0.7545480007 | $829,222 | $829,222 | $625.69 | | |
| SCH204MO | School 204 Enrichment | 0.6716186034 | $829,222 | $829,222 | $556.92 | | |
| ST | State School | 1.3035497053 | $829,222 | $829,222 | $1,080.93 | | |
| ST2 | State School Part 2 | 0.8169543533 | $829,222 | $829,222 | $677.44 | | |
| | Total Tax Rate: | 7.6592568070 | | | | | |
| | | | | Taxes w/Current Exemptions: | $6,351.22 | | |
| | | | | Taxes w/o Exemptions: | $6,351.22 | | |
Improvement / Building
| Improvement #1: | RESIDENTIAL | State Code: | Y | 2523.0 sqft | Value: | $569,222 |
| Bathrooms: | 3 | Bedrooms: | 2 | | Ceiling: | DRYWALL PAINTED | Exterior Wall/Cover: | VINYL | | Floor Covering: | CARPET/VINYL 20-80 | Floor Structure: | WOOD W/SUBFLOOR | | Foundation: | CONCRETE | Heating: | FHA GAS | | Interior Finish: | DRYWALL PAINT | Plumbing Fixture Cnt: | 16 | | Roof Slope: | 5" IN 12" | Roof Structure/Cover: | CJ ASPHALT |
|
| | Type | Description | Class CD | Sub Class CD | Year Built | Area |
| | BAS | BASE/MAIN FLOOR | 5 | 0 | 1998 | 1262.5 |
| | OP2 | OPEN PORCH W/STEPS | 5 | 0 | 1998 | 47.1 |
| | AGR | ATTACHED GARAGE | 5 | 0 | 1998 | 420.0 |
| | UPS | UPPER STORY | 5 | 0 | 1998 | 1134.5 |
| | OWP | OPEN WOOD PORCH W/STEPS | 5 | 0 | 1998 | 120.0 |
| | LOF | LOFT | 5 | 0 | 1998 | 126.0 |
| | BAW | BALCONY WOOD RAIL | 5 | 0 | 1998 | 24.0 |
| | OWP | OPEN WOOD PORCH W/STEPS | 5 | 0 | 1998 | 104.5 |
Sketch
Property Image
Land
| 1 | HS | HOMESITE | 0.1900 | 8276.40 | 0.00 | 0.00 | 1.00 | $260,000 | $0 |
Roll Value History
| 2026 | N/A | N/A | N/A | N/A | N/A |
| 2025 | $569,222 | $260,000 | $0 | $829,222 | $829,222 |
| 2024 | $562,697 | $260,000 | $0 | $822,697 | $822,697 |
| 2023 | $569,222 | $260,000 | $0 | $829,222 | $829,222 |
| 2022 | $407,290 | $250,000 | $0 | $657,290 | $657,290 |
| 2021 | $358,185 | $200,000 | $0 | $558,185 | $558,185 |
| 2020 | $348,514 | $190,000 | $0 | $538,514 | $538,514 |
| 2019 | $272,477 | $190,000 | $0 | $462,477 | $462,477 |
| 2018 | $246,863 | $160,000 | $0 | $406,863 | $406,863 |
| 2017 | $248,240 | $160,000 | $0 | $408,240 | $408,240 |
| 2016 | $250,998 | $125,000 | $0 | $375,998 | $375,998 |
| 2015 | $253,757 | $125,000 | $0 | $378,757 | $378,757 |
| 2014 | $256,515 | $100,000 | $0 | $356,515 | $356,515 |
| 2013 | $259,274 | $100,000 | $0 | $359,274 | $359,274 |
| 2012 | $243,206 | $85,000 | $0 | $328,206 | $328,206 |
| 2011 | $245,958 | $100,000 | $0 | $345,958 | $345,958 |
| 2010 | $239,169 | $100,000 | $0 | $339,169 | $339,169 |
| 2009 | $249,386 | $170,000 | $0 | $419,386 | $419,386 |
| 2008 | $252,442 | $170,000 | $0 | $422,442 | $422,442 |
| 2007 | $255,494 | $170,000 | $0 | $425,494 | $425,494 |
Deed and Sales History
| 1 | 02/25/2022 | WD | Warranty Deed | BLANKENSHIP, KURT S | PURSELL, MICHAEL ALAN | | | $875,000.00 | 52119 | 4040593 |
| 2 | 07/20/2010 | WD | Warranty Deed | DESMITH, CHARLES H | BLANKENSHIP, KURT S | | | $490,000.00 | 1810 | 4277526 |
| 3 | 04/01/1985 | WD | Warranty Deed | ANDERSON, ROBERT N | DESMITH, CHARLES H | | | $18,000.00 | 50917 | 85003833 |
| 4 | 01/01/1900 | OTHER | Other - Misc. Documents | Unknown | ANDERSON, ROBERT N | | | $7,950.00 | 0 | 0 |
Payout Agreement
| No payout information available.. |