Property
Account |
| Property ID: | 170763 | Abbreviated Legal Description: | ADMIRALS COVE LOT 35 BLK 1 |
| Geographic ID: | S6010-00-01035-0 | Agent Code: | |
| Type: | Real | | |
| Tax Area: | 390 - APPRAISER-Cpvl Schl Dist, Special Dist, improved & less than 1 acre | Land Use Code | 11 |
| Open Space: | N | DFL | N |
| Historic Property: | N | Remodel Property: | N |
| Multi-Family Redevelopment: | N | | |
| Township: | | Section: | |
| Range: | |
Location |
| Address: | 90 KEYSTONE AVE COUPEVILLE, WA 98239 | Mapsco: | |
| Neighborhood: | Cycle 2 | Map ID: | 81 |
| Neighborhood CD: | 2 |
Owner |
| Name: | LARSEN, TODD | Owner ID: | 292810 |
| Mailing Address: | ROBERTA LARSEN 22430 31ST AVE SE BOTHELL, WA 98021 | % Ownership: | 100.0000000000% |
| | | Exemptions: | |
Taxes and Assessment Details
Values
| (+) Improvement Homesite Value: | + | $0 | |
| (+) Improvement Non-Homesite Value: | + | $185,011 | |
| (+) Land Homesite Value: | + | $0 | |
| (+) Land Non-Homesite Value: | + | $260,000 | |
| (+) Curr Use (HS): | + | $0 | $0 |
| (+) Curr Use (NHS): | + | $0 | $0 |
| | | -------------------------- | |
| (=) Market Value: | = | $445,011 | |
| (–) Productivity Loss: | – | $0 | |
| | | -------------------------- | |
| (=) Subtotal: | = | $445,011 | |
| (+) Senior Appraised Value: | + | $0 | |
| (+) Non-Senior Appraised Value: | + | $445,011 | |
| | | -------------------------- | |
| (=) Total Appraised Value: | = | $445,011 | |
| (–) Senior Exemption Loss: | – | $0 | |
| (–) Exemption Loss: | – | $0 | |
| | | -------------------------- | |
| (=) Taxable Value: | = | $445,011 | |
Taxing Jurisdiction
| Owner: | LARSEN, TODD | | |
| % Ownership: | 100.0000000000% | | |
| Total Value: | $445,011 | | |
| Tax Area: | 390 - APPRAISER-Cpvl Schl Dist, Special Dist, improved & less than 1 acre |
| CF | Conservation Futures | 0.0316035091 | $445,011 | $445,011 | $14.06 | | |
| CEM2 | Cemetery #2 | 0.0095056933 | $445,011 | $445,011 | $4.23 | | |
| FIRE5 | Fire & Rescue Dist #5 C Whidbey GEN | 1.2008080668 | $445,011 | $445,011 | $534.37 | | |
| FIRE5BOND | Fire & Rescue Dist #5 C Whidbey BOND | 0.1400090713 | $445,011 | $445,011 | $62.31 | | |
| HOBOND | Hospital BOND | 0.1910887512 | $445,011 | $445,011 | $85.04 | | |
| HOGEN | Hospital GEN | 0.3902502903 | $445,011 | $445,011 | $173.67 | | |
| CE | County Current Expense | 0.3708482477 | $445,011 | $445,011 | $165.03 | | |
| CR | County Roads | 0.4584763726 | $445,011 | $445,011 | $204.03 | | |
| ISLANDEMS | Hospital GEN (EMS) | 0.5000000000 | $445,011 | $445,011 | $222.51 | | |
| LIB | Library Sno-Isle GEN | 0.3153421757 | $445,011 | $445,011 | $140.33 | | |
| LIBCAP | Library Sno-Isle BOND (Cap Fac Imp Area) | 0.0543427938 | $445,011 | $445,011 | $24.18 | | |
| POCOUP | Port of Coupeville GEN | 0.1093371703 | $445,011 | $445,011 | $48.66 | | |
| POCOUPIDD | Port of Coupeville IDD | 0.3409740022 | $445,011 | $445,011 | $151.74 | | |
| COUPSDTECH | School 204 CP (TECH) | 0.7545480007 | $445,011 | $445,011 | $335.78 | | |
| SCH204MO | School 204 Enrichment | 0.6716186034 | $445,011 | $445,011 | $298.88 | | |
| ST | State School | 1.3035497053 | $445,011 | $445,011 | $580.09 | | |
| ST2 | State School Part 2 | 0.8169543533 | $445,011 | $445,011 | $363.55 | | |
| | Total Tax Rate: | 7.6592568070 | | | | | |
| | | | | Taxes w/Current Exemptions: | $3,408.46 | | |
| | | | | Taxes w/o Exemptions: | $3,408.46 | | |
Improvement / Building
| Improvement #1: | RESIDENTIAL | State Code: | Y | 1280.0 sqft | Value: | $185,011 |
| Bathrooms: | 1.5 | Bedrooms: | 1 | | Ceiling: | TONGUE & GROOVE | Cooling: | HEAT PUMP/CONV/V | | Exterior Wall/Cover: | PLY/HARDBOARD T-111 | Floor Covering: | CARPET/VINYL 80-20 | | Floor Structure: | WOOD W/SUBFLOOR | Foundation: | CONCRETE | | Interior Finish: | DRYWALL PAINT | Plumbing Fixture Cnt: | 9 | | Roof Slope: | 3" IN 12" | Roof Structure/Cover: | BEAM BUILT-UP ROCK |
|
| | Type | Description | Class CD | Sub Class CD | Year Built | Area |
| | BAS | BASE/MAIN FLOOR | 3 | 0 | 1969 | 640.0 |
| | DWN | DOWNSTAIRS LIVING AREA | 3 | 0 | 1969 | 640.0 |
| | OWP | OPEN WOOD PORCH W/STEPS | 3 | 0 | 1969 | 420.0 |
Sketch
Property Image
Land
| 1 | HS | HOMESITE | 0.1800 | 7840.80 | 0.00 | 0.00 | 1.00 | $260,000 | $0 |
Roll Value History
| 2026 | N/A | N/A | N/A | N/A | N/A |
| 2025 | $185,011 | $260,000 | $0 | $445,011 | $445,011 |
| 2024 | $182,551 | $260,000 | $0 | $442,551 | $442,551 |
| 2023 | $185,011 | $260,000 | $0 | $445,011 | $445,011 |
| 2022 | $169,762 | $250,000 | $0 | $419,762 | $419,762 |
| 2021 | $149,547 | $200,000 | $0 | $349,547 | $349,547 |
| 2020 | $145,699 | $190,000 | $0 | $335,699 | $335,699 |
| 2019 | $103,330 | $190,000 | $0 | $293,330 | $293,330 |
| 2018 | $99,745 | $160,000 | $0 | $259,745 | $82,639 |
| 2017 | $100,396 | $160,000 | $0 | $260,396 | $82,639 |
| 2016 | $101,699 | $125,000 | $0 | $226,699 | $82,639 |
| 2015 | $80,748 | $125,000 | $0 | $205,748 | $82,299 |
| 2014 | $81,901 | $100,000 | $0 | $181,901 | $181,901 |
| 2013 | $83,055 | $100,000 | $0 | $183,055 | $183,055 |
| 2012 | $68,408 | $74,213 | $0 | $142,621 | $142,621 |
| 2011 | $69,487 | $87,309 | $0 | $156,796 | $156,796 |
| 2010 | $72,837 | $87,309 | $0 | $160,146 | $160,146 |
| 2009 | $76,391 | $166,600 | $0 | $242,991 | $242,991 |
| 2008 | $76,763 | $166,600 | $0 | $243,363 | $243,363 |
| 2007 | $78,193 | $167,000 | $0 | $245,193 | $245,193 |
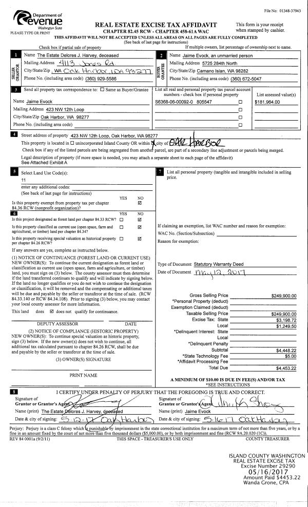
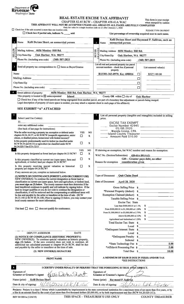
Deed and Sales History
| 1 | 10/15/2019 | WD | Warranty Deed | WILDER, JENNIFER ROSE | LARSEN, TODD | | | $340,000.00 | 40963 | 4474792 |
| 2 | 06/24/2015 | WD | Warranty Deed | RITCHEY TTEE, STEWART P | WILDER, JENNIFER ROSE | | | $211,000.00 | 20243 | 4381233 |
| 3 | 04/18/2007 | QCD | Quit Claim Deed | RITCHEY, STEWART P | RITCHEY TTEE, STEWART P | | | $0.00 | 71625 | 4202250 |
| 4 | 01/01/1900 | OTHER | Other - Misc. Documents | Unknown | RITCHEY, STEWART P | | | $6,300.00 | 0 | 0 |
Payout Agreement
| No payout information available.. |