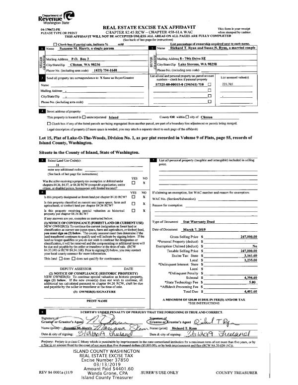
Property
Account |
| Property ID: | 170852 | Abbreviated Legal Description: | LOT 44 BLK 1 ADMIRALS COVE |
| Geographic ID: | S6010-00-01044-0 | Agent Code: | |
| Type: | Real | | |
| Tax Area: | 390 - APPRAISER-Cpvl Schl Dist, Special Dist, improved & less than 1 acre | Land Use Code | 11 |
| Open Space: | N | DFL | N |
| Historic Property: | N | Remodel Property: | N |
| Multi-Family Redevelopment: | N | | |
| Township: | | Section: | |
| Range: | |
Location |
| Address: | 126 KEYSTONE AVE COUPEVILLE, WA 98239 | Mapsco: | |
| Neighborhood: | Cycle 2 | Map ID: | 81 |
| Neighborhood CD: | 2 |
Owner |
| Name: | BLAKE, WILLIAM J | Owner ID: | 8423 |
| Mailing Address: | SARAH BLAKE 12506 SMOKES RD ARLINGTON, WA 98223 | % Ownership: | 100.0000000000% |
| | | Exemptions: | |
Taxes and Assessment Details
Values
| (+) Improvement Homesite Value: | + | $0 | |
| (+) Improvement Non-Homesite Value: | + | $483,070 | |
| (+) Land Homesite Value: | + | $0 | |
| (+) Land Non-Homesite Value: | + | $260,000 | |
| (+) Curr Use (HS): | + | $0 | $0 |
| (+) Curr Use (NHS): | + | $0 | $0 |
| | | -------------------------- | |
| (=) Market Value: | = | $743,070 | |
| (–) Productivity Loss: | – | $0 | |
| | | -------------------------- | |
| (=) Subtotal: | = | $743,070 | |
| (+) Senior Appraised Value: | + | $0 | |
| (+) Non-Senior Appraised Value: | + | $743,070 | |
| | | -------------------------- | |
| (=) Total Appraised Value: | = | $743,070 | |
| (–) Senior Exemption Loss: | – | $0 | |
| (–) Exemption Loss: | – | $0 | |
| | | -------------------------- | |
| (=) Taxable Value: | = | $743,070 | |
Taxing Jurisdiction
| Owner: | BLAKE, WILLIAM J | | |
| % Ownership: | 100.0000000000% | | |
| Total Value: | $743,070 | | |
| Tax Area: | 390 - APPRAISER-Cpvl Schl Dist, Special Dist, improved & less than 1 acre |
| CF | Conservation Futures | 0.0316035091 | $743,070 | $743,070 | $23.48 | | |
| CEM2 | Cemetery #2 | 0.0095056933 | $743,070 | $743,070 | $7.06 | | |
| FIRE5 | Fire & Rescue Dist #5 C Whidbey GEN | 1.2008080668 | $743,070 | $743,070 | $892.28 | | |
| FIRE5BOND | Fire & Rescue Dist #5 C Whidbey BOND | 0.1400090713 | $743,070 | $743,070 | $104.04 | | |
| HOBOND | Hospital BOND | 0.1910887512 | $743,070 | $743,070 | $141.99 | | |
| HOGEN | Hospital GEN | 0.3902502903 | $743,070 | $743,070 | $289.98 | | |
| CE | County Current Expense | 0.3708482477 | $743,070 | $743,070 | $275.57 | | |
| CR | County Roads | 0.4584763726 | $743,070 | $743,070 | $340.68 | | |
| ISLANDEMS | Hospital GEN (EMS) | 0.5000000000 | $743,070 | $743,070 | $371.54 | | |
| LIB | Library Sno-Isle GEN | 0.3153421757 | $743,070 | $743,070 | $234.32 | | |
| LIBCAP | Library Sno-Isle BOND (Cap Fac Imp Area) | 0.0543427938 | $743,070 | $743,070 | $40.38 | | |
| POCOUP | Port of Coupeville GEN | 0.1093371703 | $743,070 | $743,070 | $81.25 | | |
| POCOUPIDD | Port of Coupeville IDD | 0.3409740022 | $743,070 | $743,070 | $253.37 | | |
| COUPSDTECH | School 204 CP (TECH) | 0.7545480007 | $743,070 | $743,070 | $560.68 | | |
| SCH204MO | School 204 Enrichment | 0.6716186034 | $743,070 | $743,070 | $499.06 | | |
| ST | State School | 1.3035497053 | $743,070 | $743,070 | $968.63 | | |
| ST2 | State School Part 2 | 0.8169543533 | $743,070 | $743,070 | $607.05 | | |
| | Total Tax Rate: | 7.6592568070 | | | | | |
| | | | | Taxes w/Current Exemptions: | $5,691.36 | | |
| | | | | Taxes w/o Exemptions: | $5,691.36 | | |
Improvement / Building
| Improvement #1: | RESIDENTIAL | State Code: | Y | 2297.8 sqft | Value: | $483,070 |
| Bathrooms: | 3 | Bedrooms: | 2 | | Ceiling: | DRYWALL PAINTED | Exterior Wall/Cover: | CEMENT FIBER | | Floor Covering: | (NONE) | Floor Structure: | WOOD W/SUBFLOOR | | Foundation: | CONCRETE | Interior Finish: | DRYWALL PAINT | | Plumbing Fixture Cnt: | 13 | Roof Slope: | 3" IN 12" | | Roof Structure/Cover: | BEAM ALUMINUM HEAVY |   |   |
|
| | Type | Description | Class CD | Sub Class CD | Year Built | Area |
| | BAS | BASE/MAIN FLOOR | 4 | 0 | 2015 | 1296.0 |
| | UPS | UPPER STORY | 4 | 0 | 2015 | 1001.8 |
| | BIG | BUILT IN GARAGE | 4 | 0 | 2015 | 932.0 |
| | UB8 | BASEMENT UNFINISHED 8" | 4 | 0 | 2015 | 220.0 |
| | OWP | OPEN WOOD PORCH W/STEPS | 4 | 0 | 2015 | 72.0 |
| | OWP | OPEN WOOD PORCH W/STEPS | 4 | 0 | 2015 | 136.4 |
| | OWP | OPEN WOOD PORCH W/STEPS | 4 | 0 | 2015 | 243.4 |
| | OWC | OPEN WOOD PORCH W/STEPS/ROOF/C | 4 | 0 | 2015 | 50.0 |
Sketch
Property Image
Land
| 1 | HS | HOMESITE | 0.1700 | 7405.20 | 0.00 | 0.00 | 1.00 | $260,000 | $0 |
Roll Value History
| 2026 | N/A | N/A | N/A | N/A | N/A |
| 2025 | $483,070 | $260,000 | $0 | $743,070 | $743,070 |
| 2024 | $479,144 | $260,000 | $0 | $739,144 | $739,144 |
| 2023 | $483,070 | $260,000 | $0 | $743,070 | $743,070 |
| 2022 | $440,976 | $250,000 | $0 | $690,976 | $690,976 |
| 2021 | $386,536 | $200,000 | $0 | $586,536 | $586,536 |
| 2020 | $374,904 | $190,000 | $0 | $564,904 | $564,904 |
| 2019 | $284,437 | $190,000 | $0 | $474,437 | $474,437 |
| 2018 | $245,033 | $160,000 | $0 | $405,033 | $405,033 |
| 2017 | $252,661 | $160,000 | $0 | $412,661 | $412,661 |
| 2016 | $163,156 | $85,000 | $0 | $248,156 | $248,156 |
| 2015 | $23,557 | $85,000 | $0 | $108,557 | $108,557 |
| 2014 | $0 | $85,000 | $0 | $85,000 | $85,000 |
| 2013 | $0 | $85,000 | $0 | $85,000 | $85,000 |
| 2012 | $0 | $86,490 | $0 | $86,490 | $86,490 |
| 2011 | $0 | $86,490 | $0 | $86,490 | $86,490 |
| 2010 | $0 | $86,490 | $0 | $86,490 | $86,490 |
| 2009 | $0 | $100,000 | $0 | $100,000 | $100,000 |
| 2008 | $0 | $100,000 | $0 | $100,000 | $100,000 |
| 2007 | $0 | $100,000 | $0 | $100,000 | $100,000 |
Deed and Sales History
| 1 | 12/09/2009 | WD | Warranty Deed | TIMM, LAVONNE L | BLAKE, WILLIAM J | | | $130,000.00 | 93070 | 4265408 |
| 2 | 01/01/1900 | OTHER | Other - Misc. Documents | Unknown | TIMM, LAVONNE L | | | $0.00 | 0 | 0 |
Payout Agreement
| No payout information available.. |