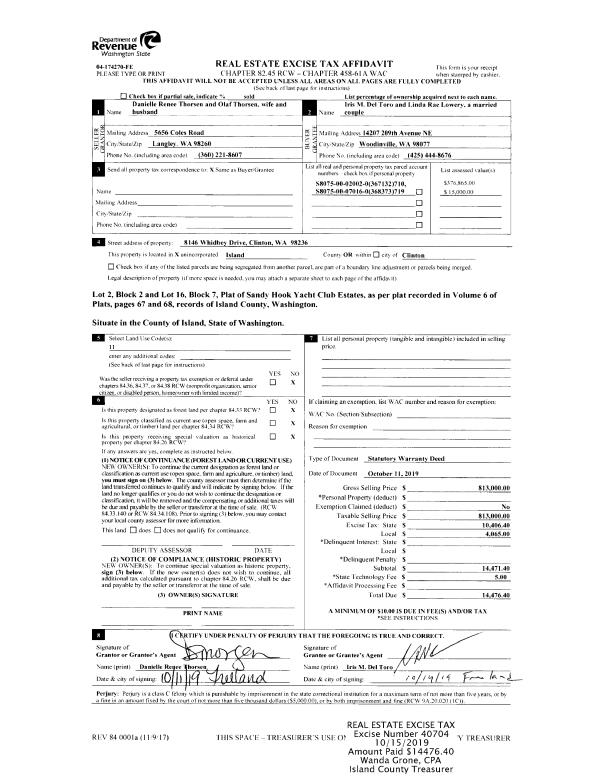
Property
Account |
| Property ID: | 171236 | Abbreviated Legal Description: | ADMIRALS COVE LOT 18 BLK 2 |
| Geographic ID: | S6010-00-02018-0 | Agent Code: | |
| Type: | Real | | |
| Tax Area: | 390 - APPRAISER-Cpvl Schl Dist, Special Dist, improved & less than 1 acre | Land Use Code | 11 |
| Open Space: | N | DFL | N |
| Historic Property: | N | Remodel Property: | N |
| Multi-Family Redevelopment: | N | | |
| Township: | | Section: | |
| Range: | |
Location |
| Address: | 1350 FARRAGUT DR COUPEVILLE, WA 98239 | Mapsco: | |
| Neighborhood: | Cycle 2 | Map ID: | 81 |
| Neighborhood CD: | 2 |
Owner |
| Name: | OBERBILLIG, DEBRA | Owner ID: | 291824 |
| Mailing Address: | 20519 SE 198TH ST RENTON, WA 98059 | % Ownership: | 100.0000000000% |
| | | Exemptions: | |
Taxes and Assessment Details
Values
| (+) Improvement Homesite Value: | + | $0 | |
| (+) Improvement Non-Homesite Value: | + | $182,607 | |
| (+) Land Homesite Value: | + | $0 | |
| (+) Land Non-Homesite Value: | + | $325,000 | |
| (+) Curr Use (HS): | + | $0 | $0 |
| (+) Curr Use (NHS): | + | $0 | $0 |
| | | -------------------------- | |
| (=) Market Value: | = | $507,607 | |
| (–) Productivity Loss: | – | $0 | |
| | | -------------------------- | |
| (=) Subtotal: | = | $507,607 | |
| (+) Senior Appraised Value: | + | $0 | |
| (+) Non-Senior Appraised Value: | + | $507,607 | |
| | | -------------------------- | |
| (=) Total Appraised Value: | = | $507,607 | |
| (–) Senior Exemption Loss: | – | $0 | |
| (–) Exemption Loss: | – | $0 | |
| | | -------------------------- | |
| (=) Taxable Value: | = | $507,607 | |
Taxing Jurisdiction
| Owner: | OBERBILLIG, DEBRA | | |
| % Ownership: | 100.0000000000% | | |
| Total Value: | $507,607 | | |
| Tax Area: | 390 - APPRAISER-Cpvl Schl Dist, Special Dist, improved & less than 1 acre |
| CF | Conservation Futures | 0.0316035091 | $507,607 | $507,607 | $16.04 | | |
| CEM2 | Cemetery #2 | 0.0095056933 | $507,607 | $507,607 | $4.83 | | |
| FIRE5 | Fire & Rescue Dist #5 C Whidbey GEN | 1.2008080668 | $507,607 | $507,607 | $609.54 | | |
| FIRE5BOND | Fire & Rescue Dist #5 C Whidbey BOND | 0.1400090713 | $507,607 | $507,607 | $71.07 | | |
| HOBOND | Hospital BOND | 0.1910887512 | $507,607 | $507,607 | $97.00 | | |
| HOGEN | Hospital GEN | 0.3902502903 | $507,607 | $507,607 | $198.09 | | |
| CE | County Current Expense | 0.3708482477 | $507,607 | $507,607 | $188.25 | | |
| CR | County Roads | 0.4584763726 | $507,607 | $507,607 | $232.73 | | |
| ISLANDEMS | Hospital GEN (EMS) | 0.5000000000 | $507,607 | $507,607 | $253.80 | | |
| LIB | Library Sno-Isle GEN | 0.3153421757 | $507,607 | $507,607 | $160.07 | | |
| LIBCAP | Library Sno-Isle BOND (Cap Fac Imp Area) | 0.0543427938 | $507,607 | $507,607 | $27.58 | | |
| POCOUP | Port of Coupeville GEN | 0.1093371703 | $507,607 | $507,607 | $55.50 | | |
| POCOUPIDD | Port of Coupeville IDD | 0.3409740022 | $507,607 | $507,607 | $173.08 | | |
| COUPSDTECH | School 204 CP (TECH) | 0.7545480007 | $507,607 | $507,607 | $383.01 | | |
| SCH204MO | School 204 Enrichment | 0.6716186034 | $507,607 | $507,607 | $340.92 | | |
| ST | State School | 1.3035497053 | $507,607 | $507,607 | $661.69 | | |
| ST2 | State School Part 2 | 0.8169543533 | $507,607 | $507,607 | $414.69 | | |
| | Total Tax Rate: | 7.6592568070 | | | | | |
| | | | | Taxes w/Current Exemptions: | $3,887.89 | | |
| | | | | Taxes w/o Exemptions: | $3,887.89 | | |
Improvement / Building
| Improvement #1: | RESIDENTIAL | State Code: | Y | 1120.0 sqft | Value: | $182,607 |
| Bathrooms: | 2 | Bedrooms: | 2 | | Ceiling: | TONGUE & GROOVE | Exterior Wall/Cover: | PLY/HARDBOARD T-111 | | Floor Covering: | CARPET/VINYL 80-20 | Floor Structure: | WOOD W/SUBFLOOR | | Foundation: | CONCRETE | Heating: | WALL HEAT ELECTRIC | | Interior Finish: | DRYWALL PAINT | Plumbing Fixture Cnt: | 9 | | Roof Slope: | 4" IN 12" | Roof Structure/Cover: | BEAM WOOD SHAKES |
|
| | Type | Description | Class CD | Sub Class CD | Year Built | Area |
| | BAS | BASE/MAIN FLOOR | 3 | 0 | 1974 | 1120.0 |
| | OWP | OPEN WOOD PORCH W/STEPS | 3 | 0 | 1974 | 700.0 |
Sketch
Property Image
Land
| 1 | HB | HIGH BLUFF | 0.1800 | 7840.80 | 61.00 | 0.00 | 1.00 | $325,000 | $0 |
Roll Value History
| 2026 | N/A | N/A | N/A | N/A | N/A |
| 2025 | $182,607 | $325,000 | $0 | $507,607 | $507,607 |
| 2024 | $174,580 | $260,000 | $0 | $434,580 | $434,580 |
| 2023 | $177,255 | $260,000 | $0 | $437,255 | $437,255 |
| 2022 | $162,928 | $250,000 | $0 | $412,928 | $412,928 |
| 2021 | $143,788 | $200,000 | $0 | $343,788 | $343,788 |
| 2020 | $140,132 | $180,000 | $0 | $320,132 | $320,132 |
| 2019 | $99,398 | $240,000 | $0 | $339,398 | $339,398 |
| 2018 | $95,511 | $200,000 | $0 | $295,511 | $295,511 |
| 2017 | $96,229 | $200,000 | $0 | $296,229 | $296,229 |
| 2016 | $97,666 | $200,000 | $0 | $297,666 | $297,666 |
| 2015 | $99,102 | $200,000 | $0 | $299,102 | $299,102 |
| 2014 | $100,538 | $200,000 | $0 | $300,538 | $300,538 |
| 2013 | $101,975 | $200,000 | $0 | $301,975 | $301,975 |
| 2012 | $83,719 | $192,684 | $0 | $276,403 | $276,403 |
| 2011 | $85,079 | $192,684 | $0 | $277,763 | $277,763 |
| 2010 | $95,022 | $192,684 | $0 | $287,706 | $287,706 |
| 2009 | $99,365 | $207,443 | $0 | $306,808 | $306,808 |
| 2008 | $68,562 | $145,693 | $0 | $214,255 | $214,255 |
| 2007 | $100,962 | $114,790 | $0 | $215,752 | $215,752 |
Deed and Sales History
| 1 | 09/18/2019 | QCD | Quit Claim Deed | OBERBILLIG, JOSEPH F | OBERBILLIG, DEBRA | | | $0.00 | 40337 | 4471700 |
| 2 | 09/18/2019 | QCD | Quit Claim Deed | PETERSON WHIDBEY PROPERTY LLC | OBERBILLIG, DEBRA | | | $0.00 | 40336 | 4471699 |
| 3 | 05/21/2016 | TRUSTEED | Trustee's Deed | PETERSON TRUSTEE, RODNEY W | PETERSON WHIDBEY PROPERTY LLC | | | $0.00 | 24890 | 4401691 |
| 4 | 06/12/2002 | WD | Warranty Deed | PETERSON, RODNEY W | PETERSON TRUSTEE, RODNEY W | | | $0.00 | 22392 | 4023644 |
| 5 | 11/01/1984 | WD | Warranty Deed | ROSS, JACK L | PETERSON, RODNEY W | | | $72,000.00 | 43458 | 84006124 |
| 6 | 01/01/1900 | OTHER | Other - Misc. Documents | Unknown | ROSS, JACK L | | | $7,500.00 | 0 | 0 |
Payout Agreement
| No payout information available.. |