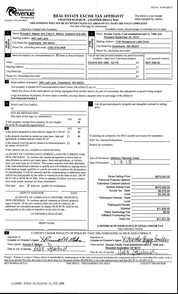
Property
Account |
| Property ID: | 171290 | Abbreviated Legal Description: | ADMIRALS COVE LOT 24 BLK 2 & NWLY 1/2 OF LOT 23 BLK 2 |
| Geographic ID: | S6010-00-02024-0 | Agent Code: | |
| Type: | Real | | |
| Tax Area: | 390 - APPRAISER-Cpvl Schl Dist, Special Dist, improved & less than 1 acre | Land Use Code | 11 |
| Open Space: | N | DFL | N |
| Historic Property: | N | Remodel Property: | N |
| Multi-Family Redevelopment: | N | | |
| Township: | | Section: | |
| Range: | |
Location |
| Address: | 1330 FARRAGUT DR COUPEVILLE, WA 98239 | Mapsco: | |
| Neighborhood: | Cycle 2 | Map ID: | 81 |
| Neighborhood CD: | 2 |
Owner |
| Name: | SMITH, SCOTT M | Owner ID: | 283345 |
| Mailing Address: | 1330 FARRAGUT DR COUPEVILLE, WA 98239 | % Ownership: | 100.0000000000% |
| | | Exemptions: | |
Taxes and Assessment Details
Values
| (+) Improvement Homesite Value: | + | $0 | |
| (+) Improvement Non-Homesite Value: | + | $241,023 | |
| (+) Land Homesite Value: | + | $0 | |
| (+) Land Non-Homesite Value: | + | $325,000 | |
| (+) Curr Use (HS): | + | $0 | $0 |
| (+) Curr Use (NHS): | + | $0 | $0 |
| | | -------------------------- | |
| (=) Market Value: | = | $566,023 | |
| (–) Productivity Loss: | – | $0 | |
| | | -------------------------- | |
| (=) Subtotal: | = | $566,023 | |
| (+) Senior Appraised Value: | + | $0 | |
| (+) Non-Senior Appraised Value: | + | $566,023 | |
| | | -------------------------- | |
| (=) Total Appraised Value: | = | $566,023 | |
| (–) Senior Exemption Loss: | – | $0 | |
| (–) Exemption Loss: | – | $0 | |
| | | -------------------------- | |
| (=) Taxable Value: | = | $566,023 | |
Taxing Jurisdiction
| Owner: | SMITH, SCOTT M | | |
| % Ownership: | 100.0000000000% | | |
| Total Value: | $566,023 | | |
| Tax Area: | 390 - APPRAISER-Cpvl Schl Dist, Special Dist, improved & less than 1 acre |
| CF | Conservation Futures | 0.0316035091 | $566,023 | $566,023 | $17.89 | | |
| CEM2 | Cemetery #2 | 0.0095056933 | $566,023 | $566,023 | $5.38 | | |
| FIRE5 | Fire & Rescue Dist #5 C Whidbey GEN | 1.2008080668 | $566,023 | $566,023 | $679.68 | | |
| FIRE5BOND | Fire & Rescue Dist #5 C Whidbey BOND | 0.1400090713 | $566,023 | $566,023 | $79.25 | | |
| HOBOND | Hospital BOND | 0.1910887512 | $566,023 | $566,023 | $108.16 | | |
| HOGEN | Hospital GEN | 0.3902502903 | $566,023 | $566,023 | $220.89 | | |
| CE | County Current Expense | 0.3708482477 | $566,023 | $566,023 | $209.91 | | |
| CR | County Roads | 0.4584763726 | $566,023 | $566,023 | $259.51 | | |
| ISLANDEMS | Hospital GEN (EMS) | 0.5000000000 | $566,023 | $566,023 | $283.01 | | |
| LIB | Library Sno-Isle GEN | 0.3153421757 | $566,023 | $566,023 | $178.49 | | |
| LIBCAP | Library Sno-Isle BOND (Cap Fac Imp Area) | 0.0543427938 | $566,023 | $566,023 | $30.76 | | |
| POCOUP | Port of Coupeville GEN | 0.1093371703 | $566,023 | $566,023 | $61.89 | | |
| POCOUPIDD | Port of Coupeville IDD | 0.3409740022 | $566,023 | $566,023 | $193.00 | | |
| COUPSDTECH | School 204 CP (TECH) | 0.7545480007 | $566,023 | $566,023 | $427.09 | | |
| SCH204MO | School 204 Enrichment | 0.6716186034 | $566,023 | $566,023 | $380.15 | | |
| ST | State School | 1.3035497053 | $566,023 | $566,023 | $737.84 | | |
| ST2 | State School Part 2 | 0.8169543533 | $566,023 | $566,023 | $462.41 | | |
| | Total Tax Rate: | 7.6592568070 | | | | | |
| | | | | Taxes w/Current Exemptions: | $4,335.31 | | |
| | | | | Taxes w/o Exemptions: | $4,335.31 | | |
Improvement / Building
| Improvement #1: | RESIDENTIAL | State Code: | Y | 1562.0 sqft | Value: | $241,023 |
| Bathrooms: | 2 | Bedrooms: | 3 | | Ceiling: | TONGUE & GROOVE | Cooling: | HEAT PUMP/CONV/V | | Exterior Wall/Cover: | PLY/HARDBOARD T-111 | Floor Covering: | CARPET/VINYL 80-20 | | Floor Structure: | WOOD W/SUBFLOOR | Foundation: | CONCRETE BLOCKS | | Interior Finish: | DRYWALL PAINT | Plumbing Fixture Cnt: | 9 | | Roof Slope: | FLAT | Roof Structure/Cover: | BEAM BUILT-UP ROCK |
|
| | Type | Description | Class CD | Sub Class CD | Year Built | Area |
| | BAS | BASE/MAIN FLOOR | 3 | 0 | 1968 | 1562.0 |
| | OP3 | OPEN PORCH W/ROOF | 3 | 0 | 1968 | 192.0 |
| | OP3 | OPEN PORCH W/ROOF | 3 | 0 | 1968 | 74.0 |
| | OCP | OPEN CARPORT | 3 | 0 | 1968 | 312.0 |
| | UTY | STORAGE/UTILITY | 3 | 0 | 1968 | 52.0 |
| | UTY | STORAGE/UTILITY | 3 | 0 | 1968 | 192.0 |
| | OWP | OPEN WOOD PORCH W/STEPS | 3 | 0 | 1968 | 200.0 |
Sketch
Property Image
Land
| 1 | HB | HIGH BLUFF | 0.2479 | 10800.00 | 90.00 | 0.00 | 1.00 | $325,000 | $0 |
Roll Value History
| 2026 | N/A | N/A | N/A | N/A | N/A |
| 2025 | $241,023 | $325,000 | $0 | $566,023 | $566,023 |
| 2024 | $242,766 | $325,000 | $0 | $567,766 | $567,766 |
| 2023 | $246,125 | $300,000 | $0 | $546,125 | $546,125 |
| 2022 | $225,902 | $250,000 | $0 | $475,902 | $475,902 |
| 2021 | $199,086 | $180,000 | $0 | $379,086 | $379,086 |
| 2020 | $194,294 | $180,000 | $0 | $374,294 | $374,294 |
| 2019 | $142,136 | $300,000 | $0 | $442,136 | $442,136 |
| 2018 | $113,836 | $250,000 | $0 | $363,836 | $363,836 |
| 2017 | $114,692 | $250,000 | $0 | $364,692 | $364,692 |
| 2016 | $116,404 | $250,000 | $0 | $366,404 | $113,867 |
| 2015 | $118,116 | $250,000 | $0 | $368,116 | $113,867 |
| 2014 | $119,828 | $250,000 | $0 | $369,828 | $113,867 |
| 2013 | $121,539 | $250,000 | $0 | $371,539 | $113,867 |
| 2012 | $103,686 | $267,231 | $0 | $370,917 | $284,668 |
| 2011 | $105,430 | $267,231 | $0 | $372,661 | $284,668 |
| 2010 | $116,699 | $267,231 | $0 | $383,930 | $284,668 |
| 2009 | $121,942 | $287,699 | $0 | $409,641 | $284,667 |
| 2008 | $123,704 | $287,699 | $0 | $411,403 | $284,667 |
| 2007 | $125,466 | $159,201 | $0 | $284,667 | $214,667 |
Deed and Sales History
| 1 | 12/15/2017 | PRD | Personal Representatives Deed | REED, CAMERON PR ESTATE WILLIAM T MCDONALD | SMITH, SCOTT M | | | $354,500.00 | 32341 | 4436096 |
| 2 | 11/09/2017 | OTHER | Other - Misc. Documents | MCDONALD, WILLIAM T | REED, CAMERON PR ESTATE WILLIAM T MCDONALD | | | $0.00 | 31903 | |
| 3 | 12/01/1984 | OTHER | Other - Misc. Documents | MCDONALD, WILLIAM T | MCDONALD, WILLIAM T | | | $0.00 | 60991 | 84006547 |
| 4 | 12/01/1984 | WD | Warranty Deed | MCDONALD, WILLIAM T | MCDONALD, WILLIAM T | | | $9,500.00 | 43552 | 84006548 |
| 5 | 01/01/1900 | OTHER | Other - Misc. Documents | Unknown | MCDONALD, WILLIAM T | | | $6,500.00 | 0 | 0 |
Payout Agreement
| No payout information available.. |