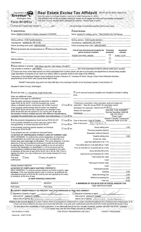
Property
Account |
| Property ID: | 171316 | Abbreviated Legal Description: | ADMIRALS COVE LOT 26 BLK 2 |
| Geographic ID: | S6010-00-02026-0 | Agent Code: | |
| Type: | Real | | |
| Tax Area: | 390 - APPRAISER-Cpvl Schl Dist, Special Dist, improved & less than 1 acre | Land Use Code | 11 |
| Open Space: | N | DFL | N |
| Historic Property: | N | Remodel Property: | N |
| Multi-Family Redevelopment: | N | | |
| Township: | | Section: | |
| Range: | |
Location |
| Address: | 1322 FARRAGUT DR COUPEVILLE, WA 98239 | Mapsco: | |
| Neighborhood: | Cycle 2 | Map ID: | 81 |
| Neighborhood CD: | 2 |
Owner |
| Name: | SUNSET VIEW RETREAT, LLC | Owner ID: | 289609 |
| Mailing Address: | 4701 NATALEE DR SE LACEY, WA 98503 | % Ownership: | 100.0000000000% |
| | | Exemptions: | |
Taxes and Assessment Details
Values
| (+) Improvement Homesite Value: | + | $0 | |
| (+) Improvement Non-Homesite Value: | + | $212,257 | |
| (+) Land Homesite Value: | + | $0 | |
| (+) Land Non-Homesite Value: | + | $325,000 | |
| (+) Curr Use (HS): | + | $0 | $0 |
| (+) Curr Use (NHS): | + | $0 | $0 |
| | | -------------------------- | |
| (=) Market Value: | = | $537,257 | |
| (–) Productivity Loss: | – | $0 | |
| | | -------------------------- | |
| (=) Subtotal: | = | $537,257 | |
| (+) Senior Appraised Value: | + | $0 | |
| (+) Non-Senior Appraised Value: | + | $537,257 | |
| | | -------------------------- | |
| (=) Total Appraised Value: | = | $537,257 | |
| (–) Senior Exemption Loss: | – | $0 | |
| (–) Exemption Loss: | – | $0 | |
| | | -------------------------- | |
| (=) Taxable Value: | = | $537,257 | |
Taxing Jurisdiction
| Owner: | SUNSET VIEW RETREAT, LLC | | |
| % Ownership: | 100.0000000000% | | |
| Total Value: | $537,257 | | |
| Tax Area: | 390 - APPRAISER-Cpvl Schl Dist, Special Dist, improved & less than 1 acre |
| CF | Conservation Futures | 0.0316035091 | $537,257 | $537,257 | $16.98 | | |
| CEM2 | Cemetery #2 | 0.0095056933 | $537,257 | $537,257 | $5.11 | | |
| FIRE5 | Fire & Rescue Dist #5 C Whidbey GEN | 1.2008080668 | $537,257 | $537,257 | $645.14 | | |
| FIRE5BOND | Fire & Rescue Dist #5 C Whidbey BOND | 0.1400090713 | $537,257 | $537,257 | $75.22 | | |
| HOBOND | Hospital BOND | 0.1910887512 | $537,257 | $537,257 | $102.66 | | |
| HOGEN | Hospital GEN | 0.3902502903 | $537,257 | $537,257 | $209.66 | | |
| CE | County Current Expense | 0.3708482477 | $537,257 | $537,257 | $199.24 | | |
| CR | County Roads | 0.4584763726 | $537,257 | $537,257 | $246.32 | | |
| ISLANDEMS | Hospital GEN (EMS) | 0.5000000000 | $537,257 | $537,257 | $268.63 | | |
| LIB | Library Sno-Isle GEN | 0.3153421757 | $537,257 | $537,257 | $169.42 | | |
| LIBCAP | Library Sno-Isle BOND (Cap Fac Imp Area) | 0.0543427938 | $537,257 | $537,257 | $29.20 | | |
| POCOUP | Port of Coupeville GEN | 0.1093371703 | $537,257 | $537,257 | $58.74 | | |
| POCOUPIDD | Port of Coupeville IDD | 0.3409740022 | $537,257 | $537,257 | $183.19 | | |
| COUPSDTECH | School 204 CP (TECH) | 0.7545480007 | $537,257 | $537,257 | $405.39 | | |
| SCH204MO | School 204 Enrichment | 0.6716186034 | $537,257 | $537,257 | $360.83 | | |
| ST | State School | 1.3035497053 | $537,257 | $537,257 | $700.34 | | |
| ST2 | State School Part 2 | 0.8169543533 | $537,257 | $537,257 | $438.91 | | |
| | Total Tax Rate: | 7.6592568070 | | | | | |
| | | | | Taxes w/Current Exemptions: | $4,114.98 | | |
| | | | | Taxes w/o Exemptions: | $4,114.98 | | |
Improvement / Building
| Improvement #1: | RESIDENTIAL | State Code: | Y | 1058.0 sqft | Value: | $212,257 |
| Bathrooms: | 2 | Bedrooms: | 2 | | Ceiling: | DRY WALL SPRAYED | Cooling: | HEAT PUMP/CONV/V | | Exterior Wall/Cover: | PLY/HARDBOARD T-111 | Floor Covering: | CARPET/VINYL 80-20 | | Floor Structure: | WOOD W/SUBFLOOR | Foundation: | CONCRETE | | Interior Finish: | DRYWALL PAINT | Plumbing Fixture Cnt: | 8 | | Roof Slope: | 4" IN 12" | Roof Structure/Cover: | CJ ALUMINIUM HEAVY |
|
| | Type | Description | Class CD | Sub Class CD | Year Built | Area |
| | BAS | BASE/MAIN FLOOR | 3 | 0 | 1985 | 1058.0 |
| | AGR | ATTACHED GARAGE | 3 | 0 | 1985 | 260.0 |
| | OWP | OPEN WOOD PORCH W/STEPS | 3 | 0 | 1985 | 48.0 |
| | OWP | OPEN WOOD PORCH W/STEPS | 3 | 0 | 1985 | 576.0 |
Sketch
Property Image
Land
| 1 | HB | HIGH BLUFF | 0.1653 | 7200.00 | 60.00 | 0.00 | 1.00 | $325,000 | $0 |
Roll Value History
| 2026 | N/A | N/A | N/A | N/A | N/A |
| 2025 | $212,257 | $325,000 | $0 | $537,257 | $537,257 |
| 2024 | $219,922 | $325,000 | $0 | $544,922 | $544,922 |
| 2023 | $222,662 | $300,000 | $0 | $522,662 | $522,662 |
| 2022 | $204,100 | $250,000 | $0 | $454,100 | $454,100 |
| 2021 | $179,641 | $180,000 | $0 | $359,641 | $359,641 |
| 2020 | $174,763 | $180,000 | $0 | $354,763 | $354,763 |
| 2019 | $124,366 | $240,000 | $0 | $364,366 | $364,366 |
| 2018 | $113,118 | $200,000 | $0 | $313,118 | $313,118 |
| 2017 | $113,826 | $200,000 | $0 | $313,826 | $313,826 |
| 2016 | $115,239 | $200,000 | $0 | $315,239 | $315,239 |
| 2015 | $116,652 | $200,000 | $0 | $316,652 | $316,652 |
| 2014 | $118,066 | $200,000 | $0 | $318,066 | $318,066 |
| 2013 | $119,480 | $200,000 | $0 | $319,480 | $319,480 |
| 2012 | $120,894 | $189,525 | $0 | $310,419 | $310,419 |
| 2011 | $122,307 | $189,525 | $0 | $311,832 | $311,832 |
| 2010 | $129,154 | $189,525 | $0 | $318,679 | $318,679 |
| 2009 | $134,549 | $204,042 | $0 | $338,591 | $338,591 |
| 2008 | $94,061 | $147,120 | $0 | $241,181 | $241,181 |
| 2007 | $129,885 | $112,909 | $0 | $242,794 | $242,794 |
Deed and Sales History
| 1 | 05/02/2019 | QCD | Quit Claim Deed | GONZALEZ, JULIO C | SUNSET VIEW RETREAT, LLC | | | $0.00 | 38352 | 4462655 |
| 2 | 05/14/2013 | DECREE | Divorce Decree/Legal Separation | GONZALEZ, JUILO C | GONZALEZ, JULIO C | | | $0.00 | 11474 | 4340897 |
| 3 | 07/03/2007 | WD | Warranty Deed | WAGGONER, DAVID T | GONZALEZ, JUILO C | | | $417,000.00 | 72300 | 4206666 |
| 4 | 08/01/1995 | WD | Warranty Deed | FARMER, ROBERTA M | WAGGONER, DAVID T | | | $139,120.00 | 52927 | 95013614 |
| 5 | 06/01/1978 | OTHER | Other - Misc. Documents | Unknown | FARMER, ROBERTA M | | | $15,150.00 | 82840 | 334683 |
Payout Agreement
| No payout information available.. |