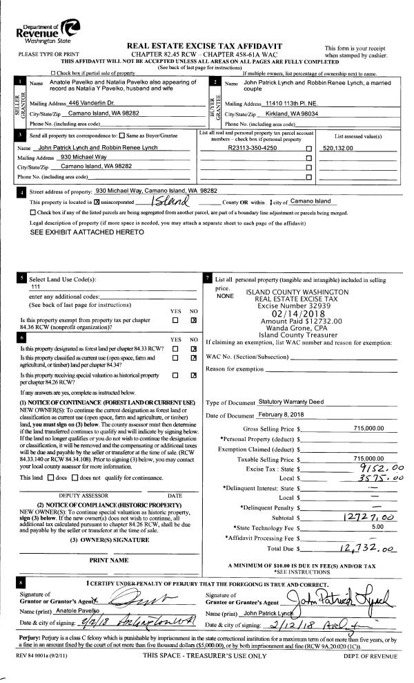
Property
Account |
| Property ID: | 171619 | Abbreviated Legal Description: | ADMIRALS COVE LOT 15 BLK 3 |
| Geographic ID: | S6010-00-03015-0 | Agent Code: | |
| Type: | Real | | |
| Tax Area: | 390 - APPRAISER-Cpvl Schl Dist, Special Dist, improved & less than 1 acre | Land Use Code | 11 |
| Open Space: | N | DFL | N |
| Historic Property: | N | Remodel Property: | N |
| Multi-Family Redevelopment: | N | | |
| Township: | | Section: | |
| Range: | |
Location |
| Address: | 1289 FARRAGUT DR COUPEVILLE, WA 98239 | Mapsco: | |
| Neighborhood: | Cycle 2 | Map ID: | 81 |
| Neighborhood CD: | 2 |
Owner |
| Name: | PETERSON, TIMOTHY M | Owner ID: | 294330 |
| Mailing Address: | LISA D PETERSON 1289 FARRAGUT DR COUPEVILLE, WA 98239 | % Ownership: | 100.0000000000% |
| | | Exemptions: | |
Taxes and Assessment Details
Values
| (+) Improvement Homesite Value: | + | $0 | |
| (+) Improvement Non-Homesite Value: | + | $222,838 | |
| (+) Land Homesite Value: | + | $0 | |
| (+) Land Non-Homesite Value: | + | $185,000 | |
| (+) Curr Use (HS): | + | $0 | $0 |
| (+) Curr Use (NHS): | + | $0 | $0 |
| | | -------------------------- | |
| (=) Market Value: | = | $407,838 | |
| (–) Productivity Loss: | – | $0 | |
| | | -------------------------- | |
| (=) Subtotal: | = | $407,838 | |
| (+) Senior Appraised Value: | + | $0 | |
| (+) Non-Senior Appraised Value: | + | $407,838 | |
| | | -------------------------- | |
| (=) Total Appraised Value: | = | $407,838 | |
| (–) Senior Exemption Loss: | – | $0 | |
| (–) Exemption Loss: | – | $0 | |
| | | -------------------------- | |
| (=) Taxable Value: | = | $407,838 | |
Taxing Jurisdiction
| Owner: | PETERSON, TIMOTHY M | | |
| % Ownership: | 100.0000000000% | | |
| Total Value: | $407,838 | | |
| Tax Area: | 390 - APPRAISER-Cpvl Schl Dist, Special Dist, improved & less than 1 acre |
| CF | Conservation Futures | 0.0316035091 | $407,838 | $407,838 | $12.89 | | |
| CEM2 | Cemetery #2 | 0.0095056933 | $407,838 | $407,838 | $3.88 | | |
| FIRE5 | Fire & Rescue Dist #5 C Whidbey GEN | 1.2008080668 | $407,838 | $407,838 | $489.74 | | |
| FIRE5BOND | Fire & Rescue Dist #5 C Whidbey BOND | 0.1400090713 | $407,838 | $407,838 | $57.10 | | |
| HOBOND | Hospital BOND | 0.1910887512 | $407,838 | $407,838 | $77.93 | | |
| HOGEN | Hospital GEN | 0.3902502903 | $407,838 | $407,838 | $159.16 | | |
| CE | County Current Expense | 0.3708482477 | $407,838 | $407,838 | $151.25 | | |
| CR | County Roads | 0.4584763726 | $407,838 | $407,838 | $186.98 | | |
| ISLANDEMS | Hospital GEN (EMS) | 0.5000000000 | $407,838 | $407,838 | $203.92 | | |
| LIB | Library Sno-Isle GEN | 0.3153421757 | $407,838 | $407,838 | $128.61 | | |
| LIBCAP | Library Sno-Isle BOND (Cap Fac Imp Area) | 0.0543427938 | $407,838 | $407,838 | $22.16 | | |
| POCOUP | Port of Coupeville GEN | 0.1093371703 | $407,838 | $407,838 | $44.59 | | |
| POCOUPIDD | Port of Coupeville IDD | 0.3409740022 | $407,838 | $407,838 | $139.06 | | |
| COUPSDTECH | School 204 CP (TECH) | 0.7545480007 | $407,838 | $407,838 | $307.73 | | |
| SCH204MO | School 204 Enrichment | 0.6716186034 | $407,838 | $407,838 | $273.91 | | |
| ST | State School | 1.3035497053 | $407,838 | $407,838 | $531.64 | | |
| ST2 | State School Part 2 | 0.8169543533 | $407,838 | $407,838 | $333.19 | | |
| | Total Tax Rate: | 7.6592568070 | | | | | |
| | | | | Taxes w/Current Exemptions: | $3,123.74 | | |
| | | | | Taxes w/o Exemptions: | $3,123.74 | | |
Improvement / Building
| Improvement #1: | RESIDENTIAL | State Code: | Y | 884.0 sqft | Value: | $222,838 |
| Bathrooms: | 1.5 | Bedrooms: | 2 | | Ceiling: | DRYWALL PAINTED | Exterior Wall/Cover: | WOOD SIDING | | Floor Covering: | VINYL/HARDWOOD 20-80 | Floor Structure: | WOOD W/SUBFLOOR | | Foundation: | CONCRETE | Heating: | FHA ELECTRIC | | Interior Finish: | DRYWALL PAINT | Plumbing Fixture Cnt: | 6 | | Roof Slope: | 4" IN 12" | Roof Structure/Cover: | CJ ALUMINIUM HEAVY |
|
| | Type | Description | Class CD | Sub Class CD | Year Built | Area |
| | BAS | BASE/MAIN FLOOR | 3 | 0 | 1969 | 884.0 |
| | DGR | DETACHED GARAGE | 3 | 0 | 1969 | 528.0 |
| | OWP | OPEN WOOD PORCH W/STEPS | 3 | 0 | 1969 | 380.0 |
| | ENP | ENCLOSED PORCH | 3 | 0 | 1969 | 104.0 |
Sketch
Property Image
Land
| 1 | 13 | SQ (06001-08000) | 0.1700 | 7405.20 | 0.00 | 0.00 | 1.00 | $185,000 | $0 |
Roll Value History
| 2026 | N/A | N/A | N/A | N/A | N/A |
| 2025 | $222,838 | $185,000 | $0 | $407,838 | $407,838 |
| 2024 | $224,612 | $175,000 | $0 | $399,612 | $399,612 |
| 2023 | $227,410 | $175,000 | $0 | $402,410 | $402,410 |
| 2022 | $208,461 | $160,000 | $0 | $368,461 | $368,461 |
| 2021 | $183,469 | $125,000 | $0 | $308,469 | $308,469 |
| 2020 | $178,744 | $100,000 | $0 | $278,744 | $278,744 |
| 2019 | $127,795 | $140,000 | $0 | $267,795 | $267,795 |
| 2018 | $95,855 | $115,000 | $0 | $210,855 | $210,855 |
| 2017 | $94,953 | $100,000 | $0 | $194,953 | $194,953 |
| 2016 | $96,310 | $65,000 | $0 | $161,310 | $161,310 |
| 2015 | $97,666 | $65,000 | $0 | $162,666 | $162,666 |
| 2014 | $99,022 | $65,000 | $0 | $164,022 | $164,022 |
| 2013 | $100,379 | $65,000 | $0 | $165,379 | $165,379 |
| 2012 | $91,345 | $55,380 | $0 | $146,725 | $146,725 |
| 2011 | $92,701 | $65,153 | $0 | $157,854 | $157,854 |
| 2010 | $98,077 | $65,153 | $0 | $163,230 | $163,230 |
| 2009 | $102,348 | $90,000 | $0 | $192,348 | $192,348 |
| 2008 | $103,689 | $90,000 | $0 | $193,689 | $193,689 |
| 2007 | $105,030 | $90,000 | $0 | $195,030 | $195,030 |
Deed and Sales History
| 1 | 05/27/2020 | WD | Warranty Deed | WELTY TTEE, JOSEPH P | PETERSON, TIMOTHY M | | | $360,000.00 | 43145 | 4487616 |
| 2 | 03/27/2018 | WD | Warranty Deed | GILBERT, WILLIAM R | WELTY TTEE, JOSEPH P | | | $335,000.00 | 33454 | 4441564 |
| 3 | 05/19/2004 | WD | Warranty Deed | MILLER, MARCIE J | GILBERT, WILLIAM R | | | $152,500.00 | 42208 | 4101668 |
| 4 | 03/19/2003 | WD | Warranty Deed | HAMM, BETTY A | MILLER, MARCIE J | | | $139,900.00 | 31283 | 4052832 |
| 5 | 04/22/1998 | WD | Warranty Deed | NOBLE, G A | HAMM, BETTY A | | | $96,000.00 | 81623 | 98008662 |
| 6 | 05/01/1991 | WD | Warranty Deed | BROWNE, JOHN W | NOBLE, G A | | | $87,500.00 | 11631 | 91006847 |
| 7 | 07/01/1984 | WD | Warranty Deed | BOWERS, DAVID J | BROWNE, JOHN W | | | $40,000.00 | 41929 | 84000194 |
| 8 | 01/01/1900 | OTHER | Other - Misc. Documents | Unknown | HAMM, BETTY A | | | $0.00 | 81623 | 98008662 |
| 9 | 01/01/1900 | OTHER | Other - Misc. Documents | HAMM, BETTY A | BOWERS, DAVID J | | | $29,500.00 | 0 | 0 |
Payout Agreement
| No payout information available.. |