Property
Account |
| Property ID: | 172002 | Abbreviated Legal Description: | ADMIRALS COVE LOT 12 BLK 4 |
| Geographic ID: | S6010-00-04012-0 | Agent Code: | |
| Type: | Real | | |
| Tax Area: | 390 - APPRAISER-Cpvl Schl Dist, Special Dist, improved & less than 1 acre | Land Use Code | 11 |
| Open Space: | N | DFL | N |
| Historic Property: | N | Remodel Property: | N |
| Multi-Family Redevelopment: | N | | |
| Township: | | Section: | |
| Range: | |
Location |
| Address: | 1285 HALSEY DR COUPEVILLE, WA 98239 | Mapsco: | |
| Neighborhood: | Cycle 2 | Map ID: | 81 |
| Neighborhood CD: | 2 |
Owner |
| Name: | SMITH, JASON | Owner ID: | 269829 |
| Mailing Address: | HEIDI SMITH 1285 HALSEY DR COUPEVILLE, WA 98239 | % Ownership: | 100.0000000000% |
| | | Exemptions: | |
Taxes and Assessment Details
Values
| (+) Improvement Homesite Value: | + | $0 | |
| (+) Improvement Non-Homesite Value: | + | $287,093 | |
| (+) Land Homesite Value: | + | $0 | |
| (+) Land Non-Homesite Value: | + | $185,000 | |
| (+) Curr Use (HS): | + | $0 | $0 |
| (+) Curr Use (NHS): | + | $0 | $0 |
| | | -------------------------- | |
| (=) Market Value: | = | $472,093 | |
| (–) Productivity Loss: | – | $0 | |
| | | -------------------------- | |
| (=) Subtotal: | = | $472,093 | |
| (+) Senior Appraised Value: | + | $0 | |
| (+) Non-Senior Appraised Value: | + | $472,093 | |
| | | -------------------------- | |
| (=) Total Appraised Value: | = | $472,093 | |
| (–) Senior Exemption Loss: | – | $0 | |
| (–) Exemption Loss: | – | $0 | |
| | | -------------------------- | |
| (=) Taxable Value: | = | $472,093 | |
Taxing Jurisdiction
| Owner: | SMITH, JASON | | |
| % Ownership: | 100.0000000000% | | |
| Total Value: | $472,093 | | |
| Tax Area: | 390 - APPRAISER-Cpvl Schl Dist, Special Dist, improved & less than 1 acre |
| CF | Conservation Futures | 0.0316035091 | $472,093 | $472,093 | $14.92 | | |
| CEM2 | Cemetery #2 | 0.0095056933 | $472,093 | $472,093 | $4.49 | | |
| FIRE5 | Fire & Rescue Dist #5 C Whidbey GEN | 1.2008080668 | $472,093 | $472,093 | $566.89 | | |
| FIRE5BOND | Fire & Rescue Dist #5 C Whidbey BOND | 0.1400090713 | $472,093 | $472,093 | $66.10 | | |
| HOBOND | Hospital BOND | 0.1910887512 | $472,093 | $472,093 | $90.21 | | |
| HOGEN | Hospital GEN | 0.3902502903 | $472,093 | $472,093 | $184.23 | | |
| CE | County Current Expense | 0.3708482477 | $472,093 | $472,093 | $175.07 | | |
| CR | County Roads | 0.4584763726 | $472,093 | $472,093 | $216.44 | | |
| ISLANDEMS | Hospital GEN (EMS) | 0.5000000000 | $472,093 | $472,093 | $236.05 | | |
| LIB | Library Sno-Isle GEN | 0.3153421757 | $472,093 | $472,093 | $148.87 | | |
| LIBCAP | Library Sno-Isle BOND (Cap Fac Imp Area) | 0.0543427938 | $472,093 | $472,093 | $25.65 | | |
| POCOUP | Port of Coupeville GEN | 0.1093371703 | $472,093 | $472,093 | $51.62 | | |
| POCOUPIDD | Port of Coupeville IDD | 0.3409740022 | $472,093 | $472,093 | $160.97 | | |
| COUPSDTECH | School 204 CP (TECH) | 0.7545480007 | $472,093 | $472,093 | $356.22 | | |
| SCH204MO | School 204 Enrichment | 0.6716186034 | $472,093 | $472,093 | $317.07 | | |
| ST | State School | 1.3035497053 | $472,093 | $472,093 | $615.40 | | |
| ST2 | State School Part 2 | 0.8169543533 | $472,093 | $472,093 | $385.68 | | |
| | Total Tax Rate: | 7.6592568070 | | | | | |
| | | | | Taxes w/Current Exemptions: | $3,615.88 | | |
| | | | | Taxes w/o Exemptions: | $3,615.88 | | |
Improvement / Building
| Improvement #1: | RESIDENTIAL | State Code: | Y | 1561.5 sqft | Value: | $287,093 |
| Bathrooms: | 2.5 | Bedrooms: | 2 | | Ceiling: | DRYWALL PAINTED | Exterior Wall/Cover: | PLY/HARDBOARD T-111 | | Floor Covering: | CARPET/VINYL 80-20 | Floor Structure: | WOOD W/SUBFLOOR | | Foundation: | CONCRETE | Heating: | FHA GAS | | Interior Finish: | DRYWALL PAINT | Plumbing Fixture Cnt: | 11 | | Roof Slope: | 4" IN 12" | Roof Structure/Cover: | CJ ASPHALT |
|
| | Type | Description | Class CD | Sub Class CD | Year Built | Area |
| | BAS | BASE/MAIN FLOOR | 3 | 0 | 2004 | 761.5 |
| | AGR | ATTACHED GARAGE | 3 | 0 | 2004 | 484.0 |
| | UPS | UPPER STORY | 3 | 0 | 2004 | 800.0 |
| | OWP | OPEN WOOD PORCH W/STEPS | 3 | 0 | 2004 | 223.5 |
| | OWC | OPEN WOOD PORCH W/STEPS/ROOF/C | 3 | 0 | 2004 | 120.0 |
Sketch
Property Image
Land
| 1 | 13 | SQ (06001-08000) | 0.1700 | 7405.20 | 0.00 | 0.00 | 1.00 | $185,000 | $0 |
Roll Value History
| 2026 | N/A | N/A | N/A | N/A | N/A |
| 2025 | $287,093 | $185,000 | $0 | $472,093 | $472,093 |
| 2024 | $276,990 | $175,000 | $0 | $451,990 | $451,990 |
| 2023 | $280,357 | $175,000 | $0 | $455,357 | $455,357 |
| 2022 | $256,918 | $160,000 | $0 | $416,918 | $416,918 |
| 2021 | $226,059 | $125,000 | $0 | $351,059 | $351,059 |
| 2020 | $219,871 | $100,000 | $0 | $319,871 | $319,871 |
| 2019 | $158,655 | $140,000 | $0 | $298,655 | $298,655 |
| 2018 | $153,374 | $115,000 | $0 | $268,374 | $268,374 |
| 2017 | $154,250 | $100,000 | $0 | $254,250 | $254,250 |
| 2016 | $156,003 | $65,000 | $0 | $221,003 | $221,003 |
| 2015 | $157,755 | $50,000 | $0 | $207,755 | $207,755 |
| 2014 | $159,509 | $50,000 | $0 | $209,509 | $209,509 |
| 2013 | $161,261 | $50,000 | $0 | $211,261 | $211,261 |
| 2012 | $155,890 | $49,227 | $0 | $205,117 | $205,117 |
| 2011 | $157,604 | $57,914 | $0 | $215,518 | $215,518 |
| 2010 | $161,439 | $57,914 | $0 | $219,353 | $219,353 |
| 2009 | $166,466 | $80,000 | $0 | $246,466 | $246,466 |
| 2008 | $170,045 | $80,000 | $0 | $250,045 | $250,045 |
| 2007 | $171,904 | $80,000 | $0 | $251,904 | $251,904 |
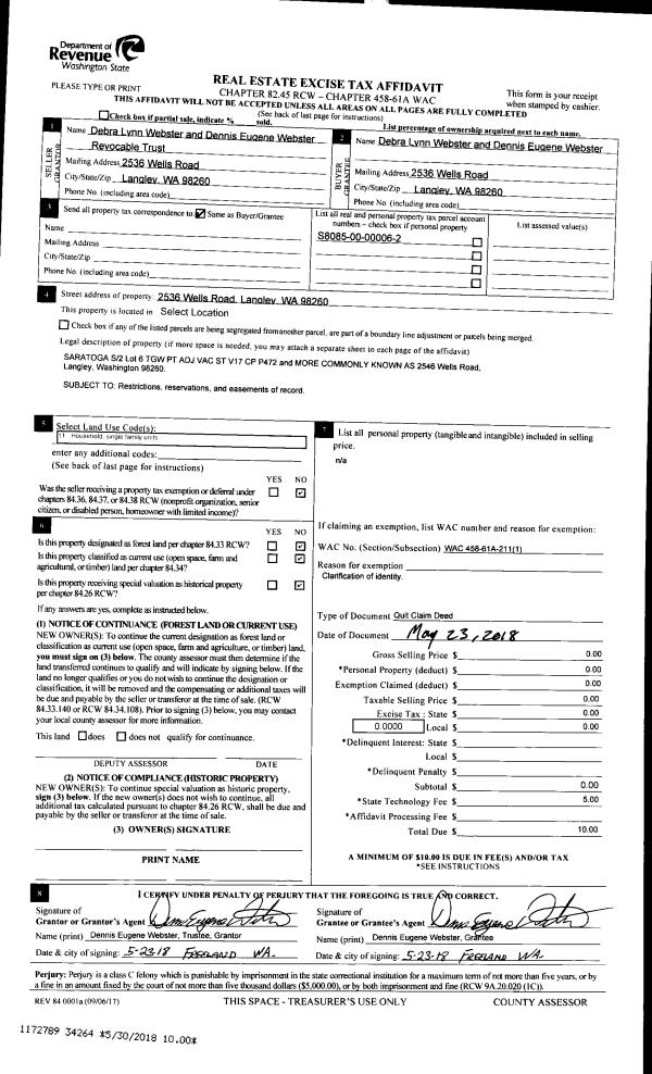
Deed and Sales History
| 1 | 04/10/2015 | WD | Warranty Deed | HODNETT, JUSTIN W | SMITH, JASON | | | $220,000.00 | 19163 | 4376646 |
| 2 | 10/11/2012 | QCD | Quit Claim Deed | HODNETT, JUSTIN | HODNETT, JUSTIN W | | | $107,759.00 | 11717 | 4342308 |
| 3 | 04/09/2009 | TRUSTEED | Trustee's Deed | DEPT OF VET AFFAIRS, | HODNETT, JUSTIN | | | $208,900.00 | 90847 | 4249234 |
| 4 | 10/04/2008 | TRUSTEED | Trustee's Deed | US BANK NA, | DEPT OF VET AFFAIRS, | | | $0.00 | 82638 | 4238045 |
| 5 | 10/03/2008 | TRUSTEED | Trustee's Deed | BEAM, EDWARD L | US BANK NA, | | | $193,886.00 | 82637 | 4238044 |
| 6 | 06/02/2005 | WD | Warranty Deed | ENGLE, CARL E | BEAM, EDWARD L | | | $210,000.00 | 52668 | 4137072 |
| 7 | 07/30/2004 | WD | Warranty Deed | ISLAND HERITAGE LLC, | ENGLE, CARL E | | | $196,300.00 | 43515 | 4108581 |
| 8 | 01/15/2004 | WD | Warranty Deed | SCUDDER, TRACY | ISLAND HERITAGE LLC, | | | $18,000.00 | 40268 | 4089273 |
| 9 | 08/10/1999 | QCD | Quit Claim Deed | SCUDDER, VIRGINIA M | SCUDDER, TRACY | | | $0.00 | 93513 | 99020104 |
| 10 | 06/01/1989 | OTHER | Other - Misc. Documents | SCUDDER, JESSE A | SCUDDER, VIRGINIA M | | | $0.00 | 63182 | 0 |
| 11 | 01/01/1900 | OTHER | Other - Misc. Documents | Unknown | SCUDDER, JESSE A | | | $2,750.00 | 0 | 0 |
Payout Agreement
| No payout information available.. |