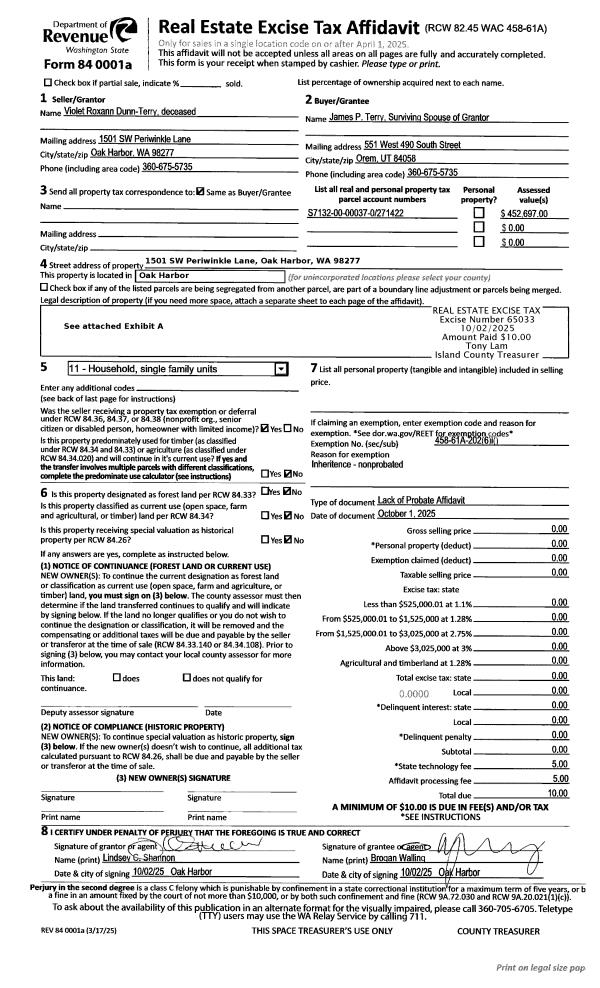
Property
Account |
| Property ID: | 172119 | Abbreviated Legal Description: | ADMIRALS COVE LOT 23 BLK 4 |
| Geographic ID: | S6010-00-04023-0 | Agent Code: | |
| Type: | Real | | |
| Tax Area: | 390 - APPRAISER-Cpvl Schl Dist, Special Dist, improved & less than 1 acre | Land Use Code | 11 |
| Open Space: | N | DFL | N |
| Historic Property: | N | Remodel Property: | N |
| Multi-Family Redevelopment: | N | | |
| Township: | | Section: | |
| Range: | |
Location |
| Address: | 1249 BYRD DR COUPEVILLE, WA 98239 | Mapsco: | |
| Neighborhood: | Cycle 2 | Map ID: | 81 |
| Neighborhood CD: | 2 |
Owner |
| Name: | LEESE JTWROS, GERALD D | Owner ID: | 280511 |
| Mailing Address: | TIMOTHY M LEESE JTWROS DENISE MCELHINNEY-LEESE JTWROS 1249 BYRD DR COUPEVILLE, WA 98239 | % Ownership: | 100.0000000000% |
| | | Exemptions: | |
Taxes and Assessment Details
Values
| (+) Improvement Homesite Value: | + | $0 | |
| (+) Improvement Non-Homesite Value: | + | $280,582 | |
| (+) Land Homesite Value: | + | $0 | |
| (+) Land Non-Homesite Value: | + | $205,000 | |
| (+) Curr Use (HS): | + | $0 | $0 |
| (+) Curr Use (NHS): | + | $0 | $0 |
| | | -------------------------- | |
| (=) Market Value: | = | $485,582 | |
| (–) Productivity Loss: | – | $0 | |
| | | -------------------------- | |
| (=) Subtotal: | = | $485,582 | |
| (+) Senior Appraised Value: | + | $0 | |
| (+) Non-Senior Appraised Value: | + | $485,582 | |
| | | -------------------------- | |
| (=) Total Appraised Value: | = | $485,582 | |
| (–) Senior Exemption Loss: | – | $0 | |
| (–) Exemption Loss: | – | $0 | |
| | | -------------------------- | |
| (=) Taxable Value: | = | $485,582 | |
Taxing Jurisdiction
| Owner: | LEESE JTWROS, GERALD D | | |
| % Ownership: | 100.0000000000% | | |
| Total Value: | $485,582 | | |
| Tax Area: | 390 - APPRAISER-Cpvl Schl Dist, Special Dist, improved & less than 1 acre |
| CF | Conservation Futures | 0.0316035091 | $485,582 | $485,582 | $15.35 | | |
| CEM2 | Cemetery #2 | 0.0095056933 | $485,582 | $485,582 | $4.62 | | |
| FIRE5 | Fire & Rescue Dist #5 C Whidbey GEN | 1.2008080668 | $485,582 | $485,582 | $583.09 | | |
| FIRE5BOND | Fire & Rescue Dist #5 C Whidbey BOND | 0.1400090713 | $485,582 | $485,582 | $67.99 | | |
| HOBOND | Hospital BOND | 0.1910887512 | $485,582 | $485,582 | $92.79 | | |
| HOGEN | Hospital GEN | 0.3902502903 | $485,582 | $485,582 | $189.50 | | |
| CE | County Current Expense | 0.3708482477 | $485,582 | $485,582 | $180.08 | | |
| CR | County Roads | 0.4584763726 | $485,582 | $485,582 | $222.63 | | |
| ISLANDEMS | Hospital GEN (EMS) | 0.5000000000 | $485,582 | $485,582 | $242.79 | | |
| LIB | Library Sno-Isle GEN | 0.3153421757 | $485,582 | $485,582 | $153.12 | | |
| LIBCAP | Library Sno-Isle BOND (Cap Fac Imp Area) | 0.0543427938 | $485,582 | $485,582 | $26.39 | | |
| POCOUP | Port of Coupeville GEN | 0.1093371703 | $485,582 | $485,582 | $53.09 | | |
| POCOUPIDD | Port of Coupeville IDD | 0.3409740022 | $485,582 | $485,582 | $165.57 | | |
| COUPSDTECH | School 204 CP (TECH) | 0.7545480007 | $485,582 | $485,582 | $366.39 | | |
| SCH204MO | School 204 Enrichment | 0.6716186034 | $485,582 | $485,582 | $326.13 | | |
| ST | State School | 1.3035497053 | $485,582 | $485,582 | $632.98 | | |
| ST2 | State School Part 2 | 0.8169543533 | $485,582 | $485,582 | $396.70 | | |
| | Total Tax Rate: | 7.6592568070 | | | | | |
| | | | | Taxes w/Current Exemptions: | $3,719.21 | | |
| | | | | Taxes w/o Exemptions: | $3,719.21 | | |
Improvement / Building
| Improvement #1: | RESIDENTIAL | State Code: | Y | 2048.0 sqft | Value: | $280,582 |
| Bathrooms: | 2 | Bedrooms: | 3 | | Ceiling: | DRYWALL PAINTED | Exterior Wall/Cover: | VINYL | | Floor Covering: | HARDWOOD/CARP 60-40 | Floor Structure: | WOOD W/SUBFLOOR | | Foundation: | CONCRETE | Heating: | WALL HEAT ELECTRIC | | Interior Finish: | DRYWALL PAINT | Plumbing Fixture Cnt: | 12 | | Roof Slope: | 4" IN 12" | Roof Structure/Cover: | CJ ASPHALT |
|
| | Type | Description | Class CD | Sub Class CD | Year Built | Area |
| | BAS | BASE/MAIN FLOOR | 3 | 0 | 1995 | 1024.0 |
| | AGR | ATTACHED GARAGE | 3 | 0 | 1995 | 288.0 |
| | UTY | STORAGE/UTILITY | 3 | 0 | 1995 | 96.0 |
| | OWC | OPEN WOOD PORCH W/STEPS/ROOF/C | 3 | 0 | 1995 | 393.8 |
| | DWN | DOWNSTAIRS LIVING AREA | 3 | 0 | 1995 | 1024.0 |
Sketch
Property Image
Land
| 1 | 13 | SQ (06001-08000) | 0.1700 | 7405.20 | 0.00 | 0.00 | 1.00 | $205,000 | $0 |
Roll Value History
| 2026 | N/A | N/A | N/A | N/A | N/A |
| 2025 | $280,582 | $205,000 | $0 | $485,582 | $485,582 |
| 2024 | $280,582 | $195,000 | $0 | $475,582 | $475,582 |
| 2023 | $284,262 | $200,000 | $0 | $484,262 | $484,262 |
| 2022 | $260,737 | $190,000 | $0 | $450,737 | $450,737 |
| 2021 | $229,637 | $130,000 | $0 | $359,637 | $359,637 |
| 2020 | $223,942 | $110,000 | $0 | $333,942 | $333,942 |
| 2019 | $170,415 | $170,000 | $0 | $340,415 | $340,415 |
| 2018 | $168,874 | $140,000 | $0 | $308,874 | $308,874 |
| 2017 | $169,929 | $120,000 | $0 | $289,929 | $289,929 |
| 2016 | $172,039 | $85,000 | $0 | $257,039 | $257,039 |
| 2015 | $174,150 | $75,000 | $0 | $249,150 | $249,150 |
| 2014 | $176,260 | $75,000 | $0 | $251,260 | $251,260 |
| 2013 | $178,374 | $75,000 | $0 | $253,374 | $253,374 |
| 2012 | $174,150 | $73,840 | $0 | $247,990 | $247,990 |
| 2011 | $176,260 | $86,871 | $0 | $263,131 | $263,131 |
| 2010 | $187,884 | $86,871 | $0 | $274,755 | $274,755 |
| 2009 | $196,181 | $120,000 | $0 | $316,181 | $316,181 |
| 2008 | $198,843 | $120,000 | $0 | $318,843 | $318,843 |
| 2007 | $201,498 | $120,000 | $0 | $321,498 | $321,498 |
Deed and Sales History
| 1 | 04/27/2017 | PRD | Personal Representatives Deed | LEESE, BESSIE M | LEESE JTWROS, GERALD D | | | $0.00 | 29857 | 4424737 |
| 2 | 08/01/1990 | REC | Real Estate Contract | STEWART, THOMAS T | LEESE, BESSIE M | | | $16,500.00 | 4964 | 90016485 |
| 3 | 03/01/1982 | EXECUTORD | Executor Deed | FURLONG, MARY A | STEWART, THOMAS T | | | $15,000.00 | 20615 | 394184 |
| 4 | 01/01/1900 | OTHER | Other - Misc. Documents | FURLONG, MARY A | FURLONG, MARY A | | | $1,575.00 | 0 | 0 |
| 5 | 01/01/1900 | OTHER | Other - Misc. Documents | Unknown | FURLONG, MARY A | | | $0.00 | 0 | 0 |
Payout Agreement
| No payout information available.. |