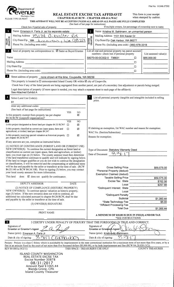
Property
Account |
| Property ID: | 172137 | Abbreviated Legal Description: | ADMIRALS COVE LOT 25 BLK 4 |
| Geographic ID: | S6010-00-04025-0 | Agent Code: | |
| Type: | Real | | |
| Tax Area: | 390 - APPRAISER-Cpvl Schl Dist, Special Dist, improved & less than 1 acre | Land Use Code | 11 |
| Open Space: | N | DFL | N |
| Historic Property: | N | Remodel Property: | N |
| Multi-Family Redevelopment: | N | | |
| Township: | | Section: | |
| Range: | |
Location |
| Address: | 1240 ADMIRALS DR COUPEVILLE, WA 98239 | Mapsco: | |
| Neighborhood: | Cycle 2 | Map ID: | 81 |
| Neighborhood CD: | 2 |
Owner |
| Name: | LEFAIVE, RICHARD E | Owner ID: | 280984 |
| Mailing Address: | CHERYL A LEFAIVE 407-1705 NELSON ST VANCOUVER, BC V6G 1M6 | % Ownership: | 100.0000000000% |
| | | Exemptions: | |
Taxes and Assessment Details
Values
| (+) Improvement Homesite Value: | + | $0 | |
| (+) Improvement Non-Homesite Value: | + | $238,863 | |
| (+) Land Homesite Value: | + | $0 | |
| (+) Land Non-Homesite Value: | + | $142,500 | |
| (+) Curr Use (HS): | + | $0 | $0 |
| (+) Curr Use (NHS): | + | $0 | $0 |
| | | -------------------------- | |
| (=) Market Value: | = | $381,363 | |
| (–) Productivity Loss: | – | $0 | |
| | | -------------------------- | |
| (=) Subtotal: | = | $381,363 | |
| (+) Senior Appraised Value: | + | $0 | |
| (+) Non-Senior Appraised Value: | + | $381,363 | |
| | | -------------------------- | |
| (=) Total Appraised Value: | = | $381,363 | |
| (–) Senior Exemption Loss: | – | $0 | |
| (–) Exemption Loss: | – | $0 | |
| | | -------------------------- | |
| (=) Taxable Value: | = | $381,363 | |
Taxing Jurisdiction
| Owner: | LEFAIVE, RICHARD E | | |
| % Ownership: | 100.0000000000% | | |
| Total Value: | $381,363 | | |
| Tax Area: | 390 - APPRAISER-Cpvl Schl Dist, Special Dist, improved & less than 1 acre |
| CF | Conservation Futures | 0.0316035091 | $381,363 | $381,363 | $12.05 | | |
| CEM2 | Cemetery #2 | 0.0095056933 | $381,363 | $381,363 | $3.63 | | |
| FIRE5 | Fire & Rescue Dist #5 C Whidbey GEN | 1.2008080668 | $381,363 | $381,363 | $457.94 | | |
| FIRE5BOND | Fire & Rescue Dist #5 C Whidbey BOND | 0.1400090713 | $381,363 | $381,363 | $53.39 | | |
| HOBOND | Hospital BOND | 0.1910887512 | $381,363 | $381,363 | $72.87 | | |
| HOGEN | Hospital GEN | 0.3902502903 | $381,363 | $381,363 | $148.83 | | |
| CE | County Current Expense | 0.3708482477 | $381,363 | $381,363 | $141.43 | | |
| CR | County Roads | 0.4584763726 | $381,363 | $381,363 | $174.85 | | |
| ISLANDEMS | Hospital GEN (EMS) | 0.5000000000 | $381,363 | $381,363 | $190.68 | | |
| LIB | Library Sno-Isle GEN | 0.3153421757 | $381,363 | $381,363 | $120.26 | | |
| LIBCAP | Library Sno-Isle BOND (Cap Fac Imp Area) | 0.0543427938 | $381,363 | $381,363 | $20.72 | | |
| POCOUP | Port of Coupeville GEN | 0.1093371703 | $381,363 | $381,363 | $41.70 | | |
| POCOUPIDD | Port of Coupeville IDD | 0.3409740022 | $381,363 | $381,363 | $130.03 | | |
| COUPSDTECH | School 204 CP (TECH) | 0.7545480007 | $381,363 | $381,363 | $287.76 | | |
| SCH204MO | School 204 Enrichment | 0.6716186034 | $381,363 | $381,363 | $256.13 | | |
| ST | State School | 1.3035497053 | $381,363 | $381,363 | $497.13 | | |
| ST2 | State School Part 2 | 0.8169543533 | $381,363 | $381,363 | $311.56 | | |
| | Total Tax Rate: | 7.6592568070 | | | | | |
| | | | | Taxes w/Current Exemptions: | $2,920.96 | | |
| | | | | Taxes w/o Exemptions: | $2,920.96 | | |
Improvement / Building
| Improvement #1: | RESIDENTIAL | State Code: | Y | 1835.3 sqft | Value: | $238,863 |
| Bathrooms: | 2.25 | Bedrooms: | 3 | | Ceiling: | DRYWALL PAINTED | Cooling: | HEAT PUMP/CONV/V | | Exterior Wall/Cover: | CEMENT FIBER | Floor Covering: | VINYL 100% | | Floor Structure: | WOOD W/SUBFLOOR | Foundation: | CONCRETE | | Interior Finish: | DRYWALL PAINT | Plumbing Fixture Cnt: | 10 | | Roof Slope: | 4" IN 12" | Roof Structure/Cover: | CJ ASPHALT |
|
| | Type | Description | Class CD | Sub Class CD | Year Built | Area |
| | BAS | BASE/MAIN FLOOR | 3 | 0 | 2024 | 952.0 |
| | UPS | UPPER STORY | 3 | 0 | 2024 | 883.3 |
| | AGR | ATTACHED GARAGE | 3 | 0 | 2024 | 484.0 |
| | OWR | OPEN WOOD PORCH W/STEPS/ROOF | 3 | 0 | 2024 | 56.0 |
| | OWP | OPEN WOOD PORCH W/STEPS | 3 | 0 | 2024 | 120.0 |
Sketch
Property Image
Land
| 1 | 13 | SQ (06001-08000) | 0.1700 | 7405.20 | 0.00 | 0.00 | 1.00 | $142,500 | $0 |
Roll Value History
| 2026 | N/A | N/A | N/A | N/A | N/A |
| 2025 | $238,863 | $142,500 | $0 | $381,363 | $381,363 |
| 2024 | $13,540 | $80,000 | $0 | $93,540 | $93,540 |
| 2023 | $0 | $80,000 | $0 | $80,000 | $80,000 |
| 2022 | $0 | $50,000 | $0 | $50,000 | $50,000 |
| 2021 | $0 | $35,000 | $0 | $35,000 | $35,000 |
| 2020 | $0 | $35,000 | $0 | $35,000 | $35,000 |
| 2019 | $0 | $35,000 | $0 | $35,000 | $35,000 |
| 2018 | $0 | $35,000 | $0 | $35,000 | $35,000 |
| 2017 | $0 | $30,000 | $0 | $30,000 | $30,000 |
| 2016 | $0 | $30,000 | $0 | $30,000 | $30,000 |
| 2015 | $0 | $30,000 | $0 | $30,000 | $30,000 |
| 2014 | $0 | $30,000 | $0 | $30,000 | $30,000 |
| 2013 | $0 | $30,000 | $0 | $30,000 | $30,000 |
| 2012 | $0 | $41,515 | $0 | $41,515 | $41,515 |
| 2011 | $0 | $41,515 | $0 | $41,515 | $41,515 |
| 2010 | $0 | $41,515 | $0 | $41,515 | $41,515 |
| 2009 | $0 | $60,000 | $0 | $60,000 | $60,000 |
| 2008 | $0 | $48,000 | $0 | $48,000 | $48,000 |
| 2007 | $0 | $60,000 | $0 | $60,000 | $60,000 |
Deed and Sales History
| 1 | 07/13/2017 | WD | Warranty Deed | REIGER, DALE W | LEFAIVE, RICHARD E | | | $44,500.00 | 30237 | 4426510 |
| 2 | 01/14/2015 | WD | Warranty Deed | FREEMAN-WHEELER, MATTHEW | REIGER, DALE W | | | $45,000.00 | 18207 | 4371708 |
| 3 | 05/23/2006 | WD | Warranty Deed | FELDMAN, GREG | FREEMAN-WHEELER, MATTHEW | | | $67,500.00 | 63058 | 4175896 |
| 4 | 08/01/1990 | WD | Warranty Deed | RUSSELL, JAMES L | FELDMAN, GREG | | | $20,000.00 | 4970 | 90016502 |
| 5 | 03/01/1990 | WD | Warranty Deed | BYRNE, JOHN P | RUSSELL, JAMES L | | | $15,000.00 | 1772 | 90005694 |
| 6 | 01/01/1900 | OTHER | Other - Misc. Documents | Unknown | BYRNE, JOHN P | | | $2,025.00 | 0 | 0 |
Payout Agreement
| No payout information available.. |