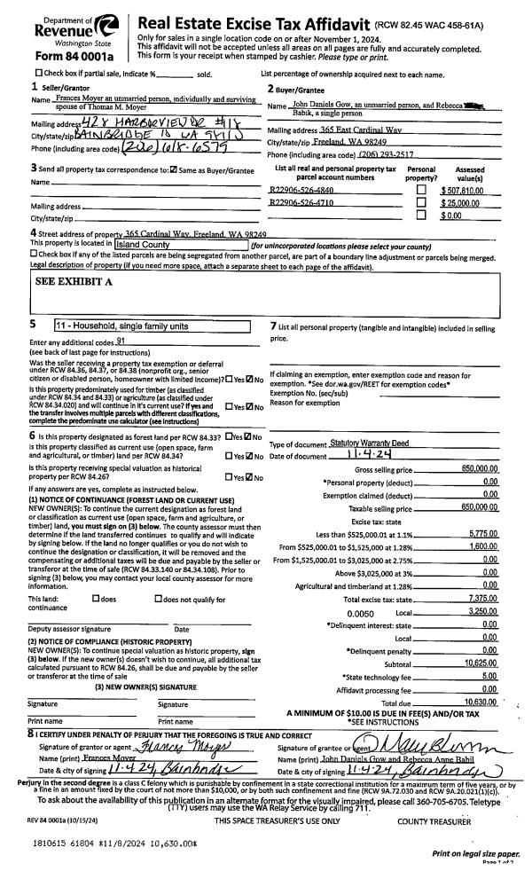
Property
Account |
| Property ID: | 172333 | Abbreviated Legal Description: | ADMIRALS COVE LOT 4 BLK 5 |
| Geographic ID: | S6010-00-05004-0 | Agent Code: | |
| Type: | Real | | |
| Tax Area: | 390 - APPRAISER-Cpvl Schl Dist, Special Dist, improved & less than 1 acre | Land Use Code | 99 |
| Open Space: | N | DFL | N |
| Historic Property: | N | Remodel Property: | N |
| Multi-Family Redevelopment: | N | | |
| Township: | | Section: | |
| Range: | |
Location |
| Address: | 1281 ADMIRALS DR COUPEVILLE, WA 98239 | Mapsco: | |
| Neighborhood: | Cycle 2 | Map ID: | 81 |
| Neighborhood CD: | 2 |
Owner |
| Name: | WEAR, LESTER | Owner ID: | 311986 |
| Mailing Address: | KYLEE WEAR 3657 DAVIE LN LANGLEY, WA 98260 | % Ownership: | 100.0000000000% |
| | | Exemptions: | |
Taxes and Assessment Details
Values
| (+) Improvement Homesite Value: | + | $0 | |
| (+) Improvement Non-Homesite Value: | + | $0 | |
| (+) Land Homesite Value: | + | $0 | |
| (+) Land Non-Homesite Value: | + | $60,000 | |
| (+) Curr Use (HS): | + | $0 | $0 |
| (+) Curr Use (NHS): | + | $0 | $0 |
| | | -------------------------- | |
| (=) Market Value: | = | $60,000 | |
| (–) Productivity Loss: | – | $0 | |
| | | -------------------------- | |
| (=) Subtotal: | = | $60,000 | |
| (+) Senior Appraised Value: | + | $0 | |
| (+) Non-Senior Appraised Value: | + | $60,000 | |
| | | -------------------------- | |
| (=) Total Appraised Value: | = | $60,000 | |
| (–) Senior Exemption Loss: | – | $0 | |
| (–) Exemption Loss: | – | $0 | |
| | | -------------------------- | |
| (=) Taxable Value: | = | $60,000 | |
Taxing Jurisdiction
| Owner: | WEAR, LESTER | | |
| % Ownership: | 100.0000000000% | | |
| Total Value: | $60,000 | | |
| Tax Area: | 390 - APPRAISER-Cpvl Schl Dist, Special Dist, improved & less than 1 acre |
| CF | Conservation Futures | 0.0316035091 | $60,000 | $60,000 | $1.90 | | |
| CEM2 | Cemetery #2 | 0.0095056933 | $60,000 | $60,000 | $0.57 | | |
| FIRE5 | Fire & Rescue Dist #5 C Whidbey GEN | 1.2008080668 | $60,000 | $60,000 | $72.05 | | |
| FIRE5BOND | Fire & Rescue Dist #5 C Whidbey BOND | 0.1400090713 | $60,000 | $60,000 | $8.40 | | |
| HOBOND | Hospital BOND | 0.1910887512 | $60,000 | $60,000 | $11.47 | | |
| HOGEN | Hospital GEN | 0.3902502903 | $60,000 | $60,000 | $23.42 | | |
| CE | County Current Expense | 0.3708482477 | $60,000 | $60,000 | $22.25 | | |
| CR | County Roads | 0.4584763726 | $60,000 | $60,000 | $27.51 | | |
| ISLANDEMS | Hospital GEN (EMS) | 0.5000000000 | $60,000 | $60,000 | $30.00 | | |
| LIB | Library Sno-Isle GEN | 0.3153421757 | $60,000 | $60,000 | $18.92 | | |
| LIBCAP | Library Sno-Isle BOND (Cap Fac Imp Area) | 0.0543427938 | $60,000 | $60,000 | $3.26 | | |
| POCOUP | Port of Coupeville GEN | 0.1093371703 | $60,000 | $60,000 | $6.56 | | |
| POCOUPIDD | Port of Coupeville IDD | 0.3409740022 | $60,000 | $60,000 | $20.46 | | |
| COUPSDTECH | School 204 CP (TECH) | 0.7545480007 | $60,000 | $60,000 | $45.27 | | |
| SCH204MO | School 204 Enrichment | 0.6716186034 | $60,000 | $60,000 | $40.30 | | |
| ST | State School | 1.3035497053 | $60,000 | $60,000 | $78.21 | | |
| ST2 | State School Part 2 | 0.8169543533 | $60,000 | $60,000 | $49.02 | | |
| | Total Tax Rate: | 7.6592568070 | | | | | |
| | | | | Taxes w/Current Exemptions: | $459.57 | | |
| | | | | Taxes w/o Exemptions: | $459.57 | | |
Improvement / Building
Sketch
| No sketches available for this property. |
Property Image
Land
| 1 | 13 | SQ (06001-08000) | 0.1700 | 7405.20 | 0.00 | 0.00 | 1.00 | $60,000 | $0 |
Roll Value History
| 2026 | N/A | N/A | N/A | N/A | N/A |
| 2025 | $0 | $60,000 | $0 | $60,000 | $60,000 |
| 2024 | $0 | $70,000 | $0 | $70,000 | $70,000 |
| 2023 | $0 | $70,000 | $0 | $70,000 | $70,000 |
| 2022 | $0 | $40,000 | $0 | $40,000 | $40,000 |
| 2021 | $0 | $30,000 | $0 | $30,000 | $30,000 |
| 2020 | $0 | $7,000 | $0 | $7,000 | $7,000 |
| 2019 | $0 | $9,000 | $0 | $9,000 | $9,000 |
| 2018 | $0 | $5,000 | $0 | $5,000 | $5,000 |
| 2017 | $0 | $5,000 | $0 | $5,000 | $5,000 |
| 2016 | $0 | $5,000 | $0 | $5,000 | $5,000 |
| 2015 | $0 | $5,000 | $0 | $5,000 | $5,000 |
| 2014 | $0 | $5,000 | $0 | $5,000 | $5,000 |
| 2013 | $0 | $5,000 | $0 | $5,000 | $5,000 |
| 2012 | $0 | $4,675 | $0 | $4,675 | $4,675 |
| 2011 | $0 | $4,675 | $0 | $4,675 | $4,675 |
| 2010 | $0 | $4,675 | $0 | $4,675 | $4,675 |
| 2009 | $0 | $6,250 | $0 | $6,250 | $6,250 |
| 2008 | $0 | $6,250 | $0 | $6,250 | $6,250 |
| 2007 | $0 | $7,500 | $0 | $7,500 | $7,500 |
Deed and Sales History
| 1 | 04/11/2024 | WD | Warranty Deed | POUND, BRUCE A | WEAR, LESTER | | | $25,000.00 | 59664 | 4571286 |
| 2 | 03/14/2005 | QCD | Quit Claim Deed | POUND, HERBERT E | POUND, BRUCE A | | | $0.00 | 50984 | 4128159 |
| 3 | 08/01/1967 | EXECUTORD | Executor Deed | ADMIRALS, COVE, I | POUND, HERBERT E | | | $2,890.00 | 27274 | 0 |
| 4 | 01/01/1900 | OTHER | Other - Misc. Documents | Unknown | ADMIRALS, COVE, I | | | $0.00 | 0 | 0 |
Payout Agreement
| No payout information available.. |