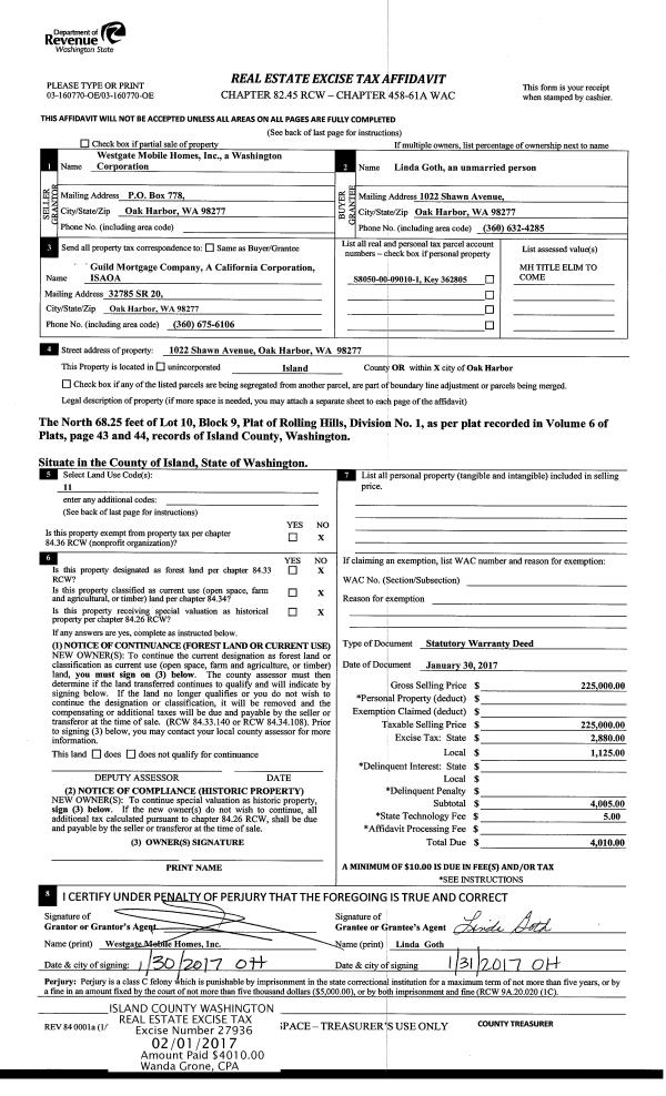
Property
Account |
| Property ID: | 172707 | Abbreviated Legal Description: | ADMIRALS COVE 2 LOT 9 BLK 2 |
| Geographic ID: | S6010-02-02009-0 | Agent Code: | |
| Type: | Real | | |
| Tax Area: | 390 - APPRAISER-Cpvl Schl Dist, Special Dist, improved & less than 1 acre | Land Use Code | 11 |
| Open Space: | N | DFL | N |
| Historic Property: | N | Remodel Property: | N |
| Multi-Family Redevelopment: | N | | |
| Township: | | Section: | |
| Range: | |
Location |
| Address: | | Mapsco: | |
| Neighborhood: | Cycle 2 | Map ID: | 81 |
| Neighborhood CD: | 2 |
Owner |
| Name: | CHENG, ZITAO | Owner ID: | 299749 |
| Mailing Address: | YING GUAN 7921 NE 184TH ST KENMORE, WA 98028 | % Ownership: | 100.0000000000% |
| | | Exemptions: | |
Taxes and Assessment Details
Values
| (+) Improvement Homesite Value: | + | $0 | |
| (+) Improvement Non-Homesite Value: | + | $362,227 | |
| (+) Land Homesite Value: | + | $0 | |
| (+) Land Non-Homesite Value: | + | $185,000 | |
| (+) Curr Use (HS): | + | $0 | $0 |
| (+) Curr Use (NHS): | + | $0 | $0 |
| | | -------------------------- | |
| (=) Market Value: | = | $547,227 | |
| (–) Productivity Loss: | – | $0 | |
| | | -------------------------- | |
| (=) Subtotal: | = | $547,227 | |
| (+) Senior Appraised Value: | + | $0 | |
| (+) Non-Senior Appraised Value: | + | $547,227 | |
| | | -------------------------- | |
| (=) Total Appraised Value: | = | $547,227 | |
| (–) Senior Exemption Loss: | – | $0 | |
| (–) Exemption Loss: | – | $0 | |
| | | -------------------------- | |
| (=) Taxable Value: | = | $547,227 | |
Taxing Jurisdiction
| Owner: | CHENG, ZITAO | | |
| % Ownership: | 100.0000000000% | | |
| Total Value: | $547,227 | | |
| Tax Area: | 390 - APPRAISER-Cpvl Schl Dist, Special Dist, improved & less than 1 acre |
| CF | Conservation Futures | 0.0316035091 | $547,227 | $547,227 | $17.29 | | |
| CEM2 | Cemetery #2 | 0.0095056933 | $547,227 | $547,227 | $5.20 | | |
| FIRE5 | Fire & Rescue Dist #5 C Whidbey GEN | 1.2008080668 | $547,227 | $547,227 | $657.11 | | |
| FIRE5BOND | Fire & Rescue Dist #5 C Whidbey BOND | 0.1400090713 | $547,227 | $547,227 | $76.62 | | |
| HOBOND | Hospital BOND | 0.1910887512 | $547,227 | $547,227 | $104.57 | | |
| HOGEN | Hospital GEN | 0.3902502903 | $547,227 | $547,227 | $213.56 | | |
| CE | County Current Expense | 0.3708482477 | $547,227 | $547,227 | $202.94 | | |
| CR | County Roads | 0.4584763726 | $547,227 | $547,227 | $250.89 | | |
| ISLANDEMS | Hospital GEN (EMS) | 0.5000000000 | $547,227 | $547,227 | $273.61 | | |
| LIB | Library Sno-Isle GEN | 0.3153421757 | $547,227 | $547,227 | $172.56 | | |
| LIBCAP | Library Sno-Isle BOND (Cap Fac Imp Area) | 0.0543427938 | $547,227 | $547,227 | $29.74 | | |
| POCOUP | Port of Coupeville GEN | 0.1093371703 | $547,227 | $547,227 | $59.83 | | |
| POCOUPIDD | Port of Coupeville IDD | 0.3409740022 | $547,227 | $547,227 | $186.59 | | |
| COUPSDTECH | School 204 CP (TECH) | 0.7545480007 | $547,227 | $547,227 | $412.91 | | |
| SCH204MO | School 204 Enrichment | 0.6716186034 | $547,227 | $547,227 | $367.53 | | |
| ST | State School | 1.3035497053 | $547,227 | $547,227 | $713.34 | | |
| ST2 | State School Part 2 | 0.8169543533 | $547,227 | $547,227 | $447.06 | | |
| | Total Tax Rate: | 7.6592568070 | | | | | |
| | | | | Taxes w/Current Exemptions: | $4,191.35 | | |
| | | | | Taxes w/o Exemptions: | $4,191.35 | | |
Improvement / Building
| Improvement #1: | RESIDENTIAL | State Code: | Y | 2059.0 sqft | Value: | $362,227 |
| Bathrooms: | 2.5 | Bedrooms: | 4 | | Ceiling: | DRYWALL PAINTED | Exterior Wall/Cover: | CEMENT FIBER | | Floor Covering: | HARDWOOD/CARP 60-40 | Floor Structure: | WOOD W/SUBFLOOR | | Foundation: | CONCRETE | Heating: | FHA GAS | | Interior Finish: | DRYWALL PAINT | Plumbing Fixture Cnt: | 12 | | Roof Slope: | 6" IN 12" | Roof Structure/Cover: | CJ ASPHALT |
|
| | Type | Description | Class CD | Sub Class CD | Year Built | Area |
| | BAS | BASE/MAIN FLOOR | 3 | 0 | 2006 | 972.0 |
| | AGR | ATTACHED GARAGE | 3 | 0 | 2006 | 460.0 |
| | UPS | UPPER STORY | 3 | 0 | 2006 | 1087.0 |
| | OWP | OPEN WOOD PORCH W/STEPS | 3 | 0 | 2006 | 200.0 |
| | OWC | OPEN WOOD PORCH W/STEPS/ROOF/C | 3 | 0 | 2006 | 126.0 |
Sketch
Property Image
Land
| 1 | 13 | SQ (06001-08000) | 0.1664 | 7248.38 | 0.00 | 0.00 | 1.00 | $185,000 | $0 |
Roll Value History
| 2026 | N/A | N/A | N/A | N/A | N/A |
| 2025 | $362,227 | $185,000 | $0 | $547,227 | $547,227 |
| 2024 | $406,470 | $175,000 | $0 | $581,470 | $581,470 |
| 2023 | $411,238 | $175,000 | $0 | $586,238 | $586,238 |
| 2022 | $376,694 | $190,000 | $0 | $566,694 | $566,694 |
| 2021 | $331,326 | $130,000 | $0 | $461,326 | $461,326 |
| 2020 | $322,592 | $110,000 | $0 | $432,592 | $432,592 |
| 2019 | $238,828 | $170,000 | $0 | $408,828 | $408,828 |
| 2018 | $235,744 | $115,000 | $0 | $350,744 | $350,744 |
| 2017 | $237,060 | $100,000 | $0 | $337,060 | $337,060 |
| 2016 | $218,118 | $65,000 | $0 | $283,118 | $283,118 |
| 2015 | $220,517 | $65,000 | $0 | $285,517 | $285,517 |
| 2014 | $222,913 | $65,000 | $0 | $287,913 | $287,913 |
| 2013 | $225,311 | $65,000 | $0 | $290,311 | $290,311 |
| 2012 | $235,011 | $73,840 | $0 | $308,851 | $308,851 |
| 2011 | $237,512 | $86,871 | $0 | $324,383 | $324,383 |
| 2010 | $239,663 | $86,871 | $0 | $326,534 | $326,534 |
| 2009 | $249,691 | $120,000 | $0 | $369,691 | $369,691 |
| 2008 | $252,385 | $120,000 | $0 | $372,385 | $372,385 |
| 2007 | $252,585 | $120,000 | $0 | $372,585 | $372,585 |
Deed and Sales History
| 1 | 05/28/2021 | WD | Warranty Deed | BAUMANN, DUANE | CHENG, ZITAO | | | $505,000.00 | 48635 | 4521626 |
| 2 | 01/04/2017 | WD | Warranty Deed | MCCARTHY, FRANCES | BAUMANN, DUANE | | | $345,000.00 | 28031 | 4416816 |
| 3 | 10/18/2006 | WD | Warranty Deed | WRIGHT CONSTRUCTION & DESIGN, | MCCARTHY, FRANCES | | | $369,900.00 | 64600 | 4185349 |
| 4 | 09/16/2005 | WD | Warranty Deed | ENTERS, ROBERT | WRIGHT CONSTRUCTION & DESIGN, | | | $35,832.00 | 54726 | 4148316 |
| 5 | 01/27/2003 | WD | Warranty Deed | LONG, CHRIS C | ENTERS, ROBERT | | | $20,043.00 | 30322 | 4045749 |
| 6 | 08/14/2001 | WD | Warranty Deed | KIRK, JAMES W | LONG, CHRIS C | | | $14,000.00 | 13341 | 20041743 |
| 7 | 03/01/1988 | QCD | Quit Claim Deed | CLONTZ, ALMA C | KIRK, JAMES W | | | $0.00 | 80589 | 88002403 |
| 8 | 11/01/1987 | WD | Warranty Deed | NELSON, MABEL | CLONTZ, ALMA C | | | $0.00 | 73635 | 87015839 |
| 9 | 07/01/1985 | OTHER | Other - Misc. Documents | WALL, JOHN | NELSON, MABEL | | | $0.00 | 62527 | 0 |
| 10 | 04/01/1982 | EXECUTORD | Executor Deed | NELSON, MELVIN I | WALL, JOHN | | | $5,750.00 | 20762 | 394854 |
Payout Agreement
| No payout information available.. |