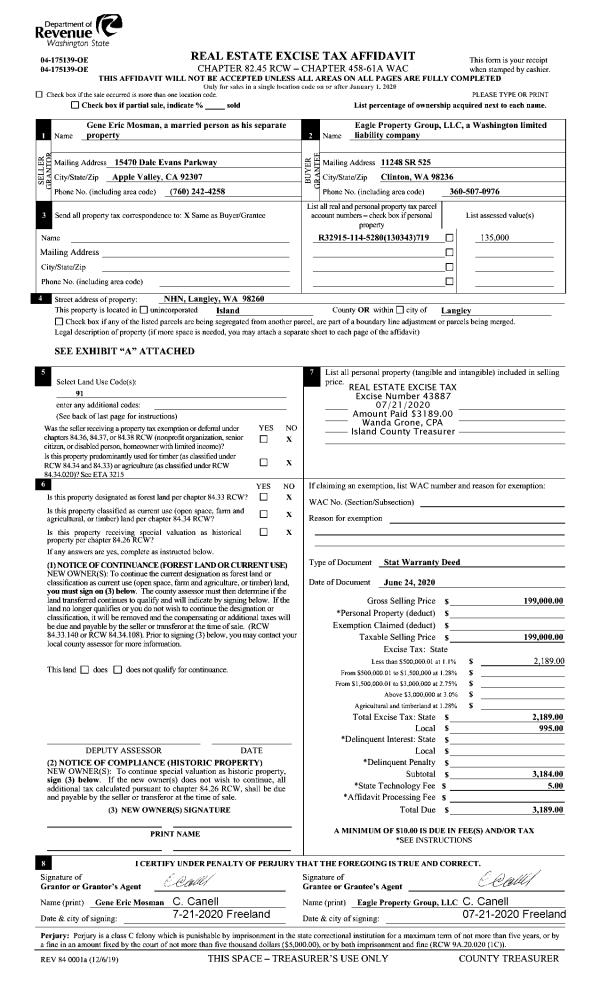
Property
Account |
| Property ID: | 172716 | Abbreviated Legal Description: | ADMIRALS COVE 2 LOT 10 BLK 2 |
| Geographic ID: | S6010-02-02010-0 | Agent Code: | |
| Type: | Real | | |
| Tax Area: | 390 - APPRAISER-Cpvl Schl Dist, Special Dist, improved & less than 1 acre | Land Use Code | 11 |
| Open Space: | N | DFL | N |
| Historic Property: | N | Remodel Property: | N |
| Multi-Family Redevelopment: | N | | |
| Township: | | Section: | |
| Range: | |
Location |
| Address: | 1240 NIMITZ DR COUPEVILLE, WA 98239 | Mapsco: | |
| Neighborhood: | Cycle 2 | Map ID: | 81 |
| Neighborhood CD: | 2 |
Owner |
| Name: | GASSETT, REECE B | Owner ID: | 292435 |
| Mailing Address: | SAMANTHA M GASSETT 1240 NIMITZ DR COUPEVILLE, WA 98239 | % Ownership: | 100.0000000000% |
| | | Exemptions: | |
Taxes and Assessment Details
Values
| (+) Improvement Homesite Value: | + | $0 | |
| (+) Improvement Non-Homesite Value: | + | $291,959 | |
| (+) Land Homesite Value: | + | $0 | |
| (+) Land Non-Homesite Value: | + | $205,000 | |
| (+) Curr Use (HS): | + | $0 | $0 |
| (+) Curr Use (NHS): | + | $0 | $0 |
| | | -------------------------- | |
| (=) Market Value: | = | $496,959 | |
| (–) Productivity Loss: | – | $0 | |
| | | -------------------------- | |
| (=) Subtotal: | = | $496,959 | |
| (+) Senior Appraised Value: | + | $0 | |
| (+) Non-Senior Appraised Value: | + | $496,959 | |
| | | -------------------------- | |
| (=) Total Appraised Value: | = | $496,959 | |
| (–) Senior Exemption Loss: | – | $0 | |
| (–) Exemption Loss: | – | $0 | |
| | | -------------------------- | |
| (=) Taxable Value: | = | $496,959 | |
Taxing Jurisdiction
| Owner: | GASSETT, REECE B | | |
| % Ownership: | 100.0000000000% | | |
| Total Value: | $496,959 | | |
| Tax Area: | 390 - APPRAISER-Cpvl Schl Dist, Special Dist, improved & less than 1 acre |
| CF | Conservation Futures | 0.0316035091 | $496,959 | $496,959 | $15.71 | | |
| CEM2 | Cemetery #2 | 0.0095056933 | $496,959 | $496,959 | $4.72 | | |
| FIRE5 | Fire & Rescue Dist #5 C Whidbey GEN | 1.2008080668 | $496,959 | $496,959 | $596.75 | | |
| FIRE5BOND | Fire & Rescue Dist #5 C Whidbey BOND | 0.1400090713 | $496,959 | $496,959 | $69.58 | | |
| HOBOND | Hospital BOND | 0.1910887512 | $496,959 | $496,959 | $94.96 | | |
| HOGEN | Hospital GEN | 0.3902502903 | $496,959 | $496,959 | $193.94 | | |
| CE | County Current Expense | 0.3708482477 | $496,959 | $496,959 | $184.30 | | |
| CR | County Roads | 0.4584763726 | $496,959 | $496,959 | $227.84 | | |
| ISLANDEMS | Hospital GEN (EMS) | 0.5000000000 | $496,959 | $496,959 | $248.48 | | |
| LIB | Library Sno-Isle GEN | 0.3153421757 | $496,959 | $496,959 | $156.71 | | |
| LIBCAP | Library Sno-Isle BOND (Cap Fac Imp Area) | 0.0543427938 | $496,959 | $496,959 | $27.01 | | |
| POCOUP | Port of Coupeville GEN | 0.1093371703 | $496,959 | $496,959 | $54.34 | | |
| POCOUPIDD | Port of Coupeville IDD | 0.3409740022 | $496,959 | $496,959 | $169.45 | | |
| COUPSDTECH | School 204 CP (TECH) | 0.7545480007 | $496,959 | $496,959 | $374.98 | | |
| SCH204MO | School 204 Enrichment | 0.6716186034 | $496,959 | $496,959 | $333.77 | | |
| ST | State School | 1.3035497053 | $496,959 | $496,959 | $647.81 | | |
| ST2 | State School Part 2 | 0.8169543533 | $496,959 | $496,959 | $405.99 | | |
| | Total Tax Rate: | 7.6592568070 | | | | | |
| | | | | Taxes w/Current Exemptions: | $3,806.34 | | |
| | | | | Taxes w/o Exemptions: | $3,806.34 | | |
Improvement / Building
| Improvement #1: | RESIDENTIAL | State Code: | Y | 1620.0 sqft | Value: | $291,959 |
| Bathrooms: | 3 | Bedrooms: | 2 | | Ceiling: | DRYWALL PAINTED | Exterior Wall/Cover: | VINYL | | Floor Covering: | CERAMIC TILE/CPT 40-60 | Floor Structure: | WOOD W/SUBFLOOR | | Foundation: | CONCRETE | Heating: | WALL HEAT ELECTRIC | | Interior Finish: | DRYWALL PAINT | Plumbing Fixture Cnt: | 9 | | Roof Slope: | 4" IN 12" | Roof Structure/Cover: | CJ ASPHALT |
|
| | Type | Description | Class CD | Sub Class CD | Year Built | Area |
| | BAS | BASE/MAIN FLOOR | 3 | 0 | 2003 | 810.0 |
| | AGR | ATTACHED GARAGE | 3 | 0 | 2003 | 484.0 |
| | UPS | UPPER STORY | 3 | 0 | 2003 | 810.0 |
| | OWP | OPEN WOOD PORCH W/STEPS | 3 | 0 | 2003 | 375.0 |
| | OWC | OPEN WOOD PORCH W/STEPS/ROOF/C | 3 | 0 | 2003 | 112.0 |
Sketch
Property Image
Land
| 1 | 13 | SQ (06001-08000) | 0.1664 | 7248.38 | 0.00 | 0.00 | 1.00 | $205,000 | $0 |
Roll Value History
| 2026 | N/A | N/A | N/A | N/A | N/A |
| 2025 | $291,959 | $205,000 | $0 | $496,959 | $496,959 |
| 2024 | $285,110 | $195,000 | $0 | $480,110 | $480,110 |
| 2023 | $288,536 | $200,000 | $0 | $488,536 | $488,536 |
| 2022 | $264,366 | $190,000 | $0 | $454,366 | $454,366 |
| 2021 | $232,588 | $130,000 | $0 | $362,588 | $362,588 |
| 2020 | $226,666 | $110,000 | $0 | $336,666 | $336,666 |
| 2019 | $166,159 | $170,000 | $0 | $336,159 | $336,159 |
| 2018 | $162,864 | $140,000 | $0 | $302,864 | $302,864 |
| 2017 | $163,805 | $120,000 | $0 | $283,805 | $283,805 |
| 2016 | $165,689 | $75,000 | $0 | $240,689 | $240,689 |
| 2015 | $167,570 | $65,000 | $0 | $232,570 | $232,570 |
| 2014 | $169,455 | $65,000 | $0 | $234,455 | $234,455 |
| 2013 | $171,337 | $65,000 | $0 | $236,337 | $236,337 |
| 2012 | $154,510 | $61,533 | $0 | $216,043 | $216,043 |
| 2011 | $156,226 | $72,392 | $0 | $228,618 | $228,618 |
| 2010 | $161,099 | $72,392 | $0 | $233,491 | $233,491 |
| 2009 | $167,861 | $100,000 | $0 | $267,861 | $267,861 |
| 2008 | $171,471 | $100,000 | $0 | $271,471 | $271,471 |
| 2007 | $171,607 | $100,000 | $0 | $271,607 | $271,607 |
Deed and Sales History
| 1 | 10/15/2019 | WD | Warranty Deed | ATHANS, CONOR G | GASSETT, REECE B | | | $319,500.00 | 40935 | 4474639 |
| 2 | 11/14/2017 | WD | Warranty Deed | SULLIVAN, DANIEL J | ATHANS, CONOR G | | | $275,500.00 | 31949 | 4434329 |
| 3 | 10/22/2015 | WD | Warranty Deed | ABERNATHY JR, JAMES WINSTON | SULLIVAN, DANIEL J | | | $210,000.00 | 22014 | 4388767 |
| 4 | 01/25/2005 | WD | Warranty Deed | BRESS, GREGORY D | ABERNATHY JR, JAMES WINSTON | | | $200,000.00 | 50313 | 4124088 |
| 5 | 08/15/2003 | WD | Warranty Deed | MACH, DELBERT | BRESS, GREGORY D | | | $169,900.00 | 33862 | 4073146 |
| 6 | 12/17/2002 | WD | Warranty Deed | ERBE, HAROLD & | MACH, DELBERT | | | $22,000.00 | 25070 | 4040988 |
| 7 | 11/01/1993 | WD | Warranty Deed | COULSON, MICHAEL E | ERBE, HAROLD & | | | $19,000.00 | 34785 | 93024965 |
| 8 | 08/01/1991 | WD | Warranty Deed | SEATTLE, PACIFIC U | COULSON, MICHAEL E | | | $15,000.00 | 13016 | 91012866 |
| 9 | 06/01/1981 | CD | DNU - Correction Deed | HEMRY, ORAL V | SEATTLE, PACIFIC U | | | $1.00 | 11764 | 384073 |
| 10 | 01/01/1900 | OTHER | Other - Misc. Documents | Unknown | HEMRY, ORAL V | | | $3,695.00 | 0 | 0 |
Payout Agreement
| No payout information available.. |