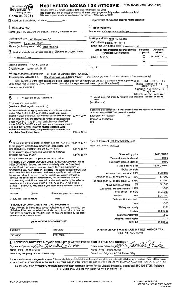
Property
Account |
| Property ID: | 172789 | Abbreviated Legal Description: | ADMIRALS COVE 2 LOT 2 BLK 3 |
| Geographic ID: | S6010-02-03002-0 | Agent Code: | |
| Type: | Real | | |
| Tax Area: | 390 - APPRAISER-Cpvl Schl Dist, Special Dist, improved & less than 1 acre | Land Use Code | 11 |
| Open Space: | N | DFL | N |
| Historic Property: | N | Remodel Property: | N |
| Multi-Family Redevelopment: | N | | |
| Township: | | Section: | |
| Range: | |
Location |
| Address: | 1365 ADMIRALS DR COUPEVILLE, WA 98239 | Mapsco: | |
| Neighborhood: | Cycle 2 | Map ID: | 495 |
| Neighborhood CD: | 2 |
Owner |
| Name: | DANIEL, BLAKE REITER | Owner ID: | 283281 |
| Mailing Address: | 1365 ADMIRALS DR COUPEVILLE, WA 98239-9761 | % Ownership: | 100.0000000000% |
| | | Exemptions: | |
Taxes and Assessment Details
Values
| (+) Improvement Homesite Value: | + | $0 | |
| (+) Improvement Non-Homesite Value: | + | $275,643 | |
| (+) Land Homesite Value: | + | $0 | |
| (+) Land Non-Homesite Value: | + | $185,000 | |
| (+) Curr Use (HS): | + | $0 | $0 |
| (+) Curr Use (NHS): | + | $0 | $0 |
| | | -------------------------- | |
| (=) Market Value: | = | $460,643 | |
| (–) Productivity Loss: | – | $0 | |
| | | -------------------------- | |
| (=) Subtotal: | = | $460,643 | |
| (+) Senior Appraised Value: | + | $0 | |
| (+) Non-Senior Appraised Value: | + | $460,643 | |
| | | -------------------------- | |
| (=) Total Appraised Value: | = | $460,643 | |
| (–) Senior Exemption Loss: | – | $0 | |
| (–) Exemption Loss: | – | $0 | |
| | | -------------------------- | |
| (=) Taxable Value: | = | $460,643 | |
Taxing Jurisdiction
| Owner: | DANIEL, BLAKE REITER | | |
| % Ownership: | 100.0000000000% | | |
| Total Value: | $460,643 | | |
| Tax Area: | 390 - APPRAISER-Cpvl Schl Dist, Special Dist, improved & less than 1 acre |
| CF | Conservation Futures | 0.0316035091 | $460,643 | $460,643 | $14.56 | | |
| CEM2 | Cemetery #2 | 0.0095056933 | $460,643 | $460,643 | $4.38 | | |
| FIRE5 | Fire & Rescue Dist #5 C Whidbey GEN | 1.2008080668 | $460,643 | $460,643 | $553.14 | | |
| FIRE5BOND | Fire & Rescue Dist #5 C Whidbey BOND | 0.1400090713 | $460,643 | $460,643 | $64.49 | | |
| HOBOND | Hospital BOND | 0.1910887512 | $460,643 | $460,643 | $88.02 | | |
| HOGEN | Hospital GEN | 0.3902502903 | $460,643 | $460,643 | $179.77 | | |
| CE | County Current Expense | 0.3708482477 | $460,643 | $460,643 | $170.83 | | |
| CR | County Roads | 0.4584763726 | $460,643 | $460,643 | $211.19 | | |
| ISLANDEMS | Hospital GEN (EMS) | 0.5000000000 | $460,643 | $460,643 | $230.32 | | |
| LIB | Library Sno-Isle GEN | 0.3153421757 | $460,643 | $460,643 | $145.26 | | |
| LIBCAP | Library Sno-Isle BOND (Cap Fac Imp Area) | 0.0543427938 | $460,643 | $460,643 | $25.03 | | |
| POCOUP | Port of Coupeville GEN | 0.1093371703 | $460,643 | $460,643 | $50.37 | | |
| POCOUPIDD | Port of Coupeville IDD | 0.3409740022 | $460,643 | $460,643 | $157.07 | | |
| COUPSDTECH | School 204 CP (TECH) | 0.7545480007 | $460,643 | $460,643 | $347.58 | | |
| SCH204MO | School 204 Enrichment | 0.6716186034 | $460,643 | $460,643 | $309.38 | | |
| ST | State School | 1.3035497053 | $460,643 | $460,643 | $600.47 | | |
| ST2 | State School Part 2 | 0.8169543533 | $460,643 | $460,643 | $376.32 | | |
| | Total Tax Rate: | 7.6592568070 | | | | | |
| | | | | Taxes w/Current Exemptions: | $3,528.18 | | |
| | | | | Taxes w/o Exemptions: | $3,528.18 | | |
Improvement / Building
| Improvement #1: | RESIDENTIAL | State Code: | Y | 1439.0 sqft | Value: | $275,643 |
| Bathrooms: | 2.5 | Bedrooms: | 3 | | Ceiling: | DRY WALL SPRAYED | Exterior Wall/Cover: | PLY/HARDBOARD T-111 | | Floor Covering: | CARPET/VINYL 80-20 | Floor Structure: | WOOD W/SUBFLOOR | | Foundation: | CONCRETE | Heating: | FHA GAS | | Interior Finish: | DRYWALL PAINT | Plumbing Fixture Cnt: | 12 | | Roof Slope: | 6" IN 12" | Roof Structure/Cover: | CJ ASPHALT |
|
| | Type | Description | Class CD | Sub Class CD | Year Built | Area |
| | BAS | BASE/MAIN FLOOR | 3 | 0 | 2005 | 864.0 |
| | AGR | ATTACHED GARAGE | 3 | 0 | 2005 | 396.0 |
| | UPS | UPPER STORY | 3 | 0 | 2005 | 575.0 |
| | OWR | OPEN WOOD PORCH W/STEPS/ROOF | 3 | 0 | 2005 | 35.0 |
| | OWP | OPEN WOOD PORCH W/STEPS | 3 | 0 | 2005 | 336.0 |
Sketch
Property Image
Land
| 1 | 13 | SQ (06001-08000) | 0.1653 | 7200.47 | 0.00 | 0.00 | 1.00 | $185,000 | $0 |
Roll Value History
| 2026 | N/A | N/A | N/A | N/A | N/A |
| 2025 | $275,643 | $185,000 | $0 | $460,643 | $460,643 |
| 2024 | $272,445 | $175,000 | $0 | $447,445 | $447,445 |
| 2023 | $275,643 | $175,000 | $0 | $450,643 | $450,643 |
| 2022 | $252,496 | $160,000 | $0 | $412,496 | $412,496 |
| 2021 | $222,073 | $125,000 | $0 | $347,073 | $347,073 |
| 2020 | $215,611 | $100,000 | $0 | $315,611 | $315,611 |
| 2019 | $153,431 | $140,000 | $0 | $293,431 | $293,431 |
| 2018 | $151,611 | $115,000 | $0 | $266,611 | $266,611 |
| 2017 | $152,468 | $100,000 | $0 | $252,468 | $252,468 |
| 2016 | $154,180 | $65,000 | $0 | $219,180 | $219,180 |
| 2015 | $155,893 | $50,000 | $0 | $205,893 | $205,893 |
| 2014 | $157,607 | $50,000 | $0 | $207,607 | $207,607 |
| 2013 | $159,320 | $50,000 | $0 | $209,320 | $209,320 |
| 2012 | $156,718 | $49,227 | $0 | $205,945 | $205,945 |
| 2011 | $158,399 | $57,914 | $0 | $216,313 | $216,313 |
| 2010 | $165,929 | $57,914 | $0 | $223,843 | $223,843 |
| 2009 | $171,183 | $80,000 | $0 | $251,183 | $251,183 |
| 2008 | $173,144 | $80,000 | $0 | $253,144 | $253,144 |
| 2007 | $175,091 | $80,000 | $0 | $255,091 | $255,091 |
Deed and Sales History
| 1 | 12/12/2017 | WD | Warranty Deed | HIRSCH, DANIEL J | DANIEL, BLAKE REITER | | | $292,000.00 | 32280 | 4435775 |
| 2 | 04/27/2005 | WD | Warranty Deed | EDENHOLM, ROY | HIRSCH, DANIEL J | | | $189,200.00 | 51814 | 4132668 |
| 3 | 08/19/2004 | ESTSEPPROP | Establish Separate Property | EDENHOLM, ROY | EDENHOLM, ROY | | | $0.00 | 44167 | 41120058 |
| 4 | 04/08/2004 | WD | Warranty Deed | SORENSON, ALAN D | EDENHOLM, ROY | | | $16,000.00 | 41477 | 4097212 |
| 5 | 01/01/1900 | OTHER | Other - Misc. Documents | Unknown | SORENSON, ALAN D | | | $2,250.00 | 0 | 0 |
Payout Agreement
| No payout information available.. |