Property
Account |
| Property ID: | 1731 | Abbreviated Legal Description: | 41 JS SMITH DC - BG 5115'S OF NW CR SD DLC S88*E1325. 49' S1*W377.15' TPB S88* E577.5' S1*W377.15' S88* W577.5' N1*E377.15' TPB |
| Geographic ID: | R13101-305-2380 | Agent Code: | |
| Type: | Real | | |
| Tax Area: | 312 - APPRAISER-Cpvl Schl Dist, outside Cpvl, improved, greater than 1 acre | Land Use Code | 11 |
| Open Space: | N | DFL | N |
| Historic Property: | N | Remodel Property: | N |
| Multi-Family Redevelopment: | N | | |
| Township: | 31 | Section: | 01 |
| Range: | R1 |
Location |
| Address: | 170 MEADOWLARK RD COUPEVILLE, WA 98239 | Mapsco: | |
| Neighborhood: | Cycle 2 | Map ID: | 19 |
| Neighborhood CD: | 2 |
Owner |
| Name: | CLEGG, MERRELD K | Owner ID: | 288146 |
| Mailing Address: | MARTHA R CLEGG 170 MEADOWLARK RD COUPEVILLE, WA 98239 | % Ownership: | 100.0000000000% |
| | | Exemptions: | |
Taxes and Assessment Details
Values
| (+) Improvement Homesite Value: | + | $0 | |
| (+) Improvement Non-Homesite Value: | + | $379,285 | |
| (+) Land Homesite Value: | + | $0 | |
| (+) Land Non-Homesite Value: | + | $340,000 | |
| (+) Curr Use (HS): | + | $0 | $0 |
| (+) Curr Use (NHS): | + | $0 | $0 |
| | | -------------------------- | |
| (=) Market Value: | = | $719,285 | |
| (–) Productivity Loss: | – | $0 | |
| | | -------------------------- | |
| (=) Subtotal: | = | $719,285 | |
| (+) Senior Appraised Value: | + | $0 | |
| (+) Non-Senior Appraised Value: | + | $719,285 | |
| | | -------------------------- | |
| (=) Total Appraised Value: | = | $719,285 | |
| (–) Senior Exemption Loss: | – | $0 | |
| (–) Exemption Loss: | – | $0 | |
| | | -------------------------- | |
| (=) Taxable Value: | = | $719,285 | |
Taxing Jurisdiction
| Owner: | CLEGG, MERRELD K | | |
| % Ownership: | 100.0000000000% | | |
| Total Value: | $719,285 | | |
| Tax Area: | 312 - APPRAISER-Cpvl Schl Dist, outside Cpvl, improved, greater than 1 acre |
| CF | Conservation Futures | 0.0316035091 | $719,285 | $719,285 | $22.73 | | |
| CEM2 | Cemetery #2 | 0.0095056933 | $719,285 | $719,285 | $6.84 | | |
| FIRE5 | Fire & Rescue Dist #5 C Whidbey GEN | 1.2008080668 | $719,285 | $719,285 | $863.72 | | |
| FIRE5BOND | Fire & Rescue Dist #5 C Whidbey BOND | 0.1400090713 | $719,285 | $719,285 | $100.71 | | |
| HOBOND | Hospital BOND | 0.1910887512 | $719,285 | $719,285 | $137.45 | | |
| HOGEN | Hospital GEN | 0.3902502903 | $719,285 | $719,285 | $280.70 | | |
| CE | County Current Expense | 0.3708482477 | $719,285 | $719,285 | $266.75 | | |
| CR | County Roads | 0.4584763726 | $719,285 | $719,285 | $329.78 | | |
| ISLANDEMS | Hospital GEN (EMS) | 0.5000000000 | $719,285 | $719,285 | $359.64 | | |
| LIB | Library Sno-Isle GEN | 0.3153421757 | $719,285 | $719,285 | $226.82 | | |
| LIBCAP | Library Sno-Isle BOND (Cap Fac Imp Area) | 0.0543427938 | $719,285 | $719,285 | $39.09 | | |
| POCOUP | Port of Coupeville GEN | 0.1093371703 | $719,285 | $719,285 | $78.64 | | |
| POCOUPIDD | Port of Coupeville IDD | 0.3409740022 | $719,285 | $719,285 | $245.26 | | |
| COUPSDTECH | School 204 CP (TECH) | 0.7545480007 | $719,285 | $719,285 | $542.74 | | |
| SCH204MO | School 204 Enrichment | 0.6716186034 | $719,285 | $719,285 | $483.09 | | |
| ST | State School | 1.3035497053 | $719,285 | $719,285 | $937.62 | | |
| ST2 | State School Part 2 | 0.8169543533 | $719,285 | $719,285 | $587.62 | | |
| | Total Tax Rate: | 7.6592568070 | | | | | |
| | | | | Taxes w/Current Exemptions: | $5,509.20 | | |
| | | | | Taxes w/o Exemptions: | $5,509.20 | | |
Improvement / Building
| Improvement #1: | RESIDENTIAL | State Code: | Y | 1960.0 sqft | Value: | $379,285 |
| Bathrooms: | 2.5 | Bedrooms: | 3 | | Ceiling: | DRYWALL PAINTED | Cooling: | HEAT PUMP/CONV/V | | Exterior Wall/Cover: | WOOD SIDING | Floor Covering: | HARDWOOD/CARP 60-40 | | Floor Structure: | WOOD W/SUBFLOOR | Foundation: | CONCRETE | | Interior Finish: | DRYWALL PAINT | Plumbing Fixture Cnt: | 12 | | Roof Slope: | 4" IN 12" | Roof Structure/Cover: | CJ ASPHALT |
|
| | Type | Description | Class CD | Sub Class CD | Year Built | Area |
| | BAS | BASE/MAIN FLOOR | 3 | 0 | 1982 | 1232.0 |
| | OWP | OPEN WOOD PORCH W/STEPS | 3 | 0 | 1982 | 108.0 |
| | ENP | ENCLOSED PORCH | 3 | 0 | 1982 | 528.0 |
| | ENP | ENCLOSED PORCH | 3 | 0 | 1982 | 24.0 |
| | DWN | DOWNSTAIRS LIVING AREA | 3 | 0 | 1982 | 728.0 |
| | DGR | DETACHED GARAGE | 3 | 0 | 1982 | 640.0 |
| | CPD | OPEN CARPORT DIRT FLOOR | 3 | 0 | 1982 | 384.0 |
| | UTY | STORAGE/UTILITY | 3 | 0 | 1982 | 680.0 |
| | OCP | OPEN CARPORT | 3 | 0 | 1982 | 100.0 |
| | OWP | OPEN WOOD PORCH W/STEPS | 3 | 0 | 1982 | 196.0 |
Sketch
| No sketches available for this property. |
Property Image
Land
| 1 | HS | HOMESITE | 1.0000 | 43560.00 | 0.00 | 0.00 | 1.00 | $220,000 | $0 |
| 2 | 91 | UNDEVELOPED LAND-METES AND BOUNDS | 4.0000 | 174240.00 | 0.00 | 0.00 | 1.00 | $120,000 | $0 |
Roll Value History
| 2026 | N/A | N/A | N/A | N/A | N/A |
| 2025 | $379,285 | $340,000 | $0 | $719,285 | $719,285 |
| 2024 | $345,442 | $290,000 | $0 | $635,442 | $635,442 |
| 2023 | $349,971 | $280,000 | $0 | $629,971 | $629,971 |
| 2022 | $321,019 | $250,000 | $0 | $571,019 | $571,019 |
| 2021 | $282,703 | $170,000 | $0 | $452,703 | $452,703 |
| 2020 | $275,700 | $160,000 | $0 | $435,700 | $435,700 |
| 2019 | $208,459 | $230,000 | $0 | $438,459 | $438,459 |
| 2018 | $166,013 | $200,000 | $0 | $366,013 | $366,013 |
| 2017 | $167,173 | $200,000 | $0 | $367,173 | $367,173 |
| 2016 | $169,489 | $140,000 | $0 | $309,489 | $309,489 |
| 2015 | $171,805 | $140,000 | $0 | $311,805 | $311,805 |
| 2014 | $174,121 | $140,000 | $0 | $314,121 | $314,121 |
| 2013 | $171,440 | $140,000 | $0 | $311,440 | $311,440 |
| 2012 | $172,612 | $121,500 | $0 | $294,112 | $294,112 |
| 2011 | $174,776 | $135,000 | $0 | $309,776 | $309,776 |
| 2010 | $187,109 | $135,000 | $0 | $322,109 | $322,109 |
| 2009 | $192,512 | $150,000 | $0 | $342,512 | $342,512 |
| 2008 | $194,989 | $147,500 | $0 | $342,489 | $342,489 |
| 2007 | $197,491 | $147,500 | $0 | $344,991 | $344,991 |
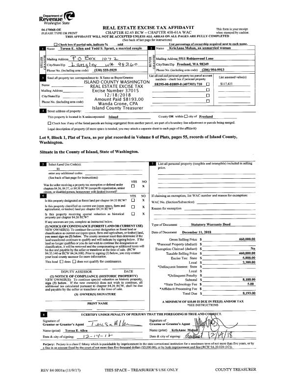
Deed and Sales History
| 1 | 11/21/2018 | WD | Warranty Deed | PARKER, GARY E | CLEGG, MERRELD K | | | $430,000.00 | 36898 | 4456095 |
| 2 | 03/07/2014 | 5 | DNU - Marriage License/Name Change | PARKER, GARY E & DEBERGER, | PARKER, GARY E | | | | 83877 | |
| 3 | 11/01/1978 | OTHER | Other - Misc. Documents | Unknown | PARKER, GARY E | | | $26,750.00 | 85771 | 343638 |
Payout Agreement
| No payout information available.. |