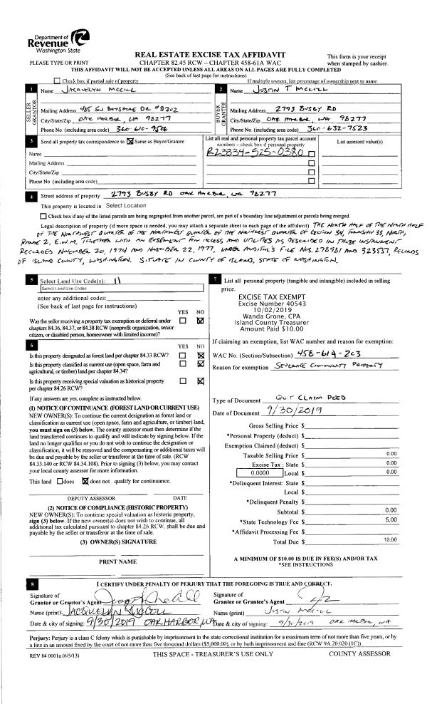
Property
Account |
| Property ID: | 173298 | Abbreviated Legal Description: | ADMIRALS COVE 3 LOT 33 |
| Geographic ID: | S6010-03-00033-0 | Agent Code: | |
| Type: | Real | | |
| Tax Area: | 390 - APPRAISER-Cpvl Schl Dist, Special Dist, improved & less than 1 acre | Land Use Code | 11 |
| Open Space: | N | DFL | N |
| Historic Property: | N | Remodel Property: | N |
| Multi-Family Redevelopment: | N | | |
| Township: | | Section: | |
| Range: | |
Location |
| Address: | 1105 HALSEY DR COUPEVILLE, WA 98239 | Mapsco: | |
| Neighborhood: | Cycle 2 | Map ID: | 59 |
| Neighborhood CD: | 2 |
Owner |
| Name: | JONES, BRIAN | Owner ID: | 308140 |
| Mailing Address: | 1105 HALSEY DR COUPEVILLE, WA 98239 | % Ownership: | 100.0000000000% |
| | | Exemptions: | SNR/DSBL |
Taxes and Assessment Details
Values
| (+) Improvement Homesite Value: | + | $316,884 | |
| (+) Improvement Non-Homesite Value: | + | $0 | |
| (+) Land Homesite Value: | + | $205,000 | |
| (+) Land Non-Homesite Value: | + | $0 | |
| (+) Curr Use (HS): | + | $0 | $0 |
| (+) Curr Use (NHS): | + | $0 | $0 |
| | | -------------------------- | |
| (=) Market Value: | = | $521,884 | |
| (–) Productivity Loss: | – | $0 | |
| | | -------------------------- | |
| (=) Subtotal: | = | $521,884 | |
| (+) Senior Appraised Value: | + | $499,522 | |
| (+) Non-Senior Appraised Value: | + | $0 | |
| | | -------------------------- | |
| (=) Total Appraised Value: | = | $499,522 | |
| (–) Senior Exemption Loss: | – | $70,000 | |
| (–) Exemption Loss: | – | $0 | |
| | | -------------------------- | |
| (=) Taxable Value: | = | $429,522 | |
Taxing Jurisdiction
| Owner: | JONES, BRIAN | | |
| % Ownership: | 100.0000000000% | | |
| Total Value: | $521,884 | | |
| Tax Area: | 390 - APPRAISER-Cpvl Schl Dist, Special Dist, improved & less than 1 acre |
| CF | Conservation Futures | 0.0316035091 | $521,884 | $429,522 | $13.57 | | |
| CEM2 | Cemetery #2 | 0.0095056933 | $521,884 | $429,522 | $4.08 | | |
| FIRE5 | Fire & Rescue Dist #5 C Whidbey GEN | 1.2008080668 | $521,884 | $429,522 | $515.77 | | |
| FIRE5BOND | Fire & Rescue Dist #5 C Whidbey BOND | 0.0000000000 | $521,884 | $0 | $0.00 | | |
| HOBOND | Hospital BOND | 0.0000000000 | $521,884 | $0 | $0.00 | | |
| HOGEN | Hospital GEN | 0.3902502903 | $521,884 | $429,522 | $167.62 | | |
| CE | County Current Expense | 0.3708482477 | $521,884 | $429,522 | $159.29 | | |
| CR | County Roads | 0.4584763726 | $521,884 | $429,522 | $196.93 | | |
| ISLANDEMS | Hospital GEN (EMS) | 0.5000000000 | $521,884 | $429,522 | $214.76 | | |
| LIB | Library Sno-Isle GEN | 0.3153421757 | $521,884 | $429,522 | $135.45 | | |
| LIBCAP | Library Sno-Isle BOND (Cap Fac Imp Area) | 0.0000000000 | $521,884 | $0 | $0.00 | | |
| POCOUP | Port of Coupeville GEN | 0.1093371703 | $521,884 | $429,522 | $46.96 | | |
| POCOUPIDD | Port of Coupeville IDD | 0.3409740022 | $521,884 | $429,522 | $146.46 | | |
| COUPSDTECH | School 204 CP (TECH) | 0.0000000000 | $521,884 | $0 | $0.00 | | |
| SCH204MO | School 204 Enrichment | 0.0000000000 | $521,884 | $0 | $0.00 | | |
| ST | State School | 1.3035497053 | $521,884 | $429,522 | $559.90 | | |
| ST2 | State School Part 2 | 0.0000000000 | $521,884 | $0 | $0.00 | | |
| | Total Tax Rate: | 5.0306952333 | | | | | |
| | | | | Taxes w/Current Exemptions: | $2,160.79 | | |
| | | | | Taxes w/o Exemptions: | $3,997.25 | | |
Improvement / Building
| Improvement #1: | RESIDENTIAL | State Code: | Y | 1502.0 sqft | Value: | $316,884 |
| Bathrooms: | 2 | Bedrooms: | 2 | | Ceiling: | DRYWALL PAINTED | Cooling: | HEAT PUMP/CONV/V | | Exterior Wall/Cover: | CEMENT FIBER | Floor Covering: | HARDWOOD/CARP 80-20 | | Floor Structure: | WOOD W/SUBFLOOR | Foundation: | CONCRETE | | Interior Finish: | DRYWALL PAINT | Plumbing Fixture Cnt: | 9 | | Roof Slope: | 5" IN 12" | Roof Structure/Cover: | CJ ASPHALT |
|
| | Type | Description | Class CD | Sub Class CD | Year Built | Area |
| | BAS | BASE/MAIN FLOOR | 3 | 0 | 2019 | 1502.0 |
| | AGR | ATTACHED GARAGE | 3 | 0 | 2019 | 420.0 |
| | OWP | OPEN WOOD PORCH W/STEPS | 3 | 0 | 2019 | 160.0 |
| | OP4 | OPEN PORCH W/CEILING-ROOF | 3 | 0 | 2019 | 24.0 |
Sketch
Property Image
Land
| 1 | 13 | SQ (06001-08000) | 0.1703 | 7418.27 | 0.00 | 0.00 | 1.00 | $205,000 | $0 |
Roll Value History
| 2026 | N/A | N/A | N/A | N/A | N/A |
| 2025 | $316,884 | $205,000 | $0 | $521,884 | $429,522 |
| 2024 | $304,522 | $195,000 | $0 | $499,522 | $429,522 |
| 2023 | $306,959 | $200,000 | $0 | $506,959 | $506,959 |
| 2022 | $280,152 | $190,000 | $0 | $470,152 | $470,152 |
| 2021 | $246,169 | $130,000 | $0 | $376,169 | $376,169 |
| 2020 | $241,400 | $110,000 | $0 | $351,400 | $351,400 |
| 2019 | $78,967 | $35,000 | $0 | $113,967 | $113,967 |
| 2018 | $0 | $35,000 | $0 | $35,000 | $35,000 |
| 2017 | $0 | $30,000 | $0 | $30,000 | $30,000 |
| 2016 | $0 | $30,000 | $0 | $30,000 | $30,000 |
| 2015 | $0 | $30,000 | $0 | $30,000 | $30,000 |
| 2014 | $0 | $30,000 | $0 | $30,000 | $30,000 |
| 2013 | $0 | $30,000 | $0 | $30,000 | $30,000 |
| 2012 | $0 | $29,407 | $0 | $29,407 | $29,407 |
| 2011 | $0 | $29,407 | $0 | $29,407 | $29,407 |
| 2010 | $0 | $29,407 | $0 | $29,407 | $29,407 |
| 2009 | $0 | $45,000 | $0 | $45,000 | $45,000 |
| 2008 | $0 | $25,000 | $0 | $25,000 | $25,000 |
| 2007 | $0 | $35,000 | $0 | $35,000 | $35,000 |
Deed and Sales History
| 1 | 03/30/2023 | QCD | Quit Claim Deed | JONES, FRANCES E | JONES, BRIAN | | | $0.00 | 56267 | 4558285 |
| 2 | 03/29/2023 | WD | Warranty Deed | VINSON, BRANDON J | JONES, BRIAN | | | $480,000.00 | 56266 | 4558284 |
| 3 | 12/20/2019 | WD | Warranty Deed | RIEPMA & MOTTET CONSTRUCTION, LLC | VINSON, BRANDON J | | | $332,500.00 | 41604 | 4478126 |
| 4 | 06/29/2017 | WD | Warranty Deed | JOHNSTONE, MARC W | RIEPMA & MOTTET CONSTRUCTION, LLC | | | $18,000.00 | 30345 | 4426953 |
| 5 | 01/21/2000 | QCD | Quit Claim Deed | JOHNSTONE, MARC W/LINDA M | JOHNSTONE, MARC W | | | $0.00 | 367 | 20001943 |
| 6 | 12/01/1987 | QCD | Quit Claim Deed | JOHNSTONE, KENNETH W | JOHNSTONE, MARC W | | | $0.00 | 80022 | 88000087 |
| 7 | 01/01/1900 | OTHER | Other - Misc. Documents | JOHNSTONE, MARC W | JOHNSTONE, MARC W/LINDA M | | | $0.00 | 0 | 0 |
| 8 | 01/01/1900 | OTHER | Other - Misc. Documents | Unknown | JOHNSTONE, KENNETH W | | | $4,033.00 | 0 | 0 |
Payout Agreement
| No payout information available.. |